Perfectly located Harrison townhouse
Location
39/84 Kings Canyon Street
Harrison ACT 2914
Details
3
2
2
EER: 6.0
Townhouse
$675 per week
Bond: | $2,700.00 |
Available: | Monday, 24 Nov 2025 |
Conveniently located opposite the Well Station Drive Light Rail Station, a 1km walk to the Franklin shops including Woolworths, restaurants and specialty stores (including Goodberry's!), and only minutes' drive to Gungahlin Town Centre.
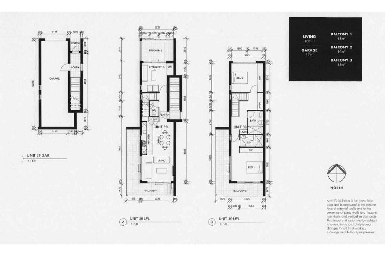
Set over three storeys, the ground floor offers a double tandem garage. The first floor is light and bright with a corner balcony surrounding the kitchen and living/dining space, with split system air conditioning. Also located on this floor is a European style laundry with dryer included, a third toilet with hand basin and third bedroom with its own private balcony, and built in wardrobe.
On the second floor are bedrooms one and two, both with built in wardrobes and split system air conditioners, plus the main bathroom. The main bedroom has it's own large wrap around balcony, plus ensuite bathroom.
• 1km walk to Franklin Woolworths and Shops
• Minutes' drive to Gungahlin Town Centre
• Open plan, bright kitchen, living and dining area with wrap around balcony
• Kitchen with dishwasher and gas cooktop
• Split system air conditioning units in the living area and both upstairs bedrooms
• European style laundry with dryer included
• Third toilet conveniently located behind the kitchen
• First floor third bedroom with private balcony
• Second floor two bedrooms with built in wardrobes and split system air conditioners
• Main bedroom with ensuite bathroom and wrap around balcony
• Main bathroom located alongside the second bedroom
• Two linen closets
• Double tandem garage
Additional Information
• Energy Efficiency Rating 6 Stars
• The property complies with the minimum ceiling insulation standard
• The premises may be made accessible for individuals with a disability – Individuals must rely upon their own inspection and investigations to determine suitability before applying
• Embedded Networks – Not applicable
Available 24th November 2025
Inspection
(www.blackshaw.com.au and www.allhomes.com.au only)
1. Click on the "BOOK INSPECTION" button
2. Register to join an existing inspection
3. If no time offered, please register so we can contact you once a time is arranged
4. If you do not register, we cannot notify you of any time changes, cancellations or further inspection times. Inspections may be cancelled if no one has registered so please ensure you register
Pets
In accordance with the Residential Tenancies Act Clause 71AE Process for tenant seeking consent - the tenant must apply, in writing, to the lessor, for the lessors' consent to keep pet/s at this property.
The lessor may impose conditions on consent, including but not limited to, the number and type of animals being kept, and any cost involved for rectification required as a result of the animal.
Rent
At Blackshaw Gungahlin we are pleased to offer our tenants flexible rental payment options including weekly, fortnightly or monthly payments to coincide with your pay cycle. Ask us for details.
Disclaimer: All care has been taken in the preparation of this marketing material, and details have been obtained from sources we believe to be reliable. Blackshaw do not however guarantee the accuracy of the information, nor accept liability for any errors. Interested persons should rely solely on their own enquiries.
Read MoreSet over three storeys, the ground floor offers a double tandem garage. The first floor is light and bright with a corner balcony surrounding the kitchen and living/dining space, with split system air conditioning. Also located on this floor is a European style laundry with dryer included, a third toilet with hand basin and third bedroom with its own private balcony, and built in wardrobe.
On the second floor are bedrooms one and two, both with built in wardrobes and split system air conditioners, plus the main bathroom. The main bedroom has it's own large wrap around balcony, plus ensuite bathroom.
• 1km walk to Franklin Woolworths and Shops
• Minutes' drive to Gungahlin Town Centre
• Open plan, bright kitchen, living and dining area with wrap around balcony
• Kitchen with dishwasher and gas cooktop
• Split system air conditioning units in the living area and both upstairs bedrooms
• European style laundry with dryer included
• Third toilet conveniently located behind the kitchen
• First floor third bedroom with private balcony
• Second floor two bedrooms with built in wardrobes and split system air conditioners
• Main bedroom with ensuite bathroom and wrap around balcony
• Main bathroom located alongside the second bedroom
• Two linen closets
• Double tandem garage
Additional Information
• Energy Efficiency Rating 6 Stars
• The property complies with the minimum ceiling insulation standard
• The premises may be made accessible for individuals with a disability – Individuals must rely upon their own inspection and investigations to determine suitability before applying
• Embedded Networks – Not applicable
Available 24th November 2025
Inspection
(www.blackshaw.com.au and www.allhomes.com.au only)
1. Click on the "BOOK INSPECTION" button
2. Register to join an existing inspection
3. If no time offered, please register so we can contact you once a time is arranged
4. If you do not register, we cannot notify you of any time changes, cancellations or further inspection times. Inspections may be cancelled if no one has registered so please ensure you register
Pets
In accordance with the Residential Tenancies Act Clause 71AE Process for tenant seeking consent - the tenant must apply, in writing, to the lessor, for the lessors' consent to keep pet/s at this property.
The lessor may impose conditions on consent, including but not limited to, the number and type of animals being kept, and any cost involved for rectification required as a result of the animal.
Rent
At Blackshaw Gungahlin we are pleased to offer our tenants flexible rental payment options including weekly, fortnightly or monthly payments to coincide with your pay cycle. Ask us for details.
Disclaimer: All care has been taken in the preparation of this marketing material, and details have been obtained from sources we believe to be reliable. Blackshaw do not however guarantee the accuracy of the information, nor accept liability for any errors. Interested persons should rely solely on their own enquiries.
Inspect
Contact agent
Listing agent
Conveniently located opposite the Well Station Drive Light Rail Station, a 1km walk to the Franklin shops including Woolworths, restaurants and specialty stores (including Goodberry's!), and only minutes' drive to Gungahlin Town Centre.
Set over three storeys, the ground floor offers a double tandem garage. The first floor is light and bright with a corner balcony surrounding the kitchen and living/dining space, with split system air conditioning. Also located on this floor is a European style laundry with dryer included, a third toilet with hand basin and third bedroom with its own private balcony, and built in wardrobe.
On the second floor are bedrooms one and two, both with built in wardrobes and split system air conditioners, plus the main bathroom. The main bedroom has it's own large wrap around balcony, plus ensuite bathroom.
• 1km walk to Franklin Woolworths and Shops
• Minutes' drive to Gungahlin Town Centre
• Open plan, bright kitchen, living and dining area with wrap around balcony
• Kitchen with dishwasher and gas cooktop
• Split system air conditioning units in the living area and both upstairs bedrooms
• European style laundry with dryer included
• Third toilet conveniently located behind the kitchen
• First floor third bedroom with private balcony
• Second floor two bedrooms with built in wardrobes and split system air conditioners
• Main bedroom with ensuite bathroom and wrap around balcony
• Main bathroom located alongside the second bedroom
• Two linen closets
• Double tandem garage
Additional Information
• Energy Efficiency Rating 6 Stars
• The property complies with the minimum ceiling insulation standard
• The premises may be made accessible for individuals with a disability – Individuals must rely upon their own inspection and investigations to determine suitability before applying
• Embedded Networks – Not applicable
Available 24th November 2025
Inspection
(www.blackshaw.com.au and www.allhomes.com.au only)
1. Click on the "BOOK INSPECTION" button
2. Register to join an existing inspection
3. If no time offered, please register so we can contact you once a time is arranged
4. If you do not register, we cannot notify you of any time changes, cancellations or further inspection times. Inspections may be cancelled if no one has registered so please ensure you register
Pets
In accordance with the Residential Tenancies Act Clause 71AE Process for tenant seeking consent - the tenant must apply, in writing, to the lessor, for the lessors' consent to keep pet/s at this property.
The lessor may impose conditions on consent, including but not limited to, the number and type of animals being kept, and any cost involved for rectification required as a result of the animal.
Rent
At Blackshaw Gungahlin we are pleased to offer our tenants flexible rental payment options including weekly, fortnightly or monthly payments to coincide with your pay cycle. Ask us for details.
Disclaimer: All care has been taken in the preparation of this marketing material, and details have been obtained from sources we believe to be reliable. Blackshaw do not however guarantee the accuracy of the information, nor accept liability for any errors. Interested persons should rely solely on their own enquiries.
Read MoreSet over three storeys, the ground floor offers a double tandem garage. The first floor is light and bright with a corner balcony surrounding the kitchen and living/dining space, with split system air conditioning. Also located on this floor is a European style laundry with dryer included, a third toilet with hand basin and third bedroom with its own private balcony, and built in wardrobe.
On the second floor are bedrooms one and two, both with built in wardrobes and split system air conditioners, plus the main bathroom. The main bedroom has it's own large wrap around balcony, plus ensuite bathroom.
• 1km walk to Franklin Woolworths and Shops
• Minutes' drive to Gungahlin Town Centre
• Open plan, bright kitchen, living and dining area with wrap around balcony
• Kitchen with dishwasher and gas cooktop
• Split system air conditioning units in the living area and both upstairs bedrooms
• European style laundry with dryer included
• Third toilet conveniently located behind the kitchen
• First floor third bedroom with private balcony
• Second floor two bedrooms with built in wardrobes and split system air conditioners
• Main bedroom with ensuite bathroom and wrap around balcony
• Main bathroom located alongside the second bedroom
• Two linen closets
• Double tandem garage
Additional Information
• Energy Efficiency Rating 6 Stars
• The property complies with the minimum ceiling insulation standard
• The premises may be made accessible for individuals with a disability – Individuals must rely upon their own inspection and investigations to determine suitability before applying
• Embedded Networks – Not applicable
Available 24th November 2025
Inspection
(www.blackshaw.com.au and www.allhomes.com.au only)
1. Click on the "BOOK INSPECTION" button
2. Register to join an existing inspection
3. If no time offered, please register so we can contact you once a time is arranged
4. If you do not register, we cannot notify you of any time changes, cancellations or further inspection times. Inspections may be cancelled if no one has registered so please ensure you register
Pets
In accordance with the Residential Tenancies Act Clause 71AE Process for tenant seeking consent - the tenant must apply, in writing, to the lessor, for the lessors' consent to keep pet/s at this property.
The lessor may impose conditions on consent, including but not limited to, the number and type of animals being kept, and any cost involved for rectification required as a result of the animal.
Rent
At Blackshaw Gungahlin we are pleased to offer our tenants flexible rental payment options including weekly, fortnightly or monthly payments to coincide with your pay cycle. Ask us for details.
Disclaimer: All care has been taken in the preparation of this marketing material, and details have been obtained from sources we believe to be reliable. Blackshaw do not however guarantee the accuracy of the information, nor accept liability for any errors. Interested persons should rely solely on their own enquiries.

Location
39/84 Kings Canyon Street
Harrison ACT 2914
Details
3
2
2
EER: 6.0
Townhouse
$675 per week
Bond: | $2,700.00 |
Available: | 24.11.2025 |
Conveniently located opposite the Well Station Drive Light Rail Station, a 1km walk to the Franklin shops including Woolworths, restaurants and specialty stores (including Goodberry's!), and only minutes' drive to Gungahlin Town Centre.
Set over three storeys, the ground floor offers a double tandem garage. The first floor is light and bright with a corner balcony surrounding the kitchen and living/dining space, with split system air conditioning. Also located on this floor is a European style laundry with dryer included, a third toilet with hand basin and third bedroom with its own private balcony, and built in wardrobe.
On the second floor are bedrooms one and two, both with built in wardrobes and split system air conditioners, plus the main bathroom. The main bedroom has it's own large wrap around balcony, plus ensuite bathroom.
• 1km walk to Franklin Woolworths and Shops
• Minutes' drive to Gungahlin Town Centre
• Open plan, bright kitchen, living and dining area with wrap around balcony
• Kitchen with dishwasher and gas cooktop
• Split system air conditioning units in the living area and both upstairs bedrooms
• European style laundry with dryer included
• Third toilet conveniently located behind the kitchen
• First floor third bedroom with private balcony
• Second floor two bedrooms with built in wardrobes and split system air conditioners
• Main bedroom with ensuite bathroom and wrap around balcony
• Main bathroom located alongside the second bedroom
• Two linen closets
• Double tandem garage
Additional Information
• Energy Efficiency Rating 6 Stars
• The property complies with the minimum ceiling insulation standard
• The premises may be made accessible for individuals with a disability – Individuals must rely upon their own inspection and investigations to determine suitability before applying
• Embedded Networks – Not applicable
Available 24th November 2025
Inspection
(www.blackshaw.com.au and www.allhomes.com.au only)
1. Click on the "BOOK INSPECTION" button
2. Register to join an existing inspection
3. If no time offered, please register so we can contact you once a time is arranged
4. If you do not register, we cannot notify you of any time changes, cancellations or further inspection times. Inspections may be cancelled if no one has registered so please ensure you register
Pets
In accordance with the Residential Tenancies Act Clause 71AE Process for tenant seeking consent - the tenant must apply, in writing, to the lessor, for the lessors' consent to keep pet/s at this property.
The lessor may impose conditions on consent, including but not limited to, the number and type of animals being kept, and any cost involved for rectification required as a result of the animal.
Rent
At Blackshaw Gungahlin we are pleased to offer our tenants flexible rental payment options including weekly, fortnightly or monthly payments to coincide with your pay cycle. Ask us for details.
Disclaimer: All care has been taken in the preparation of this marketing material, and details have been obtained from sources we believe to be reliable. Blackshaw do not however guarantee the accuracy of the information, nor accept liability for any errors. Interested persons should rely solely on their own enquiries.
Read MoreSet over three storeys, the ground floor offers a double tandem garage. The first floor is light and bright with a corner balcony surrounding the kitchen and living/dining space, with split system air conditioning. Also located on this floor is a European style laundry with dryer included, a third toilet with hand basin and third bedroom with its own private balcony, and built in wardrobe.
On the second floor are bedrooms one and two, both with built in wardrobes and split system air conditioners, plus the main bathroom. The main bedroom has it's own large wrap around balcony, plus ensuite bathroom.
• 1km walk to Franklin Woolworths and Shops
• Minutes' drive to Gungahlin Town Centre
• Open plan, bright kitchen, living and dining area with wrap around balcony
• Kitchen with dishwasher and gas cooktop
• Split system air conditioning units in the living area and both upstairs bedrooms
• European style laundry with dryer included
• Third toilet conveniently located behind the kitchen
• First floor third bedroom with private balcony
• Second floor two bedrooms with built in wardrobes and split system air conditioners
• Main bedroom with ensuite bathroom and wrap around balcony
• Main bathroom located alongside the second bedroom
• Two linen closets
• Double tandem garage
Additional Information
• Energy Efficiency Rating 6 Stars
• The property complies with the minimum ceiling insulation standard
• The premises may be made accessible for individuals with a disability – Individuals must rely upon their own inspection and investigations to determine suitability before applying
• Embedded Networks – Not applicable
Available 24th November 2025
Inspection
(www.blackshaw.com.au and www.allhomes.com.au only)
1. Click on the "BOOK INSPECTION" button
2. Register to join an existing inspection
3. If no time offered, please register so we can contact you once a time is arranged
4. If you do not register, we cannot notify you of any time changes, cancellations or further inspection times. Inspections may be cancelled if no one has registered so please ensure you register
Pets
In accordance with the Residential Tenancies Act Clause 71AE Process for tenant seeking consent - the tenant must apply, in writing, to the lessor, for the lessors' consent to keep pet/s at this property.
The lessor may impose conditions on consent, including but not limited to, the number and type of animals being kept, and any cost involved for rectification required as a result of the animal.
Rent
At Blackshaw Gungahlin we are pleased to offer our tenants flexible rental payment options including weekly, fortnightly or monthly payments to coincide with your pay cycle. Ask us for details.
Disclaimer: All care has been taken in the preparation of this marketing material, and details have been obtained from sources we believe to be reliable. Blackshaw do not however guarantee the accuracy of the information, nor accept liability for any errors. Interested persons should rely solely on their own enquiries.
Inspect
Contact agent