Spacious Four-Bedroom Townhouse with Dual Master Suites and Lake Views
Location
32 Chanter Terrace
Coombs ACT 2611
Details
4
3
2
Townhouse
$800 per week 
Available:  | Monday, 24 Nov 2025  | 
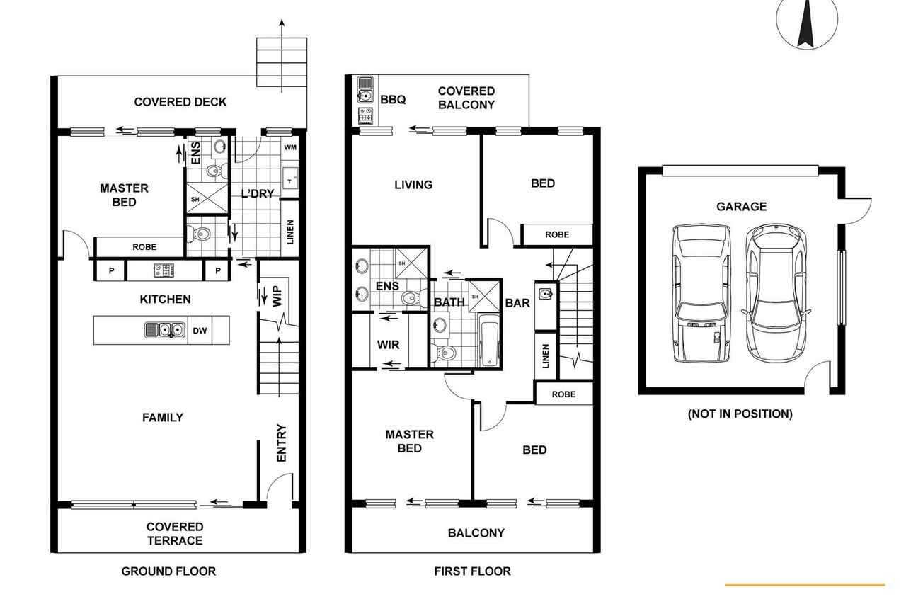
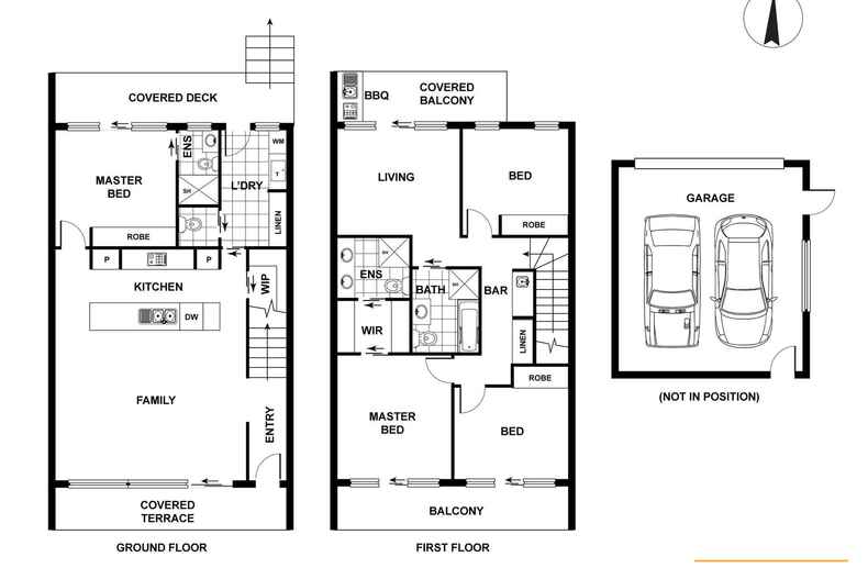
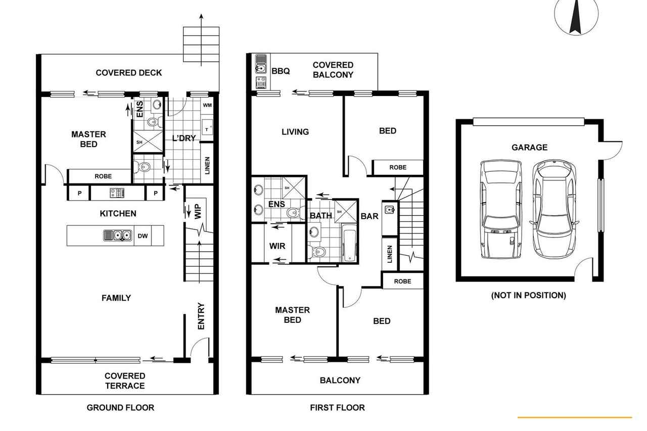
Peaceful and inviting with a bright and airy layout, this contemporary, oversized four-bedroom, three-bathroom townhouse promises a comfortable, low maintenance and relaxed lifestyle. Resort style living in an ultra-convenient location, this spacious property also has a multipurpose room and balcony on the upper floor, overlooking a lake, fed by the Molonglo River.
There are two master-suites, one located downstairs with an ensuite, and the other located upstairs with a second ensuite and walk-through robe. There are two further bedrooms upstairs, a main bathroom, kitchenette and multipurpose room: the ideal teenager's retreat. There is a guest bathroom on the lower level, accessed through an oversized laundry with a large linen press.
Decorated in neutral tones, with central, open plan kitchen, gas cooking and breakfast bar. The external areas feature merbau timber accents, and a rear merbau timber deck and timber stairs to access a large double garage and a small easy-care courtyard.
Situated in a quiet street close to the lake, just minutes to Weston Creek shopping centre and surrounding schools, this property is just 15 minutes to the City, with a local Coombs supermarket underway.
• 6-star EER, with ducted reverse cycle air conditioning throughout
• Low maintenance interiors, fresh neutral palette throughout
• Open layout provides access to the balcony.
• Modern and light-filled kitchen fitted with a desirable 900mm gas cooktop and
oven.
• Four bedroom design includes generous built-in wardrobes.
• Two ensuites, full length opening doors to courtyard
• Stylish full bathroom reveals bathtub/shower, Powder room downstairs.
• Ideal north easterly aspect allows plentiful natural sunshine.
• Internal laundry, ample storage areas
• High Ceilings and double glazed windows throughout
• Built in gas line for natural gas outdoor BBQ
• Well maintained complex with pleasant surroundings close to the lake.
• Double lock-up garage with rear lane access, NBN installed
• Minutes to local schools, plus Weston Creek shopping centre, and cycling/walking trails
• Plenty of space in a townhouse setting
Available 24 November 2025
Tenants must seek Landlord's consent for pets.
Energy efficiency rating is 6.
The property does comply with the minimum ceiling insulation standard.
WISH TO INSPECT?
1. Click on the "BOOK INSPECTION" button
2. Register to join an existing inspection
3. If no time offered, please register so we can contact you once a time is arranged
4. If you do not register, we cannot notify you of any time changes, cancellations or further inspection times.
Disclaimer: All care has been taken in the preparation of this marketing material, and details have been obtained from sources we believe to be reliable. Blackshaw do not however guarantee the accuracy of the information, nor accept liability for any errors. Interested persons should rely solely on their own enquiries.
Read MoreThere are two master-suites, one located downstairs with an ensuite, and the other located upstairs with a second ensuite and walk-through robe. There are two further bedrooms upstairs, a main bathroom, kitchenette and multipurpose room: the ideal teenager's retreat. There is a guest bathroom on the lower level, accessed through an oversized laundry with a large linen press.
Decorated in neutral tones, with central, open plan kitchen, gas cooking and breakfast bar. The external areas feature merbau timber accents, and a rear merbau timber deck and timber stairs to access a large double garage and a small easy-care courtyard.
Situated in a quiet street close to the lake, just minutes to Weston Creek shopping centre and surrounding schools, this property is just 15 minutes to the City, with a local Coombs supermarket underway.
• 6-star EER, with ducted reverse cycle air conditioning throughout
• Low maintenance interiors, fresh neutral palette throughout
• Open layout provides access to the balcony.
• Modern and light-filled kitchen fitted with a desirable 900mm gas cooktop and
oven.
• Four bedroom design includes generous built-in wardrobes.
• Two ensuites, full length opening doors to courtyard
• Stylish full bathroom reveals bathtub/shower, Powder room downstairs.
• Ideal north easterly aspect allows plentiful natural sunshine.
• Internal laundry, ample storage areas
• High Ceilings and double glazed windows throughout
• Built in gas line for natural gas outdoor BBQ
• Well maintained complex with pleasant surroundings close to the lake.
• Double lock-up garage with rear lane access, NBN installed
• Minutes to local schools, plus Weston Creek shopping centre, and cycling/walking trails
• Plenty of space in a townhouse setting
Available 24 November 2025
Tenants must seek Landlord's consent for pets.
Energy efficiency rating is 6.
The property does comply with the minimum ceiling insulation standard.
WISH TO INSPECT?
1. Click on the "BOOK INSPECTION" button
2. Register to join an existing inspection
3. If no time offered, please register so we can contact you once a time is arranged
4. If you do not register, we cannot notify you of any time changes, cancellations or further inspection times.
Disclaimer: All care has been taken in the preparation of this marketing material, and details have been obtained from sources we believe to be reliable. Blackshaw do not however guarantee the accuracy of the information, nor accept liability for any errors. Interested persons should rely solely on their own enquiries.
Inspect
Contact agent
Listing agents
Peaceful and inviting with a bright and airy layout, this contemporary, oversized four-bedroom, three-bathroom townhouse promises a comfortable, low maintenance and relaxed lifestyle. Resort style living in an ultra-convenient location, this spacious property also has a multipurpose room and balcony on the upper floor, overlooking a lake, fed by the Molonglo River.
There are two master-suites, one located downstairs with an ensuite, and the other located upstairs with a second ensuite and walk-through robe. There are two further bedrooms upstairs, a main bathroom, kitchenette and multipurpose room: the ideal teenager's retreat. There is a guest bathroom on the lower level, accessed through an oversized laundry with a large linen press.
Decorated in neutral tones, with central, open plan kitchen, gas cooking and breakfast bar. The external areas feature merbau timber accents, and a rear merbau timber deck and timber stairs to access a large double garage and a small easy-care courtyard.
Situated in a quiet street close to the lake, just minutes to Weston Creek shopping centre and surrounding schools, this property is just 15 minutes to the City, with a local Coombs supermarket underway.
• 6-star EER, with ducted reverse cycle air conditioning throughout
• Low maintenance interiors, fresh neutral palette throughout
• Open layout provides access to the balcony.
• Modern and light-filled kitchen fitted with a desirable 900mm gas cooktop and
oven.
• Four bedroom design includes generous built-in wardrobes.
• Two ensuites, full length opening doors to courtyard
• Stylish full bathroom reveals bathtub/shower, Powder room downstairs.
• Ideal north easterly aspect allows plentiful natural sunshine.
• Internal laundry, ample storage areas
• High Ceilings and double glazed windows throughout
• Built in gas line for natural gas outdoor BBQ
• Well maintained complex with pleasant surroundings close to the lake.
• Double lock-up garage with rear lane access, NBN installed
• Minutes to local schools, plus Weston Creek shopping centre, and cycling/walking trails
• Plenty of space in a townhouse setting
Available 24 November 2025
Tenants must seek Landlord's consent for pets.
Energy efficiency rating is 6.
The property does comply with the minimum ceiling insulation standard.
WISH TO INSPECT?
1. Click on the "BOOK INSPECTION" button
2. Register to join an existing inspection
3. If no time offered, please register so we can contact you once a time is arranged
4. If you do not register, we cannot notify you of any time changes, cancellations or further inspection times.
Disclaimer: All care has been taken in the preparation of this marketing material, and details have been obtained from sources we believe to be reliable. Blackshaw do not however guarantee the accuracy of the information, nor accept liability for any errors. Interested persons should rely solely on their own enquiries.
Read MoreThere are two master-suites, one located downstairs with an ensuite, and the other located upstairs with a second ensuite and walk-through robe. There are two further bedrooms upstairs, a main bathroom, kitchenette and multipurpose room: the ideal teenager's retreat. There is a guest bathroom on the lower level, accessed through an oversized laundry with a large linen press.
Decorated in neutral tones, with central, open plan kitchen, gas cooking and breakfast bar. The external areas feature merbau timber accents, and a rear merbau timber deck and timber stairs to access a large double garage and a small easy-care courtyard.
Situated in a quiet street close to the lake, just minutes to Weston Creek shopping centre and surrounding schools, this property is just 15 minutes to the City, with a local Coombs supermarket underway.
• 6-star EER, with ducted reverse cycle air conditioning throughout
• Low maintenance interiors, fresh neutral palette throughout
• Open layout provides access to the balcony.
• Modern and light-filled kitchen fitted with a desirable 900mm gas cooktop and
oven.
• Four bedroom design includes generous built-in wardrobes.
• Two ensuites, full length opening doors to courtyard
• Stylish full bathroom reveals bathtub/shower, Powder room downstairs.
• Ideal north easterly aspect allows plentiful natural sunshine.
• Internal laundry, ample storage areas
• High Ceilings and double glazed windows throughout
• Built in gas line for natural gas outdoor BBQ
• Well maintained complex with pleasant surroundings close to the lake.
• Double lock-up garage with rear lane access, NBN installed
• Minutes to local schools, plus Weston Creek shopping centre, and cycling/walking trails
• Plenty of space in a townhouse setting
Available 24 November 2025
Tenants must seek Landlord's consent for pets.
Energy efficiency rating is 6.
The property does comply with the minimum ceiling insulation standard.
WISH TO INSPECT?
1. Click on the "BOOK INSPECTION" button
2. Register to join an existing inspection
3. If no time offered, please register so we can contact you once a time is arranged
4. If you do not register, we cannot notify you of any time changes, cancellations or further inspection times.
Disclaimer: All care has been taken in the preparation of this marketing material, and details have been obtained from sources we believe to be reliable. Blackshaw do not however guarantee the accuracy of the information, nor accept liability for any errors. Interested persons should rely solely on their own enquiries.

Location
32 Chanter Terrace
Coombs ACT 2611
Details
4
3
2
Townhouse
$800 per week 
Available:  | 24.11.2025  | 
Peaceful and inviting with a bright and airy layout, this contemporary, oversized four-bedroom, three-bathroom townhouse promises a comfortable, low maintenance and relaxed lifestyle. Resort style living in an ultra-convenient location, this spacious property also has a multipurpose room and balcony on the upper floor, overlooking a lake, fed by the Molonglo River.
There are two master-suites, one located downstairs with an ensuite, and the other located upstairs with a second ensuite and walk-through robe. There are two further bedrooms upstairs, a main bathroom, kitchenette and multipurpose room: the ideal teenager's retreat. There is a guest bathroom on the lower level, accessed through an oversized laundry with a large linen press.
Decorated in neutral tones, with central, open plan kitchen, gas cooking and breakfast bar. The external areas feature merbau timber accents, and a rear merbau timber deck and timber stairs to access a large double garage and a small easy-care courtyard.
Situated in a quiet street close to the lake, just minutes to Weston Creek shopping centre and surrounding schools, this property is just 15 minutes to the City, with a local Coombs supermarket underway.
• 6-star EER, with ducted reverse cycle air conditioning throughout
• Low maintenance interiors, fresh neutral palette throughout
• Open layout provides access to the balcony.
• Modern and light-filled kitchen fitted with a desirable 900mm gas cooktop and
oven.
• Four bedroom design includes generous built-in wardrobes.
• Two ensuites, full length opening doors to courtyard
• Stylish full bathroom reveals bathtub/shower, Powder room downstairs.
• Ideal north easterly aspect allows plentiful natural sunshine.
• Internal laundry, ample storage areas
• High Ceilings and double glazed windows throughout
• Built in gas line for natural gas outdoor BBQ
• Well maintained complex with pleasant surroundings close to the lake.
• Double lock-up garage with rear lane access, NBN installed
• Minutes to local schools, plus Weston Creek shopping centre, and cycling/walking trails
• Plenty of space in a townhouse setting
Available 24 November 2025
Tenants must seek Landlord's consent for pets.
Energy efficiency rating is 6.
The property does comply with the minimum ceiling insulation standard.
WISH TO INSPECT?
1. Click on the "BOOK INSPECTION" button
2. Register to join an existing inspection
3. If no time offered, please register so we can contact you once a time is arranged
4. If you do not register, we cannot notify you of any time changes, cancellations or further inspection times.
Disclaimer: All care has been taken in the preparation of this marketing material, and details have been obtained from sources we believe to be reliable. Blackshaw do not however guarantee the accuracy of the information, nor accept liability for any errors. Interested persons should rely solely on their own enquiries.
Read MoreThere are two master-suites, one located downstairs with an ensuite, and the other located upstairs with a second ensuite and walk-through robe. There are two further bedrooms upstairs, a main bathroom, kitchenette and multipurpose room: the ideal teenager's retreat. There is a guest bathroom on the lower level, accessed through an oversized laundry with a large linen press.
Decorated in neutral tones, with central, open plan kitchen, gas cooking and breakfast bar. The external areas feature merbau timber accents, and a rear merbau timber deck and timber stairs to access a large double garage and a small easy-care courtyard.
Situated in a quiet street close to the lake, just minutes to Weston Creek shopping centre and surrounding schools, this property is just 15 minutes to the City, with a local Coombs supermarket underway.
• 6-star EER, with ducted reverse cycle air conditioning throughout
• Low maintenance interiors, fresh neutral palette throughout
• Open layout provides access to the balcony.
• Modern and light-filled kitchen fitted with a desirable 900mm gas cooktop and
oven.
• Four bedroom design includes generous built-in wardrobes.
• Two ensuites, full length opening doors to courtyard
• Stylish full bathroom reveals bathtub/shower, Powder room downstairs.
• Ideal north easterly aspect allows plentiful natural sunshine.
• Internal laundry, ample storage areas
• High Ceilings and double glazed windows throughout
• Built in gas line for natural gas outdoor BBQ
• Well maintained complex with pleasant surroundings close to the lake.
• Double lock-up garage with rear lane access, NBN installed
• Minutes to local schools, plus Weston Creek shopping centre, and cycling/walking trails
• Plenty of space in a townhouse setting
Available 24 November 2025
Tenants must seek Landlord's consent for pets.
Energy efficiency rating is 6.
The property does comply with the minimum ceiling insulation standard.
WISH TO INSPECT?
1. Click on the "BOOK INSPECTION" button
2. Register to join an existing inspection
3. If no time offered, please register so we can contact you once a time is arranged
4. If you do not register, we cannot notify you of any time changes, cancellations or further inspection times.
Disclaimer: All care has been taken in the preparation of this marketing material, and details have been obtained from sources we believe to be reliable. Blackshaw do not however guarantee the accuracy of the information, nor accept liability for any errors. Interested persons should rely solely on their own enquiries.
Inspect
Contact agent
                












































