Easy family living
Leased
Location
1 Rees Place
Wanniassa ACT 2903
Details
4
1
2
EER: 1.0
House
$640 per week
Bond: | $2,560.00 |
Available: | Now |
Located in a quiet and convenient enclave of Wanniassa this well presented family home is ready to enjoy.
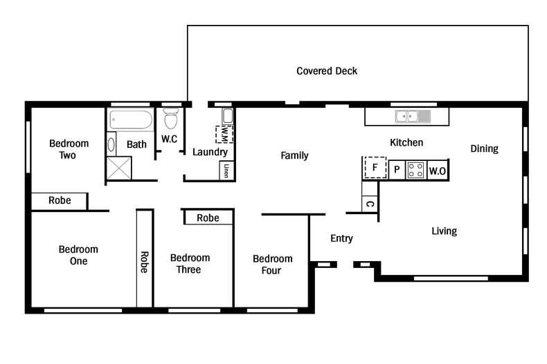
This single level home offers four bedrooms plus generous formal and informal living spaces. The renovated kitchen is ideal for family living and entertaining and adjoins the family room which opens to a large covered deck.
Large enclosed back garden offers a safe space for children to play. Quality features include ducted gas heating, split system reverse cycle air-conditioner and excellent additional storage. Car accommodation is provided by a double lock-up garage. Well-presented throughout and close to schools, shops, amenities and recreation space this is an ideal lifestyle offering.
FEATURES:
• Four bedroom home(three with built-in robes)
• Single level design
• Spacious formal and informal living areas
• Renovated kitchen
• Ducted gas heating
• Split system reverse cycle air conditioner
• Good storage
• Double garage
• Surrounded by quality homes
• Generous block with easy care gardens
• Close to schools, shops, amenities and recreation space
Available 30th September
Last Known EER was: 1.0
In accordance with the Residential Tenancies Act Clause 71AE Process for tenant seeking consent - the tenant must apply, in writing, to the lessor, for the lessors' consent to keep pet/s at this property.
Read MoreThis single level home offers four bedrooms plus generous formal and informal living spaces. The renovated kitchen is ideal for family living and entertaining and adjoins the family room which opens to a large covered deck.
Large enclosed back garden offers a safe space for children to play. Quality features include ducted gas heating, split system reverse cycle air-conditioner and excellent additional storage. Car accommodation is provided by a double lock-up garage. Well-presented throughout and close to schools, shops, amenities and recreation space this is an ideal lifestyle offering.
FEATURES:
• Four bedroom home(three with built-in robes)
• Single level design
• Spacious formal and informal living areas
• Renovated kitchen
• Ducted gas heating
• Split system reverse cycle air conditioner
• Good storage
• Double garage
• Surrounded by quality homes
• Generous block with easy care gardens
• Close to schools, shops, amenities and recreation space
Available 30th September
Last Known EER was: 1.0
In accordance with the Residential Tenancies Act Clause 71AE Process for tenant seeking consent - the tenant must apply, in writing, to the lessor, for the lessors' consent to keep pet/s at this property.
Inspect
Contact agent
Listing agent
Located in a quiet and convenient enclave of Wanniassa this well presented family home is ready to enjoy.
This single level home offers four bedrooms plus generous formal and informal living spaces. The renovated kitchen is ideal for family living and entertaining and adjoins the family room which opens to a large covered deck.
Large enclosed back garden offers a safe space for children to play. Quality features include ducted gas heating, split system reverse cycle air-conditioner and excellent additional storage. Car accommodation is provided by a double lock-up garage. Well-presented throughout and close to schools, shops, amenities and recreation space this is an ideal lifestyle offering.
FEATURES:
• Four bedroom home(three with built-in robes)
• Single level design
• Spacious formal and informal living areas
• Renovated kitchen
• Ducted gas heating
• Split system reverse cycle air conditioner
• Good storage
• Double garage
• Surrounded by quality homes
• Generous block with easy care gardens
• Close to schools, shops, amenities and recreation space
Available 30th September
Last Known EER was: 1.0
In accordance with the Residential Tenancies Act Clause 71AE Process for tenant seeking consent - the tenant must apply, in writing, to the lessor, for the lessors' consent to keep pet/s at this property.
Read MoreThis single level home offers four bedrooms plus generous formal and informal living spaces. The renovated kitchen is ideal for family living and entertaining and adjoins the family room which opens to a large covered deck.
Large enclosed back garden offers a safe space for children to play. Quality features include ducted gas heating, split system reverse cycle air-conditioner and excellent additional storage. Car accommodation is provided by a double lock-up garage. Well-presented throughout and close to schools, shops, amenities and recreation space this is an ideal lifestyle offering.
FEATURES:
• Four bedroom home(three with built-in robes)
• Single level design
• Spacious formal and informal living areas
• Renovated kitchen
• Ducted gas heating
• Split system reverse cycle air conditioner
• Good storage
• Double garage
• Surrounded by quality homes
• Generous block with easy care gardens
• Close to schools, shops, amenities and recreation space
Available 30th September
Last Known EER was: 1.0
In accordance with the Residential Tenancies Act Clause 71AE Process for tenant seeking consent - the tenant must apply, in writing, to the lessor, for the lessors' consent to keep pet/s at this property.

Location
1 Rees Place
Wanniassa ACT 2903
Details
4
1
2
EER: 1.0
House
$640 per week
Bond: | $2,560.00 |
Available: | Now |
Located in a quiet and convenient enclave of Wanniassa this well presented family home is ready to enjoy.
This single level home offers four bedrooms plus generous formal and informal living spaces. The renovated kitchen is ideal for family living and entertaining and adjoins the family room which opens to a large covered deck.
Large enclosed back garden offers a safe space for children to play. Quality features include ducted gas heating, split system reverse cycle air-conditioner and excellent additional storage. Car accommodation is provided by a double lock-up garage. Well-presented throughout and close to schools, shops, amenities and recreation space this is an ideal lifestyle offering.
FEATURES:
• Four bedroom home(three with built-in robes)
• Single level design
• Spacious formal and informal living areas
• Renovated kitchen
• Ducted gas heating
• Split system reverse cycle air conditioner
• Good storage
• Double garage
• Surrounded by quality homes
• Generous block with easy care gardens
• Close to schools, shops, amenities and recreation space
Available 30th September
Last Known EER was: 1.0
In accordance with the Residential Tenancies Act Clause 71AE Process for tenant seeking consent - the tenant must apply, in writing, to the lessor, for the lessors' consent to keep pet/s at this property.
Read MoreThis single level home offers four bedrooms plus generous formal and informal living spaces. The renovated kitchen is ideal for family living and entertaining and adjoins the family room which opens to a large covered deck.
Large enclosed back garden offers a safe space for children to play. Quality features include ducted gas heating, split system reverse cycle air-conditioner and excellent additional storage. Car accommodation is provided by a double lock-up garage. Well-presented throughout and close to schools, shops, amenities and recreation space this is an ideal lifestyle offering.
FEATURES:
• Four bedroom home(three with built-in robes)
• Single level design
• Spacious formal and informal living areas
• Renovated kitchen
• Ducted gas heating
• Split system reverse cycle air conditioner
• Good storage
• Double garage
• Surrounded by quality homes
• Generous block with easy care gardens
• Close to schools, shops, amenities and recreation space
Available 30th September
Last Known EER was: 1.0
In accordance with the Residential Tenancies Act Clause 71AE Process for tenant seeking consent - the tenant must apply, in writing, to the lessor, for the lessors' consent to keep pet/s at this property.
Inspect
Contact agent













































