Luxury One Bedroom Apartment In Prime Location
Location
104/15 Provan Street
Campbell ACT 2612
Details
1
1
1
Apartment
$570 per week
Available: | Wednesday, 25 Mar 2026 |
Featuring beautiful light oak flooring and expansive floor-to-ceiling windows, this residence offers a tranquil and welcoming space to call home.
Prime Location Highlights include being just steps away from The Pedlar Pub, Teddy Pickers Cafe, Lanterne Rooms Restaurant, and Lake Burley Griffin. Additionally, you'll have easy access to Canberra City and Russell Offices, making commuting and leisure activities highly convenient.
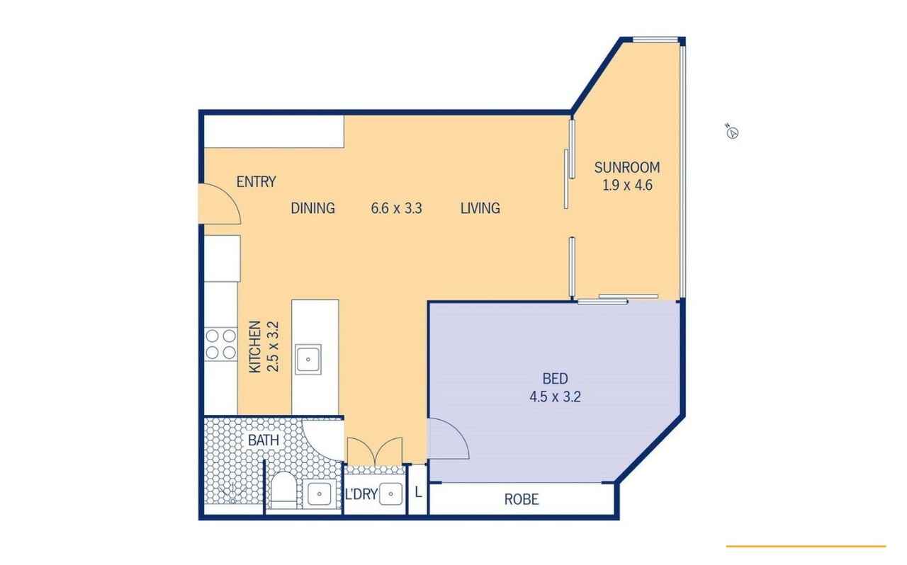
The apartment includes essential amenities such as a secure parking space, a spacious bedroom with a built-in wardrobe. The European laundry with a dryer adds to the practicality and convenience of this home.
Features Include:
- Enclosed balcony
- Built in wardrobe
- Ducted heating and cooling
- European Laundry
- Dishwasher
- Basement car parking
A welcoming entry features extensive built-in storage, while the spacious Winter Garden provides a versatile indoor-outdoor retreat - perfect for relaxing or entertaining while enjoying elevated parkland views and natural light throughout the year.
Available from 25th March 2026
Energy Efficient Rating: 6.0
This property is exempt from the minimum ceiling insulation standards.
- In accordance with the Residential Tenancies Act Clause 71AE Process for tenant seeking consent - the tenant must apply, in writing, to the lessor, for the lessors' consent to keep pet/s at this property.
- Upon entering the 'BOOK INSPECTION' page, please register your details, even if no open times are displayed and you will be automatically advised of the next available open time.
- Please note all care has been taken in providing the marketing information, Blackshaw Real Estate will not be held liable for any errors in typing or information and you should rely on your own investigation for accuracy.
Read MorePrime Location Highlights include being just steps away from The Pedlar Pub, Teddy Pickers Cafe, Lanterne Rooms Restaurant, and Lake Burley Griffin. Additionally, you'll have easy access to Canberra City and Russell Offices, making commuting and leisure activities highly convenient.
The apartment includes essential amenities such as a secure parking space, a spacious bedroom with a built-in wardrobe. The European laundry with a dryer adds to the practicality and convenience of this home.
Features Include:
- Enclosed balcony
- Built in wardrobe
- Ducted heating and cooling
- European Laundry
- Dishwasher
- Basement car parking
A welcoming entry features extensive built-in storage, while the spacious Winter Garden provides a versatile indoor-outdoor retreat - perfect for relaxing or entertaining while enjoying elevated parkland views and natural light throughout the year.
Available from 25th March 2026
Energy Efficient Rating: 6.0
This property is exempt from the minimum ceiling insulation standards.
- In accordance with the Residential Tenancies Act Clause 71AE Process for tenant seeking consent - the tenant must apply, in writing, to the lessor, for the lessors' consent to keep pet/s at this property.
- Upon entering the 'BOOK INSPECTION' page, please register your details, even if no open times are displayed and you will be automatically advised of the next available open time.
- Please note all care has been taken in providing the marketing information, Blackshaw Real Estate will not be held liable for any errors in typing or information and you should rely on your own investigation for accuracy.
Inspect
Contact agent
Listing agent
Featuring beautiful light oak flooring and expansive floor-to-ceiling windows, this residence offers a tranquil and welcoming space to call home.
Prime Location Highlights include being just steps away from The Pedlar Pub, Teddy Pickers Cafe, Lanterne Rooms Restaurant, and Lake Burley Griffin. Additionally, you'll have easy access to Canberra City and Russell Offices, making commuting and leisure activities highly convenient.
The apartment includes essential amenities such as a secure parking space, a spacious bedroom with a built-in wardrobe. The European laundry with a dryer adds to the practicality and convenience of this home.
Features Include:
- Enclosed balcony
- Built in wardrobe
- Ducted heating and cooling
- European Laundry
- Dishwasher
- Basement car parking
A welcoming entry features extensive built-in storage, while the spacious Winter Garden provides a versatile indoor-outdoor retreat - perfect for relaxing or entertaining while enjoying elevated parkland views and natural light throughout the year.
Available from 25th March 2026
Energy Efficient Rating: 6.0
This property is exempt from the minimum ceiling insulation standards.
- In accordance with the Residential Tenancies Act Clause 71AE Process for tenant seeking consent - the tenant must apply, in writing, to the lessor, for the lessors' consent to keep pet/s at this property.
- Upon entering the 'BOOK INSPECTION' page, please register your details, even if no open times are displayed and you will be automatically advised of the next available open time.
- Please note all care has been taken in providing the marketing information, Blackshaw Real Estate will not be held liable for any errors in typing or information and you should rely on your own investigation for accuracy.
Read MorePrime Location Highlights include being just steps away from The Pedlar Pub, Teddy Pickers Cafe, Lanterne Rooms Restaurant, and Lake Burley Griffin. Additionally, you'll have easy access to Canberra City and Russell Offices, making commuting and leisure activities highly convenient.
The apartment includes essential amenities such as a secure parking space, a spacious bedroom with a built-in wardrobe. The European laundry with a dryer adds to the practicality and convenience of this home.
Features Include:
- Enclosed balcony
- Built in wardrobe
- Ducted heating and cooling
- European Laundry
- Dishwasher
- Basement car parking
A welcoming entry features extensive built-in storage, while the spacious Winter Garden provides a versatile indoor-outdoor retreat - perfect for relaxing or entertaining while enjoying elevated parkland views and natural light throughout the year.
Available from 25th March 2026
Energy Efficient Rating: 6.0
This property is exempt from the minimum ceiling insulation standards.
- In accordance with the Residential Tenancies Act Clause 71AE Process for tenant seeking consent - the tenant must apply, in writing, to the lessor, for the lessors' consent to keep pet/s at this property.
- Upon entering the 'BOOK INSPECTION' page, please register your details, even if no open times are displayed and you will be automatically advised of the next available open time.
- Please note all care has been taken in providing the marketing information, Blackshaw Real Estate will not be held liable for any errors in typing or information and you should rely on your own investigation for accuracy.

Location
104/15 Provan Street
Campbell ACT 2612
Details
1
1
1
Apartment
$570 per week
Available: | 25.03.2026 |
Featuring beautiful light oak flooring and expansive floor-to-ceiling windows, this residence offers a tranquil and welcoming space to call home.
Prime Location Highlights include being just steps away from The Pedlar Pub, Teddy Pickers Cafe, Lanterne Rooms Restaurant, and Lake Burley Griffin. Additionally, you'll have easy access to Canberra City and Russell Offices, making commuting and leisure activities highly convenient.
The apartment includes essential amenities such as a secure parking space, a spacious bedroom with a built-in wardrobe. The European laundry with a dryer adds to the practicality and convenience of this home.
Features Include:
- Enclosed balcony
- Built in wardrobe
- Ducted heating and cooling
- European Laundry
- Dishwasher
- Basement car parking
A welcoming entry features extensive built-in storage, while the spacious Winter Garden provides a versatile indoor-outdoor retreat - perfect for relaxing or entertaining while enjoying elevated parkland views and natural light throughout the year.
Available from 25th March 2026
Energy Efficient Rating: 6.0
This property is exempt from the minimum ceiling insulation standards.
- In accordance with the Residential Tenancies Act Clause 71AE Process for tenant seeking consent - the tenant must apply, in writing, to the lessor, for the lessors' consent to keep pet/s at this property.
- Upon entering the 'BOOK INSPECTION' page, please register your details, even if no open times are displayed and you will be automatically advised of the next available open time.
- Please note all care has been taken in providing the marketing information, Blackshaw Real Estate will not be held liable for any errors in typing or information and you should rely on your own investigation for accuracy.
Read MorePrime Location Highlights include being just steps away from The Pedlar Pub, Teddy Pickers Cafe, Lanterne Rooms Restaurant, and Lake Burley Griffin. Additionally, you'll have easy access to Canberra City and Russell Offices, making commuting and leisure activities highly convenient.
The apartment includes essential amenities such as a secure parking space, a spacious bedroom with a built-in wardrobe. The European laundry with a dryer adds to the practicality and convenience of this home.
Features Include:
- Enclosed balcony
- Built in wardrobe
- Ducted heating and cooling
- European Laundry
- Dishwasher
- Basement car parking
A welcoming entry features extensive built-in storage, while the spacious Winter Garden provides a versatile indoor-outdoor retreat - perfect for relaxing or entertaining while enjoying elevated parkland views and natural light throughout the year.
Available from 25th March 2026
Energy Efficient Rating: 6.0
This property is exempt from the minimum ceiling insulation standards.
- In accordance with the Residential Tenancies Act Clause 71AE Process for tenant seeking consent - the tenant must apply, in writing, to the lessor, for the lessors' consent to keep pet/s at this property.
- Upon entering the 'BOOK INSPECTION' page, please register your details, even if no open times are displayed and you will be automatically advised of the next available open time.
- Please note all care has been taken in providing the marketing information, Blackshaw Real Estate will not be held liable for any errors in typing or information and you should rely on your own investigation for accuracy.
Inspect
Contact agent






