City Close, Country Quiet
Sold
Location
9/9 Crisp Circuit
Bruce ACT 2617
Details
3
2
2
EER: 3.0
House
$640,000
Building size: | 149 sqm (approx) |
Nestled away in the quiet and peaceful complex of Gossan Gardens, this 3 bedroom ensuite townhouse offers a spacious floorplan in an ideal location. Close enough to the Belconnen Town Centre for your convenience, yet further enough to escape the hustle and bustle - this home provides the best of both worlds.
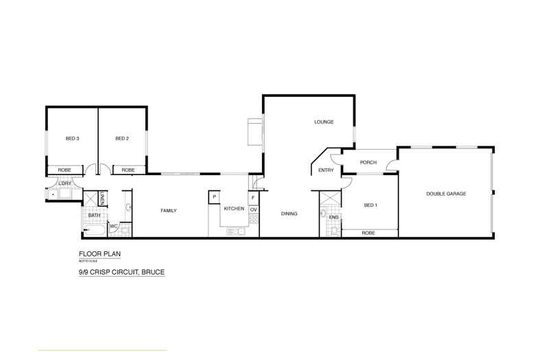
The well thought-out floorplan allows versatile living options. The formal lounge and dining room provide multiple options for entertaining family and guests. The family room off the kitchen adjoins the north-facing courtyard, creating a sun-soaked living area.
If location is important to you, then this home will be sure to pique your interest. Options for schooling include Radford College, University of Canberra, Canberra High School and Lake Ginninderra College to name a few. You will be spoiled for choice deciding on your local shopping centre with Jamison Centre, Westfield Belconnen and a number of local shops around the Belconnen area at your fingertips. Access to a large number of cafes, restaurants and bars is just another added bonus that will be yours to enjoy.
Additional features:
Brivis ducted gas heating
Miele wall oven, rangehood & dishwasher
Blanco gas cooktop
Mitsubishi reverse-cycle airconditioning
Powder room
Separate toilet
Built-in robes to the master and beds 2 & 3
Ducted vacuum
Retractable awning in courtyard
Pull-down awning in courtyard
Courtyard pond
Double garage
Body Corp: $548.04 p/q
Rates: $805.85 p/q
Living size: 149m2
Read MoreThe well thought-out floorplan allows versatile living options. The formal lounge and dining room provide multiple options for entertaining family and guests. The family room off the kitchen adjoins the north-facing courtyard, creating a sun-soaked living area.
If location is important to you, then this home will be sure to pique your interest. Options for schooling include Radford College, University of Canberra, Canberra High School and Lake Ginninderra College to name a few. You will be spoiled for choice deciding on your local shopping centre with Jamison Centre, Westfield Belconnen and a number of local shops around the Belconnen area at your fingertips. Access to a large number of cafes, restaurants and bars is just another added bonus that will be yours to enjoy.
Additional features:
Brivis ducted gas heating
Miele wall oven, rangehood & dishwasher
Blanco gas cooktop
Mitsubishi reverse-cycle airconditioning
Powder room
Separate toilet
Built-in robes to the master and beds 2 & 3
Ducted vacuum
Retractable awning in courtyard
Pull-down awning in courtyard
Courtyard pond
Double garage
Body Corp: $548.04 p/q
Rates: $805.85 p/q
Living size: 149m2
Inspect
Contact agent
Listing agent
Prior to enquiry or inspection of this property you may wish to review our Information Collection Notice and Privacy Policy.
Privacy & Collection NoticeNestled away in the quiet and peaceful complex of Gossan Gardens, this 3 bedroom ensuite townhouse offers a spacious floorplan in an ideal location. Close enough to the Belconnen Town Centre for your convenience, yet further enough to escape the hustle and bustle - this home provides the best of both worlds.
The well thought-out floorplan allows versatile living options. The formal lounge and dining room provide multiple options for entertaining family and guests. The family room off the kitchen adjoins the north-facing courtyard, creating a sun-soaked living area.
If location is important to you, then this home will be sure to pique your interest. Options for schooling include Radford College, University of Canberra, Canberra High School and Lake Ginninderra College to name a few. You will be spoiled for choice deciding on your local shopping centre with Jamison Centre, Westfield Belconnen and a number of local shops around the Belconnen area at your fingertips. Access to a large number of cafes, restaurants and bars is just another added bonus that will be yours to enjoy.
Additional features:
Brivis ducted gas heating
Miele wall oven, rangehood & dishwasher
Blanco gas cooktop
Mitsubishi reverse-cycle airconditioning
Powder room
Separate toilet
Built-in robes to the master and beds 2 & 3
Ducted vacuum
Retractable awning in courtyard
Pull-down awning in courtyard
Courtyard pond
Double garage
Body Corp: $548.04 p/q
Rates: $805.85 p/q
Living size: 149m2
Read MoreThe well thought-out floorplan allows versatile living options. The formal lounge and dining room provide multiple options for entertaining family and guests. The family room off the kitchen adjoins the north-facing courtyard, creating a sun-soaked living area.
If location is important to you, then this home will be sure to pique your interest. Options for schooling include Radford College, University of Canberra, Canberra High School and Lake Ginninderra College to name a few. You will be spoiled for choice deciding on your local shopping centre with Jamison Centre, Westfield Belconnen and a number of local shops around the Belconnen area at your fingertips. Access to a large number of cafes, restaurants and bars is just another added bonus that will be yours to enjoy.
Additional features:
Brivis ducted gas heating
Miele wall oven, rangehood & dishwasher
Blanco gas cooktop
Mitsubishi reverse-cycle airconditioning
Powder room
Separate toilet
Built-in robes to the master and beds 2 & 3
Ducted vacuum
Retractable awning in courtyard
Pull-down awning in courtyard
Courtyard pond
Double garage
Body Corp: $548.04 p/q
Rates: $805.85 p/q
Living size: 149m2

Location
9/9 Crisp Circuit
Bruce ACT 2617
Details
3
2
2
EER: 3.0
House
$640,000
Building size: | 149 sqm (approx) |
Nestled away in the quiet and peaceful complex of Gossan Gardens, this 3 bedroom ensuite townhouse offers a spacious floorplan in an ideal location. Close enough to the Belconnen Town Centre for your convenience, yet further enough to escape the hustle and bustle - this home provides the best of both worlds.
The well thought-out floorplan allows versatile living options. The formal lounge and dining room provide multiple options for entertaining family and guests. The family room off the kitchen adjoins the north-facing courtyard, creating a sun-soaked living area.
If location is important to you, then this home will be sure to pique your interest. Options for schooling include Radford College, University of Canberra, Canberra High School and Lake Ginninderra College to name a few. You will be spoiled for choice deciding on your local shopping centre with Jamison Centre, Westfield Belconnen and a number of local shops around the Belconnen area at your fingertips. Access to a large number of cafes, restaurants and bars is just another added bonus that will be yours to enjoy.
Additional features:
Brivis ducted gas heating
Miele wall oven, rangehood & dishwasher
Blanco gas cooktop
Mitsubishi reverse-cycle airconditioning
Powder room
Separate toilet
Built-in robes to the master and beds 2 & 3
Ducted vacuum
Retractable awning in courtyard
Pull-down awning in courtyard
Courtyard pond
Double garage
Body Corp: $548.04 p/q
Rates: $805.85 p/q
Living size: 149m2
Read MoreThe well thought-out floorplan allows versatile living options. The formal lounge and dining room provide multiple options for entertaining family and guests. The family room off the kitchen adjoins the north-facing courtyard, creating a sun-soaked living area.
If location is important to you, then this home will be sure to pique your interest. Options for schooling include Radford College, University of Canberra, Canberra High School and Lake Ginninderra College to name a few. You will be spoiled for choice deciding on your local shopping centre with Jamison Centre, Westfield Belconnen and a number of local shops around the Belconnen area at your fingertips. Access to a large number of cafes, restaurants and bars is just another added bonus that will be yours to enjoy.
Additional features:
Brivis ducted gas heating
Miele wall oven, rangehood & dishwasher
Blanco gas cooktop
Mitsubishi reverse-cycle airconditioning
Powder room
Separate toilet
Built-in robes to the master and beds 2 & 3
Ducted vacuum
Retractable awning in courtyard
Pull-down awning in courtyard
Courtyard pond
Double garage
Body Corp: $548.04 p/q
Rates: $805.85 p/q
Living size: 149m2
Inspect
Contact agent
Listing agent
Prior to enquiry or inspection of this property you may wish to review our Information Collection Notice and Privacy Policy.
Privacy & Collection Notice




































