Classically elegant residence blended with a hint of new-world charm
Sold
Location
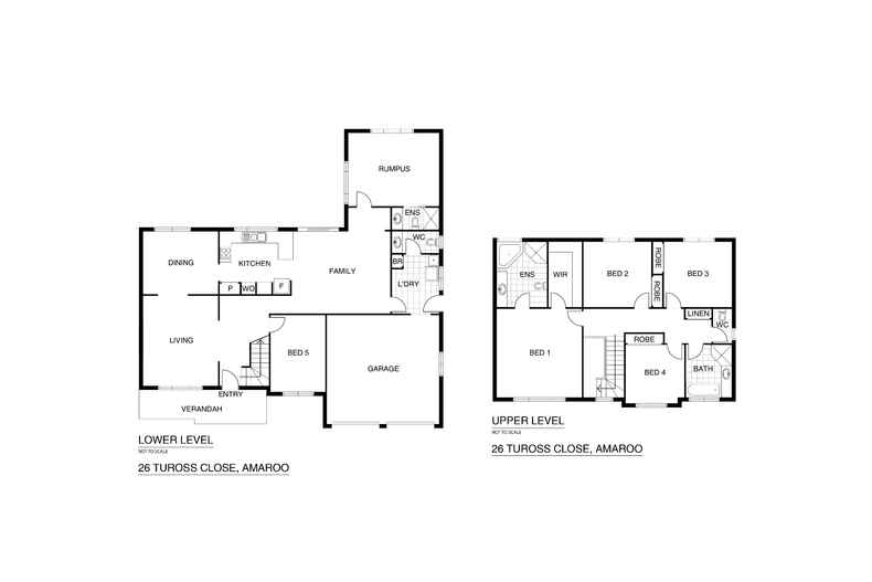
26 Tuross Close
Amaroo ACT 2914
Details
5
3
4
EER: 4.5
House
Auction Saturday, 20 Jun 03:30 PM On site
Land area: | 733 sqm (approx) |
Building size: | 285 sqm (approx) |
Commanding from the street and offering an idyllic family-friendly location, this inviting five bedroom, three bathroom residence is sure to excite those who seek a greater lifestyle and enriched family living.
Captivating, classical interiors showcase soft neutral colour tones throughout, whilst the expansive, functional floorplan includes multiple large living areas, including a rumpus with ensuite ideal for relaxation, family interaction, or perhaps the perfect teenager's retreat/sixth bedroom.
A cleverly designed and refurbished kitchen acts as the hub of the home and offers modern designer appliances and plenty of meal preparation space.
The large and secure established low maintenance rear yard with a spacious entertaining terrace is sure to be a hit when hosting family and friends.
A second driveway features drive-through access to the rear yard which is large enough to accommodate caravans, trailers and boats – a feature that is often sought, but rarely found.
Just when you thought this exciting offering couldn't get any better, an extra large double garage with internal access enhances this property's substantial appeal.
Features:
- Five bedroom residence with double garage
- Living 236m2 approx.
- Total build 285m2 appox.
- Block size 733m2
- EER 4.5
- Built in 1995
- Expansive views
- Main bedroom with ensuite and walk-through robe
- Powder room
- Split systems to bedrooms
- Rumpus with ensuite
- Ducted gas heating
- Downlights
- Large rear yard with double gate side access and fenced segregated section perfect for children and pets
- Additional driveway
- Enjoyable walking distance to Yerrabi Pond
- Close proximity to the expanding Gungahlin shopping centre and Amaroo local schools
- Convenient travel distance to the airport
Read MoreCaptivating, classical interiors showcase soft neutral colour tones throughout, whilst the expansive, functional floorplan includes multiple large living areas, including a rumpus with ensuite ideal for relaxation, family interaction, or perhaps the perfect teenager's retreat/sixth bedroom.
A cleverly designed and refurbished kitchen acts as the hub of the home and offers modern designer appliances and plenty of meal preparation space.
The large and secure established low maintenance rear yard with a spacious entertaining terrace is sure to be a hit when hosting family and friends.
A second driveway features drive-through access to the rear yard which is large enough to accommodate caravans, trailers and boats – a feature that is often sought, but rarely found.
Just when you thought this exciting offering couldn't get any better, an extra large double garage with internal access enhances this property's substantial appeal.
Features:
- Five bedroom residence with double garage
- Living 236m2 approx.
- Total build 285m2 appox.
- Block size 733m2
- EER 4.5
- Built in 1995
- Expansive views
- Main bedroom with ensuite and walk-through robe
- Powder room
- Split systems to bedrooms
- Rumpus with ensuite
- Ducted gas heating
- Downlights
- Large rear yard with double gate side access and fenced segregated section perfect for children and pets
- Additional driveway
- Enjoyable walking distance to Yerrabi Pond
- Close proximity to the expanding Gungahlin shopping centre and Amaroo local schools
- Convenient travel distance to the airport
Inspect
Contact agent
Listing agents
Prior to enquiry or inspection of this property you may wish to review our Information Collection Notice and Privacy Policy.
Privacy & Collection NoticeCommanding from the street and offering an idyllic family-friendly location, this inviting five bedroom, three bathroom residence is sure to excite those who seek a greater lifestyle and enriched family living.
Captivating, classical interiors showcase soft neutral colour tones throughout, whilst the expansive, functional floorplan includes multiple large living areas, including a rumpus with ensuite ideal for relaxation, family interaction, or perhaps the perfect teenager's retreat/sixth bedroom.
A cleverly designed and refurbished kitchen acts as the hub of the home and offers modern designer appliances and plenty of meal preparation space.
The large and secure established low maintenance rear yard with a spacious entertaining terrace is sure to be a hit when hosting family and friends.
A second driveway features drive-through access to the rear yard which is large enough to accommodate caravans, trailers and boats – a feature that is often sought, but rarely found.
Just when you thought this exciting offering couldn't get any better, an extra large double garage with internal access enhances this property's substantial appeal.
Features:
- Five bedroom residence with double garage
- Living 236m2 approx.
- Total build 285m2 appox.
- Block size 733m2
- EER 4.5
- Built in 1995
- Expansive views
- Main bedroom with ensuite and walk-through robe
- Powder room
- Split systems to bedrooms
- Rumpus with ensuite
- Ducted gas heating
- Downlights
- Large rear yard with double gate side access and fenced segregated section perfect for children and pets
- Additional driveway
- Enjoyable walking distance to Yerrabi Pond
- Close proximity to the expanding Gungahlin shopping centre and Amaroo local schools
- Convenient travel distance to the airport
Read MoreCaptivating, classical interiors showcase soft neutral colour tones throughout, whilst the expansive, functional floorplan includes multiple large living areas, including a rumpus with ensuite ideal for relaxation, family interaction, or perhaps the perfect teenager's retreat/sixth bedroom.
A cleverly designed and refurbished kitchen acts as the hub of the home and offers modern designer appliances and plenty of meal preparation space.
The large and secure established low maintenance rear yard with a spacious entertaining terrace is sure to be a hit when hosting family and friends.
A second driveway features drive-through access to the rear yard which is large enough to accommodate caravans, trailers and boats – a feature that is often sought, but rarely found.
Just when you thought this exciting offering couldn't get any better, an extra large double garage with internal access enhances this property's substantial appeal.
Features:
- Five bedroom residence with double garage
- Living 236m2 approx.
- Total build 285m2 appox.
- Block size 733m2
- EER 4.5
- Built in 1995
- Expansive views
- Main bedroom with ensuite and walk-through robe
- Powder room
- Split systems to bedrooms
- Rumpus with ensuite
- Ducted gas heating
- Downlights
- Large rear yard with double gate side access and fenced segregated section perfect for children and pets
- Additional driveway
- Enjoyable walking distance to Yerrabi Pond
- Close proximity to the expanding Gungahlin shopping centre and Amaroo local schools
- Convenient travel distance to the airport

Location
26 Tuross Close
Amaroo ACT 2914
Details
5
3
4
EER: 4.5
House
Auction Saturday, 20 Jun 03:30 PM On site
Land area: | 733 sqm (approx) |
Building size: | 285 sqm (approx) |
Commanding from the street and offering an idyllic family-friendly location, this inviting five bedroom, three bathroom residence is sure to excite those who seek a greater lifestyle and enriched family living.
Captivating, classical interiors showcase soft neutral colour tones throughout, whilst the expansive, functional floorplan includes multiple large living areas, including a rumpus with ensuite ideal for relaxation, family interaction, or perhaps the perfect teenager's retreat/sixth bedroom.
A cleverly designed and refurbished kitchen acts as the hub of the home and offers modern designer appliances and plenty of meal preparation space.
The large and secure established low maintenance rear yard with a spacious entertaining terrace is sure to be a hit when hosting family and friends.
A second driveway features drive-through access to the rear yard which is large enough to accommodate caravans, trailers and boats – a feature that is often sought, but rarely found.
Just when you thought this exciting offering couldn't get any better, an extra large double garage with internal access enhances this property's substantial appeal.
Features:
- Five bedroom residence with double garage
- Living 236m2 approx.
- Total build 285m2 appox.
- Block size 733m2
- EER 4.5
- Built in 1995
- Expansive views
- Main bedroom with ensuite and walk-through robe
- Powder room
- Split systems to bedrooms
- Rumpus with ensuite
- Ducted gas heating
- Downlights
- Large rear yard with double gate side access and fenced segregated section perfect for children and pets
- Additional driveway
- Enjoyable walking distance to Yerrabi Pond
- Close proximity to the expanding Gungahlin shopping centre and Amaroo local schools
- Convenient travel distance to the airport
Read MoreCaptivating, classical interiors showcase soft neutral colour tones throughout, whilst the expansive, functional floorplan includes multiple large living areas, including a rumpus with ensuite ideal for relaxation, family interaction, or perhaps the perfect teenager's retreat/sixth bedroom.
A cleverly designed and refurbished kitchen acts as the hub of the home and offers modern designer appliances and plenty of meal preparation space.
The large and secure established low maintenance rear yard with a spacious entertaining terrace is sure to be a hit when hosting family and friends.
A second driveway features drive-through access to the rear yard which is large enough to accommodate caravans, trailers and boats – a feature that is often sought, but rarely found.
Just when you thought this exciting offering couldn't get any better, an extra large double garage with internal access enhances this property's substantial appeal.
Features:
- Five bedroom residence with double garage
- Living 236m2 approx.
- Total build 285m2 appox.
- Block size 733m2
- EER 4.5
- Built in 1995
- Expansive views
- Main bedroom with ensuite and walk-through robe
- Powder room
- Split systems to bedrooms
- Rumpus with ensuite
- Ducted gas heating
- Downlights
- Large rear yard with double gate side access and fenced segregated section perfect for children and pets
- Additional driveway
- Enjoyable walking distance to Yerrabi Pond
- Close proximity to the expanding Gungahlin shopping centre and Amaroo local schools
- Convenient travel distance to the airport
Inspect
Contact agent
Listing agents
Prior to enquiry or inspection of this property you may wish to review our Information Collection Notice and Privacy Policy.
Privacy & Collection Notice
























































