Timeless elegance on the doorstep to the heart of our City
Sold
Location
7/78 Torrens Street
Braddon ACT 2612
Details
3
2
2
EER: 4.5
House
Auction Saturday, 16 Jun 10:30 AM On-Site
The open home for 7/78 Torrens Street Braddon scheduled for 30.5.18 from 5.00pm-5.30pm has been cancelled. Please contact agent for further information. Apologies for the inconvenience.
A townhouse of grand proportions that pushes the boundaries of typical townhouse living.
Moments from the city in a picturesque tree-lined leafy street, this contemporary three-bedroom ensuite townhouse with multiple light and bright living areas is sure to impress those seeking a cosmopolitan lifestyle, without compromising on size.
With an instantly impressive facade and an opportunity for ownership in such an exclusive boutique complex - it's easy to see why this unique residence is creating such a fuss.
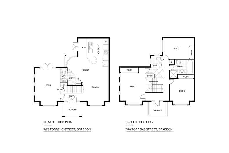
Upstairs, all three bedrooms are spacious and include built-in robes, whilst the main bedroom also incorporates an ensuite. The family bathroom boasts a separate shower and bath.
For some quiet contemplation or to be absorbed in the changing seasonal landscapes, the Juliette balcony is the perfect place - and large enough to share with the perfect companion!
Downstairs, the cleverly designed modern-day floorplan, blended with a hint of old-world charm, provides both a large open-plan living space for day-to-day family interaction and a separate family room when an individual space is sought after.
The visually exciting oversized kitchen with granite bench tops has an abundance of storage and meal preparation space, and includes a large breakfast bar - perfect for those lazy Sunday mornings.
A separate laundry and powder room add to the convenience of downstairs activities.
Walking outside through gorgeous french double doors, the private and secure paved rear courtyard with manicured gardens sets the perfect scene for entertaining with friends and family.
Whilst the secure double bay parking will give peace-of-mind, with so many exciting lifestyle attractions and major employment opportunities virtually on your doorstep, you will be tempted to trade in the cars for bicycles and joggers!
Creating a healthier lifestyle for you and your loved ones, while living in spacious comfort and enjoying convenient city amenities, will have never been so easy.
- Boutique exclusive Palmero complex with only 14 townhouses
- Living 153m2 approx.
- Three-bedroom ensuite residence
- Two bathroom, powder room and separate laundry
- Double lock up garage
- Brand new carpet throughout
- Freshly painted throughout
- Blanco dishwasher
- Blanco gas stove
- Blanco oven
- Rates approx. $2394.94 per year
- Land tax approx. $937 per quarter
Read MoreA townhouse of grand proportions that pushes the boundaries of typical townhouse living.
Moments from the city in a picturesque tree-lined leafy street, this contemporary three-bedroom ensuite townhouse with multiple light and bright living areas is sure to impress those seeking a cosmopolitan lifestyle, without compromising on size.
With an instantly impressive facade and an opportunity for ownership in such an exclusive boutique complex - it's easy to see why this unique residence is creating such a fuss.
Upstairs, all three bedrooms are spacious and include built-in robes, whilst the main bedroom also incorporates an ensuite. The family bathroom boasts a separate shower and bath.
For some quiet contemplation or to be absorbed in the changing seasonal landscapes, the Juliette balcony is the perfect place - and large enough to share with the perfect companion!
Downstairs, the cleverly designed modern-day floorplan, blended with a hint of old-world charm, provides both a large open-plan living space for day-to-day family interaction and a separate family room when an individual space is sought after.
The visually exciting oversized kitchen with granite bench tops has an abundance of storage and meal preparation space, and includes a large breakfast bar - perfect for those lazy Sunday mornings.
A separate laundry and powder room add to the convenience of downstairs activities.
Walking outside through gorgeous french double doors, the private and secure paved rear courtyard with manicured gardens sets the perfect scene for entertaining with friends and family.
Whilst the secure double bay parking will give peace-of-mind, with so many exciting lifestyle attractions and major employment opportunities virtually on your doorstep, you will be tempted to trade in the cars for bicycles and joggers!
Creating a healthier lifestyle for you and your loved ones, while living in spacious comfort and enjoying convenient city amenities, will have never been so easy.
- Boutique exclusive Palmero complex with only 14 townhouses
- Living 153m2 approx.
- Three-bedroom ensuite residence
- Two bathroom, powder room and separate laundry
- Double lock up garage
- Brand new carpet throughout
- Freshly painted throughout
- Blanco dishwasher
- Blanco gas stove
- Blanco oven
- Rates approx. $2394.94 per year
- Land tax approx. $937 per quarter
Inspect
Contact agent
Listing agents
The open home for 7/78 Torrens Street Braddon scheduled for 30.5.18 from 5.00pm-5.30pm has been cancelled. Please contact agent for further information. Apologies for the inconvenience.
A townhouse of grand proportions that pushes the boundaries of typical townhouse living.
Moments from the city in a picturesque tree-lined leafy street, this contemporary three-bedroom ensuite townhouse with multiple light and bright living areas is sure to impress those seeking a cosmopolitan lifestyle, without compromising on size.
With an instantly impressive facade and an opportunity for ownership in such an exclusive boutique complex - it's easy to see why this unique residence is creating such a fuss.
Upstairs, all three bedrooms are spacious and include built-in robes, whilst the main bedroom also incorporates an ensuite. The family bathroom boasts a separate shower and bath.
For some quiet contemplation or to be absorbed in the changing seasonal landscapes, the Juliette balcony is the perfect place - and large enough to share with the perfect companion!
Downstairs, the cleverly designed modern-day floorplan, blended with a hint of old-world charm, provides both a large open-plan living space for day-to-day family interaction and a separate family room when an individual space is sought after.
The visually exciting oversized kitchen with granite bench tops has an abundance of storage and meal preparation space, and includes a large breakfast bar - perfect for those lazy Sunday mornings.
A separate laundry and powder room add to the convenience of downstairs activities.
Walking outside through gorgeous french double doors, the private and secure paved rear courtyard with manicured gardens sets the perfect scene for entertaining with friends and family.
Whilst the secure double bay parking will give peace-of-mind, with so many exciting lifestyle attractions and major employment opportunities virtually on your doorstep, you will be tempted to trade in the cars for bicycles and joggers!
Creating a healthier lifestyle for you and your loved ones, while living in spacious comfort and enjoying convenient city amenities, will have never been so easy.
- Boutique exclusive Palmero complex with only 14 townhouses
- Living 153m2 approx.
- Three-bedroom ensuite residence
- Two bathroom, powder room and separate laundry
- Double lock up garage
- Brand new carpet throughout
- Freshly painted throughout
- Blanco dishwasher
- Blanco gas stove
- Blanco oven
- Rates approx. $2394.94 per year
- Land tax approx. $937 per quarter
Read MoreA townhouse of grand proportions that pushes the boundaries of typical townhouse living.
Moments from the city in a picturesque tree-lined leafy street, this contemporary three-bedroom ensuite townhouse with multiple light and bright living areas is sure to impress those seeking a cosmopolitan lifestyle, without compromising on size.
With an instantly impressive facade and an opportunity for ownership in such an exclusive boutique complex - it's easy to see why this unique residence is creating such a fuss.
Upstairs, all three bedrooms are spacious and include built-in robes, whilst the main bedroom also incorporates an ensuite. The family bathroom boasts a separate shower and bath.
For some quiet contemplation or to be absorbed in the changing seasonal landscapes, the Juliette balcony is the perfect place - and large enough to share with the perfect companion!
Downstairs, the cleverly designed modern-day floorplan, blended with a hint of old-world charm, provides both a large open-plan living space for day-to-day family interaction and a separate family room when an individual space is sought after.
The visually exciting oversized kitchen with granite bench tops has an abundance of storage and meal preparation space, and includes a large breakfast bar - perfect for those lazy Sunday mornings.
A separate laundry and powder room add to the convenience of downstairs activities.
Walking outside through gorgeous french double doors, the private and secure paved rear courtyard with manicured gardens sets the perfect scene for entertaining with friends and family.
Whilst the secure double bay parking will give peace-of-mind, with so many exciting lifestyle attractions and major employment opportunities virtually on your doorstep, you will be tempted to trade in the cars for bicycles and joggers!
Creating a healthier lifestyle for you and your loved ones, while living in spacious comfort and enjoying convenient city amenities, will have never been so easy.
- Boutique exclusive Palmero complex with only 14 townhouses
- Living 153m2 approx.
- Three-bedroom ensuite residence
- Two bathroom, powder room and separate laundry
- Double lock up garage
- Brand new carpet throughout
- Freshly painted throughout
- Blanco dishwasher
- Blanco gas stove
- Blanco oven
- Rates approx. $2394.94 per year
- Land tax approx. $937 per quarter

Location
7/78 Torrens Street
Braddon ACT 2612
Details
3
2
2
EER: 4.5
House
Auction Saturday, 16 Jun 10:30 AM On-Site
The open home for 7/78 Torrens Street Braddon scheduled for 30.5.18 from 5.00pm-5.30pm has been cancelled. Please contact agent for further information. Apologies for the inconvenience.
A townhouse of grand proportions that pushes the boundaries of typical townhouse living.
Moments from the city in a picturesque tree-lined leafy street, this contemporary three-bedroom ensuite townhouse with multiple light and bright living areas is sure to impress those seeking a cosmopolitan lifestyle, without compromising on size.
With an instantly impressive facade and an opportunity for ownership in such an exclusive boutique complex - it's easy to see why this unique residence is creating such a fuss.
Upstairs, all three bedrooms are spacious and include built-in robes, whilst the main bedroom also incorporates an ensuite. The family bathroom boasts a separate shower and bath.
For some quiet contemplation or to be absorbed in the changing seasonal landscapes, the Juliette balcony is the perfect place - and large enough to share with the perfect companion!
Downstairs, the cleverly designed modern-day floorplan, blended with a hint of old-world charm, provides both a large open-plan living space for day-to-day family interaction and a separate family room when an individual space is sought after.
The visually exciting oversized kitchen with granite bench tops has an abundance of storage and meal preparation space, and includes a large breakfast bar - perfect for those lazy Sunday mornings.
A separate laundry and powder room add to the convenience of downstairs activities.
Walking outside through gorgeous french double doors, the private and secure paved rear courtyard with manicured gardens sets the perfect scene for entertaining with friends and family.
Whilst the secure double bay parking will give peace-of-mind, with so many exciting lifestyle attractions and major employment opportunities virtually on your doorstep, you will be tempted to trade in the cars for bicycles and joggers!
Creating a healthier lifestyle for you and your loved ones, while living in spacious comfort and enjoying convenient city amenities, will have never been so easy.
- Boutique exclusive Palmero complex with only 14 townhouses
- Living 153m2 approx.
- Three-bedroom ensuite residence
- Two bathroom, powder room and separate laundry
- Double lock up garage
- Brand new carpet throughout
- Freshly painted throughout
- Blanco dishwasher
- Blanco gas stove
- Blanco oven
- Rates approx. $2394.94 per year
- Land tax approx. $937 per quarter
Read MoreA townhouse of grand proportions that pushes the boundaries of typical townhouse living.
Moments from the city in a picturesque tree-lined leafy street, this contemporary three-bedroom ensuite townhouse with multiple light and bright living areas is sure to impress those seeking a cosmopolitan lifestyle, without compromising on size.
With an instantly impressive facade and an opportunity for ownership in such an exclusive boutique complex - it's easy to see why this unique residence is creating such a fuss.
Upstairs, all three bedrooms are spacious and include built-in robes, whilst the main bedroom also incorporates an ensuite. The family bathroom boasts a separate shower and bath.
For some quiet contemplation or to be absorbed in the changing seasonal landscapes, the Juliette balcony is the perfect place - and large enough to share with the perfect companion!
Downstairs, the cleverly designed modern-day floorplan, blended with a hint of old-world charm, provides both a large open-plan living space for day-to-day family interaction and a separate family room when an individual space is sought after.
The visually exciting oversized kitchen with granite bench tops has an abundance of storage and meal preparation space, and includes a large breakfast bar - perfect for those lazy Sunday mornings.
A separate laundry and powder room add to the convenience of downstairs activities.
Walking outside through gorgeous french double doors, the private and secure paved rear courtyard with manicured gardens sets the perfect scene for entertaining with friends and family.
Whilst the secure double bay parking will give peace-of-mind, with so many exciting lifestyle attractions and major employment opportunities virtually on your doorstep, you will be tempted to trade in the cars for bicycles and joggers!
Creating a healthier lifestyle for you and your loved ones, while living in spacious comfort and enjoying convenient city amenities, will have never been so easy.
- Boutique exclusive Palmero complex with only 14 townhouses
- Living 153m2 approx.
- Three-bedroom ensuite residence
- Two bathroom, powder room and separate laundry
- Double lock up garage
- Brand new carpet throughout
- Freshly painted throughout
- Blanco dishwasher
- Blanco gas stove
- Blanco oven
- Rates approx. $2394.94 per year
- Land tax approx. $937 per quarter
Inspect
Contact agent


































