Amazing opportunity in up-market Crace
Sold
Location
Lot 52/19 Parilla Street
Crace ACT 2911
Details
4
3
2
EER: 6
House
Offers over $583,000
Rates: | $1,078.83 annually |
Investor's Delight - Potential rent $710.00 - $730.00pw
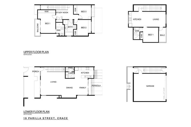
Ideal for extended families:
4 bedrooms + study nook, 3 bathrooms + powder room, 2 kitchens, enormous living areas, 2 balconies, double garage.
How often can you purchase 2 stunning properties with views, perfect for a family with teenagers, extended family, home business or even extra rental income - in such a desired location?
Main residence offers 3 spacious bedrooms with balcony to main, great study nook, impressive open plan living, dining and family area plus trendy kitchen with ample cupboard space.The is also a large pristine bathroom, ensuite, powder room and laundry plus double automatic garage.
Plus:
1 bedroom studio apartment with separate entrance is built above the garage and features: spacious living room with balcony, modern kitchen, great bedroom and ensuite.
Both properties are functionally designed with quality features such as high ceilings, stainless steel appliances in both kitchens, they have manageable gardens with a pergola to the main residence located in the rear garden.
Situated only metres away from amenities that this fabulous suburb provides.
CRACE - Voted "The Best New Suburb in Australia". The first suburb in Canberra purposely planned and designed to pass approval by structure, colour and features used for the unique, exquisite look and to serve residents in the best way possible. Ample common areas smartly incorporated with lush landscaping, a park for children, BBQ area, sport facilities and all these only metres away from a picturesque pond. With a new 'Supabarn' supermarket opened not long ago, a Medical centre, Clublime Gym, Junior sports facilities (and more in the near future) – this is where you will wish to live. Visiting highly recommended.
- Appealing street presentation
- Clever design
- End/corner position
- Great front courtyard
- As new pristine condition
- 2.7m high ceilings to the main level
- Quality tiles and carpet
- Modern and practical roller blinds and curtains
- Flat on-wall electric heaters
- Ceiling fans
- All 4 spacious bedrooms with built-in robes
- Terrific study nook upstairs in the main residence
- Modern kitchens with gas cooking, Blanco stainless steel appliances
- 3 bathrooms well equipped, semi frame-less showers, off the wall vanities and tastic
- Powder room and laundry
- Storage under the stairs
- 2 balconies with views
- Paved and landscaped gardens
- And much more
Read MoreIdeal for extended families:
4 bedrooms + study nook, 3 bathrooms + powder room, 2 kitchens, enormous living areas, 2 balconies, double garage.
How often can you purchase 2 stunning properties with views, perfect for a family with teenagers, extended family, home business or even extra rental income - in such a desired location?
Main residence offers 3 spacious bedrooms with balcony to main, great study nook, impressive open plan living, dining and family area plus trendy kitchen with ample cupboard space.The is also a large pristine bathroom, ensuite, powder room and laundry plus double automatic garage.
Plus:
1 bedroom studio apartment with separate entrance is built above the garage and features: spacious living room with balcony, modern kitchen, great bedroom and ensuite.
Both properties are functionally designed with quality features such as high ceilings, stainless steel appliances in both kitchens, they have manageable gardens with a pergola to the main residence located in the rear garden.
Situated only metres away from amenities that this fabulous suburb provides.
CRACE - Voted "The Best New Suburb in Australia". The first suburb in Canberra purposely planned and designed to pass approval by structure, colour and features used for the unique, exquisite look and to serve residents in the best way possible. Ample common areas smartly incorporated with lush landscaping, a park for children, BBQ area, sport facilities and all these only metres away from a picturesque pond. With a new 'Supabarn' supermarket opened not long ago, a Medical centre, Clublime Gym, Junior sports facilities (and more in the near future) – this is where you will wish to live. Visiting highly recommended.
- Appealing street presentation
- Clever design
- End/corner position
- Great front courtyard
- As new pristine condition
- 2.7m high ceilings to the main level
- Quality tiles and carpet
- Modern and practical roller blinds and curtains
- Flat on-wall electric heaters
- Ceiling fans
- All 4 spacious bedrooms with built-in robes
- Terrific study nook upstairs in the main residence
- Modern kitchens with gas cooking, Blanco stainless steel appliances
- 3 bathrooms well equipped, semi frame-less showers, off the wall vanities and tastic
- Powder room and laundry
- Storage under the stairs
- 2 balconies with views
- Paved and landscaped gardens
- And much more
Inspect
Contact agent
Listing agents
Investor's Delight - Potential rent $710.00 - $730.00pw
Ideal for extended families:
4 bedrooms + study nook, 3 bathrooms + powder room, 2 kitchens, enormous living areas, 2 balconies, double garage.
How often can you purchase 2 stunning properties with views, perfect for a family with teenagers, extended family, home business or even extra rental income - in such a desired location?
Main residence offers 3 spacious bedrooms with balcony to main, great study nook, impressive open plan living, dining and family area plus trendy kitchen with ample cupboard space.The is also a large pristine bathroom, ensuite, powder room and laundry plus double automatic garage.
Plus:
1 bedroom studio apartment with separate entrance is built above the garage and features: spacious living room with balcony, modern kitchen, great bedroom and ensuite.
Both properties are functionally designed with quality features such as high ceilings, stainless steel appliances in both kitchens, they have manageable gardens with a pergola to the main residence located in the rear garden.
Situated only metres away from amenities that this fabulous suburb provides.
CRACE - Voted "The Best New Suburb in Australia". The first suburb in Canberra purposely planned and designed to pass approval by structure, colour and features used for the unique, exquisite look and to serve residents in the best way possible. Ample common areas smartly incorporated with lush landscaping, a park for children, BBQ area, sport facilities and all these only metres away from a picturesque pond. With a new 'Supabarn' supermarket opened not long ago, a Medical centre, Clublime Gym, Junior sports facilities (and more in the near future) – this is where you will wish to live. Visiting highly recommended.
- Appealing street presentation
- Clever design
- End/corner position
- Great front courtyard
- As new pristine condition
- 2.7m high ceilings to the main level
- Quality tiles and carpet
- Modern and practical roller blinds and curtains
- Flat on-wall electric heaters
- Ceiling fans
- All 4 spacious bedrooms with built-in robes
- Terrific study nook upstairs in the main residence
- Modern kitchens with gas cooking, Blanco stainless steel appliances
- 3 bathrooms well equipped, semi frame-less showers, off the wall vanities and tastic
- Powder room and laundry
- Storage under the stairs
- 2 balconies with views
- Paved and landscaped gardens
- And much more
Read MoreIdeal for extended families:
4 bedrooms + study nook, 3 bathrooms + powder room, 2 kitchens, enormous living areas, 2 balconies, double garage.
How often can you purchase 2 stunning properties with views, perfect for a family with teenagers, extended family, home business or even extra rental income - in such a desired location?
Main residence offers 3 spacious bedrooms with balcony to main, great study nook, impressive open plan living, dining and family area plus trendy kitchen with ample cupboard space.The is also a large pristine bathroom, ensuite, powder room and laundry plus double automatic garage.
Plus:
1 bedroom studio apartment with separate entrance is built above the garage and features: spacious living room with balcony, modern kitchen, great bedroom and ensuite.
Both properties are functionally designed with quality features such as high ceilings, stainless steel appliances in both kitchens, they have manageable gardens with a pergola to the main residence located in the rear garden.
Situated only metres away from amenities that this fabulous suburb provides.
CRACE - Voted "The Best New Suburb in Australia". The first suburb in Canberra purposely planned and designed to pass approval by structure, colour and features used for the unique, exquisite look and to serve residents in the best way possible. Ample common areas smartly incorporated with lush landscaping, a park for children, BBQ area, sport facilities and all these only metres away from a picturesque pond. With a new 'Supabarn' supermarket opened not long ago, a Medical centre, Clublime Gym, Junior sports facilities (and more in the near future) – this is where you will wish to live. Visiting highly recommended.
- Appealing street presentation
- Clever design
- End/corner position
- Great front courtyard
- As new pristine condition
- 2.7m high ceilings to the main level
- Quality tiles and carpet
- Modern and practical roller blinds and curtains
- Flat on-wall electric heaters
- Ceiling fans
- All 4 spacious bedrooms with built-in robes
- Terrific study nook upstairs in the main residence
- Modern kitchens with gas cooking, Blanco stainless steel appliances
- 3 bathrooms well equipped, semi frame-less showers, off the wall vanities and tastic
- Powder room and laundry
- Storage under the stairs
- 2 balconies with views
- Paved and landscaped gardens
- And much more

Location
Lot 52/19 Parilla Street
Crace ACT 2911
Details
4
3
2
EER: 6
House
Offers over $583,000
Rates: | $1,078.83 annually |
Investor's Delight - Potential rent $710.00 - $730.00pw
Ideal for extended families:
4 bedrooms + study nook, 3 bathrooms + powder room, 2 kitchens, enormous living areas, 2 balconies, double garage.
How often can you purchase 2 stunning properties with views, perfect for a family with teenagers, extended family, home business or even extra rental income - in such a desired location?
Main residence offers 3 spacious bedrooms with balcony to main, great study nook, impressive open plan living, dining and family area plus trendy kitchen with ample cupboard space.The is also a large pristine bathroom, ensuite, powder room and laundry plus double automatic garage.
Plus:
1 bedroom studio apartment with separate entrance is built above the garage and features: spacious living room with balcony, modern kitchen, great bedroom and ensuite.
Both properties are functionally designed with quality features such as high ceilings, stainless steel appliances in both kitchens, they have manageable gardens with a pergola to the main residence located in the rear garden.
Situated only metres away from amenities that this fabulous suburb provides.
CRACE - Voted "The Best New Suburb in Australia". The first suburb in Canberra purposely planned and designed to pass approval by structure, colour and features used for the unique, exquisite look and to serve residents in the best way possible. Ample common areas smartly incorporated with lush landscaping, a park for children, BBQ area, sport facilities and all these only metres away from a picturesque pond. With a new 'Supabarn' supermarket opened not long ago, a Medical centre, Clublime Gym, Junior sports facilities (and more in the near future) – this is where you will wish to live. Visiting highly recommended.
- Appealing street presentation
- Clever design
- End/corner position
- Great front courtyard
- As new pristine condition
- 2.7m high ceilings to the main level
- Quality tiles and carpet
- Modern and practical roller blinds and curtains
- Flat on-wall electric heaters
- Ceiling fans
- All 4 spacious bedrooms with built-in robes
- Terrific study nook upstairs in the main residence
- Modern kitchens with gas cooking, Blanco stainless steel appliances
- 3 bathrooms well equipped, semi frame-less showers, off the wall vanities and tastic
- Powder room and laundry
- Storage under the stairs
- 2 balconies with views
- Paved and landscaped gardens
- And much more
Read MoreIdeal for extended families:
4 bedrooms + study nook, 3 bathrooms + powder room, 2 kitchens, enormous living areas, 2 balconies, double garage.
How often can you purchase 2 stunning properties with views, perfect for a family with teenagers, extended family, home business or even extra rental income - in such a desired location?
Main residence offers 3 spacious bedrooms with balcony to main, great study nook, impressive open plan living, dining and family area plus trendy kitchen with ample cupboard space.The is also a large pristine bathroom, ensuite, powder room and laundry plus double automatic garage.
Plus:
1 bedroom studio apartment with separate entrance is built above the garage and features: spacious living room with balcony, modern kitchen, great bedroom and ensuite.
Both properties are functionally designed with quality features such as high ceilings, stainless steel appliances in both kitchens, they have manageable gardens with a pergola to the main residence located in the rear garden.
Situated only metres away from amenities that this fabulous suburb provides.
CRACE - Voted "The Best New Suburb in Australia". The first suburb in Canberra purposely planned and designed to pass approval by structure, colour and features used for the unique, exquisite look and to serve residents in the best way possible. Ample common areas smartly incorporated with lush landscaping, a park for children, BBQ area, sport facilities and all these only metres away from a picturesque pond. With a new 'Supabarn' supermarket opened not long ago, a Medical centre, Clublime Gym, Junior sports facilities (and more in the near future) – this is where you will wish to live. Visiting highly recommended.
- Appealing street presentation
- Clever design
- End/corner position
- Great front courtyard
- As new pristine condition
- 2.7m high ceilings to the main level
- Quality tiles and carpet
- Modern and practical roller blinds and curtains
- Flat on-wall electric heaters
- Ceiling fans
- All 4 spacious bedrooms with built-in robes
- Terrific study nook upstairs in the main residence
- Modern kitchens with gas cooking, Blanco stainless steel appliances
- 3 bathrooms well equipped, semi frame-less showers, off the wall vanities and tastic
- Powder room and laundry
- Storage under the stairs
- 2 balconies with views
- Paved and landscaped gardens
- And much more
Inspect
Contact agent

















































