A Delightful Willemsen-designed home
Sold
Location
1 Maclachlan Street
Holder ACT 2611
Details
3
2
2
EER: 1.5
House
Auction Thursday, 6 Apr 05:30 PM On-Site
First time on the market, this beautifully presented home would be a great choice for homeowners both young and old.
Single level and comprising three bedrooms with ensuite and a full size bathroom, it flows beautifully from formal through to the informal living areas. There are garden outlooks from every room where the meandering pathways and established plantings create a haven for children to play, and adults to entertain or just sit and relax.
Entry to the home is through the auto double garage and into the front courtyard or for visitors, through a garden gate. Pathways lead off the courtyard entrance and winds right around to the backyard. The garden is a very private space with no overlooking windows from the neighbours
Fitted out with ducted heating and cooling, in-slab heating and an additional split system air-conditioning unit, you can be assured of comfort throughout the seasons.
Fresh and beautifully presented, the home is now ready for your inspection and ready for another generation of good times and happy memories.
Offers prior to the Auction are welcomed. Please make your interest known to the agent to be kept informed.
Features:
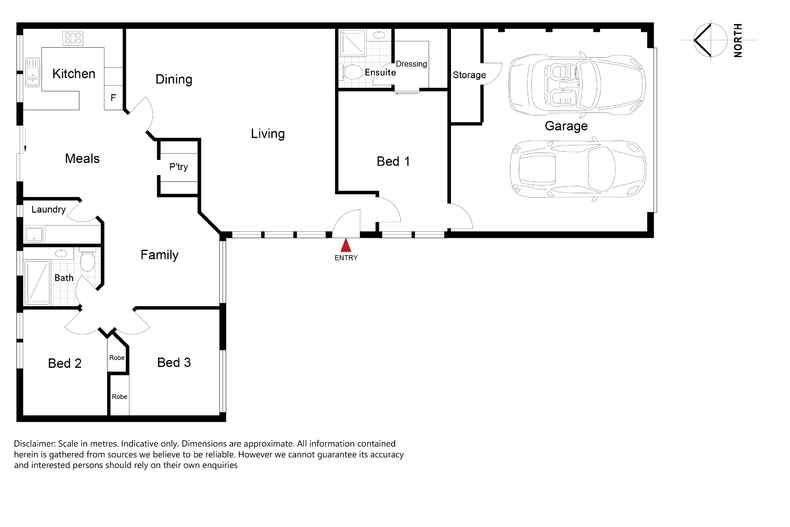
* 3 bedrooms, main with ensuite and walk-in robe
* Formal lounge and dining area with high vaulted ceilings
* Spacious meals and family area
* Ducted electric heating and cooling
* Reverse cycle air-conditioning and ceiling fans
* Inslab heating throughout the home
* Classic kitchen with generous bench top space & walk in pantry
* Ducted vacuum
* Generous storage areas throughout
* Double lock up garage with nook for work bench
* Auto remote to garage door
* Plenty of off-street parking
* Mature landscaped gardens
* Excellent location - easy walk to bus stop, schools, Cooleman Court precinct with a plethora of restaurants, clubs and other amenities
Block Size: 468m2 approx
House Size: 119m2 approx
* NB Executors' Estate sale - Probate pending
Read MoreSingle level and comprising three bedrooms with ensuite and a full size bathroom, it flows beautifully from formal through to the informal living areas. There are garden outlooks from every room where the meandering pathways and established plantings create a haven for children to play, and adults to entertain or just sit and relax.
Entry to the home is through the auto double garage and into the front courtyard or for visitors, through a garden gate. Pathways lead off the courtyard entrance and winds right around to the backyard. The garden is a very private space with no overlooking windows from the neighbours
Fitted out with ducted heating and cooling, in-slab heating and an additional split system air-conditioning unit, you can be assured of comfort throughout the seasons.
Fresh and beautifully presented, the home is now ready for your inspection and ready for another generation of good times and happy memories.
Offers prior to the Auction are welcomed. Please make your interest known to the agent to be kept informed.
Features:
* 3 bedrooms, main with ensuite and walk-in robe
* Formal lounge and dining area with high vaulted ceilings
* Spacious meals and family area
* Ducted electric heating and cooling
* Reverse cycle air-conditioning and ceiling fans
* Inslab heating throughout the home
* Classic kitchen with generous bench top space & walk in pantry
* Ducted vacuum
* Generous storage areas throughout
* Double lock up garage with nook for work bench
* Auto remote to garage door
* Plenty of off-street parking
* Mature landscaped gardens
* Excellent location - easy walk to bus stop, schools, Cooleman Court precinct with a plethora of restaurants, clubs and other amenities
Block Size: 468m2 approx
House Size: 119m2 approx
* NB Executors' Estate sale - Probate pending
Inspect
Contact agent
Listing agent
First time on the market, this beautifully presented home would be a great choice for homeowners both young and old.
Single level and comprising three bedrooms with ensuite and a full size bathroom, it flows beautifully from formal through to the informal living areas. There are garden outlooks from every room where the meandering pathways and established plantings create a haven for children to play, and adults to entertain or just sit and relax.
Entry to the home is through the auto double garage and into the front courtyard or for visitors, through a garden gate. Pathways lead off the courtyard entrance and winds right around to the backyard. The garden is a very private space with no overlooking windows from the neighbours
Fitted out with ducted heating and cooling, in-slab heating and an additional split system air-conditioning unit, you can be assured of comfort throughout the seasons.
Fresh and beautifully presented, the home is now ready for your inspection and ready for another generation of good times and happy memories.
Offers prior to the Auction are welcomed. Please make your interest known to the agent to be kept informed.
Features:
* 3 bedrooms, main with ensuite and walk-in robe
* Formal lounge and dining area with high vaulted ceilings
* Spacious meals and family area
* Ducted electric heating and cooling
* Reverse cycle air-conditioning and ceiling fans
* Inslab heating throughout the home
* Classic kitchen with generous bench top space & walk in pantry
* Ducted vacuum
* Generous storage areas throughout
* Double lock up garage with nook for work bench
* Auto remote to garage door
* Plenty of off-street parking
* Mature landscaped gardens
* Excellent location - easy walk to bus stop, schools, Cooleman Court precinct with a plethora of restaurants, clubs and other amenities
Block Size: 468m2 approx
House Size: 119m2 approx
* NB Executors' Estate sale - Probate pending
Read MoreSingle level and comprising three bedrooms with ensuite and a full size bathroom, it flows beautifully from formal through to the informal living areas. There are garden outlooks from every room where the meandering pathways and established plantings create a haven for children to play, and adults to entertain or just sit and relax.
Entry to the home is through the auto double garage and into the front courtyard or for visitors, through a garden gate. Pathways lead off the courtyard entrance and winds right around to the backyard. The garden is a very private space with no overlooking windows from the neighbours
Fitted out with ducted heating and cooling, in-slab heating and an additional split system air-conditioning unit, you can be assured of comfort throughout the seasons.
Fresh and beautifully presented, the home is now ready for your inspection and ready for another generation of good times and happy memories.
Offers prior to the Auction are welcomed. Please make your interest known to the agent to be kept informed.
Features:
* 3 bedrooms, main with ensuite and walk-in robe
* Formal lounge and dining area with high vaulted ceilings
* Spacious meals and family area
* Ducted electric heating and cooling
* Reverse cycle air-conditioning and ceiling fans
* Inslab heating throughout the home
* Classic kitchen with generous bench top space & walk in pantry
* Ducted vacuum
* Generous storage areas throughout
* Double lock up garage with nook for work bench
* Auto remote to garage door
* Plenty of off-street parking
* Mature landscaped gardens
* Excellent location - easy walk to bus stop, schools, Cooleman Court precinct with a plethora of restaurants, clubs and other amenities
Block Size: 468m2 approx
House Size: 119m2 approx
* NB Executors' Estate sale - Probate pending

Location
1 Maclachlan Street
Holder ACT 2611
Details
3
2
2
EER: 1.5
House
Auction Thursday, 6 Apr 05:30 PM On-Site
First time on the market, this beautifully presented home would be a great choice for homeowners both young and old.
Single level and comprising three bedrooms with ensuite and a full size bathroom, it flows beautifully from formal through to the informal living areas. There are garden outlooks from every room where the meandering pathways and established plantings create a haven for children to play, and adults to entertain or just sit and relax.
Entry to the home is through the auto double garage and into the front courtyard or for visitors, through a garden gate. Pathways lead off the courtyard entrance and winds right around to the backyard. The garden is a very private space with no overlooking windows from the neighbours
Fitted out with ducted heating and cooling, in-slab heating and an additional split system air-conditioning unit, you can be assured of comfort throughout the seasons.
Fresh and beautifully presented, the home is now ready for your inspection and ready for another generation of good times and happy memories.
Offers prior to the Auction are welcomed. Please make your interest known to the agent to be kept informed.
Features:
* 3 bedrooms, main with ensuite and walk-in robe
* Formal lounge and dining area with high vaulted ceilings
* Spacious meals and family area
* Ducted electric heating and cooling
* Reverse cycle air-conditioning and ceiling fans
* Inslab heating throughout the home
* Classic kitchen with generous bench top space & walk in pantry
* Ducted vacuum
* Generous storage areas throughout
* Double lock up garage with nook for work bench
* Auto remote to garage door
* Plenty of off-street parking
* Mature landscaped gardens
* Excellent location - easy walk to bus stop, schools, Cooleman Court precinct with a plethora of restaurants, clubs and other amenities
Block Size: 468m2 approx
House Size: 119m2 approx
* NB Executors' Estate sale - Probate pending
Read MoreSingle level and comprising three bedrooms with ensuite and a full size bathroom, it flows beautifully from formal through to the informal living areas. There are garden outlooks from every room where the meandering pathways and established plantings create a haven for children to play, and adults to entertain or just sit and relax.
Entry to the home is through the auto double garage and into the front courtyard or for visitors, through a garden gate. Pathways lead off the courtyard entrance and winds right around to the backyard. The garden is a very private space with no overlooking windows from the neighbours
Fitted out with ducted heating and cooling, in-slab heating and an additional split system air-conditioning unit, you can be assured of comfort throughout the seasons.
Fresh and beautifully presented, the home is now ready for your inspection and ready for another generation of good times and happy memories.
Offers prior to the Auction are welcomed. Please make your interest known to the agent to be kept informed.
Features:
* 3 bedrooms, main with ensuite and walk-in robe
* Formal lounge and dining area with high vaulted ceilings
* Spacious meals and family area
* Ducted electric heating and cooling
* Reverse cycle air-conditioning and ceiling fans
* Inslab heating throughout the home
* Classic kitchen with generous bench top space & walk in pantry
* Ducted vacuum
* Generous storage areas throughout
* Double lock up garage with nook for work bench
* Auto remote to garage door
* Plenty of off-street parking
* Mature landscaped gardens
* Excellent location - easy walk to bus stop, schools, Cooleman Court precinct with a plethora of restaurants, clubs and other amenities
Block Size: 468m2 approx
House Size: 119m2 approx
* NB Executors' Estate sale - Probate pending
Inspect
Contact agent



































