Outstanding Family Home
Sold
Location
16 Hicks Street
Red Hill ACT 2603
Details
5
2
2
EER: 1
House
Auction Saturday, 9 May 02:30 PM On-Site
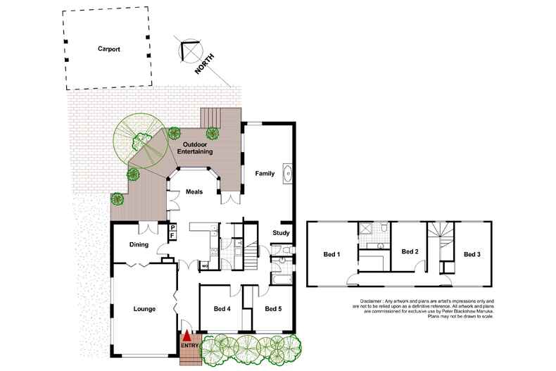
Perfectly located in a quiet tree lined street, this five bedroom home offers excellent accommodation. The spacious open plan living areas include separate formal lounge and dining rooms and a wonderful rumpus with an open fire place for cosy winter evenings. The stylish kitchen and light filled family room with cathedral ceiling open to a beautiful north facing rear deck, an ideal spot for year round get-togethers.
Sleep among the tree tops in the large master bedroom with walk-in robe and ensuite. There are four additional bedrooms or if preferred three and a study. Two of the secondary bedrooms are upstairs and two downstairs. The kitchen, bathroom and ensuite have all been renovated to a high standard.
The well established, easy maintenance garden that surrounds the home is private, leafy and child friendly. The home is an easy walk to some of Canberra’s best schools, the cafes and boutiques of Manuka Village and a short drive to the Parliamentary Triangle and Lake Burley Griffin.
- Large rear deck, rebuilt in 2013 with NW orientation to maximize winter light & provide a view to Red Hill
- Ducted gas heating
- Lounge room includes study area
- Renovated kitchen and bathrooms
- Carport accommodates 2 cars and off street parking for 4 cars
- Hop step and a jump to Boys’Grammar, Red Hill Primary, French Preschool and St Bede’s Primary
Read MoreSleep among the tree tops in the large master bedroom with walk-in robe and ensuite. There are four additional bedrooms or if preferred three and a study. Two of the secondary bedrooms are upstairs and two downstairs. The kitchen, bathroom and ensuite have all been renovated to a high standard.
The well established, easy maintenance garden that surrounds the home is private, leafy and child friendly. The home is an easy walk to some of Canberra’s best schools, the cafes and boutiques of Manuka Village and a short drive to the Parliamentary Triangle and Lake Burley Griffin.
- Large rear deck, rebuilt in 2013 with NW orientation to maximize winter light & provide a view to Red Hill
- Ducted gas heating
- Lounge room includes study area
- Renovated kitchen and bathrooms
- Carport accommodates 2 cars and off street parking for 4 cars
- Hop step and a jump to Boys’Grammar, Red Hill Primary, French Preschool and St Bede’s Primary
Inspect
Contact agent
Listing agent
Perfectly located in a quiet tree lined street, this five bedroom home offers excellent accommodation. The spacious open plan living areas include separate formal lounge and dining rooms and a wonderful rumpus with an open fire place for cosy winter evenings. The stylish kitchen and light filled family room with cathedral ceiling open to a beautiful north facing rear deck, an ideal spot for year round get-togethers.
Sleep among the tree tops in the large master bedroom with walk-in robe and ensuite. There are four additional bedrooms or if preferred three and a study. Two of the secondary bedrooms are upstairs and two downstairs. The kitchen, bathroom and ensuite have all been renovated to a high standard.
The well established, easy maintenance garden that surrounds the home is private, leafy and child friendly. The home is an easy walk to some of Canberra’s best schools, the cafes and boutiques of Manuka Village and a short drive to the Parliamentary Triangle and Lake Burley Griffin.
- Large rear deck, rebuilt in 2013 with NW orientation to maximize winter light & provide a view to Red Hill
- Ducted gas heating
- Lounge room includes study area
- Renovated kitchen and bathrooms
- Carport accommodates 2 cars and off street parking for 4 cars
- Hop step and a jump to Boys’Grammar, Red Hill Primary, French Preschool and St Bede’s Primary
Read MoreSleep among the tree tops in the large master bedroom with walk-in robe and ensuite. There are four additional bedrooms or if preferred three and a study. Two of the secondary bedrooms are upstairs and two downstairs. The kitchen, bathroom and ensuite have all been renovated to a high standard.
The well established, easy maintenance garden that surrounds the home is private, leafy and child friendly. The home is an easy walk to some of Canberra’s best schools, the cafes and boutiques of Manuka Village and a short drive to the Parliamentary Triangle and Lake Burley Griffin.
- Large rear deck, rebuilt in 2013 with NW orientation to maximize winter light & provide a view to Red Hill
- Ducted gas heating
- Lounge room includes study area
- Renovated kitchen and bathrooms
- Carport accommodates 2 cars and off street parking for 4 cars
- Hop step and a jump to Boys’Grammar, Red Hill Primary, French Preschool and St Bede’s Primary

Location
16 Hicks Street
Red Hill ACT 2603
Details
5
2
2
EER: 1
House
Auction Saturday, 9 May 02:30 PM On-Site
Perfectly located in a quiet tree lined street, this five bedroom home offers excellent accommodation. The spacious open plan living areas include separate formal lounge and dining rooms and a wonderful rumpus with an open fire place for cosy winter evenings. The stylish kitchen and light filled family room with cathedral ceiling open to a beautiful north facing rear deck, an ideal spot for year round get-togethers.
Sleep among the tree tops in the large master bedroom with walk-in robe and ensuite. There are four additional bedrooms or if preferred three and a study. Two of the secondary bedrooms are upstairs and two downstairs. The kitchen, bathroom and ensuite have all been renovated to a high standard.
The well established, easy maintenance garden that surrounds the home is private, leafy and child friendly. The home is an easy walk to some of Canberra’s best schools, the cafes and boutiques of Manuka Village and a short drive to the Parliamentary Triangle and Lake Burley Griffin.
- Large rear deck, rebuilt in 2013 with NW orientation to maximize winter light & provide a view to Red Hill
- Ducted gas heating
- Lounge room includes study area
- Renovated kitchen and bathrooms
- Carport accommodates 2 cars and off street parking for 4 cars
- Hop step and a jump to Boys’Grammar, Red Hill Primary, French Preschool and St Bede’s Primary
Read MoreSleep among the tree tops in the large master bedroom with walk-in robe and ensuite. There are four additional bedrooms or if preferred three and a study. Two of the secondary bedrooms are upstairs and two downstairs. The kitchen, bathroom and ensuite have all been renovated to a high standard.
The well established, easy maintenance garden that surrounds the home is private, leafy and child friendly. The home is an easy walk to some of Canberra’s best schools, the cafes and boutiques of Manuka Village and a short drive to the Parliamentary Triangle and Lake Burley Griffin.
- Large rear deck, rebuilt in 2013 with NW orientation to maximize winter light & provide a view to Red Hill
- Ducted gas heating
- Lounge room includes study area
- Renovated kitchen and bathrooms
- Carport accommodates 2 cars and off street parking for 4 cars
- Hop step and a jump to Boys’Grammar, Red Hill Primary, French Preschool and St Bede’s Primary
Inspect
Contact agent

















































