Cosmopolitan Lifestyle - Shaken, not stirred!
Sold
Location
308/222 City Walk
City ACT 2601
Details
1
1
EER: 6.0
Apartment
Sold
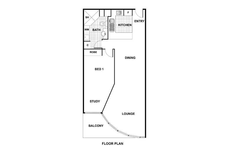
Perfectly situated in the heart of Canberra's CBD is this executive one bedroom one bathroom plus study apartment in the City Plaza' complex.
The large living area is complimented by the leafy outlook, a rare asset in an inner-city apartment. The extra-large bedroom includes a study and built in wardrobes.
The balcony is the perfect spot for a cup of tea or a glass of wine whilst you watch the world go by beneath you. You will be left pondering whether you stay put and enjoy the serenity, or whether you join the excitement of the City.
Currently tenanted at $380 per week on a periodic tenancy, rent it out for a great return or move in yourself and enjoy all the city has to offer.
Features -
- One bedroom, one bathroom
- Level 3
- Leafy outlook
- Large kitchen with stone benchtops and quality appliances
- Living area - 57m2
- Balcony area - 5m2
- Currently tenanted at $380 per week (a rental increase to $390 to take effect in December)
- Body corporate fees - $1,097.40 per quarter approx.
- Land Tax (if rented) - $539.83 per quarter approx.
- Rates - $408.88 per quarter approx.
- Located within walking distance of the Canberra Centre, Canberra Theatre and all the CBD has to offer
Read MoreThe large living area is complimented by the leafy outlook, a rare asset in an inner-city apartment. The extra-large bedroom includes a study and built in wardrobes.
The balcony is the perfect spot for a cup of tea or a glass of wine whilst you watch the world go by beneath you. You will be left pondering whether you stay put and enjoy the serenity, or whether you join the excitement of the City.
Currently tenanted at $380 per week on a periodic tenancy, rent it out for a great return or move in yourself and enjoy all the city has to offer.
Features -
- One bedroom, one bathroom
- Level 3
- Leafy outlook
- Large kitchen with stone benchtops and quality appliances
- Living area - 57m2
- Balcony area - 5m2
- Currently tenanted at $380 per week (a rental increase to $390 to take effect in December)
- Body corporate fees - $1,097.40 per quarter approx.
- Land Tax (if rented) - $539.83 per quarter approx.
- Rates - $408.88 per quarter approx.
- Located within walking distance of the Canberra Centre, Canberra Theatre and all the CBD has to offer
Inspect
Contact agent
Listing agent
Prior to enquiry or inspection of this property you may wish to review our Information Collection Notice and Privacy Policy.
Privacy & Collection NoticePerfectly situated in the heart of Canberra's CBD is this executive one bedroom one bathroom plus study apartment in the City Plaza' complex.
The large living area is complimented by the leafy outlook, a rare asset in an inner-city apartment. The extra-large bedroom includes a study and built in wardrobes.
The balcony is the perfect spot for a cup of tea or a glass of wine whilst you watch the world go by beneath you. You will be left pondering whether you stay put and enjoy the serenity, or whether you join the excitement of the City.
Currently tenanted at $380 per week on a periodic tenancy, rent it out for a great return or move in yourself and enjoy all the city has to offer.
Features -
- One bedroom, one bathroom
- Level 3
- Leafy outlook
- Large kitchen with stone benchtops and quality appliances
- Living area - 57m2
- Balcony area - 5m2
- Currently tenanted at $380 per week (a rental increase to $390 to take effect in December)
- Body corporate fees - $1,097.40 per quarter approx.
- Land Tax (if rented) - $539.83 per quarter approx.
- Rates - $408.88 per quarter approx.
- Located within walking distance of the Canberra Centre, Canberra Theatre and all the CBD has to offer
Read MoreThe large living area is complimented by the leafy outlook, a rare asset in an inner-city apartment. The extra-large bedroom includes a study and built in wardrobes.
The balcony is the perfect spot for a cup of tea or a glass of wine whilst you watch the world go by beneath you. You will be left pondering whether you stay put and enjoy the serenity, or whether you join the excitement of the City.
Currently tenanted at $380 per week on a periodic tenancy, rent it out for a great return or move in yourself and enjoy all the city has to offer.
Features -
- One bedroom, one bathroom
- Level 3
- Leafy outlook
- Large kitchen with stone benchtops and quality appliances
- Living area - 57m2
- Balcony area - 5m2
- Currently tenanted at $380 per week (a rental increase to $390 to take effect in December)
- Body corporate fees - $1,097.40 per quarter approx.
- Land Tax (if rented) - $539.83 per quarter approx.
- Rates - $408.88 per quarter approx.
- Located within walking distance of the Canberra Centre, Canberra Theatre and all the CBD has to offer

Location
308/222 City Walk
City ACT 2601
Details
1
1
EER: 6.0
Apartment
Sold
Perfectly situated in the heart of Canberra's CBD is this executive one bedroom one bathroom plus study apartment in the City Plaza' complex.
The large living area is complimented by the leafy outlook, a rare asset in an inner-city apartment. The extra-large bedroom includes a study and built in wardrobes.
The balcony is the perfect spot for a cup of tea or a glass of wine whilst you watch the world go by beneath you. You will be left pondering whether you stay put and enjoy the serenity, or whether you join the excitement of the City.
Currently tenanted at $380 per week on a periodic tenancy, rent it out for a great return or move in yourself and enjoy all the city has to offer.
Features -
- One bedroom, one bathroom
- Level 3
- Leafy outlook
- Large kitchen with stone benchtops and quality appliances
- Living area - 57m2
- Balcony area - 5m2
- Currently tenanted at $380 per week (a rental increase to $390 to take effect in December)
- Body corporate fees - $1,097.40 per quarter approx.
- Land Tax (if rented) - $539.83 per quarter approx.
- Rates - $408.88 per quarter approx.
- Located within walking distance of the Canberra Centre, Canberra Theatre and all the CBD has to offer
Read MoreThe large living area is complimented by the leafy outlook, a rare asset in an inner-city apartment. The extra-large bedroom includes a study and built in wardrobes.
The balcony is the perfect spot for a cup of tea or a glass of wine whilst you watch the world go by beneath you. You will be left pondering whether you stay put and enjoy the serenity, or whether you join the excitement of the City.
Currently tenanted at $380 per week on a periodic tenancy, rent it out for a great return or move in yourself and enjoy all the city has to offer.
Features -
- One bedroom, one bathroom
- Level 3
- Leafy outlook
- Large kitchen with stone benchtops and quality appliances
- Living area - 57m2
- Balcony area - 5m2
- Currently tenanted at $380 per week (a rental increase to $390 to take effect in December)
- Body corporate fees - $1,097.40 per quarter approx.
- Land Tax (if rented) - $539.83 per quarter approx.
- Rates - $408.88 per quarter approx.
- Located within walking distance of the Canberra Centre, Canberra Theatre and all the CBD has to offer
Inspect
Contact agent
Listing agent
Prior to enquiry or inspection of this property you may wish to review our Information Collection Notice and Privacy Policy.
Privacy & Collection Notice

















