Stunning 1920's Charm - Classic Family Residence
Sold
Location
43 Dominion Circuit
Forrest ACT 2603
Details
4
2
2
EER: 0.0
House
Auction Friday, 3 Dec 01:00 PM On site
Land area: | 1245 sqm (approx) |
Inspect Saturday by prior appointment. Contact agents to register.
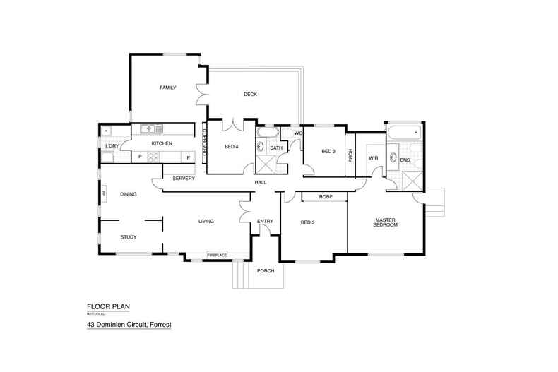
A rare opportunity for the discerning buyer. Placed within an established garden setting, a spacious, single-level character home. Exuding charm and sympathetically extended to maximise the indoor/outdoor flow. Ideal north to rear aspect, move straight in. A mix of formal and informal living spaces are characterised by high ceilings, timber sash windows and pleasant outlooks, with the rear kitchen/family room opening onto a brick terrace. The spacious bedrooms flow off a central hallway, serviced by a family bathroom and powder room. The master has a dressing room and ensuite. Positioned within walking distance of Manuka Village, Forrest Primary School and the Canberra Grammar Schools.
Features:
- 1920's family home in the heart of Forrest.
- Established gardens surrounding the home.
- Ducted reverse cycle heating and cooling throughout.
- Plantation shutters throughout.
- Traditional formal living and dining rooms, with feature fireplaces.
- Renovated kitchen with stainless steel appliances, stone bench tops and timber cabinetry.
- Extended family room, with feature windows and under-floor heating.
- Main bedroom with dressing room and renovated ensuite.
- Renovated family bathroom with separate W/C.
- Alarm system.
- Separate double garage with additional storage space (access off Sorrell Street).
- Walking distance to Manuka Village, Forrest Primary School and Canberra Grammar Schools.
Property Details:
- Living Size: 225sqm
- Block Size: 1245sqm
- EER: 0
Read MoreA rare opportunity for the discerning buyer. Placed within an established garden setting, a spacious, single-level character home. Exuding charm and sympathetically extended to maximise the indoor/outdoor flow. Ideal north to rear aspect, move straight in. A mix of formal and informal living spaces are characterised by high ceilings, timber sash windows and pleasant outlooks, with the rear kitchen/family room opening onto a brick terrace. The spacious bedrooms flow off a central hallway, serviced by a family bathroom and powder room. The master has a dressing room and ensuite. Positioned within walking distance of Manuka Village, Forrest Primary School and the Canberra Grammar Schools.
Features:
- 1920's family home in the heart of Forrest.
- Established gardens surrounding the home.
- Ducted reverse cycle heating and cooling throughout.
- Plantation shutters throughout.
- Traditional formal living and dining rooms, with feature fireplaces.
- Renovated kitchen with stainless steel appliances, stone bench tops and timber cabinetry.
- Extended family room, with feature windows and under-floor heating.
- Main bedroom with dressing room and renovated ensuite.
- Renovated family bathroom with separate W/C.
- Alarm system.
- Separate double garage with additional storage space (access off Sorrell Street).
- Walking distance to Manuka Village, Forrest Primary School and Canberra Grammar Schools.
Property Details:
- Living Size: 225sqm
- Block Size: 1245sqm
- EER: 0
Inspect
Contact agent
Listing agents
Inspect Saturday by prior appointment. Contact agents to register.
A rare opportunity for the discerning buyer. Placed within an established garden setting, a spacious, single-level character home. Exuding charm and sympathetically extended to maximise the indoor/outdoor flow. Ideal north to rear aspect, move straight in. A mix of formal and informal living spaces are characterised by high ceilings, timber sash windows and pleasant outlooks, with the rear kitchen/family room opening onto a brick terrace. The spacious bedrooms flow off a central hallway, serviced by a family bathroom and powder room. The master has a dressing room and ensuite. Positioned within walking distance of Manuka Village, Forrest Primary School and the Canberra Grammar Schools.
Features:
- 1920's family home in the heart of Forrest.
- Established gardens surrounding the home.
- Ducted reverse cycle heating and cooling throughout.
- Plantation shutters throughout.
- Traditional formal living and dining rooms, with feature fireplaces.
- Renovated kitchen with stainless steel appliances, stone bench tops and timber cabinetry.
- Extended family room, with feature windows and under-floor heating.
- Main bedroom with dressing room and renovated ensuite.
- Renovated family bathroom with separate W/C.
- Alarm system.
- Separate double garage with additional storage space (access off Sorrell Street).
- Walking distance to Manuka Village, Forrest Primary School and Canberra Grammar Schools.
Property Details:
- Living Size: 225sqm
- Block Size: 1245sqm
- EER: 0
Read MoreA rare opportunity for the discerning buyer. Placed within an established garden setting, a spacious, single-level character home. Exuding charm and sympathetically extended to maximise the indoor/outdoor flow. Ideal north to rear aspect, move straight in. A mix of formal and informal living spaces are characterised by high ceilings, timber sash windows and pleasant outlooks, with the rear kitchen/family room opening onto a brick terrace. The spacious bedrooms flow off a central hallway, serviced by a family bathroom and powder room. The master has a dressing room and ensuite. Positioned within walking distance of Manuka Village, Forrest Primary School and the Canberra Grammar Schools.
Features:
- 1920's family home in the heart of Forrest.
- Established gardens surrounding the home.
- Ducted reverse cycle heating and cooling throughout.
- Plantation shutters throughout.
- Traditional formal living and dining rooms, with feature fireplaces.
- Renovated kitchen with stainless steel appliances, stone bench tops and timber cabinetry.
- Extended family room, with feature windows and under-floor heating.
- Main bedroom with dressing room and renovated ensuite.
- Renovated family bathroom with separate W/C.
- Alarm system.
- Separate double garage with additional storage space (access off Sorrell Street).
- Walking distance to Manuka Village, Forrest Primary School and Canberra Grammar Schools.
Property Details:
- Living Size: 225sqm
- Block Size: 1245sqm
- EER: 0

Location
43 Dominion Circuit
Forrest ACT 2603
Details
4
2
2
EER: 0.0
House
Auction Friday, 3 Dec 01:00 PM On site
Land area: | 1245 sqm (approx) |
Inspect Saturday by prior appointment. Contact agents to register.
A rare opportunity for the discerning buyer. Placed within an established garden setting, a spacious, single-level character home. Exuding charm and sympathetically extended to maximise the indoor/outdoor flow. Ideal north to rear aspect, move straight in. A mix of formal and informal living spaces are characterised by high ceilings, timber sash windows and pleasant outlooks, with the rear kitchen/family room opening onto a brick terrace. The spacious bedrooms flow off a central hallway, serviced by a family bathroom and powder room. The master has a dressing room and ensuite. Positioned within walking distance of Manuka Village, Forrest Primary School and the Canberra Grammar Schools.
Features:
- 1920's family home in the heart of Forrest.
- Established gardens surrounding the home.
- Ducted reverse cycle heating and cooling throughout.
- Plantation shutters throughout.
- Traditional formal living and dining rooms, with feature fireplaces.
- Renovated kitchen with stainless steel appliances, stone bench tops and timber cabinetry.
- Extended family room, with feature windows and under-floor heating.
- Main bedroom with dressing room and renovated ensuite.
- Renovated family bathroom with separate W/C.
- Alarm system.
- Separate double garage with additional storage space (access off Sorrell Street).
- Walking distance to Manuka Village, Forrest Primary School and Canberra Grammar Schools.
Property Details:
- Living Size: 225sqm
- Block Size: 1245sqm
- EER: 0
Read MoreA rare opportunity for the discerning buyer. Placed within an established garden setting, a spacious, single-level character home. Exuding charm and sympathetically extended to maximise the indoor/outdoor flow. Ideal north to rear aspect, move straight in. A mix of formal and informal living spaces are characterised by high ceilings, timber sash windows and pleasant outlooks, with the rear kitchen/family room opening onto a brick terrace. The spacious bedrooms flow off a central hallway, serviced by a family bathroom and powder room. The master has a dressing room and ensuite. Positioned within walking distance of Manuka Village, Forrest Primary School and the Canberra Grammar Schools.
Features:
- 1920's family home in the heart of Forrest.
- Established gardens surrounding the home.
- Ducted reverse cycle heating and cooling throughout.
- Plantation shutters throughout.
- Traditional formal living and dining rooms, with feature fireplaces.
- Renovated kitchen with stainless steel appliances, stone bench tops and timber cabinetry.
- Extended family room, with feature windows and under-floor heating.
- Main bedroom with dressing room and renovated ensuite.
- Renovated family bathroom with separate W/C.
- Alarm system.
- Separate double garage with additional storage space (access off Sorrell Street).
- Walking distance to Manuka Village, Forrest Primary School and Canberra Grammar Schools.
Property Details:
- Living Size: 225sqm
- Block Size: 1245sqm
- EER: 0
Inspect
Contact agent






























































