Townhouse-style unit with courtyards
Sold
Location
Belle 59/31 Thynne Street
Bruce ACT 2617
Details
2
2
2
EER: 5.5
Apartment
$379,000+
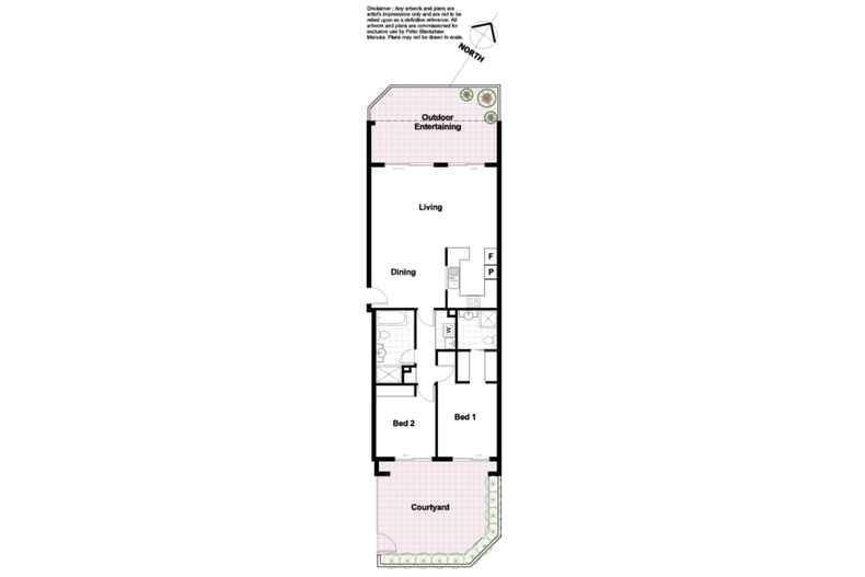
Located in the heart of the Fern Hill Park district and close to million dollar properties, this unit is arguably one of the best in the development. Situated on the ground floor and being the corner unit there is no common wall - occupants can enjoy outdoor living with both front and rear courtyards.
Once inside the home, be inspired by the high ceilings, the impressive proportions of the north-facing open plan living area and the well appointed kitchen. Enjoying a high EER rating of 5.5 stars, the floor to ceiling windows in the bedrooms have been fitted with magnetite doors for the double glazing effect. These bedrooms are also generously proportioned - the main has its own ensuite. Both rooms have built-in robes and there are extra storage cupboards throughout the apartment.
"They don't build them like this any more!" and unlike new or off the plan units, you can purchase this with confidence as the home has been tried and tested. Commence your home ownership journey with an inspection here as soon as possible. Offers prior to auction are welcome.
Features:
- High ceilings and impressively proportioned living area
- Contemporary kitchen with upgraded appliances
- 2 bed 2 bathroom ground floor apartment
- Front and rear courtyards
- 2 spacious bedrooms
- Laundry with dryer
- Reverse cycle air-conditioning unit
- 2 car parking spaces with storage cage within secured garage
Body Corporate: $772.74 per quarter
Land Tax (if rented out): $343.51pq
Rates: $308.73 pq
Unit Plan 3267 Unit 59
Apartment Size:98m2 (approx)
Estimated rental $380 - $400 per week
Read MoreOnce inside the home, be inspired by the high ceilings, the impressive proportions of the north-facing open plan living area and the well appointed kitchen. Enjoying a high EER rating of 5.5 stars, the floor to ceiling windows in the bedrooms have been fitted with magnetite doors for the double glazing effect. These bedrooms are also generously proportioned - the main has its own ensuite. Both rooms have built-in robes and there are extra storage cupboards throughout the apartment.
"They don't build them like this any more!" and unlike new or off the plan units, you can purchase this with confidence as the home has been tried and tested. Commence your home ownership journey with an inspection here as soon as possible. Offers prior to auction are welcome.
Features:
- High ceilings and impressively proportioned living area
- Contemporary kitchen with upgraded appliances
- 2 bed 2 bathroom ground floor apartment
- Front and rear courtyards
- 2 spacious bedrooms
- Laundry with dryer
- Reverse cycle air-conditioning unit
- 2 car parking spaces with storage cage within secured garage
Body Corporate: $772.74 per quarter
Land Tax (if rented out): $343.51pq
Rates: $308.73 pq
Unit Plan 3267 Unit 59
Apartment Size:98m2 (approx)
Estimated rental $380 - $400 per week
Inspect
Contact agent
Listing agents
Located in the heart of the Fern Hill Park district and close to million dollar properties, this unit is arguably one of the best in the development. Situated on the ground floor and being the corner unit there is no common wall - occupants can enjoy outdoor living with both front and rear courtyards.
Once inside the home, be inspired by the high ceilings, the impressive proportions of the north-facing open plan living area and the well appointed kitchen. Enjoying a high EER rating of 5.5 stars, the floor to ceiling windows in the bedrooms have been fitted with magnetite doors for the double glazing effect. These bedrooms are also generously proportioned - the main has its own ensuite. Both rooms have built-in robes and there are extra storage cupboards throughout the apartment.
"They don't build them like this any more!" and unlike new or off the plan units, you can purchase this with confidence as the home has been tried and tested. Commence your home ownership journey with an inspection here as soon as possible. Offers prior to auction are welcome.
Features:
- High ceilings and impressively proportioned living area
- Contemporary kitchen with upgraded appliances
- 2 bed 2 bathroom ground floor apartment
- Front and rear courtyards
- 2 spacious bedrooms
- Laundry with dryer
- Reverse cycle air-conditioning unit
- 2 car parking spaces with storage cage within secured garage
Body Corporate: $772.74 per quarter
Land Tax (if rented out): $343.51pq
Rates: $308.73 pq
Unit Plan 3267 Unit 59
Apartment Size:98m2 (approx)
Estimated rental $380 - $400 per week
Read MoreOnce inside the home, be inspired by the high ceilings, the impressive proportions of the north-facing open plan living area and the well appointed kitchen. Enjoying a high EER rating of 5.5 stars, the floor to ceiling windows in the bedrooms have been fitted with magnetite doors for the double glazing effect. These bedrooms are also generously proportioned - the main has its own ensuite. Both rooms have built-in robes and there are extra storage cupboards throughout the apartment.
"They don't build them like this any more!" and unlike new or off the plan units, you can purchase this with confidence as the home has been tried and tested. Commence your home ownership journey with an inspection here as soon as possible. Offers prior to auction are welcome.
Features:
- High ceilings and impressively proportioned living area
- Contemporary kitchen with upgraded appliances
- 2 bed 2 bathroom ground floor apartment
- Front and rear courtyards
- 2 spacious bedrooms
- Laundry with dryer
- Reverse cycle air-conditioning unit
- 2 car parking spaces with storage cage within secured garage
Body Corporate: $772.74 per quarter
Land Tax (if rented out): $343.51pq
Rates: $308.73 pq
Unit Plan 3267 Unit 59
Apartment Size:98m2 (approx)
Estimated rental $380 - $400 per week

Location
Belle 59/31 Thynne Street
Bruce ACT 2617
Details
2
2
2
EER: 5.5
Apartment
$379,000+
Located in the heart of the Fern Hill Park district and close to million dollar properties, this unit is arguably one of the best in the development. Situated on the ground floor and being the corner unit there is no common wall - occupants can enjoy outdoor living with both front and rear courtyards.
Once inside the home, be inspired by the high ceilings, the impressive proportions of the north-facing open plan living area and the well appointed kitchen. Enjoying a high EER rating of 5.5 stars, the floor to ceiling windows in the bedrooms have been fitted with magnetite doors for the double glazing effect. These bedrooms are also generously proportioned - the main has its own ensuite. Both rooms have built-in robes and there are extra storage cupboards throughout the apartment.
"They don't build them like this any more!" and unlike new or off the plan units, you can purchase this with confidence as the home has been tried and tested. Commence your home ownership journey with an inspection here as soon as possible. Offers prior to auction are welcome.
Features:
- High ceilings and impressively proportioned living area
- Contemporary kitchen with upgraded appliances
- 2 bed 2 bathroom ground floor apartment
- Front and rear courtyards
- 2 spacious bedrooms
- Laundry with dryer
- Reverse cycle air-conditioning unit
- 2 car parking spaces with storage cage within secured garage
Body Corporate: $772.74 per quarter
Land Tax (if rented out): $343.51pq
Rates: $308.73 pq
Unit Plan 3267 Unit 59
Apartment Size:98m2 (approx)
Estimated rental $380 - $400 per week
Read MoreOnce inside the home, be inspired by the high ceilings, the impressive proportions of the north-facing open plan living area and the well appointed kitchen. Enjoying a high EER rating of 5.5 stars, the floor to ceiling windows in the bedrooms have been fitted with magnetite doors for the double glazing effect. These bedrooms are also generously proportioned - the main has its own ensuite. Both rooms have built-in robes and there are extra storage cupboards throughout the apartment.
"They don't build them like this any more!" and unlike new or off the plan units, you can purchase this with confidence as the home has been tried and tested. Commence your home ownership journey with an inspection here as soon as possible. Offers prior to auction are welcome.
Features:
- High ceilings and impressively proportioned living area
- Contemporary kitchen with upgraded appliances
- 2 bed 2 bathroom ground floor apartment
- Front and rear courtyards
- 2 spacious bedrooms
- Laundry with dryer
- Reverse cycle air-conditioning unit
- 2 car parking spaces with storage cage within secured garage
Body Corporate: $772.74 per quarter
Land Tax (if rented out): $343.51pq
Rates: $308.73 pq
Unit Plan 3267 Unit 59
Apartment Size:98m2 (approx)
Estimated rental $380 - $400 per week
Inspect
Contact agent

























