An Ideal Position
Sold
Location
Lot 43/15 Cumberlege Crescent
Pearce ACT 2607
Details
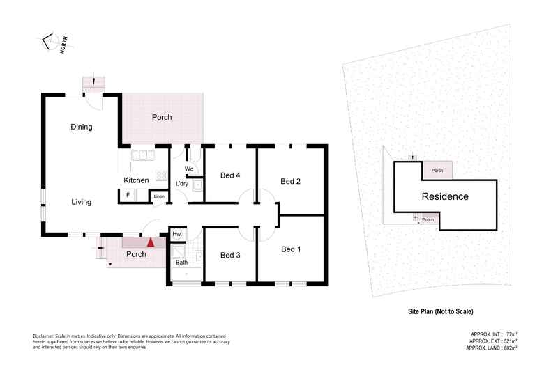
4
1
3
EER: 0
House
Sold
Offered to the market for the first time since 1967 this classic home embraces the innate family values of this ideal Woden Valley suburb.
Freshly updated throughout the practical layout incorporates the panoramic vista offered through this elevated location.
An open-plan living and dining space is overlooked by a fresh kitchen with stainless steel appliances. The space also offers feature timber flooring throughout.
Four bedrooms convene off a centralized hallway, all offering built-in wardrobes and new carpet. These spacious rooms are serviced by a family bathroom with separate W/C.
Step outside to the rear entertaining area, which takes in the ideal outlook towards the Woden Valley. It also overlooks the family-friendly backyard space; the perfect area for children to play.
Car accommodation is provided through a single garage with two adjacent carports.
Within walking distance to the well-regarded Pearce shops and local public and private schools the opportunity on offer at number 15 to enter this beautiful suburb should not be passed up.
Features:
Classic family home in a quiet, elevated location
Timber flooring throughout living areas
Updated kitchen with stainless steel appliances
New carpet and built-in wardrobes in all bedrooms
Family bathroom
Single garage and two carports
Family friendly garden
Sizeable workshop space under house
Elevated outlook towards Woden Valley and surrounds
Walking distance to shops and schools
Short walk/ride to Marist college
Read MoreFreshly updated throughout the practical layout incorporates the panoramic vista offered through this elevated location.
An open-plan living and dining space is overlooked by a fresh kitchen with stainless steel appliances. The space also offers feature timber flooring throughout.
Four bedrooms convene off a centralized hallway, all offering built-in wardrobes and new carpet. These spacious rooms are serviced by a family bathroom with separate W/C.
Step outside to the rear entertaining area, which takes in the ideal outlook towards the Woden Valley. It also overlooks the family-friendly backyard space; the perfect area for children to play.
Car accommodation is provided through a single garage with two adjacent carports.
Within walking distance to the well-regarded Pearce shops and local public and private schools the opportunity on offer at number 15 to enter this beautiful suburb should not be passed up.
Features:
Classic family home in a quiet, elevated location
Timber flooring throughout living areas
Updated kitchen with stainless steel appliances
New carpet and built-in wardrobes in all bedrooms
Family bathroom
Single garage and two carports
Family friendly garden
Sizeable workshop space under house
Elevated outlook towards Woden Valley and surrounds
Walking distance to shops and schools
Short walk/ride to Marist college
Inspect
Contact agent
Listing agent
Prior to enquiry or inspection of this property you may wish to review our Information Collection Notice and Privacy Policy.
Privacy & Collection NoticeOffered to the market for the first time since 1967 this classic home embraces the innate family values of this ideal Woden Valley suburb.
Freshly updated throughout the practical layout incorporates the panoramic vista offered through this elevated location.
An open-plan living and dining space is overlooked by a fresh kitchen with stainless steel appliances. The space also offers feature timber flooring throughout.
Four bedrooms convene off a centralized hallway, all offering built-in wardrobes and new carpet. These spacious rooms are serviced by a family bathroom with separate W/C.
Step outside to the rear entertaining area, which takes in the ideal outlook towards the Woden Valley. It also overlooks the family-friendly backyard space; the perfect area for children to play.
Car accommodation is provided through a single garage with two adjacent carports.
Within walking distance to the well-regarded Pearce shops and local public and private schools the opportunity on offer at number 15 to enter this beautiful suburb should not be passed up.
Features:
Classic family home in a quiet, elevated location
Timber flooring throughout living areas
Updated kitchen with stainless steel appliances
New carpet and built-in wardrobes in all bedrooms
Family bathroom
Single garage and two carports
Family friendly garden
Sizeable workshop space under house
Elevated outlook towards Woden Valley and surrounds
Walking distance to shops and schools
Short walk/ride to Marist college
Read MoreFreshly updated throughout the practical layout incorporates the panoramic vista offered through this elevated location.
An open-plan living and dining space is overlooked by a fresh kitchen with stainless steel appliances. The space also offers feature timber flooring throughout.
Four bedrooms convene off a centralized hallway, all offering built-in wardrobes and new carpet. These spacious rooms are serviced by a family bathroom with separate W/C.
Step outside to the rear entertaining area, which takes in the ideal outlook towards the Woden Valley. It also overlooks the family-friendly backyard space; the perfect area for children to play.
Car accommodation is provided through a single garage with two adjacent carports.
Within walking distance to the well-regarded Pearce shops and local public and private schools the opportunity on offer at number 15 to enter this beautiful suburb should not be passed up.
Features:
Classic family home in a quiet, elevated location
Timber flooring throughout living areas
Updated kitchen with stainless steel appliances
New carpet and built-in wardrobes in all bedrooms
Family bathroom
Single garage and two carports
Family friendly garden
Sizeable workshop space under house
Elevated outlook towards Woden Valley and surrounds
Walking distance to shops and schools
Short walk/ride to Marist college

Location
Lot 43/15 Cumberlege Crescent
Pearce ACT 2607
Details
4
1
3
EER: 0
House
Sold
Offered to the market for the first time since 1967 this classic home embraces the innate family values of this ideal Woden Valley suburb.
Freshly updated throughout the practical layout incorporates the panoramic vista offered through this elevated location.
An open-plan living and dining space is overlooked by a fresh kitchen with stainless steel appliances. The space also offers feature timber flooring throughout.
Four bedrooms convene off a centralized hallway, all offering built-in wardrobes and new carpet. These spacious rooms are serviced by a family bathroom with separate W/C.
Step outside to the rear entertaining area, which takes in the ideal outlook towards the Woden Valley. It also overlooks the family-friendly backyard space; the perfect area for children to play.
Car accommodation is provided through a single garage with two adjacent carports.
Within walking distance to the well-regarded Pearce shops and local public and private schools the opportunity on offer at number 15 to enter this beautiful suburb should not be passed up.
Features:
Classic family home in a quiet, elevated location
Timber flooring throughout living areas
Updated kitchen with stainless steel appliances
New carpet and built-in wardrobes in all bedrooms
Family bathroom
Single garage and two carports
Family friendly garden
Sizeable workshop space under house
Elevated outlook towards Woden Valley and surrounds
Walking distance to shops and schools
Short walk/ride to Marist college
Read MoreFreshly updated throughout the practical layout incorporates the panoramic vista offered through this elevated location.
An open-plan living and dining space is overlooked by a fresh kitchen with stainless steel appliances. The space also offers feature timber flooring throughout.
Four bedrooms convene off a centralized hallway, all offering built-in wardrobes and new carpet. These spacious rooms are serviced by a family bathroom with separate W/C.
Step outside to the rear entertaining area, which takes in the ideal outlook towards the Woden Valley. It also overlooks the family-friendly backyard space; the perfect area for children to play.
Car accommodation is provided through a single garage with two adjacent carports.
Within walking distance to the well-regarded Pearce shops and local public and private schools the opportunity on offer at number 15 to enter this beautiful suburb should not be passed up.
Features:
Classic family home in a quiet, elevated location
Timber flooring throughout living areas
Updated kitchen with stainless steel appliances
New carpet and built-in wardrobes in all bedrooms
Family bathroom
Single garage and two carports
Family friendly garden
Sizeable workshop space under house
Elevated outlook towards Woden Valley and surrounds
Walking distance to shops and schools
Short walk/ride to Marist college
Inspect
Contact agent
Listing agent
Prior to enquiry or inspection of this property you may wish to review our Information Collection Notice and Privacy Policy.
Privacy & Collection Notice





























