Turn-key Property in Blue Ribbon Location
Sold
Location
Lot 61/2 Sprent Street
Narrabundah ACT 2604
Details
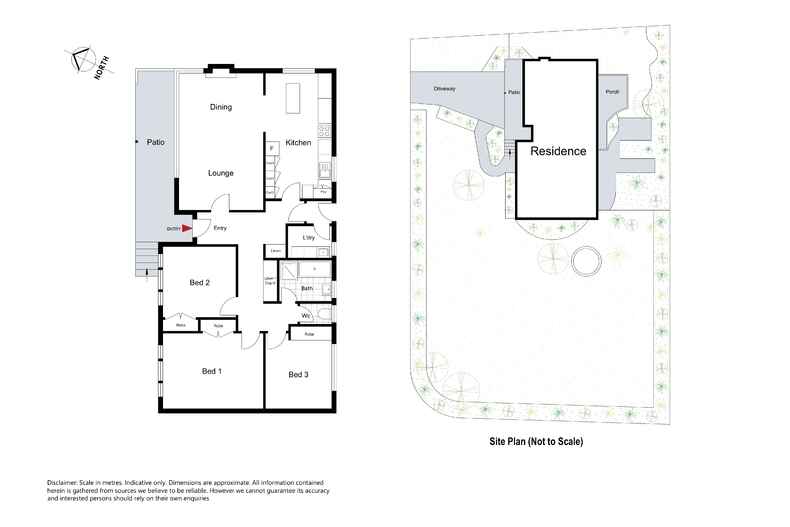
3
1
2
EER: 1
House
Auction Saturday, 28 Oct 10:30 AM On-Site
Land area: | 884 sqm (approx) |
From the moment you open the front door at 2 Sprent Street, you will realize this is a property offering the ultimate in lifestyle, comfort and style.
The recently renovated, state-of-the-art kitchen is the ultimate in style and sophistication. Designed to suit the avid chef, the quality stone bench tops and top of the range appliances add to the luxurious room. Jamie Oliver himself would be jealous.
The light filled living and dining room creates a warm ambiance and is the perfect spot to enjoy the view of this elevated position.
The sleeping quarters supports three generously sized bedrooms all with built in robes. Nearby is the renovated bathroom and separate toilet.
The alfresco area to the rear of the property is waiting for you to invite your friends and family over for a Sunday afternoon barbeque. Lush lawns meet you at the foot of the deck and pull you into the manicured gardens. To the side of the home is a grassed space large enough to play some backyard cricket and a round or two of soccer we have been told.
There is a double garage plus a large storage room under the house that would be perfect for a cellar or additional storage.
Situated on a large block of 884m2 in the highly sought after Upper Narrabundah, 2 Sprent Street's location is without compromise.
The home is a short stroll to Red Hill Primary School and is located within the catchment area of some of Canberra's best schools such as Telopea Park School, Red Hill Primary School and Narrabundah College.
This is only the second time that this property has ever been offered for sale. It offers a generous three bedroom home positioned in an attractive tree lined street in a tightly held part of the Inner South, with ample land for the successful buyer to extend if they desire.
Features Include:
- Excellent northerly aspect to all living areas, master bedroom and second bedroom
- Renovated kitchen with stone bench tops and quality appliances
- Floorboards throughout living areas
- 3 well sized bedrooms all with built in wardrobes
- Renovated bathroom with separate toilet
- Continuous flow gas hot water system
- Ducted gas heating and evaporative cooling
- Well sized backyard and side yard
- Alfresco dining area
- Double garage
- Under house storage and workbench
- Block size - 884m2 (approx)
- Living size - 123m2 (approx)
- UV - $602,000 (17/18)
- Rates - $3576 per annum approx
Read MoreThe recently renovated, state-of-the-art kitchen is the ultimate in style and sophistication. Designed to suit the avid chef, the quality stone bench tops and top of the range appliances add to the luxurious room. Jamie Oliver himself would be jealous.
The light filled living and dining room creates a warm ambiance and is the perfect spot to enjoy the view of this elevated position.
The sleeping quarters supports three generously sized bedrooms all with built in robes. Nearby is the renovated bathroom and separate toilet.
The alfresco area to the rear of the property is waiting for you to invite your friends and family over for a Sunday afternoon barbeque. Lush lawns meet you at the foot of the deck and pull you into the manicured gardens. To the side of the home is a grassed space large enough to play some backyard cricket and a round or two of soccer we have been told.
There is a double garage plus a large storage room under the house that would be perfect for a cellar or additional storage.
Situated on a large block of 884m2 in the highly sought after Upper Narrabundah, 2 Sprent Street's location is without compromise.
The home is a short stroll to Red Hill Primary School and is located within the catchment area of some of Canberra's best schools such as Telopea Park School, Red Hill Primary School and Narrabundah College.
This is only the second time that this property has ever been offered for sale. It offers a generous three bedroom home positioned in an attractive tree lined street in a tightly held part of the Inner South, with ample land for the successful buyer to extend if they desire.
Features Include:
- Excellent northerly aspect to all living areas, master bedroom and second bedroom
- Renovated kitchen with stone bench tops and quality appliances
- Floorboards throughout living areas
- 3 well sized bedrooms all with built in wardrobes
- Renovated bathroom with separate toilet
- Continuous flow gas hot water system
- Ducted gas heating and evaporative cooling
- Well sized backyard and side yard
- Alfresco dining area
- Double garage
- Under house storage and workbench
- Block size - 884m2 (approx)
- Living size - 123m2 (approx)
- UV - $602,000 (17/18)
- Rates - $3576 per annum approx
Inspect
Contact agent
Listing agents
From the moment you open the front door at 2 Sprent Street, you will realize this is a property offering the ultimate in lifestyle, comfort and style.
The recently renovated, state-of-the-art kitchen is the ultimate in style and sophistication. Designed to suit the avid chef, the quality stone bench tops and top of the range appliances add to the luxurious room. Jamie Oliver himself would be jealous.
The light filled living and dining room creates a warm ambiance and is the perfect spot to enjoy the view of this elevated position.
The sleeping quarters supports three generously sized bedrooms all with built in robes. Nearby is the renovated bathroom and separate toilet.
The alfresco area to the rear of the property is waiting for you to invite your friends and family over for a Sunday afternoon barbeque. Lush lawns meet you at the foot of the deck and pull you into the manicured gardens. To the side of the home is a grassed space large enough to play some backyard cricket and a round or two of soccer we have been told.
There is a double garage plus a large storage room under the house that would be perfect for a cellar or additional storage.
Situated on a large block of 884m2 in the highly sought after Upper Narrabundah, 2 Sprent Street's location is without compromise.
The home is a short stroll to Red Hill Primary School and is located within the catchment area of some of Canberra's best schools such as Telopea Park School, Red Hill Primary School and Narrabundah College.
This is only the second time that this property has ever been offered for sale. It offers a generous three bedroom home positioned in an attractive tree lined street in a tightly held part of the Inner South, with ample land for the successful buyer to extend if they desire.
Features Include:
- Excellent northerly aspect to all living areas, master bedroom and second bedroom
- Renovated kitchen with stone bench tops and quality appliances
- Floorboards throughout living areas
- 3 well sized bedrooms all with built in wardrobes
- Renovated bathroom with separate toilet
- Continuous flow gas hot water system
- Ducted gas heating and evaporative cooling
- Well sized backyard and side yard
- Alfresco dining area
- Double garage
- Under house storage and workbench
- Block size - 884m2 (approx)
- Living size - 123m2 (approx)
- UV - $602,000 (17/18)
- Rates - $3576 per annum approx
Read MoreThe recently renovated, state-of-the-art kitchen is the ultimate in style and sophistication. Designed to suit the avid chef, the quality stone bench tops and top of the range appliances add to the luxurious room. Jamie Oliver himself would be jealous.
The light filled living and dining room creates a warm ambiance and is the perfect spot to enjoy the view of this elevated position.
The sleeping quarters supports three generously sized bedrooms all with built in robes. Nearby is the renovated bathroom and separate toilet.
The alfresco area to the rear of the property is waiting for you to invite your friends and family over for a Sunday afternoon barbeque. Lush lawns meet you at the foot of the deck and pull you into the manicured gardens. To the side of the home is a grassed space large enough to play some backyard cricket and a round or two of soccer we have been told.
There is a double garage plus a large storage room under the house that would be perfect for a cellar or additional storage.
Situated on a large block of 884m2 in the highly sought after Upper Narrabundah, 2 Sprent Street's location is without compromise.
The home is a short stroll to Red Hill Primary School and is located within the catchment area of some of Canberra's best schools such as Telopea Park School, Red Hill Primary School and Narrabundah College.
This is only the second time that this property has ever been offered for sale. It offers a generous three bedroom home positioned in an attractive tree lined street in a tightly held part of the Inner South, with ample land for the successful buyer to extend if they desire.
Features Include:
- Excellent northerly aspect to all living areas, master bedroom and second bedroom
- Renovated kitchen with stone bench tops and quality appliances
- Floorboards throughout living areas
- 3 well sized bedrooms all with built in wardrobes
- Renovated bathroom with separate toilet
- Continuous flow gas hot water system
- Ducted gas heating and evaporative cooling
- Well sized backyard and side yard
- Alfresco dining area
- Double garage
- Under house storage and workbench
- Block size - 884m2 (approx)
- Living size - 123m2 (approx)
- UV - $602,000 (17/18)
- Rates - $3576 per annum approx

Location
Lot 61/2 Sprent Street
Narrabundah ACT 2604
Details
3
1
2
EER: 1
House
Auction Saturday, 28 Oct 10:30 AM On-Site
Land area: | 884 sqm (approx) |
From the moment you open the front door at 2 Sprent Street, you will realize this is a property offering the ultimate in lifestyle, comfort and style.
The recently renovated, state-of-the-art kitchen is the ultimate in style and sophistication. Designed to suit the avid chef, the quality stone bench tops and top of the range appliances add to the luxurious room. Jamie Oliver himself would be jealous.
The light filled living and dining room creates a warm ambiance and is the perfect spot to enjoy the view of this elevated position.
The sleeping quarters supports three generously sized bedrooms all with built in robes. Nearby is the renovated bathroom and separate toilet.
The alfresco area to the rear of the property is waiting for you to invite your friends and family over for a Sunday afternoon barbeque. Lush lawns meet you at the foot of the deck and pull you into the manicured gardens. To the side of the home is a grassed space large enough to play some backyard cricket and a round or two of soccer we have been told.
There is a double garage plus a large storage room under the house that would be perfect for a cellar or additional storage.
Situated on a large block of 884m2 in the highly sought after Upper Narrabundah, 2 Sprent Street's location is without compromise.
The home is a short stroll to Red Hill Primary School and is located within the catchment area of some of Canberra's best schools such as Telopea Park School, Red Hill Primary School and Narrabundah College.
This is only the second time that this property has ever been offered for sale. It offers a generous three bedroom home positioned in an attractive tree lined street in a tightly held part of the Inner South, with ample land for the successful buyer to extend if they desire.
Features Include:
- Excellent northerly aspect to all living areas, master bedroom and second bedroom
- Renovated kitchen with stone bench tops and quality appliances
- Floorboards throughout living areas
- 3 well sized bedrooms all with built in wardrobes
- Renovated bathroom with separate toilet
- Continuous flow gas hot water system
- Ducted gas heating and evaporative cooling
- Well sized backyard and side yard
- Alfresco dining area
- Double garage
- Under house storage and workbench
- Block size - 884m2 (approx)
- Living size - 123m2 (approx)
- UV - $602,000 (17/18)
- Rates - $3576 per annum approx
Read MoreThe recently renovated, state-of-the-art kitchen is the ultimate in style and sophistication. Designed to suit the avid chef, the quality stone bench tops and top of the range appliances add to the luxurious room. Jamie Oliver himself would be jealous.
The light filled living and dining room creates a warm ambiance and is the perfect spot to enjoy the view of this elevated position.
The sleeping quarters supports three generously sized bedrooms all with built in robes. Nearby is the renovated bathroom and separate toilet.
The alfresco area to the rear of the property is waiting for you to invite your friends and family over for a Sunday afternoon barbeque. Lush lawns meet you at the foot of the deck and pull you into the manicured gardens. To the side of the home is a grassed space large enough to play some backyard cricket and a round or two of soccer we have been told.
There is a double garage plus a large storage room under the house that would be perfect for a cellar or additional storage.
Situated on a large block of 884m2 in the highly sought after Upper Narrabundah, 2 Sprent Street's location is without compromise.
The home is a short stroll to Red Hill Primary School and is located within the catchment area of some of Canberra's best schools such as Telopea Park School, Red Hill Primary School and Narrabundah College.
This is only the second time that this property has ever been offered for sale. It offers a generous three bedroom home positioned in an attractive tree lined street in a tightly held part of the Inner South, with ample land for the successful buyer to extend if they desire.
Features Include:
- Excellent northerly aspect to all living areas, master bedroom and second bedroom
- Renovated kitchen with stone bench tops and quality appliances
- Floorboards throughout living areas
- 3 well sized bedrooms all with built in wardrobes
- Renovated bathroom with separate toilet
- Continuous flow gas hot water system
- Ducted gas heating and evaporative cooling
- Well sized backyard and side yard
- Alfresco dining area
- Double garage
- Under house storage and workbench
- Block size - 884m2 (approx)
- Living size - 123m2 (approx)
- UV - $602,000 (17/18)
- Rates - $3576 per annum approx
Inspect
Contact agent





























