Separate title, with no strata fees!
Sold
Location
27 William Cooper Avenue
Bonner ACT 2914
Details
2
1
1
EER: 5.0
Terrace
$612,000
This modern two-bedroom townhouse is beautifully presented and centrally located, directly opposite Neville Bonner Primary School and only minutes drive to the Gungahlin Marketplace.
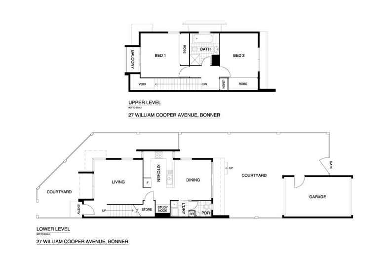
Set over two levels, the floorplan offers two oversized bedrooms with large built-in robes on the upper level. The master is fitted with split system air conditioning and opens to a private balcony with northerly views. Serviced by a spacious bathroom with bathtub, corner shower and heat lamps. A linen cupboard provides for additional storage needs.
On the lower level, a welcoming lounge room leads to the designer kitchen with a dishwasher, electric cooking, double door pantry and plenty of natural light.
The kitchen overlooks the tiled dining space with sliding doors that open out to the large, enclosed, easy-care, sunny courtyard where you can enjoy an early morning coffee under the pergola.
A study nook, NBN connection, internal laundry, and guest powder room complete the picture.
Single garage with auto roller door and drive-through access to rear courtyard for bikes or trailer.
Additional features include NBN and Nobo mounted panel heaters. One of the best features of the home is no strata meaning no body corporate fees, as well as a great location within walking distance to a wide range of amenities.
A brilliant first home, downsizing option or investment, this home caters for a huge demographic and is absolutely one for the inspection list!
Features:
- Two-storey design with the bedrooms upstairs and living areas downstairs
- Northerly aspect
- New carpet throughout
- Tiled meals area
- Study nook
- Large built-in robes in both bedrooms
- Dishwasher, electric cooking plus plenty of cupboards
- Separate bath and shower in the bathroom
- Balcony off the main bedroom
- Wall-mounted Nobo heaters
- Spilt system heating and cooling on both levels
- Downstairs extra powder room
- Internal laundry with guest powder room
- Linen cupboard
- Drive through access from the single garage with auto door
- End position which allows extra sunlight
- Fully enclosed, easy-care rear courtyard
- Rinnai hot water system
Built: 2017 by Ram Constructions
Living: 97m2
Garage: 24m2
Block: 206m2
EER: 5 stars
Rates: $440 per quarter approx
Land Tax: $566 per quarter approx
Aspect: North-east
Rent Potential: $460-$470 per week
In line with Government requirements, we will require you to check in via the COVID Safe app prior to entering the property. Please consider wearing a face mask when attending open homes or inspections and social distancing will be enforced. Thank you for your consideration.
Read MoreSet over two levels, the floorplan offers two oversized bedrooms with large built-in robes on the upper level. The master is fitted with split system air conditioning and opens to a private balcony with northerly views. Serviced by a spacious bathroom with bathtub, corner shower and heat lamps. A linen cupboard provides for additional storage needs.
On the lower level, a welcoming lounge room leads to the designer kitchen with a dishwasher, electric cooking, double door pantry and plenty of natural light.
The kitchen overlooks the tiled dining space with sliding doors that open out to the large, enclosed, easy-care, sunny courtyard where you can enjoy an early morning coffee under the pergola.
A study nook, NBN connection, internal laundry, and guest powder room complete the picture.
Single garage with auto roller door and drive-through access to rear courtyard for bikes or trailer.
Additional features include NBN and Nobo mounted panel heaters. One of the best features of the home is no strata meaning no body corporate fees, as well as a great location within walking distance to a wide range of amenities.
A brilliant first home, downsizing option or investment, this home caters for a huge demographic and is absolutely one for the inspection list!
Features:
- Two-storey design with the bedrooms upstairs and living areas downstairs
- Northerly aspect
- New carpet throughout
- Tiled meals area
- Study nook
- Large built-in robes in both bedrooms
- Dishwasher, electric cooking plus plenty of cupboards
- Separate bath and shower in the bathroom
- Balcony off the main bedroom
- Wall-mounted Nobo heaters
- Spilt system heating and cooling on both levels
- Downstairs extra powder room
- Internal laundry with guest powder room
- Linen cupboard
- Drive through access from the single garage with auto door
- End position which allows extra sunlight
- Fully enclosed, easy-care rear courtyard
- Rinnai hot water system
Built: 2017 by Ram Constructions
Living: 97m2
Garage: 24m2
Block: 206m2
EER: 5 stars
Rates: $440 per quarter approx
Land Tax: $566 per quarter approx
Aspect: North-east
Rent Potential: $460-$470 per week
In line with Government requirements, we will require you to check in via the COVID Safe app prior to entering the property. Please consider wearing a face mask when attending open homes or inspections and social distancing will be enforced. Thank you for your consideration.
Inspect
Contact agent
Listing agent
This modern two-bedroom townhouse is beautifully presented and centrally located, directly opposite Neville Bonner Primary School and only minutes drive to the Gungahlin Marketplace.
Set over two levels, the floorplan offers two oversized bedrooms with large built-in robes on the upper level. The master is fitted with split system air conditioning and opens to a private balcony with northerly views. Serviced by a spacious bathroom with bathtub, corner shower and heat lamps. A linen cupboard provides for additional storage needs.
On the lower level, a welcoming lounge room leads to the designer kitchen with a dishwasher, electric cooking, double door pantry and plenty of natural light.
The kitchen overlooks the tiled dining space with sliding doors that open out to the large, enclosed, easy-care, sunny courtyard where you can enjoy an early morning coffee under the pergola.
A study nook, NBN connection, internal laundry, and guest powder room complete the picture.
Single garage with auto roller door and drive-through access to rear courtyard for bikes or trailer.
Additional features include NBN and Nobo mounted panel heaters. One of the best features of the home is no strata meaning no body corporate fees, as well as a great location within walking distance to a wide range of amenities.
A brilliant first home, downsizing option or investment, this home caters for a huge demographic and is absolutely one for the inspection list!
Features:
- Two-storey design with the bedrooms upstairs and living areas downstairs
- Northerly aspect
- New carpet throughout
- Tiled meals area
- Study nook
- Large built-in robes in both bedrooms
- Dishwasher, electric cooking plus plenty of cupboards
- Separate bath and shower in the bathroom
- Balcony off the main bedroom
- Wall-mounted Nobo heaters
- Spilt system heating and cooling on both levels
- Downstairs extra powder room
- Internal laundry with guest powder room
- Linen cupboard
- Drive through access from the single garage with auto door
- End position which allows extra sunlight
- Fully enclosed, easy-care rear courtyard
- Rinnai hot water system
Built: 2017 by Ram Constructions
Living: 97m2
Garage: 24m2
Block: 206m2
EER: 5 stars
Rates: $440 per quarter approx
Land Tax: $566 per quarter approx
Aspect: North-east
Rent Potential: $460-$470 per week
In line with Government requirements, we will require you to check in via the COVID Safe app prior to entering the property. Please consider wearing a face mask when attending open homes or inspections and social distancing will be enforced. Thank you for your consideration.
Read MoreSet over two levels, the floorplan offers two oversized bedrooms with large built-in robes on the upper level. The master is fitted with split system air conditioning and opens to a private balcony with northerly views. Serviced by a spacious bathroom with bathtub, corner shower and heat lamps. A linen cupboard provides for additional storage needs.
On the lower level, a welcoming lounge room leads to the designer kitchen with a dishwasher, electric cooking, double door pantry and plenty of natural light.
The kitchen overlooks the tiled dining space with sliding doors that open out to the large, enclosed, easy-care, sunny courtyard where you can enjoy an early morning coffee under the pergola.
A study nook, NBN connection, internal laundry, and guest powder room complete the picture.
Single garage with auto roller door and drive-through access to rear courtyard for bikes or trailer.
Additional features include NBN and Nobo mounted panel heaters. One of the best features of the home is no strata meaning no body corporate fees, as well as a great location within walking distance to a wide range of amenities.
A brilliant first home, downsizing option or investment, this home caters for a huge demographic and is absolutely one for the inspection list!
Features:
- Two-storey design with the bedrooms upstairs and living areas downstairs
- Northerly aspect
- New carpet throughout
- Tiled meals area
- Study nook
- Large built-in robes in both bedrooms
- Dishwasher, electric cooking plus plenty of cupboards
- Separate bath and shower in the bathroom
- Balcony off the main bedroom
- Wall-mounted Nobo heaters
- Spilt system heating and cooling on both levels
- Downstairs extra powder room
- Internal laundry with guest powder room
- Linen cupboard
- Drive through access from the single garage with auto door
- End position which allows extra sunlight
- Fully enclosed, easy-care rear courtyard
- Rinnai hot water system
Built: 2017 by Ram Constructions
Living: 97m2
Garage: 24m2
Block: 206m2
EER: 5 stars
Rates: $440 per quarter approx
Land Tax: $566 per quarter approx
Aspect: North-east
Rent Potential: $460-$470 per week
In line with Government requirements, we will require you to check in via the COVID Safe app prior to entering the property. Please consider wearing a face mask when attending open homes or inspections and social distancing will be enforced. Thank you for your consideration.

Location
27 William Cooper Avenue
Bonner ACT 2914
Details
2
1
1
EER: 5.0
Terrace
$612,000
This modern two-bedroom townhouse is beautifully presented and centrally located, directly opposite Neville Bonner Primary School and only minutes drive to the Gungahlin Marketplace.
Set over two levels, the floorplan offers two oversized bedrooms with large built-in robes on the upper level. The master is fitted with split system air conditioning and opens to a private balcony with northerly views. Serviced by a spacious bathroom with bathtub, corner shower and heat lamps. A linen cupboard provides for additional storage needs.
On the lower level, a welcoming lounge room leads to the designer kitchen with a dishwasher, electric cooking, double door pantry and plenty of natural light.
The kitchen overlooks the tiled dining space with sliding doors that open out to the large, enclosed, easy-care, sunny courtyard where you can enjoy an early morning coffee under the pergola.
A study nook, NBN connection, internal laundry, and guest powder room complete the picture.
Single garage with auto roller door and drive-through access to rear courtyard for bikes or trailer.
Additional features include NBN and Nobo mounted panel heaters. One of the best features of the home is no strata meaning no body corporate fees, as well as a great location within walking distance to a wide range of amenities.
A brilliant first home, downsizing option or investment, this home caters for a huge demographic and is absolutely one for the inspection list!
Features:
- Two-storey design with the bedrooms upstairs and living areas downstairs
- Northerly aspect
- New carpet throughout
- Tiled meals area
- Study nook
- Large built-in robes in both bedrooms
- Dishwasher, electric cooking plus plenty of cupboards
- Separate bath and shower in the bathroom
- Balcony off the main bedroom
- Wall-mounted Nobo heaters
- Spilt system heating and cooling on both levels
- Downstairs extra powder room
- Internal laundry with guest powder room
- Linen cupboard
- Drive through access from the single garage with auto door
- End position which allows extra sunlight
- Fully enclosed, easy-care rear courtyard
- Rinnai hot water system
Built: 2017 by Ram Constructions
Living: 97m2
Garage: 24m2
Block: 206m2
EER: 5 stars
Rates: $440 per quarter approx
Land Tax: $566 per quarter approx
Aspect: North-east
Rent Potential: $460-$470 per week
In line with Government requirements, we will require you to check in via the COVID Safe app prior to entering the property. Please consider wearing a face mask when attending open homes or inspections and social distancing will be enforced. Thank you for your consideration.
Read MoreSet over two levels, the floorplan offers two oversized bedrooms with large built-in robes on the upper level. The master is fitted with split system air conditioning and opens to a private balcony with northerly views. Serviced by a spacious bathroom with bathtub, corner shower and heat lamps. A linen cupboard provides for additional storage needs.
On the lower level, a welcoming lounge room leads to the designer kitchen with a dishwasher, electric cooking, double door pantry and plenty of natural light.
The kitchen overlooks the tiled dining space with sliding doors that open out to the large, enclosed, easy-care, sunny courtyard where you can enjoy an early morning coffee under the pergola.
A study nook, NBN connection, internal laundry, and guest powder room complete the picture.
Single garage with auto roller door and drive-through access to rear courtyard for bikes or trailer.
Additional features include NBN and Nobo mounted panel heaters. One of the best features of the home is no strata meaning no body corporate fees, as well as a great location within walking distance to a wide range of amenities.
A brilliant first home, downsizing option or investment, this home caters for a huge demographic and is absolutely one for the inspection list!
Features:
- Two-storey design with the bedrooms upstairs and living areas downstairs
- Northerly aspect
- New carpet throughout
- Tiled meals area
- Study nook
- Large built-in robes in both bedrooms
- Dishwasher, electric cooking plus plenty of cupboards
- Separate bath and shower in the bathroom
- Balcony off the main bedroom
- Wall-mounted Nobo heaters
- Spilt system heating and cooling on both levels
- Downstairs extra powder room
- Internal laundry with guest powder room
- Linen cupboard
- Drive through access from the single garage with auto door
- End position which allows extra sunlight
- Fully enclosed, easy-care rear courtyard
- Rinnai hot water system
Built: 2017 by Ram Constructions
Living: 97m2
Garage: 24m2
Block: 206m2
EER: 5 stars
Rates: $440 per quarter approx
Land Tax: $566 per quarter approx
Aspect: North-east
Rent Potential: $460-$470 per week
In line with Government requirements, we will require you to check in via the COVID Safe app prior to entering the property. Please consider wearing a face mask when attending open homes or inspections and social distancing will be enforced. Thank you for your consideration.
Inspect
Contact agent








































