"BELLSVIEW"
Sold
Location
66/2 Rouseabout Street
Lawson ACT 2617
Details
2
2
1
EER: 6.0
Townhouse
$530,000
Available: | Now |
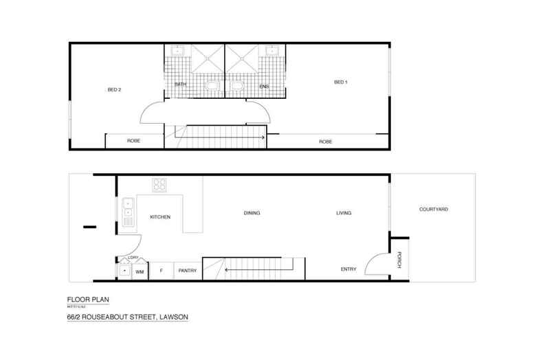
This modern, two storey, two bedroom townhouse is situated in the "Bellsview" complex and presents beautifully.
Currently tenanted at $500 per week in a fixed term agreement until March 2022, the property is an attractive investment, or a great home to live in once the tenancy expires.
The townhouse is North East facing and upon entry you are greeted by a neat, private and sunny courtyard.
Stepping inside, the open plan design offers living space with room for lounge and dining set up and flows through to the very well appointed kitchen with Blanco appliances including 5 burner gas cooktop, under bench oven, dishwasher and built in microwave. The stone benchtops, undermount sink, soft close drawers, breakfast bar, modern splash back and abundance of cupboard space complete the picture and make whipping up the evening meal a real delight.
Upstairs, both bedrooms are well proportioned with sliding mirror wardrobes built in and serviced by their own, attractive bathrooms with floor to ceiling tiles, heat lights, corner showers and floating vanities.
The ducted reverse cycle cooling and heating ensure year round comfort.
Brilliantly located, Lawson is close to both, Westfield Belconnen and the Gungahlin marketplace, plenty of restaurants and cafes, the University of Canberra, GIO Stadium and Calvary Hospital. Also, only a short drive or bike ride to the City Centre.
Feature packed, this home is sure to impress.
- Two bedrooms, each with built in wardrobe
- Ducted Daikin reverse cycle air conditioning & heating throughout
- North East facing, open plan living
- Beautifuly appointed kitchen with under mount sink, Blanco appliances and stone benchtops
- Separately metered for water
- Both bathrooms tiled from floor to ceiling
- BBQ gas point in courtyard
- Storage under staircase
- Landscaped, easy care and private courtyards
- NBN ready
- Rheem continuous flow hot water
- Hideaway laundry on ground level
- Single allocated car space in complex
EER: 6 star
Living: 81m2 approx
Rates: $375 per quarter approx
Land Tax: $453 per quarter approx
Levies: $570 per quarter approx (Vantage Strata)
Aspect: North East
Built: 2016 by Art Homes
Rent Per Week: $500
In line with Government requirements, we will require you to check in via the COVID Safe app prior to entering the property. Please consider wearing a face mask when attending open homes or inspections, for your own protection. Social distancing will be enforced. Thank you for your consideration.
Read MoreCurrently tenanted at $500 per week in a fixed term agreement until March 2022, the property is an attractive investment, or a great home to live in once the tenancy expires.
The townhouse is North East facing and upon entry you are greeted by a neat, private and sunny courtyard.
Stepping inside, the open plan design offers living space with room for lounge and dining set up and flows through to the very well appointed kitchen with Blanco appliances including 5 burner gas cooktop, under bench oven, dishwasher and built in microwave. The stone benchtops, undermount sink, soft close drawers, breakfast bar, modern splash back and abundance of cupboard space complete the picture and make whipping up the evening meal a real delight.
Upstairs, both bedrooms are well proportioned with sliding mirror wardrobes built in and serviced by their own, attractive bathrooms with floor to ceiling tiles, heat lights, corner showers and floating vanities.
The ducted reverse cycle cooling and heating ensure year round comfort.
Brilliantly located, Lawson is close to both, Westfield Belconnen and the Gungahlin marketplace, plenty of restaurants and cafes, the University of Canberra, GIO Stadium and Calvary Hospital. Also, only a short drive or bike ride to the City Centre.
Feature packed, this home is sure to impress.
- Two bedrooms, each with built in wardrobe
- Ducted Daikin reverse cycle air conditioning & heating throughout
- North East facing, open plan living
- Beautifuly appointed kitchen with under mount sink, Blanco appliances and stone benchtops
- Separately metered for water
- Both bathrooms tiled from floor to ceiling
- BBQ gas point in courtyard
- Storage under staircase
- Landscaped, easy care and private courtyards
- NBN ready
- Rheem continuous flow hot water
- Hideaway laundry on ground level
- Single allocated car space in complex
EER: 6 star
Living: 81m2 approx
Rates: $375 per quarter approx
Land Tax: $453 per quarter approx
Levies: $570 per quarter approx (Vantage Strata)
Aspect: North East
Built: 2016 by Art Homes
Rent Per Week: $500
In line with Government requirements, we will require you to check in via the COVID Safe app prior to entering the property. Please consider wearing a face mask when attending open homes or inspections, for your own protection. Social distancing will be enforced. Thank you for your consideration.
Inspect
Contact agent
Listing agent
This modern, two storey, two bedroom townhouse is situated in the "Bellsview" complex and presents beautifully.
Currently tenanted at $500 per week in a fixed term agreement until March 2022, the property is an attractive investment, or a great home to live in once the tenancy expires.
The townhouse is North East facing and upon entry you are greeted by a neat, private and sunny courtyard.
Stepping inside, the open plan design offers living space with room for lounge and dining set up and flows through to the very well appointed kitchen with Blanco appliances including 5 burner gas cooktop, under bench oven, dishwasher and built in microwave. The stone benchtops, undermount sink, soft close drawers, breakfast bar, modern splash back and abundance of cupboard space complete the picture and make whipping up the evening meal a real delight.
Upstairs, both bedrooms are well proportioned with sliding mirror wardrobes built in and serviced by their own, attractive bathrooms with floor to ceiling tiles, heat lights, corner showers and floating vanities.
The ducted reverse cycle cooling and heating ensure year round comfort.
Brilliantly located, Lawson is close to both, Westfield Belconnen and the Gungahlin marketplace, plenty of restaurants and cafes, the University of Canberra, GIO Stadium and Calvary Hospital. Also, only a short drive or bike ride to the City Centre.
Feature packed, this home is sure to impress.
- Two bedrooms, each with built in wardrobe
- Ducted Daikin reverse cycle air conditioning & heating throughout
- North East facing, open plan living
- Beautifuly appointed kitchen with under mount sink, Blanco appliances and stone benchtops
- Separately metered for water
- Both bathrooms tiled from floor to ceiling
- BBQ gas point in courtyard
- Storage under staircase
- Landscaped, easy care and private courtyards
- NBN ready
- Rheem continuous flow hot water
- Hideaway laundry on ground level
- Single allocated car space in complex
EER: 6 star
Living: 81m2 approx
Rates: $375 per quarter approx
Land Tax: $453 per quarter approx
Levies: $570 per quarter approx (Vantage Strata)
Aspect: North East
Built: 2016 by Art Homes
Rent Per Week: $500
In line with Government requirements, we will require you to check in via the COVID Safe app prior to entering the property. Please consider wearing a face mask when attending open homes or inspections, for your own protection. Social distancing will be enforced. Thank you for your consideration.
Read MoreCurrently tenanted at $500 per week in a fixed term agreement until March 2022, the property is an attractive investment, or a great home to live in once the tenancy expires.
The townhouse is North East facing and upon entry you are greeted by a neat, private and sunny courtyard.
Stepping inside, the open plan design offers living space with room for lounge and dining set up and flows through to the very well appointed kitchen with Blanco appliances including 5 burner gas cooktop, under bench oven, dishwasher and built in microwave. The stone benchtops, undermount sink, soft close drawers, breakfast bar, modern splash back and abundance of cupboard space complete the picture and make whipping up the evening meal a real delight.
Upstairs, both bedrooms are well proportioned with sliding mirror wardrobes built in and serviced by their own, attractive bathrooms with floor to ceiling tiles, heat lights, corner showers and floating vanities.
The ducted reverse cycle cooling and heating ensure year round comfort.
Brilliantly located, Lawson is close to both, Westfield Belconnen and the Gungahlin marketplace, plenty of restaurants and cafes, the University of Canberra, GIO Stadium and Calvary Hospital. Also, only a short drive or bike ride to the City Centre.
Feature packed, this home is sure to impress.
- Two bedrooms, each with built in wardrobe
- Ducted Daikin reverse cycle air conditioning & heating throughout
- North East facing, open plan living
- Beautifuly appointed kitchen with under mount sink, Blanco appliances and stone benchtops
- Separately metered for water
- Both bathrooms tiled from floor to ceiling
- BBQ gas point in courtyard
- Storage under staircase
- Landscaped, easy care and private courtyards
- NBN ready
- Rheem continuous flow hot water
- Hideaway laundry on ground level
- Single allocated car space in complex
EER: 6 star
Living: 81m2 approx
Rates: $375 per quarter approx
Land Tax: $453 per quarter approx
Levies: $570 per quarter approx (Vantage Strata)
Aspect: North East
Built: 2016 by Art Homes
Rent Per Week: $500
In line with Government requirements, we will require you to check in via the COVID Safe app prior to entering the property. Please consider wearing a face mask when attending open homes or inspections, for your own protection. Social distancing will be enforced. Thank you for your consideration.

Location
66/2 Rouseabout Street
Lawson ACT 2617
Details
2
2
1
EER: 6.0
Townhouse
$530,000
Available: | Now |
This modern, two storey, two bedroom townhouse is situated in the "Bellsview" complex and presents beautifully.
Currently tenanted at $500 per week in a fixed term agreement until March 2022, the property is an attractive investment, or a great home to live in once the tenancy expires.
The townhouse is North East facing and upon entry you are greeted by a neat, private and sunny courtyard.
Stepping inside, the open plan design offers living space with room for lounge and dining set up and flows through to the very well appointed kitchen with Blanco appliances including 5 burner gas cooktop, under bench oven, dishwasher and built in microwave. The stone benchtops, undermount sink, soft close drawers, breakfast bar, modern splash back and abundance of cupboard space complete the picture and make whipping up the evening meal a real delight.
Upstairs, both bedrooms are well proportioned with sliding mirror wardrobes built in and serviced by their own, attractive bathrooms with floor to ceiling tiles, heat lights, corner showers and floating vanities.
The ducted reverse cycle cooling and heating ensure year round comfort.
Brilliantly located, Lawson is close to both, Westfield Belconnen and the Gungahlin marketplace, plenty of restaurants and cafes, the University of Canberra, GIO Stadium and Calvary Hospital. Also, only a short drive or bike ride to the City Centre.
Feature packed, this home is sure to impress.
- Two bedrooms, each with built in wardrobe
- Ducted Daikin reverse cycle air conditioning & heating throughout
- North East facing, open plan living
- Beautifuly appointed kitchen with under mount sink, Blanco appliances and stone benchtops
- Separately metered for water
- Both bathrooms tiled from floor to ceiling
- BBQ gas point in courtyard
- Storage under staircase
- Landscaped, easy care and private courtyards
- NBN ready
- Rheem continuous flow hot water
- Hideaway laundry on ground level
- Single allocated car space in complex
EER: 6 star
Living: 81m2 approx
Rates: $375 per quarter approx
Land Tax: $453 per quarter approx
Levies: $570 per quarter approx (Vantage Strata)
Aspect: North East
Built: 2016 by Art Homes
Rent Per Week: $500
In line with Government requirements, we will require you to check in via the COVID Safe app prior to entering the property. Please consider wearing a face mask when attending open homes or inspections, for your own protection. Social distancing will be enforced. Thank you for your consideration.
Read MoreCurrently tenanted at $500 per week in a fixed term agreement until March 2022, the property is an attractive investment, or a great home to live in once the tenancy expires.
The townhouse is North East facing and upon entry you are greeted by a neat, private and sunny courtyard.
Stepping inside, the open plan design offers living space with room for lounge and dining set up and flows through to the very well appointed kitchen with Blanco appliances including 5 burner gas cooktop, under bench oven, dishwasher and built in microwave. The stone benchtops, undermount sink, soft close drawers, breakfast bar, modern splash back and abundance of cupboard space complete the picture and make whipping up the evening meal a real delight.
Upstairs, both bedrooms are well proportioned with sliding mirror wardrobes built in and serviced by their own, attractive bathrooms with floor to ceiling tiles, heat lights, corner showers and floating vanities.
The ducted reverse cycle cooling and heating ensure year round comfort.
Brilliantly located, Lawson is close to both, Westfield Belconnen and the Gungahlin marketplace, plenty of restaurants and cafes, the University of Canberra, GIO Stadium and Calvary Hospital. Also, only a short drive or bike ride to the City Centre.
Feature packed, this home is sure to impress.
- Two bedrooms, each with built in wardrobe
- Ducted Daikin reverse cycle air conditioning & heating throughout
- North East facing, open plan living
- Beautifuly appointed kitchen with under mount sink, Blanco appliances and stone benchtops
- Separately metered for water
- Both bathrooms tiled from floor to ceiling
- BBQ gas point in courtyard
- Storage under staircase
- Landscaped, easy care and private courtyards
- NBN ready
- Rheem continuous flow hot water
- Hideaway laundry on ground level
- Single allocated car space in complex
EER: 6 star
Living: 81m2 approx
Rates: $375 per quarter approx
Land Tax: $453 per quarter approx
Levies: $570 per quarter approx (Vantage Strata)
Aspect: North East
Built: 2016 by Art Homes
Rent Per Week: $500
In line with Government requirements, we will require you to check in via the COVID Safe app prior to entering the property. Please consider wearing a face mask when attending open homes or inspections, for your own protection. Social distancing will be enforced. Thank you for your consideration.
Inspect
Contact agent








































