Ideal first home
Sold
Location
9 Abercrombie Circuit
Banks ACT 2906
Details
3
1
EER: 0.5
House
$399,000+
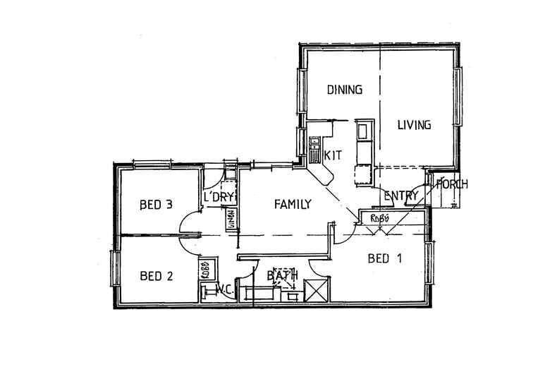
Aaron Papahatzis of Peter Blackshaw Real Estate is pleased to present this comfortable three bedroom home situated on a corner block in Banks. This residence is perfect for anyone looking to add their own stamp.
Offering an L-shaped lounge and dining as well as a meals area or family room off the kitchen, the living is very comfortable for any family. There are three bedrooms, two with built-in wardrobes and a two-way bathroom. The large backyard oozes potential and is a blank canvas for the avid gardener and could be an entertainers dream.
If your looking for a home to add your own touches then don't miss your opportunity to inspect. Call Aaron today on 0419 683 599 to book your inspection.
Features include:
- Tiled entrance
- L-shaped lounge & dining
- Gas wall heater
- Kitchen with electric cooking
- Adjacent tiled meals or family area
- Main bedroom with built-in robe & access to 2-way bathroom
- 2 bedrooms, 1 with built-in wardrobe
- 2-way bathroom with bath tub & separate shower recess
- Separate toilet
- Linen cupboard
- Laundry with external access
- Window shutters on front windows
- Foxtel ready
- Private, level yard
- Garden shed
Read MoreOffering an L-shaped lounge and dining as well as a meals area or family room off the kitchen, the living is very comfortable for any family. There are three bedrooms, two with built-in wardrobes and a two-way bathroom. The large backyard oozes potential and is a blank canvas for the avid gardener and could be an entertainers dream.
If your looking for a home to add your own touches then don't miss your opportunity to inspect. Call Aaron today on 0419 683 599 to book your inspection.
Features include:
- Tiled entrance
- L-shaped lounge & dining
- Gas wall heater
- Kitchen with electric cooking
- Adjacent tiled meals or family area
- Main bedroom with built-in robe & access to 2-way bathroom
- 2 bedrooms, 1 with built-in wardrobe
- 2-way bathroom with bath tub & separate shower recess
- Separate toilet
- Linen cupboard
- Laundry with external access
- Window shutters on front windows
- Foxtel ready
- Private, level yard
- Garden shed
Inspect
Contact agent
Listing agent
Aaron Papahatzis of Peter Blackshaw Real Estate is pleased to present this comfortable three bedroom home situated on a corner block in Banks. This residence is perfect for anyone looking to add their own stamp.
Offering an L-shaped lounge and dining as well as a meals area or family room off the kitchen, the living is very comfortable for any family. There are three bedrooms, two with built-in wardrobes and a two-way bathroom. The large backyard oozes potential and is a blank canvas for the avid gardener and could be an entertainers dream.
If your looking for a home to add your own touches then don't miss your opportunity to inspect. Call Aaron today on 0419 683 599 to book your inspection.
Features include:
- Tiled entrance
- L-shaped lounge & dining
- Gas wall heater
- Kitchen with electric cooking
- Adjacent tiled meals or family area
- Main bedroom with built-in robe & access to 2-way bathroom
- 2 bedrooms, 1 with built-in wardrobe
- 2-way bathroom with bath tub & separate shower recess
- Separate toilet
- Linen cupboard
- Laundry with external access
- Window shutters on front windows
- Foxtel ready
- Private, level yard
- Garden shed
Read MoreOffering an L-shaped lounge and dining as well as a meals area or family room off the kitchen, the living is very comfortable for any family. There are three bedrooms, two with built-in wardrobes and a two-way bathroom. The large backyard oozes potential and is a blank canvas for the avid gardener and could be an entertainers dream.
If your looking for a home to add your own touches then don't miss your opportunity to inspect. Call Aaron today on 0419 683 599 to book your inspection.
Features include:
- Tiled entrance
- L-shaped lounge & dining
- Gas wall heater
- Kitchen with electric cooking
- Adjacent tiled meals or family area
- Main bedroom with built-in robe & access to 2-way bathroom
- 2 bedrooms, 1 with built-in wardrobe
- 2-way bathroom with bath tub & separate shower recess
- Separate toilet
- Linen cupboard
- Laundry with external access
- Window shutters on front windows
- Foxtel ready
- Private, level yard
- Garden shed

Location
9 Abercrombie Circuit
Banks ACT 2906
Details
3
1
EER: 0.5
House
$399,000+
Aaron Papahatzis of Peter Blackshaw Real Estate is pleased to present this comfortable three bedroom home situated on a corner block in Banks. This residence is perfect for anyone looking to add their own stamp.
Offering an L-shaped lounge and dining as well as a meals area or family room off the kitchen, the living is very comfortable for any family. There are three bedrooms, two with built-in wardrobes and a two-way bathroom. The large backyard oozes potential and is a blank canvas for the avid gardener and could be an entertainers dream.
If your looking for a home to add your own touches then don't miss your opportunity to inspect. Call Aaron today on 0419 683 599 to book your inspection.
Features include:
- Tiled entrance
- L-shaped lounge & dining
- Gas wall heater
- Kitchen with electric cooking
- Adjacent tiled meals or family area
- Main bedroom with built-in robe & access to 2-way bathroom
- 2 bedrooms, 1 with built-in wardrobe
- 2-way bathroom with bath tub & separate shower recess
- Separate toilet
- Linen cupboard
- Laundry with external access
- Window shutters on front windows
- Foxtel ready
- Private, level yard
- Garden shed
Read MoreOffering an L-shaped lounge and dining as well as a meals area or family room off the kitchen, the living is very comfortable for any family. There are three bedrooms, two with built-in wardrobes and a two-way bathroom. The large backyard oozes potential and is a blank canvas for the avid gardener and could be an entertainers dream.
If your looking for a home to add your own touches then don't miss your opportunity to inspect. Call Aaron today on 0419 683 599 to book your inspection.
Features include:
- Tiled entrance
- L-shaped lounge & dining
- Gas wall heater
- Kitchen with electric cooking
- Adjacent tiled meals or family area
- Main bedroom with built-in robe & access to 2-way bathroom
- 2 bedrooms, 1 with built-in wardrobe
- 2-way bathroom with bath tub & separate shower recess
- Separate toilet
- Linen cupboard
- Laundry with external access
- Window shutters on front windows
- Foxtel ready
- Private, level yard
- Garden shed
Inspect
Contact agent

























