A Great Find for Any Buyer!
Sold
Location
15 Kadina Crescent
Isabella Plains ACT 2905
Details
3
1
6
EER: 1.0
House
Auction Saturday, 30 Jan 02:00 PM On site
Rates: | $1,839.00 annually |
Land area: | 839 sqm (approx) |
Building size: | 123.39 sqm (approx) |
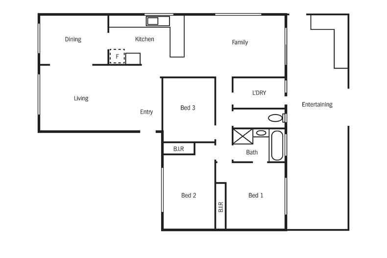
And interstate move has prompted the sale of this fantastic 3 bedroom home.
15 Kadina Crescent is a great sized home on a large flat block that will suit all buyers in the market place, whether a first home, downsizing or investing.
The living areas are large and separate, with enough room for the whole family.
The bedrooms, 2 have built in robes, and plenty of natural light.
With a 2 way bathroom for added convenience and a separate toilet.
The kitchen is neat and tidy and in great condition, with plenty of bench and cupboard space
The backyard is large and flat, with room for future extensions and plans.
The outdoor kitchen is a fantastic added feature, all under the covered entertain area, and there will be plenty of gatherings in the future.
Topped off with a 4 car garage and double carport, and an abundance of off street parking, this home certainly has all the boxes ticked.
Call Luke Evans for an inspection today.
Features include
- Large separate living areas
- Large bedrooms
- Plenty of off street parking
- Reverse cycle split system
- Wood fire
- Outdoor kitchen
- 4 car garage
- 2 car carport
- Large flat block
- Covered entertaining area
Read More15 Kadina Crescent is a great sized home on a large flat block that will suit all buyers in the market place, whether a first home, downsizing or investing.
The living areas are large and separate, with enough room for the whole family.
The bedrooms, 2 have built in robes, and plenty of natural light.
With a 2 way bathroom for added convenience and a separate toilet.
The kitchen is neat and tidy and in great condition, with plenty of bench and cupboard space
The backyard is large and flat, with room for future extensions and plans.
The outdoor kitchen is a fantastic added feature, all under the covered entertain area, and there will be plenty of gatherings in the future.
Topped off with a 4 car garage and double carport, and an abundance of off street parking, this home certainly has all the boxes ticked.
Call Luke Evans for an inspection today.
Features include
- Large separate living areas
- Large bedrooms
- Plenty of off street parking
- Reverse cycle split system
- Wood fire
- Outdoor kitchen
- 4 car garage
- 2 car carport
- Large flat block
- Covered entertaining area
Inspect
Contact agent
Listing agent
Prior to enquiry or inspection of this property you may wish to review our Information Collection Notice and Privacy Policy.
Privacy & Collection NoticeAnd interstate move has prompted the sale of this fantastic 3 bedroom home.
15 Kadina Crescent is a great sized home on a large flat block that will suit all buyers in the market place, whether a first home, downsizing or investing.
The living areas are large and separate, with enough room for the whole family.
The bedrooms, 2 have built in robes, and plenty of natural light.
With a 2 way bathroom for added convenience and a separate toilet.
The kitchen is neat and tidy and in great condition, with plenty of bench and cupboard space
The backyard is large and flat, with room for future extensions and plans.
The outdoor kitchen is a fantastic added feature, all under the covered entertain area, and there will be plenty of gatherings in the future.
Topped off with a 4 car garage and double carport, and an abundance of off street parking, this home certainly has all the boxes ticked.
Call Luke Evans for an inspection today.
Features include
- Large separate living areas
- Large bedrooms
- Plenty of off street parking
- Reverse cycle split system
- Wood fire
- Outdoor kitchen
- 4 car garage
- 2 car carport
- Large flat block
- Covered entertaining area
Read More15 Kadina Crescent is a great sized home on a large flat block that will suit all buyers in the market place, whether a first home, downsizing or investing.
The living areas are large and separate, with enough room for the whole family.
The bedrooms, 2 have built in robes, and plenty of natural light.
With a 2 way bathroom for added convenience and a separate toilet.
The kitchen is neat and tidy and in great condition, with plenty of bench and cupboard space
The backyard is large and flat, with room for future extensions and plans.
The outdoor kitchen is a fantastic added feature, all under the covered entertain area, and there will be plenty of gatherings in the future.
Topped off with a 4 car garage and double carport, and an abundance of off street parking, this home certainly has all the boxes ticked.
Call Luke Evans for an inspection today.
Features include
- Large separate living areas
- Large bedrooms
- Plenty of off street parking
- Reverse cycle split system
- Wood fire
- Outdoor kitchen
- 4 car garage
- 2 car carport
- Large flat block
- Covered entertaining area

Location
15 Kadina Crescent
Isabella Plains ACT 2905
Details
3
1
6
EER: 1.0
House
Auction Saturday, 30 Jan 02:00 PM On site
Rates: | $1,839.00 annually |
Land area: | 839 sqm (approx) |
Building size: | 123.39 sqm (approx) |
And interstate move has prompted the sale of this fantastic 3 bedroom home.
15 Kadina Crescent is a great sized home on a large flat block that will suit all buyers in the market place, whether a first home, downsizing or investing.
The living areas are large and separate, with enough room for the whole family.
The bedrooms, 2 have built in robes, and plenty of natural light.
With a 2 way bathroom for added convenience and a separate toilet.
The kitchen is neat and tidy and in great condition, with plenty of bench and cupboard space
The backyard is large and flat, with room for future extensions and plans.
The outdoor kitchen is a fantastic added feature, all under the covered entertain area, and there will be plenty of gatherings in the future.
Topped off with a 4 car garage and double carport, and an abundance of off street parking, this home certainly has all the boxes ticked.
Call Luke Evans for an inspection today.
Features include
- Large separate living areas
- Large bedrooms
- Plenty of off street parking
- Reverse cycle split system
- Wood fire
- Outdoor kitchen
- 4 car garage
- 2 car carport
- Large flat block
- Covered entertaining area
Read More15 Kadina Crescent is a great sized home on a large flat block that will suit all buyers in the market place, whether a first home, downsizing or investing.
The living areas are large and separate, with enough room for the whole family.
The bedrooms, 2 have built in robes, and plenty of natural light.
With a 2 way bathroom for added convenience and a separate toilet.
The kitchen is neat and tidy and in great condition, with plenty of bench and cupboard space
The backyard is large and flat, with room for future extensions and plans.
The outdoor kitchen is a fantastic added feature, all under the covered entertain area, and there will be plenty of gatherings in the future.
Topped off with a 4 car garage and double carport, and an abundance of off street parking, this home certainly has all the boxes ticked.
Call Luke Evans for an inspection today.
Features include
- Large separate living areas
- Large bedrooms
- Plenty of off street parking
- Reverse cycle split system
- Wood fire
- Outdoor kitchen
- 4 car garage
- 2 car carport
- Large flat block
- Covered entertaining area
Inspect
Contact agent
Listing agent
Prior to enquiry or inspection of this property you may wish to review our Information Collection Notice and Privacy Policy.
Privacy & Collection Notice





































