Four bedroom plus study family home with a lifestyle of convenience.
Sold
Location
24 Watterson Place
Gilmore ACT 2905
Details
4
2
3
EER: 1.5
House
Auction Saturday, 24 Jul 01:30 PM On site
Land area: | 1071 sqm (approx) |
This neatly presented 4-bedroom plus ensuite and study family home that has been updated, offers a lifestyle of convenience positioned centrally in Tuggeranong close to a selection of private and public schools including Holy Family, Gilmore Primary and Chisholm High School. The location provides easy access to Canberra's main thoroughfares and a short walk to Chisholm Village Shopping Centre.
A stone's throw to vast open parkland with vistas of mountain ranges and nearby the popular Fadden Pines. The home presents a great opportunity for families, first home buyers or potential investors searching for a quality home in a family friendly location.
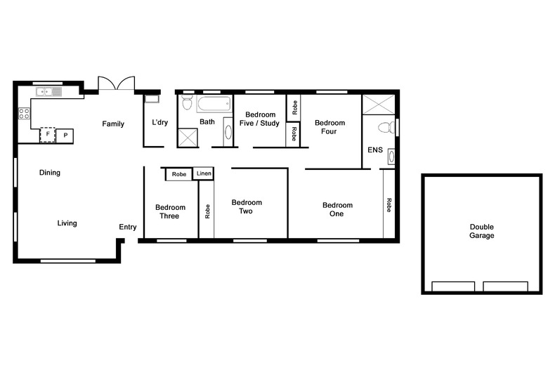
Warm and welcoming the home provides a practical floorplan with living areas spacious and bright providing a harmonious flow into the kitchen/meals area and with plenty of storage throughout. The updated kitchen features quality appliances, electric oven and gas cooktop and dishwasher. The main bedroom is large in size and has a modern ensuite while all other bedrooms are of good size and all rooms have built in robes. A segregated bathroom and laundry are located nearby offering practical living options.
Entertaining is made easy with a covered timber deck at the rear of the home perfect for summer bbq's and family occasions. You will love the gardens that surround the home and water feature to give you inspiration. The garage features electric doors and provides car accommodation for two vehicles and a carport for one with access from the back of the garage to the home.
Features:
• Single level living
• 4 bedrooms plus ensuite and study
• Bathroom with new vanity
• Excellent living area and dining
• Separate laundry with toilet
• Ducted gas heating
• Ducted evaporative cooling
• Continues hotwater
• Magnificent gardens
• Double garage and singe carport
• Short walk to Chisholm Village Shopping Centre, Coles and Aldi
• 10 minute stroll to Gilmore Primary School and Holy Family School
• Easy direct access to main thoroughfares
• Direct access to the snowy mountains
A great family home suited to those seeking convenience to schools, shops, parks and a neighbourly environment.
Read MoreA stone's throw to vast open parkland with vistas of mountain ranges and nearby the popular Fadden Pines. The home presents a great opportunity for families, first home buyers or potential investors searching for a quality home in a family friendly location.
Warm and welcoming the home provides a practical floorplan with living areas spacious and bright providing a harmonious flow into the kitchen/meals area and with plenty of storage throughout. The updated kitchen features quality appliances, electric oven and gas cooktop and dishwasher. The main bedroom is large in size and has a modern ensuite while all other bedrooms are of good size and all rooms have built in robes. A segregated bathroom and laundry are located nearby offering practical living options.
Entertaining is made easy with a covered timber deck at the rear of the home perfect for summer bbq's and family occasions. You will love the gardens that surround the home and water feature to give you inspiration. The garage features electric doors and provides car accommodation for two vehicles and a carport for one with access from the back of the garage to the home.
Features:
• Single level living
• 4 bedrooms plus ensuite and study
• Bathroom with new vanity
• Excellent living area and dining
• Separate laundry with toilet
• Ducted gas heating
• Ducted evaporative cooling
• Continues hotwater
• Magnificent gardens
• Double garage and singe carport
• Short walk to Chisholm Village Shopping Centre, Coles and Aldi
• 10 minute stroll to Gilmore Primary School and Holy Family School
• Easy direct access to main thoroughfares
• Direct access to the snowy mountains
A great family home suited to those seeking convenience to schools, shops, parks and a neighbourly environment.
Inspect
Contact agent
Listing agents
Prior to enquiry or inspection of this property you may wish to review our Information Collection Notice and Privacy Policy.
Privacy & Collection NoticeThis neatly presented 4-bedroom plus ensuite and study family home that has been updated, offers a lifestyle of convenience positioned centrally in Tuggeranong close to a selection of private and public schools including Holy Family, Gilmore Primary and Chisholm High School. The location provides easy access to Canberra's main thoroughfares and a short walk to Chisholm Village Shopping Centre.
A stone's throw to vast open parkland with vistas of mountain ranges and nearby the popular Fadden Pines. The home presents a great opportunity for families, first home buyers or potential investors searching for a quality home in a family friendly location.
Warm and welcoming the home provides a practical floorplan with living areas spacious and bright providing a harmonious flow into the kitchen/meals area and with plenty of storage throughout. The updated kitchen features quality appliances, electric oven and gas cooktop and dishwasher. The main bedroom is large in size and has a modern ensuite while all other bedrooms are of good size and all rooms have built in robes. A segregated bathroom and laundry are located nearby offering practical living options.
Entertaining is made easy with a covered timber deck at the rear of the home perfect for summer bbq's and family occasions. You will love the gardens that surround the home and water feature to give you inspiration. The garage features electric doors and provides car accommodation for two vehicles and a carport for one with access from the back of the garage to the home.
Features:
• Single level living
• 4 bedrooms plus ensuite and study
• Bathroom with new vanity
• Excellent living area and dining
• Separate laundry with toilet
• Ducted gas heating
• Ducted evaporative cooling
• Continues hotwater
• Magnificent gardens
• Double garage and singe carport
• Short walk to Chisholm Village Shopping Centre, Coles and Aldi
• 10 minute stroll to Gilmore Primary School and Holy Family School
• Easy direct access to main thoroughfares
• Direct access to the snowy mountains
A great family home suited to those seeking convenience to schools, shops, parks and a neighbourly environment.
Read MoreA stone's throw to vast open parkland with vistas of mountain ranges and nearby the popular Fadden Pines. The home presents a great opportunity for families, first home buyers or potential investors searching for a quality home in a family friendly location.
Warm and welcoming the home provides a practical floorplan with living areas spacious and bright providing a harmonious flow into the kitchen/meals area and with plenty of storage throughout. The updated kitchen features quality appliances, electric oven and gas cooktop and dishwasher. The main bedroom is large in size and has a modern ensuite while all other bedrooms are of good size and all rooms have built in robes. A segregated bathroom and laundry are located nearby offering practical living options.
Entertaining is made easy with a covered timber deck at the rear of the home perfect for summer bbq's and family occasions. You will love the gardens that surround the home and water feature to give you inspiration. The garage features electric doors and provides car accommodation for two vehicles and a carport for one with access from the back of the garage to the home.
Features:
• Single level living
• 4 bedrooms plus ensuite and study
• Bathroom with new vanity
• Excellent living area and dining
• Separate laundry with toilet
• Ducted gas heating
• Ducted evaporative cooling
• Continues hotwater
• Magnificent gardens
• Double garage and singe carport
• Short walk to Chisholm Village Shopping Centre, Coles and Aldi
• 10 minute stroll to Gilmore Primary School and Holy Family School
• Easy direct access to main thoroughfares
• Direct access to the snowy mountains
A great family home suited to those seeking convenience to schools, shops, parks and a neighbourly environment.

Location
24 Watterson Place
Gilmore ACT 2905
Details
4
2
3
EER: 1.5
House
Auction Saturday, 24 Jul 01:30 PM On site
Land area: | 1071 sqm (approx) |
This neatly presented 4-bedroom plus ensuite and study family home that has been updated, offers a lifestyle of convenience positioned centrally in Tuggeranong close to a selection of private and public schools including Holy Family, Gilmore Primary and Chisholm High School. The location provides easy access to Canberra's main thoroughfares and a short walk to Chisholm Village Shopping Centre.
A stone's throw to vast open parkland with vistas of mountain ranges and nearby the popular Fadden Pines. The home presents a great opportunity for families, first home buyers or potential investors searching for a quality home in a family friendly location.
Warm and welcoming the home provides a practical floorplan with living areas spacious and bright providing a harmonious flow into the kitchen/meals area and with plenty of storage throughout. The updated kitchen features quality appliances, electric oven and gas cooktop and dishwasher. The main bedroom is large in size and has a modern ensuite while all other bedrooms are of good size and all rooms have built in robes. A segregated bathroom and laundry are located nearby offering practical living options.
Entertaining is made easy with a covered timber deck at the rear of the home perfect for summer bbq's and family occasions. You will love the gardens that surround the home and water feature to give you inspiration. The garage features electric doors and provides car accommodation for two vehicles and a carport for one with access from the back of the garage to the home.
Features:
• Single level living
• 4 bedrooms plus ensuite and study
• Bathroom with new vanity
• Excellent living area and dining
• Separate laundry with toilet
• Ducted gas heating
• Ducted evaporative cooling
• Continues hotwater
• Magnificent gardens
• Double garage and singe carport
• Short walk to Chisholm Village Shopping Centre, Coles and Aldi
• 10 minute stroll to Gilmore Primary School and Holy Family School
• Easy direct access to main thoroughfares
• Direct access to the snowy mountains
A great family home suited to those seeking convenience to schools, shops, parks and a neighbourly environment.
Read MoreA stone's throw to vast open parkland with vistas of mountain ranges and nearby the popular Fadden Pines. The home presents a great opportunity for families, first home buyers or potential investors searching for a quality home in a family friendly location.
Warm and welcoming the home provides a practical floorplan with living areas spacious and bright providing a harmonious flow into the kitchen/meals area and with plenty of storage throughout. The updated kitchen features quality appliances, electric oven and gas cooktop and dishwasher. The main bedroom is large in size and has a modern ensuite while all other bedrooms are of good size and all rooms have built in robes. A segregated bathroom and laundry are located nearby offering practical living options.
Entertaining is made easy with a covered timber deck at the rear of the home perfect for summer bbq's and family occasions. You will love the gardens that surround the home and water feature to give you inspiration. The garage features electric doors and provides car accommodation for two vehicles and a carport for one with access from the back of the garage to the home.
Features:
• Single level living
• 4 bedrooms plus ensuite and study
• Bathroom with new vanity
• Excellent living area and dining
• Separate laundry with toilet
• Ducted gas heating
• Ducted evaporative cooling
• Continues hotwater
• Magnificent gardens
• Double garage and singe carport
• Short walk to Chisholm Village Shopping Centre, Coles and Aldi
• 10 minute stroll to Gilmore Primary School and Holy Family School
• Easy direct access to main thoroughfares
• Direct access to the snowy mountains
A great family home suited to those seeking convenience to schools, shops, parks and a neighbourly environment.
Inspect
Contact agent
Listing agents
Prior to enquiry or inspection of this property you may wish to review our Information Collection Notice and Privacy Policy.
Privacy & Collection Notice





































