LARGE FUNCTIONAL & FLEXIBLE FAMILY HOME.
Sold
Location
28 Malara Street
Waramanga ACT 2611
Details
4
2
2
EER: 3.0
House
Auction Thursday, 3 Jun 05:00 PM On site
Land area: | 910 sqm (approx) |
Building size: | 224.67 sqm (approx) |
Positioned on a large parcel of land and siding public reserve, is this beautiful, large, comfortable fully renovated family home.
Located in a desirable, family friendly community, this home is perfectly suited to modern day lifestyles. Extended, light-filled, dedicated living spaces are a feature of the property creating spaces for the whole family. A parents retreat or lounge room with great external views and massive family room all envelope the beautifully renovated kitchen at the heart of the home.
The striking kitchen boasts large bench space, generous storage, breakfast bar and pantry, while matched with high quality appliances including gas cooktop, oven and dishwasher.
The main bedroom features a walk in robe, lovely ensuite with shower, vanity and toilet. The other bedrooms are of generous size and are serviced by the main bathroom and separate toilet.
Perfectly positioned in the backyard is a large covered pergola, perfect for year round entertaining. There are also ample room for the children and pets.
Other features of the home include solar panels, ducted reverse cycle heating and cooling and a double garage.
Located close to public transport, desirable schools and local shops. Close to large well maintained sporting grounds, and only a short drive to Cooleman Court shopping precinct or Woden Town Centre
This property offers an abundance of features and inclusions, is in a popular location and you are sure to be impressed on inspection!
Features;
Outstanding renovated and extended family home
Beautiful aspect
Popular location
Double glazed throughout
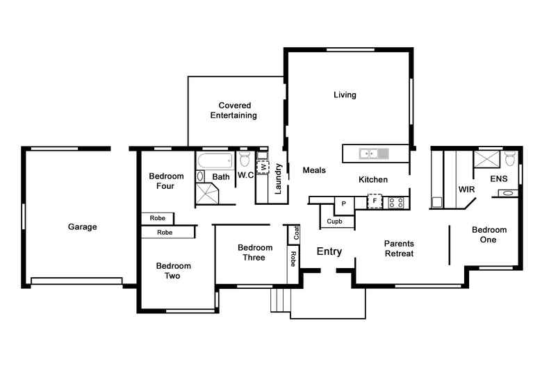
Great floorplan with designated spaces
Beautifully kitchen with breakfast bar & pantry
Quality kitchen appliances include gas cooktop & dishwasher
Huge family room at the heart of the home
Large main bedroom with walk in robe
Modern ensuite with shower, vanity & toilet
Three other bedrooms all with built in robes
Spacious main bathroom with bath, shower & vanity
Separate toilet
Large, covered pergola off family room
Secure backyard
Double remote garage
Solar panels
Ducted reverse cycle heating and cooling
Instant gas hot water systems
Easy access to schools, public transport & local shops
Short drive to Cooleman Court Shopping Precinct or Woden Town Centre & The Canberra Hospital
EER: 3.0
Home size: 224.67m2
Construction: 1970
Land size: 910m2
Land value: $474,000
Rates: $825.25 per quarter
Lax tax (if rented): $1,229 per quarter
Read MoreLocated in a desirable, family friendly community, this home is perfectly suited to modern day lifestyles. Extended, light-filled, dedicated living spaces are a feature of the property creating spaces for the whole family. A parents retreat or lounge room with great external views and massive family room all envelope the beautifully renovated kitchen at the heart of the home.
The striking kitchen boasts large bench space, generous storage, breakfast bar and pantry, while matched with high quality appliances including gas cooktop, oven and dishwasher.
The main bedroom features a walk in robe, lovely ensuite with shower, vanity and toilet. The other bedrooms are of generous size and are serviced by the main bathroom and separate toilet.
Perfectly positioned in the backyard is a large covered pergola, perfect for year round entertaining. There are also ample room for the children and pets.
Other features of the home include solar panels, ducted reverse cycle heating and cooling and a double garage.
Located close to public transport, desirable schools and local shops. Close to large well maintained sporting grounds, and only a short drive to Cooleman Court shopping precinct or Woden Town Centre
This property offers an abundance of features and inclusions, is in a popular location and you are sure to be impressed on inspection!
Features;
Outstanding renovated and extended family home
Beautiful aspect
Popular location
Double glazed throughout
Great floorplan with designated spaces
Beautifully kitchen with breakfast bar & pantry
Quality kitchen appliances include gas cooktop & dishwasher
Huge family room at the heart of the home
Large main bedroom with walk in robe
Modern ensuite with shower, vanity & toilet
Three other bedrooms all with built in robes
Spacious main bathroom with bath, shower & vanity
Separate toilet
Large, covered pergola off family room
Secure backyard
Double remote garage
Solar panels
Ducted reverse cycle heating and cooling
Instant gas hot water systems
Easy access to schools, public transport & local shops
Short drive to Cooleman Court Shopping Precinct or Woden Town Centre & The Canberra Hospital
EER: 3.0
Home size: 224.67m2
Construction: 1970
Land size: 910m2
Land value: $474,000
Rates: $825.25 per quarter
Lax tax (if rented): $1,229 per quarter
Inspect
Contact agent
Listing agents
Prior to enquiry or inspection of this property you may wish to review our Information Collection Notice and Privacy Policy.
Privacy & Collection NoticePositioned on a large parcel of land and siding public reserve, is this beautiful, large, comfortable fully renovated family home.
Located in a desirable, family friendly community, this home is perfectly suited to modern day lifestyles. Extended, light-filled, dedicated living spaces are a feature of the property creating spaces for the whole family. A parents retreat or lounge room with great external views and massive family room all envelope the beautifully renovated kitchen at the heart of the home.
The striking kitchen boasts large bench space, generous storage, breakfast bar and pantry, while matched with high quality appliances including gas cooktop, oven and dishwasher.
The main bedroom features a walk in robe, lovely ensuite with shower, vanity and toilet. The other bedrooms are of generous size and are serviced by the main bathroom and separate toilet.
Perfectly positioned in the backyard is a large covered pergola, perfect for year round entertaining. There are also ample room for the children and pets.
Other features of the home include solar panels, ducted reverse cycle heating and cooling and a double garage.
Located close to public transport, desirable schools and local shops. Close to large well maintained sporting grounds, and only a short drive to Cooleman Court shopping precinct or Woden Town Centre
This property offers an abundance of features and inclusions, is in a popular location and you are sure to be impressed on inspection!
Features;
Outstanding renovated and extended family home
Beautiful aspect
Popular location
Double glazed throughout
Great floorplan with designated spaces
Beautifully kitchen with breakfast bar & pantry
Quality kitchen appliances include gas cooktop & dishwasher
Huge family room at the heart of the home
Large main bedroom with walk in robe
Modern ensuite with shower, vanity & toilet
Three other bedrooms all with built in robes
Spacious main bathroom with bath, shower & vanity
Separate toilet
Large, covered pergola off family room
Secure backyard
Double remote garage
Solar panels
Ducted reverse cycle heating and cooling
Instant gas hot water systems
Easy access to schools, public transport & local shops
Short drive to Cooleman Court Shopping Precinct or Woden Town Centre & The Canberra Hospital
EER: 3.0
Home size: 224.67m2
Construction: 1970
Land size: 910m2
Land value: $474,000
Rates: $825.25 per quarter
Lax tax (if rented): $1,229 per quarter
Read MoreLocated in a desirable, family friendly community, this home is perfectly suited to modern day lifestyles. Extended, light-filled, dedicated living spaces are a feature of the property creating spaces for the whole family. A parents retreat or lounge room with great external views and massive family room all envelope the beautifully renovated kitchen at the heart of the home.
The striking kitchen boasts large bench space, generous storage, breakfast bar and pantry, while matched with high quality appliances including gas cooktop, oven and dishwasher.
The main bedroom features a walk in robe, lovely ensuite with shower, vanity and toilet. The other bedrooms are of generous size and are serviced by the main bathroom and separate toilet.
Perfectly positioned in the backyard is a large covered pergola, perfect for year round entertaining. There are also ample room for the children and pets.
Other features of the home include solar panels, ducted reverse cycle heating and cooling and a double garage.
Located close to public transport, desirable schools and local shops. Close to large well maintained sporting grounds, and only a short drive to Cooleman Court shopping precinct or Woden Town Centre
This property offers an abundance of features and inclusions, is in a popular location and you are sure to be impressed on inspection!
Features;
Outstanding renovated and extended family home
Beautiful aspect
Popular location
Double glazed throughout
Great floorplan with designated spaces
Beautifully kitchen with breakfast bar & pantry
Quality kitchen appliances include gas cooktop & dishwasher
Huge family room at the heart of the home
Large main bedroom with walk in robe
Modern ensuite with shower, vanity & toilet
Three other bedrooms all with built in robes
Spacious main bathroom with bath, shower & vanity
Separate toilet
Large, covered pergola off family room
Secure backyard
Double remote garage
Solar panels
Ducted reverse cycle heating and cooling
Instant gas hot water systems
Easy access to schools, public transport & local shops
Short drive to Cooleman Court Shopping Precinct or Woden Town Centre & The Canberra Hospital
EER: 3.0
Home size: 224.67m2
Construction: 1970
Land size: 910m2
Land value: $474,000
Rates: $825.25 per quarter
Lax tax (if rented): $1,229 per quarter

Location
28 Malara Street
Waramanga ACT 2611
Details
4
2
2
EER: 3.0
House
Auction Thursday, 3 Jun 05:00 PM On site
Land area: | 910 sqm (approx) |
Building size: | 224.67 sqm (approx) |
Positioned on a large parcel of land and siding public reserve, is this beautiful, large, comfortable fully renovated family home.
Located in a desirable, family friendly community, this home is perfectly suited to modern day lifestyles. Extended, light-filled, dedicated living spaces are a feature of the property creating spaces for the whole family. A parents retreat or lounge room with great external views and massive family room all envelope the beautifully renovated kitchen at the heart of the home.
The striking kitchen boasts large bench space, generous storage, breakfast bar and pantry, while matched with high quality appliances including gas cooktop, oven and dishwasher.
The main bedroom features a walk in robe, lovely ensuite with shower, vanity and toilet. The other bedrooms are of generous size and are serviced by the main bathroom and separate toilet.
Perfectly positioned in the backyard is a large covered pergola, perfect for year round entertaining. There are also ample room for the children and pets.
Other features of the home include solar panels, ducted reverse cycle heating and cooling and a double garage.
Located close to public transport, desirable schools and local shops. Close to large well maintained sporting grounds, and only a short drive to Cooleman Court shopping precinct or Woden Town Centre
This property offers an abundance of features and inclusions, is in a popular location and you are sure to be impressed on inspection!
Features;
Outstanding renovated and extended family home
Beautiful aspect
Popular location
Double glazed throughout
Great floorplan with designated spaces
Beautifully kitchen with breakfast bar & pantry
Quality kitchen appliances include gas cooktop & dishwasher
Huge family room at the heart of the home
Large main bedroom with walk in robe
Modern ensuite with shower, vanity & toilet
Three other bedrooms all with built in robes
Spacious main bathroom with bath, shower & vanity
Separate toilet
Large, covered pergola off family room
Secure backyard
Double remote garage
Solar panels
Ducted reverse cycle heating and cooling
Instant gas hot water systems
Easy access to schools, public transport & local shops
Short drive to Cooleman Court Shopping Precinct or Woden Town Centre & The Canberra Hospital
EER: 3.0
Home size: 224.67m2
Construction: 1970
Land size: 910m2
Land value: $474,000
Rates: $825.25 per quarter
Lax tax (if rented): $1,229 per quarter
Read MoreLocated in a desirable, family friendly community, this home is perfectly suited to modern day lifestyles. Extended, light-filled, dedicated living spaces are a feature of the property creating spaces for the whole family. A parents retreat or lounge room with great external views and massive family room all envelope the beautifully renovated kitchen at the heart of the home.
The striking kitchen boasts large bench space, generous storage, breakfast bar and pantry, while matched with high quality appliances including gas cooktop, oven and dishwasher.
The main bedroom features a walk in robe, lovely ensuite with shower, vanity and toilet. The other bedrooms are of generous size and are serviced by the main bathroom and separate toilet.
Perfectly positioned in the backyard is a large covered pergola, perfect for year round entertaining. There are also ample room for the children and pets.
Other features of the home include solar panels, ducted reverse cycle heating and cooling and a double garage.
Located close to public transport, desirable schools and local shops. Close to large well maintained sporting grounds, and only a short drive to Cooleman Court shopping precinct or Woden Town Centre
This property offers an abundance of features and inclusions, is in a popular location and you are sure to be impressed on inspection!
Features;
Outstanding renovated and extended family home
Beautiful aspect
Popular location
Double glazed throughout
Great floorplan with designated spaces
Beautifully kitchen with breakfast bar & pantry
Quality kitchen appliances include gas cooktop & dishwasher
Huge family room at the heart of the home
Large main bedroom with walk in robe
Modern ensuite with shower, vanity & toilet
Three other bedrooms all with built in robes
Spacious main bathroom with bath, shower & vanity
Separate toilet
Large, covered pergola off family room
Secure backyard
Double remote garage
Solar panels
Ducted reverse cycle heating and cooling
Instant gas hot water systems
Easy access to schools, public transport & local shops
Short drive to Cooleman Court Shopping Precinct or Woden Town Centre & The Canberra Hospital
EER: 3.0
Home size: 224.67m2
Construction: 1970
Land size: 910m2
Land value: $474,000
Rates: $825.25 per quarter
Lax tax (if rented): $1,229 per quarter
Inspect
Contact agent
Listing agents
Prior to enquiry or inspection of this property you may wish to review our Information Collection Notice and Privacy Policy.
Privacy & Collection Notice























































