This unique home must be seen to truly appreciate all it has to offer.
Sold
Location
28 Saggers Close
Gordon ACT 2906
Details
3
2
2
EER: 2.5
House
Sold
Land area: | 1219 sqm (approx) |
Positioned in a tranquil and private location with easy access to walking trails, reserve, ponds and parkland, this exceptional home awaits new owners!
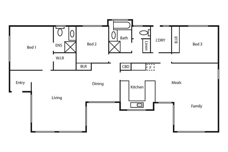
As you enter the home you will be amazed with the very large size lounge and dining room with stunning outlook over the deck and established gardens. Continuing on you will love the updated kitchen and the large family/meals room which also overlooks the landscaped yard and covered pergola with views of the surrounding mountains and public reserve. All three bedrooms are positioned at the rear of the property for privacy, with the segregated master bedroom featuring an ensuite and walk in robe. The two remaining bedrooms have built-in-robes and great outlooks, with easy access to the family bathroom and separate toilet. Additional features include near new ducted reverse cycle heating and cooling, a Ventis system and Instant hot water.
Close to local schools, public transport and Lanyon shopping complex. All this and much more on an expansive 1219m2 block with plenty of scope for a large extension in the future or even install a pool.
I highly recommend an inspection! Come inside this home to truly enjoy the outstanding offering.
* Single level living
* Three bedrooms plus ensuite
* Updated kitchen
* New laundry
* Large low maintenance flat block of 1219m2
* Ducted heating & cooling
* Instant hot water system
* Solar passive design
* Floor to ceiling windows
* Double garage
* Outdoor covered entertaining
* Established trees for summer shade
* Access to backyard for trailer or boat
* Quiet and secluded with easy access to parkland, reserve and walking trails
* Close to schools, shops, and public transport
Rates: $2049 per annum (approx.)
Land Value 16/17: $330,000
Block Size: 1219m2
Living Area: 148.25m2 (approx.) Garage 43.8m2 (approx.)
EER: 2.5
Read MoreAs you enter the home you will be amazed with the very large size lounge and dining room with stunning outlook over the deck and established gardens. Continuing on you will love the updated kitchen and the large family/meals room which also overlooks the landscaped yard and covered pergola with views of the surrounding mountains and public reserve. All three bedrooms are positioned at the rear of the property for privacy, with the segregated master bedroom featuring an ensuite and walk in robe. The two remaining bedrooms have built-in-robes and great outlooks, with easy access to the family bathroom and separate toilet. Additional features include near new ducted reverse cycle heating and cooling, a Ventis system and Instant hot water.
Close to local schools, public transport and Lanyon shopping complex. All this and much more on an expansive 1219m2 block with plenty of scope for a large extension in the future or even install a pool.
I highly recommend an inspection! Come inside this home to truly enjoy the outstanding offering.
* Single level living
* Three bedrooms plus ensuite
* Updated kitchen
* New laundry
* Large low maintenance flat block of 1219m2
* Ducted heating & cooling
* Instant hot water system
* Solar passive design
* Floor to ceiling windows
* Double garage
* Outdoor covered entertaining
* Established trees for summer shade
* Access to backyard for trailer or boat
* Quiet and secluded with easy access to parkland, reserve and walking trails
* Close to schools, shops, and public transport
Rates: $2049 per annum (approx.)
Land Value 16/17: $330,000
Block Size: 1219m2
Living Area: 148.25m2 (approx.) Garage 43.8m2 (approx.)
EER: 2.5
Inspect
Contact agent
Listing agent
Prior to enquiry or inspection of this property you may wish to review our Information Collection Notice and Privacy Policy.
Privacy & Collection NoticePositioned in a tranquil and private location with easy access to walking trails, reserve, ponds and parkland, this exceptional home awaits new owners!
As you enter the home you will be amazed with the very large size lounge and dining room with stunning outlook over the deck and established gardens. Continuing on you will love the updated kitchen and the large family/meals room which also overlooks the landscaped yard and covered pergola with views of the surrounding mountains and public reserve. All three bedrooms are positioned at the rear of the property for privacy, with the segregated master bedroom featuring an ensuite and walk in robe. The two remaining bedrooms have built-in-robes and great outlooks, with easy access to the family bathroom and separate toilet. Additional features include near new ducted reverse cycle heating and cooling, a Ventis system and Instant hot water.
Close to local schools, public transport and Lanyon shopping complex. All this and much more on an expansive 1219m2 block with plenty of scope for a large extension in the future or even install a pool.
I highly recommend an inspection! Come inside this home to truly enjoy the outstanding offering.
* Single level living
* Three bedrooms plus ensuite
* Updated kitchen
* New laundry
* Large low maintenance flat block of 1219m2
* Ducted heating & cooling
* Instant hot water system
* Solar passive design
* Floor to ceiling windows
* Double garage
* Outdoor covered entertaining
* Established trees for summer shade
* Access to backyard for trailer or boat
* Quiet and secluded with easy access to parkland, reserve and walking trails
* Close to schools, shops, and public transport
Rates: $2049 per annum (approx.)
Land Value 16/17: $330,000
Block Size: 1219m2
Living Area: 148.25m2 (approx.) Garage 43.8m2 (approx.)
EER: 2.5
Read MoreAs you enter the home you will be amazed with the very large size lounge and dining room with stunning outlook over the deck and established gardens. Continuing on you will love the updated kitchen and the large family/meals room which also overlooks the landscaped yard and covered pergola with views of the surrounding mountains and public reserve. All three bedrooms are positioned at the rear of the property for privacy, with the segregated master bedroom featuring an ensuite and walk in robe. The two remaining bedrooms have built-in-robes and great outlooks, with easy access to the family bathroom and separate toilet. Additional features include near new ducted reverse cycle heating and cooling, a Ventis system and Instant hot water.
Close to local schools, public transport and Lanyon shopping complex. All this and much more on an expansive 1219m2 block with plenty of scope for a large extension in the future or even install a pool.
I highly recommend an inspection! Come inside this home to truly enjoy the outstanding offering.
* Single level living
* Three bedrooms plus ensuite
* Updated kitchen
* New laundry
* Large low maintenance flat block of 1219m2
* Ducted heating & cooling
* Instant hot water system
* Solar passive design
* Floor to ceiling windows
* Double garage
* Outdoor covered entertaining
* Established trees for summer shade
* Access to backyard for trailer or boat
* Quiet and secluded with easy access to parkland, reserve and walking trails
* Close to schools, shops, and public transport
Rates: $2049 per annum (approx.)
Land Value 16/17: $330,000
Block Size: 1219m2
Living Area: 148.25m2 (approx.) Garage 43.8m2 (approx.)
EER: 2.5

Location
28 Saggers Close
Gordon ACT 2906
Details
3
2
2
EER: 2.5
House
Sold
Land area: | 1219 sqm (approx) |
Positioned in a tranquil and private location with easy access to walking trails, reserve, ponds and parkland, this exceptional home awaits new owners!
As you enter the home you will be amazed with the very large size lounge and dining room with stunning outlook over the deck and established gardens. Continuing on you will love the updated kitchen and the large family/meals room which also overlooks the landscaped yard and covered pergola with views of the surrounding mountains and public reserve. All three bedrooms are positioned at the rear of the property for privacy, with the segregated master bedroom featuring an ensuite and walk in robe. The two remaining bedrooms have built-in-robes and great outlooks, with easy access to the family bathroom and separate toilet. Additional features include near new ducted reverse cycle heating and cooling, a Ventis system and Instant hot water.
Close to local schools, public transport and Lanyon shopping complex. All this and much more on an expansive 1219m2 block with plenty of scope for a large extension in the future or even install a pool.
I highly recommend an inspection! Come inside this home to truly enjoy the outstanding offering.
* Single level living
* Three bedrooms plus ensuite
* Updated kitchen
* New laundry
* Large low maintenance flat block of 1219m2
* Ducted heating & cooling
* Instant hot water system
* Solar passive design
* Floor to ceiling windows
* Double garage
* Outdoor covered entertaining
* Established trees for summer shade
* Access to backyard for trailer or boat
* Quiet and secluded with easy access to parkland, reserve and walking trails
* Close to schools, shops, and public transport
Rates: $2049 per annum (approx.)
Land Value 16/17: $330,000
Block Size: 1219m2
Living Area: 148.25m2 (approx.) Garage 43.8m2 (approx.)
EER: 2.5
Read MoreAs you enter the home you will be amazed with the very large size lounge and dining room with stunning outlook over the deck and established gardens. Continuing on you will love the updated kitchen and the large family/meals room which also overlooks the landscaped yard and covered pergola with views of the surrounding mountains and public reserve. All three bedrooms are positioned at the rear of the property for privacy, with the segregated master bedroom featuring an ensuite and walk in robe. The two remaining bedrooms have built-in-robes and great outlooks, with easy access to the family bathroom and separate toilet. Additional features include near new ducted reverse cycle heating and cooling, a Ventis system and Instant hot water.
Close to local schools, public transport and Lanyon shopping complex. All this and much more on an expansive 1219m2 block with plenty of scope for a large extension in the future or even install a pool.
I highly recommend an inspection! Come inside this home to truly enjoy the outstanding offering.
* Single level living
* Three bedrooms plus ensuite
* Updated kitchen
* New laundry
* Large low maintenance flat block of 1219m2
* Ducted heating & cooling
* Instant hot water system
* Solar passive design
* Floor to ceiling windows
* Double garage
* Outdoor covered entertaining
* Established trees for summer shade
* Access to backyard for trailer or boat
* Quiet and secluded with easy access to parkland, reserve and walking trails
* Close to schools, shops, and public transport
Rates: $2049 per annum (approx.)
Land Value 16/17: $330,000
Block Size: 1219m2
Living Area: 148.25m2 (approx.) Garage 43.8m2 (approx.)
EER: 2.5
Inspect
Contact agent
Listing agent
Prior to enquiry or inspection of this property you may wish to review our Information Collection Notice and Privacy Policy.
Privacy & Collection Notice


















































