Spacious, 2 Bedroom 2 Bathroom near new Apartment
Sold
Location
55/47 Mowatt Street
Queanbeyan NSW 2620
Details
2
2
2
House
Sold
Rates: | $1,800.00 annually |
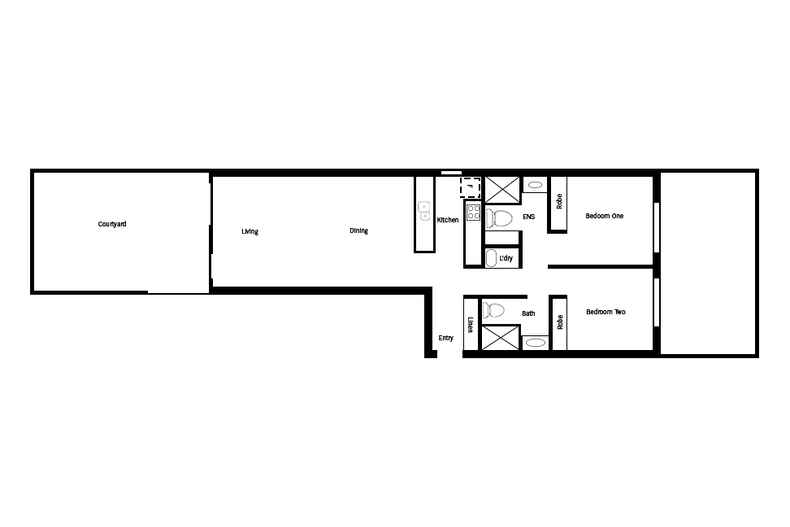
This quality, spacious 2 Bedroom, 2 Bathroom apartment provides both space, comfort and lifestyle options for one lucky buyer. Positioned on the ground floor, with very close and easy access to lift and stairs to the secure underground parking, of which there are 2 car spaces and storage cages.
The well-appointed kitchen includes Caesar-stone bench tops, electric cooking and dishwasher, with the large living space opening up nicely onto a private, landscaped courtyard.
The master bedroom includes a high quality ensuite and built in wardrobe with the second bedroom also including a built in wardrobe and easy access to the main bathroom, which can also be considered a second ensuite given its close proximity. Both of the bedrooms also open up to another good sized courtyard.
Other features include reverse cycle heating and cooling, two car spaces, one of which is extra large and two storage cages just to name a few.
The near new complex also includes a 25m pool, BBQ area and spacious grounds.
Features:
- Master Bedroom with built in wardrobe
- Ensuite
- Second bedroom with built in wardrobe
- Second bathroom
- Spacious Kitchen
- Good sized living
- 2 Landscaped Courtyards
- Reverse cycle split system in lounge room
- Electric cook top
- Dishwasher
- 2 Secure car spaces with storage cages
Total Living: 131m2
Internal Living: 83m2
Courtyards: 48m2
Rates: $450 per quarter
Strata: $600 per quarter
Read MoreThe well-appointed kitchen includes Caesar-stone bench tops, electric cooking and dishwasher, with the large living space opening up nicely onto a private, landscaped courtyard.
The master bedroom includes a high quality ensuite and built in wardrobe with the second bedroom also including a built in wardrobe and easy access to the main bathroom, which can also be considered a second ensuite given its close proximity. Both of the bedrooms also open up to another good sized courtyard.
Other features include reverse cycle heating and cooling, two car spaces, one of which is extra large and two storage cages just to name a few.
The near new complex also includes a 25m pool, BBQ area and spacious grounds.
Features:
- Master Bedroom with built in wardrobe
- Ensuite
- Second bedroom with built in wardrobe
- Second bathroom
- Spacious Kitchen
- Good sized living
- 2 Landscaped Courtyards
- Reverse cycle split system in lounge room
- Electric cook top
- Dishwasher
- 2 Secure car spaces with storage cages
Total Living: 131m2
Internal Living: 83m2
Courtyards: 48m2
Rates: $450 per quarter
Strata: $600 per quarter
Inspect
Contact agent
Listing agent
Prior to enquiry or inspection of this property you may wish to review our Information Collection Notice and Privacy Policy.
Privacy & Collection NoticeThis quality, spacious 2 Bedroom, 2 Bathroom apartment provides both space, comfort and lifestyle options for one lucky buyer. Positioned on the ground floor, with very close and easy access to lift and stairs to the secure underground parking, of which there are 2 car spaces and storage cages.
The well-appointed kitchen includes Caesar-stone bench tops, electric cooking and dishwasher, with the large living space opening up nicely onto a private, landscaped courtyard.
The master bedroom includes a high quality ensuite and built in wardrobe with the second bedroom also including a built in wardrobe and easy access to the main bathroom, which can also be considered a second ensuite given its close proximity. Both of the bedrooms also open up to another good sized courtyard.
Other features include reverse cycle heating and cooling, two car spaces, one of which is extra large and two storage cages just to name a few.
The near new complex also includes a 25m pool, BBQ area and spacious grounds.
Features:
- Master Bedroom with built in wardrobe
- Ensuite
- Second bedroom with built in wardrobe
- Second bathroom
- Spacious Kitchen
- Good sized living
- 2 Landscaped Courtyards
- Reverse cycle split system in lounge room
- Electric cook top
- Dishwasher
- 2 Secure car spaces with storage cages
Total Living: 131m2
Internal Living: 83m2
Courtyards: 48m2
Rates: $450 per quarter
Strata: $600 per quarter
Read MoreThe well-appointed kitchen includes Caesar-stone bench tops, electric cooking and dishwasher, with the large living space opening up nicely onto a private, landscaped courtyard.
The master bedroom includes a high quality ensuite and built in wardrobe with the second bedroom also including a built in wardrobe and easy access to the main bathroom, which can also be considered a second ensuite given its close proximity. Both of the bedrooms also open up to another good sized courtyard.
Other features include reverse cycle heating and cooling, two car spaces, one of which is extra large and two storage cages just to name a few.
The near new complex also includes a 25m pool, BBQ area and spacious grounds.
Features:
- Master Bedroom with built in wardrobe
- Ensuite
- Second bedroom with built in wardrobe
- Second bathroom
- Spacious Kitchen
- Good sized living
- 2 Landscaped Courtyards
- Reverse cycle split system in lounge room
- Electric cook top
- Dishwasher
- 2 Secure car spaces with storage cages
Total Living: 131m2
Internal Living: 83m2
Courtyards: 48m2
Rates: $450 per quarter
Strata: $600 per quarter

Location
55/47 Mowatt Street
Queanbeyan NSW 2620
Details
2
2
2
House
Sold
Rates: | $1,800.00 annually |
This quality, spacious 2 Bedroom, 2 Bathroom apartment provides both space, comfort and lifestyle options for one lucky buyer. Positioned on the ground floor, with very close and easy access to lift and stairs to the secure underground parking, of which there are 2 car spaces and storage cages.
The well-appointed kitchen includes Caesar-stone bench tops, electric cooking and dishwasher, with the large living space opening up nicely onto a private, landscaped courtyard.
The master bedroom includes a high quality ensuite and built in wardrobe with the second bedroom also including a built in wardrobe and easy access to the main bathroom, which can also be considered a second ensuite given its close proximity. Both of the bedrooms also open up to another good sized courtyard.
Other features include reverse cycle heating and cooling, two car spaces, one of which is extra large and two storage cages just to name a few.
The near new complex also includes a 25m pool, BBQ area and spacious grounds.
Features:
- Master Bedroom with built in wardrobe
- Ensuite
- Second bedroom with built in wardrobe
- Second bathroom
- Spacious Kitchen
- Good sized living
- 2 Landscaped Courtyards
- Reverse cycle split system in lounge room
- Electric cook top
- Dishwasher
- 2 Secure car spaces with storage cages
Total Living: 131m2
Internal Living: 83m2
Courtyards: 48m2
Rates: $450 per quarter
Strata: $600 per quarter
Read MoreThe well-appointed kitchen includes Caesar-stone bench tops, electric cooking and dishwasher, with the large living space opening up nicely onto a private, landscaped courtyard.
The master bedroom includes a high quality ensuite and built in wardrobe with the second bedroom also including a built in wardrobe and easy access to the main bathroom, which can also be considered a second ensuite given its close proximity. Both of the bedrooms also open up to another good sized courtyard.
Other features include reverse cycle heating and cooling, two car spaces, one of which is extra large and two storage cages just to name a few.
The near new complex also includes a 25m pool, BBQ area and spacious grounds.
Features:
- Master Bedroom with built in wardrobe
- Ensuite
- Second bedroom with built in wardrobe
- Second bathroom
- Spacious Kitchen
- Good sized living
- 2 Landscaped Courtyards
- Reverse cycle split system in lounge room
- Electric cook top
- Dishwasher
- 2 Secure car spaces with storage cages
Total Living: 131m2
Internal Living: 83m2
Courtyards: 48m2
Rates: $450 per quarter
Strata: $600 per quarter
Inspect
Contact agent
Listing agent
Prior to enquiry or inspection of this property you may wish to review our Information Collection Notice and Privacy Policy.
Privacy & Collection Notice



































