UPDATED HOME IN A QUIET CUL DE SAC LOCATION
Sold
Location
7 Tong Place
Kambah ACT 2902
Details
3
2
2
EER: 1.0
House
Auction Saturday, 12 Jun 11:00 AM On site
Land area: | 819 sqm (approx) |
This one looks amazing from the street and even better when you get inside!
A beautifully updated Willemsen designed three bedroom home that is tucked away at the end of a quiet cul-de-sac in a fantastic part of Kambah. A location that is also easy to access roads that lead to all major parts of Canberra.
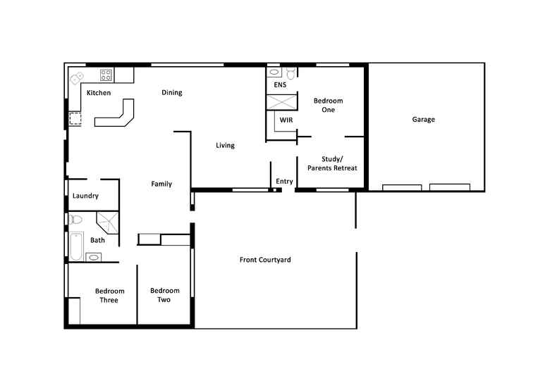
The home boasts a wonderful floor plan that the whole family will love. The main bedroom is segregated, large and includes a study and ensuite. All additional bedrooms have built in robes and ceiling fans.
The kitchen has been updated provides a large island bench, dishwasher and a great spot to watch the kids playing outside. Both living areas are spacious and provide access to the front courtyard. Keep warm in winter with ducted gas heating and during summer cool with the reverse cycle air conditioner.
With a good size parcel of land the kids will enjoy the space and safety of the backyard.
A superb home, in a wonderful location and is ready for you and your family to just move in and enjoy straight away.
Features include:
• Willemsen designed home
• Renovated kitchen, bathroom and ensuite
• Ducted gas heating
• Reverse Cycle Air conditioner
• Cul de sac location
• Ceiling fans in all bedrooms
• Spacious living areas
• Private front courtyard
• Rinnai Infinity Hot Water
• Double garage
Read MoreA beautifully updated Willemsen designed three bedroom home that is tucked away at the end of a quiet cul-de-sac in a fantastic part of Kambah. A location that is also easy to access roads that lead to all major parts of Canberra.
The home boasts a wonderful floor plan that the whole family will love. The main bedroom is segregated, large and includes a study and ensuite. All additional bedrooms have built in robes and ceiling fans.
The kitchen has been updated provides a large island bench, dishwasher and a great spot to watch the kids playing outside. Both living areas are spacious and provide access to the front courtyard. Keep warm in winter with ducted gas heating and during summer cool with the reverse cycle air conditioner.
With a good size parcel of land the kids will enjoy the space and safety of the backyard.
A superb home, in a wonderful location and is ready for you and your family to just move in and enjoy straight away.
Features include:
• Willemsen designed home
• Renovated kitchen, bathroom and ensuite
• Ducted gas heating
• Reverse Cycle Air conditioner
• Cul de sac location
• Ceiling fans in all bedrooms
• Spacious living areas
• Private front courtyard
• Rinnai Infinity Hot Water
• Double garage
Inspect
Contact agent
Listing agents
Prior to enquiry or inspection of this property you may wish to review our Information Collection Notice and Privacy Policy.
Privacy & Collection NoticeThis one looks amazing from the street and even better when you get inside!
A beautifully updated Willemsen designed three bedroom home that is tucked away at the end of a quiet cul-de-sac in a fantastic part of Kambah. A location that is also easy to access roads that lead to all major parts of Canberra.
The home boasts a wonderful floor plan that the whole family will love. The main bedroom is segregated, large and includes a study and ensuite. All additional bedrooms have built in robes and ceiling fans.
The kitchen has been updated provides a large island bench, dishwasher and a great spot to watch the kids playing outside. Both living areas are spacious and provide access to the front courtyard. Keep warm in winter with ducted gas heating and during summer cool with the reverse cycle air conditioner.
With a good size parcel of land the kids will enjoy the space and safety of the backyard.
A superb home, in a wonderful location and is ready for you and your family to just move in and enjoy straight away.
Features include:
• Willemsen designed home
• Renovated kitchen, bathroom and ensuite
• Ducted gas heating
• Reverse Cycle Air conditioner
• Cul de sac location
• Ceiling fans in all bedrooms
• Spacious living areas
• Private front courtyard
• Rinnai Infinity Hot Water
• Double garage
Read MoreA beautifully updated Willemsen designed three bedroom home that is tucked away at the end of a quiet cul-de-sac in a fantastic part of Kambah. A location that is also easy to access roads that lead to all major parts of Canberra.
The home boasts a wonderful floor plan that the whole family will love. The main bedroom is segregated, large and includes a study and ensuite. All additional bedrooms have built in robes and ceiling fans.
The kitchen has been updated provides a large island bench, dishwasher and a great spot to watch the kids playing outside. Both living areas are spacious and provide access to the front courtyard. Keep warm in winter with ducted gas heating and during summer cool with the reverse cycle air conditioner.
With a good size parcel of land the kids will enjoy the space and safety of the backyard.
A superb home, in a wonderful location and is ready for you and your family to just move in and enjoy straight away.
Features include:
• Willemsen designed home
• Renovated kitchen, bathroom and ensuite
• Ducted gas heating
• Reverse Cycle Air conditioner
• Cul de sac location
• Ceiling fans in all bedrooms
• Spacious living areas
• Private front courtyard
• Rinnai Infinity Hot Water
• Double garage

Location
7 Tong Place
Kambah ACT 2902
Details
3
2
2
EER: 1.0
House
Auction Saturday, 12 Jun 11:00 AM On site
Land area: | 819 sqm (approx) |
This one looks amazing from the street and even better when you get inside!
A beautifully updated Willemsen designed three bedroom home that is tucked away at the end of a quiet cul-de-sac in a fantastic part of Kambah. A location that is also easy to access roads that lead to all major parts of Canberra.
The home boasts a wonderful floor plan that the whole family will love. The main bedroom is segregated, large and includes a study and ensuite. All additional bedrooms have built in robes and ceiling fans.
The kitchen has been updated provides a large island bench, dishwasher and a great spot to watch the kids playing outside. Both living areas are spacious and provide access to the front courtyard. Keep warm in winter with ducted gas heating and during summer cool with the reverse cycle air conditioner.
With a good size parcel of land the kids will enjoy the space and safety of the backyard.
A superb home, in a wonderful location and is ready for you and your family to just move in and enjoy straight away.
Features include:
• Willemsen designed home
• Renovated kitchen, bathroom and ensuite
• Ducted gas heating
• Reverse Cycle Air conditioner
• Cul de sac location
• Ceiling fans in all bedrooms
• Spacious living areas
• Private front courtyard
• Rinnai Infinity Hot Water
• Double garage
Read MoreA beautifully updated Willemsen designed three bedroom home that is tucked away at the end of a quiet cul-de-sac in a fantastic part of Kambah. A location that is also easy to access roads that lead to all major parts of Canberra.
The home boasts a wonderful floor plan that the whole family will love. The main bedroom is segregated, large and includes a study and ensuite. All additional bedrooms have built in robes and ceiling fans.
The kitchen has been updated provides a large island bench, dishwasher and a great spot to watch the kids playing outside. Both living areas are spacious and provide access to the front courtyard. Keep warm in winter with ducted gas heating and during summer cool with the reverse cycle air conditioner.
With a good size parcel of land the kids will enjoy the space and safety of the backyard.
A superb home, in a wonderful location and is ready for you and your family to just move in and enjoy straight away.
Features include:
• Willemsen designed home
• Renovated kitchen, bathroom and ensuite
• Ducted gas heating
• Reverse Cycle Air conditioner
• Cul de sac location
• Ceiling fans in all bedrooms
• Spacious living areas
• Private front courtyard
• Rinnai Infinity Hot Water
• Double garage
Inspect
Contact agent
Listing agents
Prior to enquiry or inspection of this property you may wish to review our Information Collection Notice and Privacy Policy.
Privacy & Collection Notice



















