Amazing lifestyle opportunity
Sold
Location
91 Ivo Whitton Circuit
Kambah ACT 2902
Details
4
2
2
EER: 2.0
House
$1,200,000
Rates: | $3,882.00 annually |
Land area: | 922 sqm (approx) |
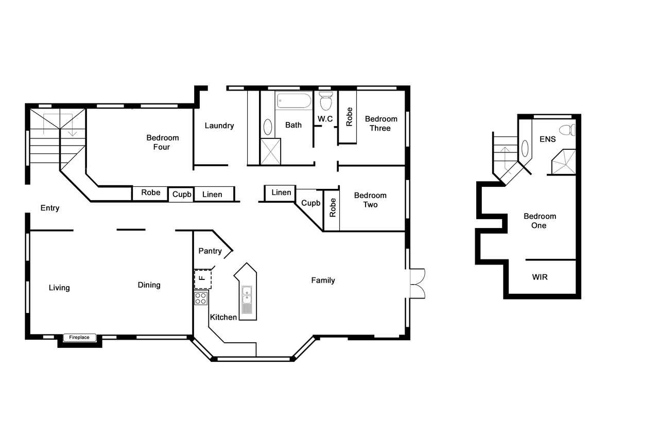
A unique offering in a dress circle location. Offering the best of both family living and formal entertaining, this four bedroom home is one of a kind. Offering a stunning outlook from each of the full length windows, the formal lounge and dining room is spacious and elegant and offers segregation from the other living areas. The kitchen has high quality appliances and an island bench, and is complemented by the large family room with French doors. The segregated main bedroom offers a walk-in wardrobe and ensuite and is located upstairs. Backing the 7th fairway of Murrumbidgee Golf Club the unique location offers pristine views of the course. Externally the established landscaped garden is complete with a tiled and solar heated pool with surrounding paved outdoor entertaining area, this is the perfect family home.
Features include:
- Located in the highly sought after Gleneagles Estate surrounded by quality homes
- Positioned on a block of 921m2 (approx.) backing reserve and the 7th fairway
- Established landscaped gardens
- Four generous bedrooms(all seconday bedrooms with built in robes)
- Segregated master bedroom with ensuite, walk-in robe and study
- Spacious formal lounge and dining room with fireplace
- Large family room and meals area with French doors
- Modern kitchen with high quality appliances and island bench
- Ducted gas heating
- In ground solar heated swimming pool (concrete with tiles)
- Large outdoor entertaining area
- Security system
- Ducted vacuum
- Double garage with auto doors
Read MoreFeatures include:
- Located in the highly sought after Gleneagles Estate surrounded by quality homes
- Positioned on a block of 921m2 (approx.) backing reserve and the 7th fairway
- Established landscaped gardens
- Four generous bedrooms(all seconday bedrooms with built in robes)
- Segregated master bedroom with ensuite, walk-in robe and study
- Spacious formal lounge and dining room with fireplace
- Large family room and meals area with French doors
- Modern kitchen with high quality appliances and island bench
- Ducted gas heating
- In ground solar heated swimming pool (concrete with tiles)
- Large outdoor entertaining area
- Security system
- Ducted vacuum
- Double garage with auto doors
Inspect
Contact agent
Listing agents
Prior to enquiry or inspection of this property you may wish to review our Information Collection Notice and Privacy Policy.
Privacy & Collection NoticeA unique offering in a dress circle location. Offering the best of both family living and formal entertaining, this four bedroom home is one of a kind. Offering a stunning outlook from each of the full length windows, the formal lounge and dining room is spacious and elegant and offers segregation from the other living areas. The kitchen has high quality appliances and an island bench, and is complemented by the large family room with French doors. The segregated main bedroom offers a walk-in wardrobe and ensuite and is located upstairs. Backing the 7th fairway of Murrumbidgee Golf Club the unique location offers pristine views of the course. Externally the established landscaped garden is complete with a tiled and solar heated pool with surrounding paved outdoor entertaining area, this is the perfect family home.
Features include:
- Located in the highly sought after Gleneagles Estate surrounded by quality homes
- Positioned on a block of 921m2 (approx.) backing reserve and the 7th fairway
- Established landscaped gardens
- Four generous bedrooms(all seconday bedrooms with built in robes)
- Segregated master bedroom with ensuite, walk-in robe and study
- Spacious formal lounge and dining room with fireplace
- Large family room and meals area with French doors
- Modern kitchen with high quality appliances and island bench
- Ducted gas heating
- In ground solar heated swimming pool (concrete with tiles)
- Large outdoor entertaining area
- Security system
- Ducted vacuum
- Double garage with auto doors
Read MoreFeatures include:
- Located in the highly sought after Gleneagles Estate surrounded by quality homes
- Positioned on a block of 921m2 (approx.) backing reserve and the 7th fairway
- Established landscaped gardens
- Four generous bedrooms(all seconday bedrooms with built in robes)
- Segregated master bedroom with ensuite, walk-in robe and study
- Spacious formal lounge and dining room with fireplace
- Large family room and meals area with French doors
- Modern kitchen with high quality appliances and island bench
- Ducted gas heating
- In ground solar heated swimming pool (concrete with tiles)
- Large outdoor entertaining area
- Security system
- Ducted vacuum
- Double garage with auto doors

Location
91 Ivo Whitton Circuit
Kambah ACT 2902
Details
4
2
2
EER: 2.0
House
$1,200,000
Rates: | $3,882.00 annually |
Land area: | 922 sqm (approx) |
A unique offering in a dress circle location. Offering the best of both family living and formal entertaining, this four bedroom home is one of a kind. Offering a stunning outlook from each of the full length windows, the formal lounge and dining room is spacious and elegant and offers segregation from the other living areas. The kitchen has high quality appliances and an island bench, and is complemented by the large family room with French doors. The segregated main bedroom offers a walk-in wardrobe and ensuite and is located upstairs. Backing the 7th fairway of Murrumbidgee Golf Club the unique location offers pristine views of the course. Externally the established landscaped garden is complete with a tiled and solar heated pool with surrounding paved outdoor entertaining area, this is the perfect family home.
Features include:
- Located in the highly sought after Gleneagles Estate surrounded by quality homes
- Positioned on a block of 921m2 (approx.) backing reserve and the 7th fairway
- Established landscaped gardens
- Four generous bedrooms(all seconday bedrooms with built in robes)
- Segregated master bedroom with ensuite, walk-in robe and study
- Spacious formal lounge and dining room with fireplace
- Large family room and meals area with French doors
- Modern kitchen with high quality appliances and island bench
- Ducted gas heating
- In ground solar heated swimming pool (concrete with tiles)
- Large outdoor entertaining area
- Security system
- Ducted vacuum
- Double garage with auto doors
Read MoreFeatures include:
- Located in the highly sought after Gleneagles Estate surrounded by quality homes
- Positioned on a block of 921m2 (approx.) backing reserve and the 7th fairway
- Established landscaped gardens
- Four generous bedrooms(all seconday bedrooms with built in robes)
- Segregated master bedroom with ensuite, walk-in robe and study
- Spacious formal lounge and dining room with fireplace
- Large family room and meals area with French doors
- Modern kitchen with high quality appliances and island bench
- Ducted gas heating
- In ground solar heated swimming pool (concrete with tiles)
- Large outdoor entertaining area
- Security system
- Ducted vacuum
- Double garage with auto doors
Inspect
Contact agent
Listing agents
Prior to enquiry or inspection of this property you may wish to review our Information Collection Notice and Privacy Policy.
Privacy & Collection Notice





















































