Resort Style Living
Sold
Location
Lot 11/2 Hynes Place
Chisholm ACT 2905
Details
4
2
2
House
Sold
Rates: | $2,122.00 annually |
Land area: | 1297 sqm (approx) |
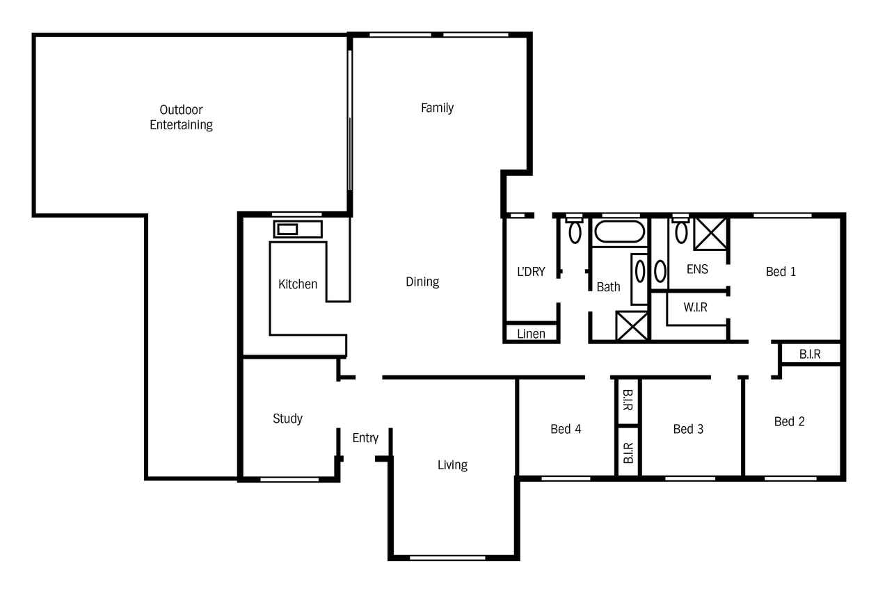
Set on an intimate street of only four homes is this four bedroom plus ensuite and study family home. Come home to resort style living with a huge covered entertaining area overlooking the heated salt water pool surrounded by private easy care gardens. This home has both formal and open plan living areas with the family, kitchen and dining area taking in the backyard views. Step into the large modern kitchen and admire the impressive cupboard space with brand new dishwasher and oven. This quality family home is full of light and with modern fixtures and tones throughout it is ready for you to move in and enjoy. The home features a large master bedroom with walk-in-robe and ensuite while the other bedrooms are oversized all with built-in-robes. Enjoy all seasons comfortably with the evaporative ducted cooling and gas heating. Quality and neutral window furnishings, paint and carpet throughout contribute to the home's charm. With a 4.75kw solar system and 5,000 litre water tank, this home is extremely energy efficient reducing those every day costs. It's the extras that make a house a home and this much loved home will impress all who inspect. Move in with nothing more to do!...
Four bedrooms plus ensuite and study
Kitchen contains plenty of cupboards, Samsung dishwasher and new Westinghouse stainless steel oven
Large tiled, open and sunny family room overlooking the backyard and entertaining/pool area
Evaporative ducted cooling and gas heating
Salt water pool with solar heating- brand new solar and pool pumps
Huge covered entertaining area
Solar 4.75 kW
Double lock up garage with one remote door
LED lighting throughout
Private, established and secure gardens
5,000 litre water tank
In-ground sprinklers to garden beds and lawn
Security alarm
New R5 ceiling insulation
Two separate living areas
Large 1,296m2 corner block ideal for a growing family
Read MoreFour bedrooms plus ensuite and study
Kitchen contains plenty of cupboards, Samsung dishwasher and new Westinghouse stainless steel oven
Large tiled, open and sunny family room overlooking the backyard and entertaining/pool area
Evaporative ducted cooling and gas heating
Salt water pool with solar heating- brand new solar and pool pumps
Huge covered entertaining area
Solar 4.75 kW
Double lock up garage with one remote door
LED lighting throughout
Private, established and secure gardens
5,000 litre water tank
In-ground sprinklers to garden beds and lawn
Security alarm
New R5 ceiling insulation
Two separate living areas
Large 1,296m2 corner block ideal for a growing family
Inspect
Contact agent
Listing agent
Prior to enquiry or inspection of this property you may wish to review our Information Collection Notice and Privacy Policy.
Privacy & Collection NoticeSet on an intimate street of only four homes is this four bedroom plus ensuite and study family home. Come home to resort style living with a huge covered entertaining area overlooking the heated salt water pool surrounded by private easy care gardens. This home has both formal and open plan living areas with the family, kitchen and dining area taking in the backyard views. Step into the large modern kitchen and admire the impressive cupboard space with brand new dishwasher and oven. This quality family home is full of light and with modern fixtures and tones throughout it is ready for you to move in and enjoy. The home features a large master bedroom with walk-in-robe and ensuite while the other bedrooms are oversized all with built-in-robes. Enjoy all seasons comfortably with the evaporative ducted cooling and gas heating. Quality and neutral window furnishings, paint and carpet throughout contribute to the home's charm. With a 4.75kw solar system and 5,000 litre water tank, this home is extremely energy efficient reducing those every day costs. It's the extras that make a house a home and this much loved home will impress all who inspect. Move in with nothing more to do!...
Four bedrooms plus ensuite and study
Kitchen contains plenty of cupboards, Samsung dishwasher and new Westinghouse stainless steel oven
Large tiled, open and sunny family room overlooking the backyard and entertaining/pool area
Evaporative ducted cooling and gas heating
Salt water pool with solar heating- brand new solar and pool pumps
Huge covered entertaining area
Solar 4.75 kW
Double lock up garage with one remote door
LED lighting throughout
Private, established and secure gardens
5,000 litre water tank
In-ground sprinklers to garden beds and lawn
Security alarm
New R5 ceiling insulation
Two separate living areas
Large 1,296m2 corner block ideal for a growing family
Read MoreFour bedrooms plus ensuite and study
Kitchen contains plenty of cupboards, Samsung dishwasher and new Westinghouse stainless steel oven
Large tiled, open and sunny family room overlooking the backyard and entertaining/pool area
Evaporative ducted cooling and gas heating
Salt water pool with solar heating- brand new solar and pool pumps
Huge covered entertaining area
Solar 4.75 kW
Double lock up garage with one remote door
LED lighting throughout
Private, established and secure gardens
5,000 litre water tank
In-ground sprinklers to garden beds and lawn
Security alarm
New R5 ceiling insulation
Two separate living areas
Large 1,296m2 corner block ideal for a growing family

Location
Lot 11/2 Hynes Place
Chisholm ACT 2905
Details
4
2
2
House
Sold
Rates: | $2,122.00 annually |
Land area: | 1297 sqm (approx) |
Set on an intimate street of only four homes is this four bedroom plus ensuite and study family home. Come home to resort style living with a huge covered entertaining area overlooking the heated salt water pool surrounded by private easy care gardens. This home has both formal and open plan living areas with the family, kitchen and dining area taking in the backyard views. Step into the large modern kitchen and admire the impressive cupboard space with brand new dishwasher and oven. This quality family home is full of light and with modern fixtures and tones throughout it is ready for you to move in and enjoy. The home features a large master bedroom with walk-in-robe and ensuite while the other bedrooms are oversized all with built-in-robes. Enjoy all seasons comfortably with the evaporative ducted cooling and gas heating. Quality and neutral window furnishings, paint and carpet throughout contribute to the home's charm. With a 4.75kw solar system and 5,000 litre water tank, this home is extremely energy efficient reducing those every day costs. It's the extras that make a house a home and this much loved home will impress all who inspect. Move in with nothing more to do!...
Four bedrooms plus ensuite and study
Kitchen contains plenty of cupboards, Samsung dishwasher and new Westinghouse stainless steel oven
Large tiled, open and sunny family room overlooking the backyard and entertaining/pool area
Evaporative ducted cooling and gas heating
Salt water pool with solar heating- brand new solar and pool pumps
Huge covered entertaining area
Solar 4.75 kW
Double lock up garage with one remote door
LED lighting throughout
Private, established and secure gardens
5,000 litre water tank
In-ground sprinklers to garden beds and lawn
Security alarm
New R5 ceiling insulation
Two separate living areas
Large 1,296m2 corner block ideal for a growing family
Read MoreFour bedrooms plus ensuite and study
Kitchen contains plenty of cupboards, Samsung dishwasher and new Westinghouse stainless steel oven
Large tiled, open and sunny family room overlooking the backyard and entertaining/pool area
Evaporative ducted cooling and gas heating
Salt water pool with solar heating- brand new solar and pool pumps
Huge covered entertaining area
Solar 4.75 kW
Double lock up garage with one remote door
LED lighting throughout
Private, established and secure gardens
5,000 litre water tank
In-ground sprinklers to garden beds and lawn
Security alarm
New R5 ceiling insulation
Two separate living areas
Large 1,296m2 corner block ideal for a growing family
Inspect
Contact agent
Listing agent
Prior to enquiry or inspection of this property you may wish to review our Information Collection Notice and Privacy Policy.
Privacy & Collection Notice












































