A 'must see' property!
Sold
Location
Lot 12/21 McLeod Place
Kambah ACT 2902
Details
3
1
3
House
By negotiation
Rates: | $1,410.00 annually |
Land area: | 634 sqm (approx) |
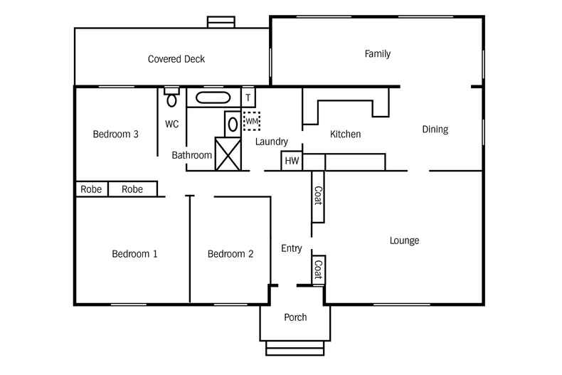
This well presented three bedroom home is a must see for first home buyers. Sited on a large level block in a quiet cul de sac, close to the tuggeranong town centre and with easy access to the Tuggeranong Parkway and other arterial roads.
The home provides generous living in the form of a living room, a kitchen/dining area and a large family room which opens to a private covered deck and beyond to the easy-care garden. The kitchen has a new stainless steel oven and rangehood, as well as an electric cooktop, dishwasher and breakfast bar.
The three bedrooms are generous and offer built in robes. The bathroom has been repainted and features a spa bath.
The home also features ducted reverse cycle air conditioning, roller shutters on the dining room window, a powered double lockup garage with ample storage space, and a gated carport.
Please call Andrew Thorpe to arrange a private inspection of this fantastic property should you be unable to make the open homes.
Property Features:
- Well presented three bedroom, single bathroom family home
- Generous living areas including a living room, a kitchen/dining area and a large family room
- Neat kitchen includes electric cook-top, dishwasher, new stainless steel oven, rangehood and breakfast bar
- Spacious bathroom with spa bath
- Ducted reverse cycle air conditioning
- New exterior sliding doors
- Recently re-sealed and re-painted roof
- Good sized covered deck leading to easy-care gardens
- Car accommodation is provided by a double lockup garage and gated carport
Read MoreThe home provides generous living in the form of a living room, a kitchen/dining area and a large family room which opens to a private covered deck and beyond to the easy-care garden. The kitchen has a new stainless steel oven and rangehood, as well as an electric cooktop, dishwasher and breakfast bar.
The three bedrooms are generous and offer built in robes. The bathroom has been repainted and features a spa bath.
The home also features ducted reverse cycle air conditioning, roller shutters on the dining room window, a powered double lockup garage with ample storage space, and a gated carport.
Please call Andrew Thorpe to arrange a private inspection of this fantastic property should you be unable to make the open homes.
Property Features:
- Well presented three bedroom, single bathroom family home
- Generous living areas including a living room, a kitchen/dining area and a large family room
- Neat kitchen includes electric cook-top, dishwasher, new stainless steel oven, rangehood and breakfast bar
- Spacious bathroom with spa bath
- Ducted reverse cycle air conditioning
- New exterior sliding doors
- Recently re-sealed and re-painted roof
- Good sized covered deck leading to easy-care gardens
- Car accommodation is provided by a double lockup garage and gated carport
Inspect
Contact agent
Listing agent
Prior to enquiry or inspection of this property you may wish to review our Information Collection Notice and Privacy Policy.
Privacy & Collection NoticeThis well presented three bedroom home is a must see for first home buyers. Sited on a large level block in a quiet cul de sac, close to the tuggeranong town centre and with easy access to the Tuggeranong Parkway and other arterial roads.
The home provides generous living in the form of a living room, a kitchen/dining area and a large family room which opens to a private covered deck and beyond to the easy-care garden. The kitchen has a new stainless steel oven and rangehood, as well as an electric cooktop, dishwasher and breakfast bar.
The three bedrooms are generous and offer built in robes. The bathroom has been repainted and features a spa bath.
The home also features ducted reverse cycle air conditioning, roller shutters on the dining room window, a powered double lockup garage with ample storage space, and a gated carport.
Please call Andrew Thorpe to arrange a private inspection of this fantastic property should you be unable to make the open homes.
Property Features:
- Well presented three bedroom, single bathroom family home
- Generous living areas including a living room, a kitchen/dining area and a large family room
- Neat kitchen includes electric cook-top, dishwasher, new stainless steel oven, rangehood and breakfast bar
- Spacious bathroom with spa bath
- Ducted reverse cycle air conditioning
- New exterior sliding doors
- Recently re-sealed and re-painted roof
- Good sized covered deck leading to easy-care gardens
- Car accommodation is provided by a double lockup garage and gated carport
Read MoreThe home provides generous living in the form of a living room, a kitchen/dining area and a large family room which opens to a private covered deck and beyond to the easy-care garden. The kitchen has a new stainless steel oven and rangehood, as well as an electric cooktop, dishwasher and breakfast bar.
The three bedrooms are generous and offer built in robes. The bathroom has been repainted and features a spa bath.
The home also features ducted reverse cycle air conditioning, roller shutters on the dining room window, a powered double lockup garage with ample storage space, and a gated carport.
Please call Andrew Thorpe to arrange a private inspection of this fantastic property should you be unable to make the open homes.
Property Features:
- Well presented three bedroom, single bathroom family home
- Generous living areas including a living room, a kitchen/dining area and a large family room
- Neat kitchen includes electric cook-top, dishwasher, new stainless steel oven, rangehood and breakfast bar
- Spacious bathroom with spa bath
- Ducted reverse cycle air conditioning
- New exterior sliding doors
- Recently re-sealed and re-painted roof
- Good sized covered deck leading to easy-care gardens
- Car accommodation is provided by a double lockup garage and gated carport

Location
Lot 12/21 McLeod Place
Kambah ACT 2902
Details
3
1
3
House
By negotiation
Rates: | $1,410.00 annually |
Land area: | 634 sqm (approx) |
This well presented three bedroom home is a must see for first home buyers. Sited on a large level block in a quiet cul de sac, close to the tuggeranong town centre and with easy access to the Tuggeranong Parkway and other arterial roads.
The home provides generous living in the form of a living room, a kitchen/dining area and a large family room which opens to a private covered deck and beyond to the easy-care garden. The kitchen has a new stainless steel oven and rangehood, as well as an electric cooktop, dishwasher and breakfast bar.
The three bedrooms are generous and offer built in robes. The bathroom has been repainted and features a spa bath.
The home also features ducted reverse cycle air conditioning, roller shutters on the dining room window, a powered double lockup garage with ample storage space, and a gated carport.
Please call Andrew Thorpe to arrange a private inspection of this fantastic property should you be unable to make the open homes.
Property Features:
- Well presented three bedroom, single bathroom family home
- Generous living areas including a living room, a kitchen/dining area and a large family room
- Neat kitchen includes electric cook-top, dishwasher, new stainless steel oven, rangehood and breakfast bar
- Spacious bathroom with spa bath
- Ducted reverse cycle air conditioning
- New exterior sliding doors
- Recently re-sealed and re-painted roof
- Good sized covered deck leading to easy-care gardens
- Car accommodation is provided by a double lockup garage and gated carport
Read MoreThe home provides generous living in the form of a living room, a kitchen/dining area and a large family room which opens to a private covered deck and beyond to the easy-care garden. The kitchen has a new stainless steel oven and rangehood, as well as an electric cooktop, dishwasher and breakfast bar.
The three bedrooms are generous and offer built in robes. The bathroom has been repainted and features a spa bath.
The home also features ducted reverse cycle air conditioning, roller shutters on the dining room window, a powered double lockup garage with ample storage space, and a gated carport.
Please call Andrew Thorpe to arrange a private inspection of this fantastic property should you be unable to make the open homes.
Property Features:
- Well presented three bedroom, single bathroom family home
- Generous living areas including a living room, a kitchen/dining area and a large family room
- Neat kitchen includes electric cook-top, dishwasher, new stainless steel oven, rangehood and breakfast bar
- Spacious bathroom with spa bath
- Ducted reverse cycle air conditioning
- New exterior sliding doors
- Recently re-sealed and re-painted roof
- Good sized covered deck leading to easy-care gardens
- Car accommodation is provided by a double lockup garage and gated carport
Inspect
Contact agent
Listing agent
Prior to enquiry or inspection of this property you may wish to review our Information Collection Notice and Privacy Policy.
Privacy & Collection Notice













































