Four bedroom home with a Rural Outlook
Sold
Location
Lot 13/36 Bellchambers Crescent
Banks ACT 2906
Details
4
2
2
EER: 3.5
House
Sold
Rates: | $2,354.00 annually |
Land area: | 935 sqm (approx) |
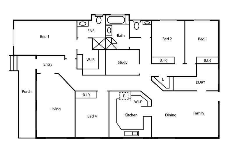
This property is a well proportioned four bedroom home with segregated master bedroom, ensuite and large walkin robe. A large separate lounge room to relax, with open plan family and meals area that open to the kitchen for your convenience. Stepping on out to the rear covered Deck that overlooks the large yard and paddocks, with cows wondering, birdlife in trees and mountains in the background, you feel like you are in the country without leaving suburbia. Four large bedrooms, separate living areas, Gas cooking and hot water, Walk in Pantry, Walk in Linen cupboard, Hydronic Heating and Split system heating and cooling. Double garage with drive through access with a large yard to play. 1.5KW Solar system located on a well presented approx 935 metre block, backing onto paddocks and located in close proximity to main roads local shops, schools, Lanyon market place, Point Hut Crossing and Lanyon Homestead. Please call Kate on 0404 857 929 to discuss further and or request a contract or email kcoultas@peterblackshawtuggeranong.com.au
Read MoreInspect
Contact agent
Listing agent
Prior to enquiry or inspection of this property you may wish to review our Information Collection Notice and Privacy Policy.
Privacy & Collection NoticeThis property is a well proportioned four bedroom home with segregated master bedroom, ensuite and large walkin robe. A large separate lounge room to relax, with open plan family and meals area that open to the kitchen for your convenience. Stepping on out to the rear covered Deck that overlooks the large yard and paddocks, with cows wondering, birdlife in trees and mountains in the background, you feel like you are in the country without leaving suburbia. Four large bedrooms, separate living areas, Gas cooking and hot water, Walk in Pantry, Walk in Linen cupboard, Hydronic Heating and Split system heating and cooling. Double garage with drive through access with a large yard to play. 1.5KW Solar system located on a well presented approx 935 metre block, backing onto paddocks and located in close proximity to main roads local shops, schools, Lanyon market place, Point Hut Crossing and Lanyon Homestead. Please call Kate on 0404 857 929 to discuss further and or request a contract or email kcoultas@peterblackshawtuggeranong.com.au
Read More
Location
Lot 13/36 Bellchambers Crescent
Banks ACT 2906
Details
4
2
2
EER: 3.5
House
Sold
Rates: | $2,354.00 annually |
Land area: | 935 sqm (approx) |
This property is a well proportioned four bedroom home with segregated master bedroom, ensuite and large walkin robe. A large separate lounge room to relax, with open plan family and meals area that open to the kitchen for your convenience. Stepping on out to the rear covered Deck that overlooks the large yard and paddocks, with cows wondering, birdlife in trees and mountains in the background, you feel like you are in the country without leaving suburbia. Four large bedrooms, separate living areas, Gas cooking and hot water, Walk in Pantry, Walk in Linen cupboard, Hydronic Heating and Split system heating and cooling. Double garage with drive through access with a large yard to play. 1.5KW Solar system located on a well presented approx 935 metre block, backing onto paddocks and located in close proximity to main roads local shops, schools, Lanyon market place, Point Hut Crossing and Lanyon Homestead. Please call Kate on 0404 857 929 to discuss further and or request a contract or email kcoultas@peterblackshawtuggeranong.com.au
Read MoreInspect
Contact agent
Listing agent
Prior to enquiry or inspection of this property you may wish to review our Information Collection Notice and Privacy Policy.
Privacy & Collection Notice







































