Location Location
Sold
Location
Lot 15/8 Crampton Place
Fadden ACT 2904
Details
4
2
2
House
Auction Saturday, 19 Mar 10:00 AM On site
Rates: | $2,015.00 annually |
Land area: | 728 sqm (approx) |
Set in a quiet location, Tuggeranong's premier suburb presents a home that would suit a multitude of buyers. The neat and tidy functional floor plan of this 4 bedroom plus ensuite home would be appealing to young & growing families, or those with teenagers looking for their own space.
The lounge, dining & well-proportioned kitchen flow seamlessly into the family room. Those who like to entertain family & friends will appreciate the space this area provides.
The main bedroom has an ensuite and views of the mountains, The other bedrooms are a good size and are more than capable of accommodating younger children or teenagers.
The backyard is easy care, with a covered outdoor entertaining area to BBQ and entertain, and enough room for the kids to play.
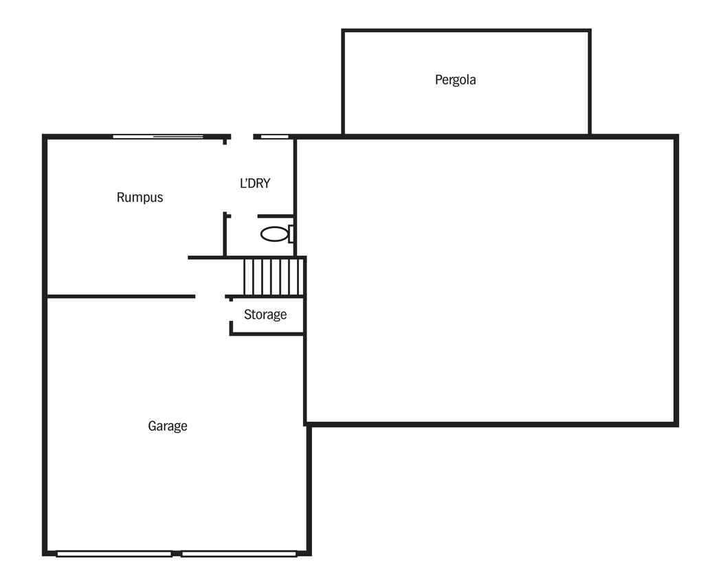
The double garage located on the ground level with under house storage allows for those that like to spend some time on the tools or work on their hobbies. There is also a rumpus with powder room located on this level which can be accessed externally as well as through the house.
This family home is in a convenient location, close to schools for all ages including Holy Family Catholic school. It is minutes away from Erindale Shopping Centre, Tuggeranong Hyperdome and is less than 10 minutes to the Woden Shopping Centre. For those who work in the city, there is public transport close by or else a 15 minutes drive in the car. An inspection is an absolute must.
Additional features include:
Split level home
Four Bedroom with Ensuite
Views over the valley
Ducted gas heating
Fresh paint and carpet
Covered entertaining area
Downstairs rumpus with powder room
Double garage
This is not an opportunity to be missed please call Kate on 0404 857 929 to discuss further or request a contract
Read MoreThe lounge, dining & well-proportioned kitchen flow seamlessly into the family room. Those who like to entertain family & friends will appreciate the space this area provides.
The main bedroom has an ensuite and views of the mountains, The other bedrooms are a good size and are more than capable of accommodating younger children or teenagers.
The backyard is easy care, with a covered outdoor entertaining area to BBQ and entertain, and enough room for the kids to play.
The double garage located on the ground level with under house storage allows for those that like to spend some time on the tools or work on their hobbies. There is also a rumpus with powder room located on this level which can be accessed externally as well as through the house.
This family home is in a convenient location, close to schools for all ages including Holy Family Catholic school. It is minutes away from Erindale Shopping Centre, Tuggeranong Hyperdome and is less than 10 minutes to the Woden Shopping Centre. For those who work in the city, there is public transport close by or else a 15 minutes drive in the car. An inspection is an absolute must.
Additional features include:
Split level home
Four Bedroom with Ensuite
Views over the valley
Ducted gas heating
Fresh paint and carpet
Covered entertaining area
Downstairs rumpus with powder room
Double garage
This is not an opportunity to be missed please call Kate on 0404 857 929 to discuss further or request a contract
Inspect
Contact agent
Listing agent
Prior to enquiry or inspection of this property you may wish to review our Information Collection Notice and Privacy Policy.
Privacy & Collection NoticeSet in a quiet location, Tuggeranong's premier suburb presents a home that would suit a multitude of buyers. The neat and tidy functional floor plan of this 4 bedroom plus ensuite home would be appealing to young & growing families, or those with teenagers looking for their own space.
The lounge, dining & well-proportioned kitchen flow seamlessly into the family room. Those who like to entertain family & friends will appreciate the space this area provides.
The main bedroom has an ensuite and views of the mountains, The other bedrooms are a good size and are more than capable of accommodating younger children or teenagers.
The backyard is easy care, with a covered outdoor entertaining area to BBQ and entertain, and enough room for the kids to play.
The double garage located on the ground level with under house storage allows for those that like to spend some time on the tools or work on their hobbies. There is also a rumpus with powder room located on this level which can be accessed externally as well as through the house.
This family home is in a convenient location, close to schools for all ages including Holy Family Catholic school. It is minutes away from Erindale Shopping Centre, Tuggeranong Hyperdome and is less than 10 minutes to the Woden Shopping Centre. For those who work in the city, there is public transport close by or else a 15 minutes drive in the car. An inspection is an absolute must.
Additional features include:
Split level home
Four Bedroom with Ensuite
Views over the valley
Ducted gas heating
Fresh paint and carpet
Covered entertaining area
Downstairs rumpus with powder room
Double garage
This is not an opportunity to be missed please call Kate on 0404 857 929 to discuss further or request a contract
Read MoreThe lounge, dining & well-proportioned kitchen flow seamlessly into the family room. Those who like to entertain family & friends will appreciate the space this area provides.
The main bedroom has an ensuite and views of the mountains, The other bedrooms are a good size and are more than capable of accommodating younger children or teenagers.
The backyard is easy care, with a covered outdoor entertaining area to BBQ and entertain, and enough room for the kids to play.
The double garage located on the ground level with under house storage allows for those that like to spend some time on the tools or work on their hobbies. There is also a rumpus with powder room located on this level which can be accessed externally as well as through the house.
This family home is in a convenient location, close to schools for all ages including Holy Family Catholic school. It is minutes away from Erindale Shopping Centre, Tuggeranong Hyperdome and is less than 10 minutes to the Woden Shopping Centre. For those who work in the city, there is public transport close by or else a 15 minutes drive in the car. An inspection is an absolute must.
Additional features include:
Split level home
Four Bedroom with Ensuite
Views over the valley
Ducted gas heating
Fresh paint and carpet
Covered entertaining area
Downstairs rumpus with powder room
Double garage
This is not an opportunity to be missed please call Kate on 0404 857 929 to discuss further or request a contract

Location
Lot 15/8 Crampton Place
Fadden ACT 2904
Details
4
2
2
House
Auction Saturday, 19 Mar 10:00 AM On site
Rates: | $2,015.00 annually |
Land area: | 728 sqm (approx) |
Set in a quiet location, Tuggeranong's premier suburb presents a home that would suit a multitude of buyers. The neat and tidy functional floor plan of this 4 bedroom plus ensuite home would be appealing to young & growing families, or those with teenagers looking for their own space.
The lounge, dining & well-proportioned kitchen flow seamlessly into the family room. Those who like to entertain family & friends will appreciate the space this area provides.
The main bedroom has an ensuite and views of the mountains, The other bedrooms are a good size and are more than capable of accommodating younger children or teenagers.
The backyard is easy care, with a covered outdoor entertaining area to BBQ and entertain, and enough room for the kids to play.
The double garage located on the ground level with under house storage allows for those that like to spend some time on the tools or work on their hobbies. There is also a rumpus with powder room located on this level which can be accessed externally as well as through the house.
This family home is in a convenient location, close to schools for all ages including Holy Family Catholic school. It is minutes away from Erindale Shopping Centre, Tuggeranong Hyperdome and is less than 10 minutes to the Woden Shopping Centre. For those who work in the city, there is public transport close by or else a 15 minutes drive in the car. An inspection is an absolute must.
Additional features include:
Split level home
Four Bedroom with Ensuite
Views over the valley
Ducted gas heating
Fresh paint and carpet
Covered entertaining area
Downstairs rumpus with powder room
Double garage
This is not an opportunity to be missed please call Kate on 0404 857 929 to discuss further or request a contract
Read MoreThe lounge, dining & well-proportioned kitchen flow seamlessly into the family room. Those who like to entertain family & friends will appreciate the space this area provides.
The main bedroom has an ensuite and views of the mountains, The other bedrooms are a good size and are more than capable of accommodating younger children or teenagers.
The backyard is easy care, with a covered outdoor entertaining area to BBQ and entertain, and enough room for the kids to play.
The double garage located on the ground level with under house storage allows for those that like to spend some time on the tools or work on their hobbies. There is also a rumpus with powder room located on this level which can be accessed externally as well as through the house.
This family home is in a convenient location, close to schools for all ages including Holy Family Catholic school. It is minutes away from Erindale Shopping Centre, Tuggeranong Hyperdome and is less than 10 minutes to the Woden Shopping Centre. For those who work in the city, there is public transport close by or else a 15 minutes drive in the car. An inspection is an absolute must.
Additional features include:
Split level home
Four Bedroom with Ensuite
Views over the valley
Ducted gas heating
Fresh paint and carpet
Covered entertaining area
Downstairs rumpus with powder room
Double garage
This is not an opportunity to be missed please call Kate on 0404 857 929 to discuss further or request a contract
Inspect
Contact agent
Listing agent
Prior to enquiry or inspection of this property you may wish to review our Information Collection Notice and Privacy Policy.
Privacy & Collection Notice

















































