Rural Luxury
Sold
Location
Lot 20/3 Kinsman Drive
Murrumbateman NSW 2582
Details
4
1
2
House
$615,000
Land area: | 7732 sqm (approx) |
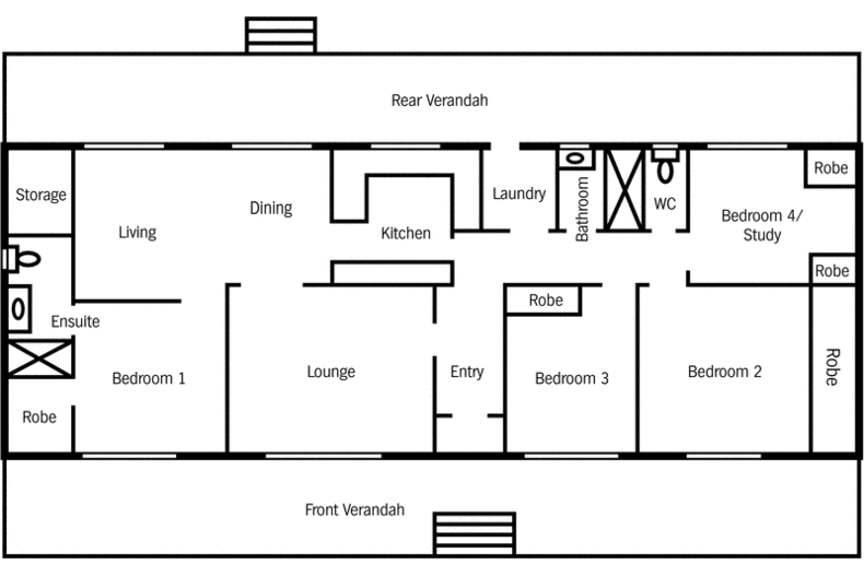
Picturesque, beautifully maintained and situated on two acres is this immaculate sunny four bedroom ensuite residence. The established, mature grounds and lovely modern French provincial dcor can be yours to enjoy. Surrounded by verandahs on both sides and established plantings including fruit, olive and citrus trees, this property offers a great rural life style in a very active community without the hassle of a larger block. Living areas comprise a segregated lounge plus distinct dining/family area with solid timber floors and slow combustion fire place. The attractive kitchen and breakfast area has been tastefully updated with stainless steel appliances and gas cooking. The master bedroom includes a walk-in robe and renovated ensuite while the secondary bedrooms are all well sized and include built in robes. The acres of land have been adapted to accommodate horses, chickens and other small animals. A large shed located towards the front of the property includes remote access and can hold up to four vehicles. Boasting a third bathroom and kitchenette with woodstove, there is plenty for the entertainer. A dam and on-site bore ensure a permanent water supply to keep the gardens looking beautiful. Located within an easy commute to Canberra this is an ideal lifestyle opportunity.
Internal
Updated four bedroom home
Main bedroom with walk-in robe and ensuite
Solid timber flooring
Split system and slow combustion fire place to family room
Ceiling fan to master bedroom and family room
Ducted gas heating throughout home
Segregated lounge room
External
Besser block construction
Positioned on two acres of land
Large shed with two roller doors, workshop area plus kitchenette
Dam/Bore water
Horse stables and chicken yard
Sun soaked verandah front and back
Established garden
Fruit, olive and citrus trees
Vegetable garden
Outdoor entertaining area
Large shed with roller door including: storage, toilet and kitchenette with stove
Read MoreInternal
Updated four bedroom home
Main bedroom with walk-in robe and ensuite
Solid timber flooring
Split system and slow combustion fire place to family room
Ceiling fan to master bedroom and family room
Ducted gas heating throughout home
Segregated lounge room
External
Besser block construction
Positioned on two acres of land
Large shed with two roller doors, workshop area plus kitchenette
Dam/Bore water
Horse stables and chicken yard
Sun soaked verandah front and back
Established garden
Fruit, olive and citrus trees
Vegetable garden
Outdoor entertaining area
Large shed with roller door including: storage, toilet and kitchenette with stove
Inspect
Contact agent
Listing agents
Prior to enquiry or inspection of this property you may wish to review our Information Collection Notice and Privacy Policy.
Privacy & Collection NoticePicturesque, beautifully maintained and situated on two acres is this immaculate sunny four bedroom ensuite residence. The established, mature grounds and lovely modern French provincial dcor can be yours to enjoy. Surrounded by verandahs on both sides and established plantings including fruit, olive and citrus trees, this property offers a great rural life style in a very active community without the hassle of a larger block. Living areas comprise a segregated lounge plus distinct dining/family area with solid timber floors and slow combustion fire place. The attractive kitchen and breakfast area has been tastefully updated with stainless steel appliances and gas cooking. The master bedroom includes a walk-in robe and renovated ensuite while the secondary bedrooms are all well sized and include built in robes. The acres of land have been adapted to accommodate horses, chickens and other small animals. A large shed located towards the front of the property includes remote access and can hold up to four vehicles. Boasting a third bathroom and kitchenette with woodstove, there is plenty for the entertainer. A dam and on-site bore ensure a permanent water supply to keep the gardens looking beautiful. Located within an easy commute to Canberra this is an ideal lifestyle opportunity.
Internal
Updated four bedroom home
Main bedroom with walk-in robe and ensuite
Solid timber flooring
Split system and slow combustion fire place to family room
Ceiling fan to master bedroom and family room
Ducted gas heating throughout home
Segregated lounge room
External
Besser block construction
Positioned on two acres of land
Large shed with two roller doors, workshop area plus kitchenette
Dam/Bore water
Horse stables and chicken yard
Sun soaked verandah front and back
Established garden
Fruit, olive and citrus trees
Vegetable garden
Outdoor entertaining area
Large shed with roller door including: storage, toilet and kitchenette with stove
Read MoreInternal
Updated four bedroom home
Main bedroom with walk-in robe and ensuite
Solid timber flooring
Split system and slow combustion fire place to family room
Ceiling fan to master bedroom and family room
Ducted gas heating throughout home
Segregated lounge room
External
Besser block construction
Positioned on two acres of land
Large shed with two roller doors, workshop area plus kitchenette
Dam/Bore water
Horse stables and chicken yard
Sun soaked verandah front and back
Established garden
Fruit, olive and citrus trees
Vegetable garden
Outdoor entertaining area
Large shed with roller door including: storage, toilet and kitchenette with stove

Location
Lot 20/3 Kinsman Drive
Murrumbateman NSW 2582
Details
4
1
2
House
$615,000
Land area: | 7732 sqm (approx) |
Picturesque, beautifully maintained and situated on two acres is this immaculate sunny four bedroom ensuite residence. The established, mature grounds and lovely modern French provincial dcor can be yours to enjoy. Surrounded by verandahs on both sides and established plantings including fruit, olive and citrus trees, this property offers a great rural life style in a very active community without the hassle of a larger block. Living areas comprise a segregated lounge plus distinct dining/family area with solid timber floors and slow combustion fire place. The attractive kitchen and breakfast area has been tastefully updated with stainless steel appliances and gas cooking. The master bedroom includes a walk-in robe and renovated ensuite while the secondary bedrooms are all well sized and include built in robes. The acres of land have been adapted to accommodate horses, chickens and other small animals. A large shed located towards the front of the property includes remote access and can hold up to four vehicles. Boasting a third bathroom and kitchenette with woodstove, there is plenty for the entertainer. A dam and on-site bore ensure a permanent water supply to keep the gardens looking beautiful. Located within an easy commute to Canberra this is an ideal lifestyle opportunity.
Internal
Updated four bedroom home
Main bedroom with walk-in robe and ensuite
Solid timber flooring
Split system and slow combustion fire place to family room
Ceiling fan to master bedroom and family room
Ducted gas heating throughout home
Segregated lounge room
External
Besser block construction
Positioned on two acres of land
Large shed with two roller doors, workshop area plus kitchenette
Dam/Bore water
Horse stables and chicken yard
Sun soaked verandah front and back
Established garden
Fruit, olive and citrus trees
Vegetable garden
Outdoor entertaining area
Large shed with roller door including: storage, toilet and kitchenette with stove
Read MoreInternal
Updated four bedroom home
Main bedroom with walk-in robe and ensuite
Solid timber flooring
Split system and slow combustion fire place to family room
Ceiling fan to master bedroom and family room
Ducted gas heating throughout home
Segregated lounge room
External
Besser block construction
Positioned on two acres of land
Large shed with two roller doors, workshop area plus kitchenette
Dam/Bore water
Horse stables and chicken yard
Sun soaked verandah front and back
Established garden
Fruit, olive and citrus trees
Vegetable garden
Outdoor entertaining area
Large shed with roller door including: storage, toilet and kitchenette with stove
Inspect
Contact agent
Listing agents
Prior to enquiry or inspection of this property you may wish to review our Information Collection Notice and Privacy Policy.
Privacy & Collection Notice














































