Exceptional buying single level home with new kitchen.
Sold
Location
Lot 25/9 Muskett Place
Conder ACT 2906
Details
5
2
2
EER: 2.5
House
Auction Saturday, 29 Aug 04:00 PM On site
Land area: | 924 sqm (approx) |
Building size: | 252.1 sqm (approx) |
Owner's sea change brings great opportunity to one lucky buyer.
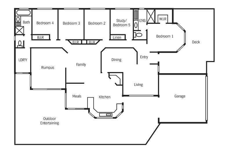
If you're looking for a great family home with exceptional views and nothing to do and only minutes' walk to local shops, schools and club then this is the home for you. Take advantage of the large open plan living areas, four large bedrooms, main with ensuite, study or fifth bedroom, separate lounge and dining, family room, rumpus and double garage. This property is great for entertaining with a large covered entertaining area of the rumpus and living areas and comes with a covered outdoor spa.
• New Kitchen
• New carpets
• New internal paint
• Elevated block of 924m2
• Ducted heating and evaporative cooling
• Double garage
• Extra off street parking
• Large outdoor entertaining
• Four/five bedrooms
• Rumpus room
• Covered outdoor spa
• Ducted vacuum
This is a very solid investment in a sought after location that needs to be inspected, so call today!
Read MoreIf you're looking for a great family home with exceptional views and nothing to do and only minutes' walk to local shops, schools and club then this is the home for you. Take advantage of the large open plan living areas, four large bedrooms, main with ensuite, study or fifth bedroom, separate lounge and dining, family room, rumpus and double garage. This property is great for entertaining with a large covered entertaining area of the rumpus and living areas and comes with a covered outdoor spa.
• New Kitchen
• New carpets
• New internal paint
• Elevated block of 924m2
• Ducted heating and evaporative cooling
• Double garage
• Extra off street parking
• Large outdoor entertaining
• Four/five bedrooms
• Rumpus room
• Covered outdoor spa
• Ducted vacuum
This is a very solid investment in a sought after location that needs to be inspected, so call today!
Inspect
Contact agent
Listing agent
Prior to enquiry or inspection of this property you may wish to review our Information Collection Notice and Privacy Policy.
Privacy & Collection NoticeOwner's sea change brings great opportunity to one lucky buyer.
If you're looking for a great family home with exceptional views and nothing to do and only minutes' walk to local shops, schools and club then this is the home for you. Take advantage of the large open plan living areas, four large bedrooms, main with ensuite, study or fifth bedroom, separate lounge and dining, family room, rumpus and double garage. This property is great for entertaining with a large covered entertaining area of the rumpus and living areas and comes with a covered outdoor spa.
• New Kitchen
• New carpets
• New internal paint
• Elevated block of 924m2
• Ducted heating and evaporative cooling
• Double garage
• Extra off street parking
• Large outdoor entertaining
• Four/five bedrooms
• Rumpus room
• Covered outdoor spa
• Ducted vacuum
This is a very solid investment in a sought after location that needs to be inspected, so call today!
Read MoreIf you're looking for a great family home with exceptional views and nothing to do and only minutes' walk to local shops, schools and club then this is the home for you. Take advantage of the large open plan living areas, four large bedrooms, main with ensuite, study or fifth bedroom, separate lounge and dining, family room, rumpus and double garage. This property is great for entertaining with a large covered entertaining area of the rumpus and living areas and comes with a covered outdoor spa.
• New Kitchen
• New carpets
• New internal paint
• Elevated block of 924m2
• Ducted heating and evaporative cooling
• Double garage
• Extra off street parking
• Large outdoor entertaining
• Four/five bedrooms
• Rumpus room
• Covered outdoor spa
• Ducted vacuum
This is a very solid investment in a sought after location that needs to be inspected, so call today!

Location
Lot 25/9 Muskett Place
Conder ACT 2906
Details
5
2
2
EER: 2.5
House
Auction Saturday, 29 Aug 04:00 PM On site
Land area: | 924 sqm (approx) |
Building size: | 252.1 sqm (approx) |
Owner's sea change brings great opportunity to one lucky buyer.
If you're looking for a great family home with exceptional views and nothing to do and only minutes' walk to local shops, schools and club then this is the home for you. Take advantage of the large open plan living areas, four large bedrooms, main with ensuite, study or fifth bedroom, separate lounge and dining, family room, rumpus and double garage. This property is great for entertaining with a large covered entertaining area of the rumpus and living areas and comes with a covered outdoor spa.
• New Kitchen
• New carpets
• New internal paint
• Elevated block of 924m2
• Ducted heating and evaporative cooling
• Double garage
• Extra off street parking
• Large outdoor entertaining
• Four/five bedrooms
• Rumpus room
• Covered outdoor spa
• Ducted vacuum
This is a very solid investment in a sought after location that needs to be inspected, so call today!
Read MoreIf you're looking for a great family home with exceptional views and nothing to do and only minutes' walk to local shops, schools and club then this is the home for you. Take advantage of the large open plan living areas, four large bedrooms, main with ensuite, study or fifth bedroom, separate lounge and dining, family room, rumpus and double garage. This property is great for entertaining with a large covered entertaining area of the rumpus and living areas and comes with a covered outdoor spa.
• New Kitchen
• New carpets
• New internal paint
• Elevated block of 924m2
• Ducted heating and evaporative cooling
• Double garage
• Extra off street parking
• Large outdoor entertaining
• Four/five bedrooms
• Rumpus room
• Covered outdoor spa
• Ducted vacuum
This is a very solid investment in a sought after location that needs to be inspected, so call today!
Inspect
Contact agent
Listing agent
Prior to enquiry or inspection of this property you may wish to review our Information Collection Notice and Privacy Policy.
Privacy & Collection Notice










































