A family home that ticks every box - Do not delay an inspection
Sold
Location
Lot 27/3 Butlin Place
Theodore ACT 2905
Details
4
2
4
House
Offers over $525,000
Rates: | $1,468.00 annually |
Land area: | 806 sqm (approx) |
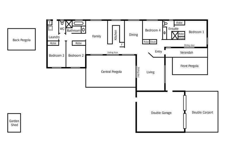
It's not often that the opportunity arises to secure a property with so much to offer in a desirable location. Positioned on the high side of the street in a quiet cul-de-sac it offers maximum space and absolute privacy. This marvellous single level design offers a superb floor plan, complemented by stunning established surrounds offering an array of fruit and berries.
The home includes a variety of formal and casual living spaces, the versatile floor plan features segregated accommodation and three wonderful entertaining options. The functional kitchen is no exception - a vast galley style with an abundance of bench space, great storage, dishwasher, modern appliances and pleasant garden views. Designed for comfort, this home has segregated generously sized bedrooms all with built-in-robes and the master bedroom includes an large ensuite and spacious wardrobe, all rooms enjoy a stunning green outlook and an abundance of natural light.
A bonus third pergola is located at the rear of the property where there is also a quality garden shed. The back yard is thoughtfully serviced by a four zone automatic irrigation system. Year round comfort is provided throughout the house by ducted gas heating, evaporative cooling and a split system air-conditioner in the central kitchen/family room. A thirty tube solar hot water system with 300L stainless steel tank is a great bonus and the elevated ceiling with its skylights above the spacious kitchen are a lovely touch. As the home has been well maintained you can simply move in. This home would ideally suit a family seeking plenty of space, great grounds, car accommodation for four, plus room for a workshop in the garage.
Considerable land holding offering maximum privacy and space
Beautiful established gardens offering an array decorative trees and roses, fruit trees and berries
Irrigation throughout the back garden, shed and three pleasant covered outdoor entertaining options
Large 8 person spa hidden away in a secluded courtyard
Great location close to local schools and shops
Car accommodation includes an oversized double garage and attached double carport
Spacious single level four bedroom home
Versatile design offering formal and informal living
Modern 30 tube solar hot water system with large stainless steel tank
Ducted gas heating, evaporative cooling and allocated split system for year round comfort
Inspections will confirm the quality of this rare offering.
Read MoreThe home includes a variety of formal and casual living spaces, the versatile floor plan features segregated accommodation and three wonderful entertaining options. The functional kitchen is no exception - a vast galley style with an abundance of bench space, great storage, dishwasher, modern appliances and pleasant garden views. Designed for comfort, this home has segregated generously sized bedrooms all with built-in-robes and the master bedroom includes an large ensuite and spacious wardrobe, all rooms enjoy a stunning green outlook and an abundance of natural light.
A bonus third pergola is located at the rear of the property where there is also a quality garden shed. The back yard is thoughtfully serviced by a four zone automatic irrigation system. Year round comfort is provided throughout the house by ducted gas heating, evaporative cooling and a split system air-conditioner in the central kitchen/family room. A thirty tube solar hot water system with 300L stainless steel tank is a great bonus and the elevated ceiling with its skylights above the spacious kitchen are a lovely touch. As the home has been well maintained you can simply move in. This home would ideally suit a family seeking plenty of space, great grounds, car accommodation for four, plus room for a workshop in the garage.
Considerable land holding offering maximum privacy and space
Beautiful established gardens offering an array decorative trees and roses, fruit trees and berries
Irrigation throughout the back garden, shed and three pleasant covered outdoor entertaining options
Large 8 person spa hidden away in a secluded courtyard
Great location close to local schools and shops
Car accommodation includes an oversized double garage and attached double carport
Spacious single level four bedroom home
Versatile design offering formal and informal living
Modern 30 tube solar hot water system with large stainless steel tank
Ducted gas heating, evaporative cooling and allocated split system for year round comfort
Inspections will confirm the quality of this rare offering.
Inspect
Contact agent
Listing agent
Prior to enquiry or inspection of this property you may wish to review our Information Collection Notice and Privacy Policy.
Privacy & Collection NoticeIt's not often that the opportunity arises to secure a property with so much to offer in a desirable location. Positioned on the high side of the street in a quiet cul-de-sac it offers maximum space and absolute privacy. This marvellous single level design offers a superb floor plan, complemented by stunning established surrounds offering an array of fruit and berries.
The home includes a variety of formal and casual living spaces, the versatile floor plan features segregated accommodation and three wonderful entertaining options. The functional kitchen is no exception - a vast galley style with an abundance of bench space, great storage, dishwasher, modern appliances and pleasant garden views. Designed for comfort, this home has segregated generously sized bedrooms all with built-in-robes and the master bedroom includes an large ensuite and spacious wardrobe, all rooms enjoy a stunning green outlook and an abundance of natural light.
A bonus third pergola is located at the rear of the property where there is also a quality garden shed. The back yard is thoughtfully serviced by a four zone automatic irrigation system. Year round comfort is provided throughout the house by ducted gas heating, evaporative cooling and a split system air-conditioner in the central kitchen/family room. A thirty tube solar hot water system with 300L stainless steel tank is a great bonus and the elevated ceiling with its skylights above the spacious kitchen are a lovely touch. As the home has been well maintained you can simply move in. This home would ideally suit a family seeking plenty of space, great grounds, car accommodation for four, plus room for a workshop in the garage.
Considerable land holding offering maximum privacy and space
Beautiful established gardens offering an array decorative trees and roses, fruit trees and berries
Irrigation throughout the back garden, shed and three pleasant covered outdoor entertaining options
Large 8 person spa hidden away in a secluded courtyard
Great location close to local schools and shops
Car accommodation includes an oversized double garage and attached double carport
Spacious single level four bedroom home
Versatile design offering formal and informal living
Modern 30 tube solar hot water system with large stainless steel tank
Ducted gas heating, evaporative cooling and allocated split system for year round comfort
Inspections will confirm the quality of this rare offering.
Read MoreThe home includes a variety of formal and casual living spaces, the versatile floor plan features segregated accommodation and three wonderful entertaining options. The functional kitchen is no exception - a vast galley style with an abundance of bench space, great storage, dishwasher, modern appliances and pleasant garden views. Designed for comfort, this home has segregated generously sized bedrooms all with built-in-robes and the master bedroom includes an large ensuite and spacious wardrobe, all rooms enjoy a stunning green outlook and an abundance of natural light.
A bonus third pergola is located at the rear of the property where there is also a quality garden shed. The back yard is thoughtfully serviced by a four zone automatic irrigation system. Year round comfort is provided throughout the house by ducted gas heating, evaporative cooling and a split system air-conditioner in the central kitchen/family room. A thirty tube solar hot water system with 300L stainless steel tank is a great bonus and the elevated ceiling with its skylights above the spacious kitchen are a lovely touch. As the home has been well maintained you can simply move in. This home would ideally suit a family seeking plenty of space, great grounds, car accommodation for four, plus room for a workshop in the garage.
Considerable land holding offering maximum privacy and space
Beautiful established gardens offering an array decorative trees and roses, fruit trees and berries
Irrigation throughout the back garden, shed and three pleasant covered outdoor entertaining options
Large 8 person spa hidden away in a secluded courtyard
Great location close to local schools and shops
Car accommodation includes an oversized double garage and attached double carport
Spacious single level four bedroom home
Versatile design offering formal and informal living
Modern 30 tube solar hot water system with large stainless steel tank
Ducted gas heating, evaporative cooling and allocated split system for year round comfort
Inspections will confirm the quality of this rare offering.

Location
Lot 27/3 Butlin Place
Theodore ACT 2905
Details
4
2
4
House
Offers over $525,000
Rates: | $1,468.00 annually |
Land area: | 806 sqm (approx) |
It's not often that the opportunity arises to secure a property with so much to offer in a desirable location. Positioned on the high side of the street in a quiet cul-de-sac it offers maximum space and absolute privacy. This marvellous single level design offers a superb floor plan, complemented by stunning established surrounds offering an array of fruit and berries.
The home includes a variety of formal and casual living spaces, the versatile floor plan features segregated accommodation and three wonderful entertaining options. The functional kitchen is no exception - a vast galley style with an abundance of bench space, great storage, dishwasher, modern appliances and pleasant garden views. Designed for comfort, this home has segregated generously sized bedrooms all with built-in-robes and the master bedroom includes an large ensuite and spacious wardrobe, all rooms enjoy a stunning green outlook and an abundance of natural light.
A bonus third pergola is located at the rear of the property where there is also a quality garden shed. The back yard is thoughtfully serviced by a four zone automatic irrigation system. Year round comfort is provided throughout the house by ducted gas heating, evaporative cooling and a split system air-conditioner in the central kitchen/family room. A thirty tube solar hot water system with 300L stainless steel tank is a great bonus and the elevated ceiling with its skylights above the spacious kitchen are a lovely touch. As the home has been well maintained you can simply move in. This home would ideally suit a family seeking plenty of space, great grounds, car accommodation for four, plus room for a workshop in the garage.
Considerable land holding offering maximum privacy and space
Beautiful established gardens offering an array decorative trees and roses, fruit trees and berries
Irrigation throughout the back garden, shed and three pleasant covered outdoor entertaining options
Large 8 person spa hidden away in a secluded courtyard
Great location close to local schools and shops
Car accommodation includes an oversized double garage and attached double carport
Spacious single level four bedroom home
Versatile design offering formal and informal living
Modern 30 tube solar hot water system with large stainless steel tank
Ducted gas heating, evaporative cooling and allocated split system for year round comfort
Inspections will confirm the quality of this rare offering.
Read MoreThe home includes a variety of formal and casual living spaces, the versatile floor plan features segregated accommodation and three wonderful entertaining options. The functional kitchen is no exception - a vast galley style with an abundance of bench space, great storage, dishwasher, modern appliances and pleasant garden views. Designed for comfort, this home has segregated generously sized bedrooms all with built-in-robes and the master bedroom includes an large ensuite and spacious wardrobe, all rooms enjoy a stunning green outlook and an abundance of natural light.
A bonus third pergola is located at the rear of the property where there is also a quality garden shed. The back yard is thoughtfully serviced by a four zone automatic irrigation system. Year round comfort is provided throughout the house by ducted gas heating, evaporative cooling and a split system air-conditioner in the central kitchen/family room. A thirty tube solar hot water system with 300L stainless steel tank is a great bonus and the elevated ceiling with its skylights above the spacious kitchen are a lovely touch. As the home has been well maintained you can simply move in. This home would ideally suit a family seeking plenty of space, great grounds, car accommodation for four, plus room for a workshop in the garage.
Considerable land holding offering maximum privacy and space
Beautiful established gardens offering an array decorative trees and roses, fruit trees and berries
Irrigation throughout the back garden, shed and three pleasant covered outdoor entertaining options
Large 8 person spa hidden away in a secluded courtyard
Great location close to local schools and shops
Car accommodation includes an oversized double garage and attached double carport
Spacious single level four bedroom home
Versatile design offering formal and informal living
Modern 30 tube solar hot water system with large stainless steel tank
Ducted gas heating, evaporative cooling and allocated split system for year round comfort
Inspections will confirm the quality of this rare offering.
Inspect
Contact agent
Listing agent
Prior to enquiry or inspection of this property you may wish to review our Information Collection Notice and Privacy Policy.
Privacy & Collection Notice















































