Today's comfort, tomorrow's luxury
Sold
Location
Lot 3/36 Tatchell Street
Calwell ACT 2905
Details
5
3
2
House
$675,000
Rates: | $1,710.00 annually |
Land area: | 812 sqm (approx) |
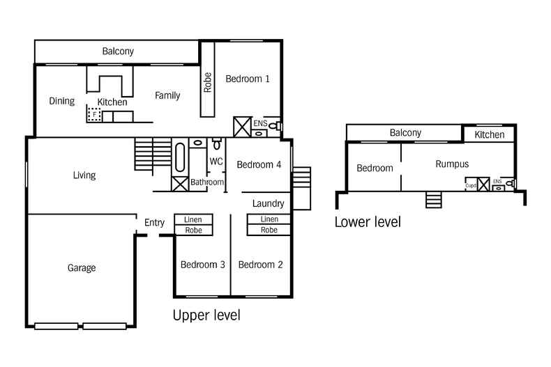
Commanding uninterrupted Brindabella views never to be built out, 36 Tatchell Street affords spacious family living in a blue ribbon location. The large 217m2 multi-level floor plan features 5 generous bedrooms, two bathrooms and multiple living spaces; but most importantly provides maximum privacy via the segregated design.
Positioned on the top level of the home, the master suite has ample built in storage with ensuite, capturing the expansive outlook in its entirety. In addition to the three spare bedrooms on the middle floor, a fifth bedroom adjoins the rumpus and second bathroom on the ground level. Fitted with a kitchenette, this private haven could be the perfect space for teenagers, extended family or possibly self-contained accommodation. Exceptionally maintained and cared for since being built, the home is ready for immediate occupation but also has incredible potential for future renovations in the years ahead. Set on 812m2 of usable land, homes like this are hard to come by.
Huge five bedroom family home with 2 bathrooms, ensuite and rumpus room.
217m2 of spacious living over 3 levels plus double garage.
Formal and casual living spaces including two outdoor entertaining spaces
Large 5th bedroom adjoining rumpus - perfect as teenager's retreat or possible self contained accommodation
Central kitchen with breakfast bar, elec cooking and ample storage
Large block with mature gardens and level area in backyard
Additional driveway to access rear yard
Exceptional valley views across to the Brindabella ranges never to be built out
Unrivalled location set on Calwell's highest valued street
Comfortable and well maintained with fantastic future renovation potential
Close to public transport, local schools and Calwell shops
Read MorePositioned on the top level of the home, the master suite has ample built in storage with ensuite, capturing the expansive outlook in its entirety. In addition to the three spare bedrooms on the middle floor, a fifth bedroom adjoins the rumpus and second bathroom on the ground level. Fitted with a kitchenette, this private haven could be the perfect space for teenagers, extended family or possibly self-contained accommodation. Exceptionally maintained and cared for since being built, the home is ready for immediate occupation but also has incredible potential for future renovations in the years ahead. Set on 812m2 of usable land, homes like this are hard to come by.
Huge five bedroom family home with 2 bathrooms, ensuite and rumpus room.
217m2 of spacious living over 3 levels plus double garage.
Formal and casual living spaces including two outdoor entertaining spaces
Large 5th bedroom adjoining rumpus - perfect as teenager's retreat or possible self contained accommodation
Central kitchen with breakfast bar, elec cooking and ample storage
Large block with mature gardens and level area in backyard
Additional driveway to access rear yard
Exceptional valley views across to the Brindabella ranges never to be built out
Unrivalled location set on Calwell's highest valued street
Comfortable and well maintained with fantastic future renovation potential
Close to public transport, local schools and Calwell shops
Inspect
Contact agent
Listing agent
Prior to enquiry or inspection of this property you may wish to review our Information Collection Notice and Privacy Policy.
Privacy & Collection NoticeCommanding uninterrupted Brindabella views never to be built out, 36 Tatchell Street affords spacious family living in a blue ribbon location. The large 217m2 multi-level floor plan features 5 generous bedrooms, two bathrooms and multiple living spaces; but most importantly provides maximum privacy via the segregated design.
Positioned on the top level of the home, the master suite has ample built in storage with ensuite, capturing the expansive outlook in its entirety. In addition to the three spare bedrooms on the middle floor, a fifth bedroom adjoins the rumpus and second bathroom on the ground level. Fitted with a kitchenette, this private haven could be the perfect space for teenagers, extended family or possibly self-contained accommodation. Exceptionally maintained and cared for since being built, the home is ready for immediate occupation but also has incredible potential for future renovations in the years ahead. Set on 812m2 of usable land, homes like this are hard to come by.
Huge five bedroom family home with 2 bathrooms, ensuite and rumpus room.
217m2 of spacious living over 3 levels plus double garage.
Formal and casual living spaces including two outdoor entertaining spaces
Large 5th bedroom adjoining rumpus - perfect as teenager's retreat or possible self contained accommodation
Central kitchen with breakfast bar, elec cooking and ample storage
Large block with mature gardens and level area in backyard
Additional driveway to access rear yard
Exceptional valley views across to the Brindabella ranges never to be built out
Unrivalled location set on Calwell's highest valued street
Comfortable and well maintained with fantastic future renovation potential
Close to public transport, local schools and Calwell shops
Read MorePositioned on the top level of the home, the master suite has ample built in storage with ensuite, capturing the expansive outlook in its entirety. In addition to the three spare bedrooms on the middle floor, a fifth bedroom adjoins the rumpus and second bathroom on the ground level. Fitted with a kitchenette, this private haven could be the perfect space for teenagers, extended family or possibly self-contained accommodation. Exceptionally maintained and cared for since being built, the home is ready for immediate occupation but also has incredible potential for future renovations in the years ahead. Set on 812m2 of usable land, homes like this are hard to come by.
Huge five bedroom family home with 2 bathrooms, ensuite and rumpus room.
217m2 of spacious living over 3 levels plus double garage.
Formal and casual living spaces including two outdoor entertaining spaces
Large 5th bedroom adjoining rumpus - perfect as teenager's retreat or possible self contained accommodation
Central kitchen with breakfast bar, elec cooking and ample storage
Large block with mature gardens and level area in backyard
Additional driveway to access rear yard
Exceptional valley views across to the Brindabella ranges never to be built out
Unrivalled location set on Calwell's highest valued street
Comfortable and well maintained with fantastic future renovation potential
Close to public transport, local schools and Calwell shops

Location
Lot 3/36 Tatchell Street
Calwell ACT 2905
Details
5
3
2
House
$675,000
Rates: | $1,710.00 annually |
Land area: | 812 sqm (approx) |
Commanding uninterrupted Brindabella views never to be built out, 36 Tatchell Street affords spacious family living in a blue ribbon location. The large 217m2 multi-level floor plan features 5 generous bedrooms, two bathrooms and multiple living spaces; but most importantly provides maximum privacy via the segregated design.
Positioned on the top level of the home, the master suite has ample built in storage with ensuite, capturing the expansive outlook in its entirety. In addition to the three spare bedrooms on the middle floor, a fifth bedroom adjoins the rumpus and second bathroom on the ground level. Fitted with a kitchenette, this private haven could be the perfect space for teenagers, extended family or possibly self-contained accommodation. Exceptionally maintained and cared for since being built, the home is ready for immediate occupation but also has incredible potential for future renovations in the years ahead. Set on 812m2 of usable land, homes like this are hard to come by.
Huge five bedroom family home with 2 bathrooms, ensuite and rumpus room.
217m2 of spacious living over 3 levels plus double garage.
Formal and casual living spaces including two outdoor entertaining spaces
Large 5th bedroom adjoining rumpus - perfect as teenager's retreat or possible self contained accommodation
Central kitchen with breakfast bar, elec cooking and ample storage
Large block with mature gardens and level area in backyard
Additional driveway to access rear yard
Exceptional valley views across to the Brindabella ranges never to be built out
Unrivalled location set on Calwell's highest valued street
Comfortable and well maintained with fantastic future renovation potential
Close to public transport, local schools and Calwell shops
Read MorePositioned on the top level of the home, the master suite has ample built in storage with ensuite, capturing the expansive outlook in its entirety. In addition to the three spare bedrooms on the middle floor, a fifth bedroom adjoins the rumpus and second bathroom on the ground level. Fitted with a kitchenette, this private haven could be the perfect space for teenagers, extended family or possibly self-contained accommodation. Exceptionally maintained and cared for since being built, the home is ready for immediate occupation but also has incredible potential for future renovations in the years ahead. Set on 812m2 of usable land, homes like this are hard to come by.
Huge five bedroom family home with 2 bathrooms, ensuite and rumpus room.
217m2 of spacious living over 3 levels plus double garage.
Formal and casual living spaces including two outdoor entertaining spaces
Large 5th bedroom adjoining rumpus - perfect as teenager's retreat or possible self contained accommodation
Central kitchen with breakfast bar, elec cooking and ample storage
Large block with mature gardens and level area in backyard
Additional driveway to access rear yard
Exceptional valley views across to the Brindabella ranges never to be built out
Unrivalled location set on Calwell's highest valued street
Comfortable and well maintained with fantastic future renovation potential
Close to public transport, local schools and Calwell shops
Inspect
Contact agent
Listing agent
Prior to enquiry or inspection of this property you may wish to review our Information Collection Notice and Privacy Policy.
Privacy & Collection Notice




















































