Architecturally Designed Family Home
Sold
Location
Lot 37/7 Harrow Street
Crace ACT 2911
Details
4
1
2
House
By negotiation
Rates: | $1,636.00 annually |
Land area: | 597.1 sqm (approx) |
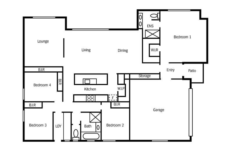
This magnificently presented four bedroom family home situated on a large block in one of Crace's quietest streets is for sale for the first time. Built by award winning builders Today's Homes for the original owner, this property is a must see. This home has a very spacious master bedroom, large enough to create a parents retreat, it has a walk-in-robe and ensuite with quality inclusions. The further 3 bedrooms are large double bedrooms and come with built in robes. The open plan living area opens onto your very own private outdoor alfresco entertaining area, providing seamless indoor outdoor living and entertaining. The large well-appointed light filled kitchen comes with quality inclusions and plenty of bench space to cater for the largest of gatherings and a large walk in pantry providing a great level of functionality to the kitchen area. Additional storage has been thought of by the architect when this property was designed. This quality family home offers a large landscaped backyard, perfect for kids and pets. Positioned in the heart of Crace in the growing Gungahlin District and is located only moments from primary schools, high schools and colleges as well as walking distance to shops and Gungahlin Town Centre.
A quick stroll to brilliant local parks and mountain trails and only a ten minute drive to Belconnen Town Centre and Civic makes the location second to none.
Features Of The Property Include:
- Four large bedrooms all with built in robes
- Quality master bedroom with walk in robe and ensuite
- Large open plan living areas with seamless indoor/outdoor living
- Plenty of quality storage
- Large well-appointed kitchen with gas cooktop
- Instant gas hot water
- Fully ducted gas heating
- Double lock up garage with automatic door and internal access
- Located in quiet street and surrounded by quality homes
Read MoreA quick stroll to brilliant local parks and mountain trails and only a ten minute drive to Belconnen Town Centre and Civic makes the location second to none.
Features Of The Property Include:
- Four large bedrooms all with built in robes
- Quality master bedroom with walk in robe and ensuite
- Large open plan living areas with seamless indoor/outdoor living
- Plenty of quality storage
- Large well-appointed kitchen with gas cooktop
- Instant gas hot water
- Fully ducted gas heating
- Double lock up garage with automatic door and internal access
- Located in quiet street and surrounded by quality homes
Inspect
Contact agent
Listing agent
This magnificently presented four bedroom family home situated on a large block in one of Crace's quietest streets is for sale for the first time. Built by award winning builders Today's Homes for the original owner, this property is a must see. This home has a very spacious master bedroom, large enough to create a parents retreat, it has a walk-in-robe and ensuite with quality inclusions. The further 3 bedrooms are large double bedrooms and come with built in robes. The open plan living area opens onto your very own private outdoor alfresco entertaining area, providing seamless indoor outdoor living and entertaining. The large well-appointed light filled kitchen comes with quality inclusions and plenty of bench space to cater for the largest of gatherings and a large walk in pantry providing a great level of functionality to the kitchen area. Additional storage has been thought of by the architect when this property was designed. This quality family home offers a large landscaped backyard, perfect for kids and pets. Positioned in the heart of Crace in the growing Gungahlin District and is located only moments from primary schools, high schools and colleges as well as walking distance to shops and Gungahlin Town Centre.
A quick stroll to brilliant local parks and mountain trails and only a ten minute drive to Belconnen Town Centre and Civic makes the location second to none.
Features Of The Property Include:
- Four large bedrooms all with built in robes
- Quality master bedroom with walk in robe and ensuite
- Large open plan living areas with seamless indoor/outdoor living
- Plenty of quality storage
- Large well-appointed kitchen with gas cooktop
- Instant gas hot water
- Fully ducted gas heating
- Double lock up garage with automatic door and internal access
- Located in quiet street and surrounded by quality homes
Read MoreA quick stroll to brilliant local parks and mountain trails and only a ten minute drive to Belconnen Town Centre and Civic makes the location second to none.
Features Of The Property Include:
- Four large bedrooms all with built in robes
- Quality master bedroom with walk in robe and ensuite
- Large open plan living areas with seamless indoor/outdoor living
- Plenty of quality storage
- Large well-appointed kitchen with gas cooktop
- Instant gas hot water
- Fully ducted gas heating
- Double lock up garage with automatic door and internal access
- Located in quiet street and surrounded by quality homes

Location
Lot 37/7 Harrow Street
Crace ACT 2911
Details
4
1
2
House
By negotiation
Rates: | $1,636.00 annually |
Land area: | 597.1 sqm (approx) |
This magnificently presented four bedroom family home situated on a large block in one of Crace's quietest streets is for sale for the first time. Built by award winning builders Today's Homes for the original owner, this property is a must see. This home has a very spacious master bedroom, large enough to create a parents retreat, it has a walk-in-robe and ensuite with quality inclusions. The further 3 bedrooms are large double bedrooms and come with built in robes. The open plan living area opens onto your very own private outdoor alfresco entertaining area, providing seamless indoor outdoor living and entertaining. The large well-appointed light filled kitchen comes with quality inclusions and plenty of bench space to cater for the largest of gatherings and a large walk in pantry providing a great level of functionality to the kitchen area. Additional storage has been thought of by the architect when this property was designed. This quality family home offers a large landscaped backyard, perfect for kids and pets. Positioned in the heart of Crace in the growing Gungahlin District and is located only moments from primary schools, high schools and colleges as well as walking distance to shops and Gungahlin Town Centre.
A quick stroll to brilliant local parks and mountain trails and only a ten minute drive to Belconnen Town Centre and Civic makes the location second to none.
Features Of The Property Include:
- Four large bedrooms all with built in robes
- Quality master bedroom with walk in robe and ensuite
- Large open plan living areas with seamless indoor/outdoor living
- Plenty of quality storage
- Large well-appointed kitchen with gas cooktop
- Instant gas hot water
- Fully ducted gas heating
- Double lock up garage with automatic door and internal access
- Located in quiet street and surrounded by quality homes
Read MoreA quick stroll to brilliant local parks and mountain trails and only a ten minute drive to Belconnen Town Centre and Civic makes the location second to none.
Features Of The Property Include:
- Four large bedrooms all with built in robes
- Quality master bedroom with walk in robe and ensuite
- Large open plan living areas with seamless indoor/outdoor living
- Plenty of quality storage
- Large well-appointed kitchen with gas cooktop
- Instant gas hot water
- Fully ducted gas heating
- Double lock up garage with automatic door and internal access
- Located in quiet street and surrounded by quality homes
Inspect
Contact agent
































