Premium offering in ideal location
Sold
Location
Lot 5/9 Nullagine Street
Fisher ACT 2611
Details
6
3
5
House
Sold
Rates: | $2,278.00 annually |
Land area: | 857 sqm (approx) |
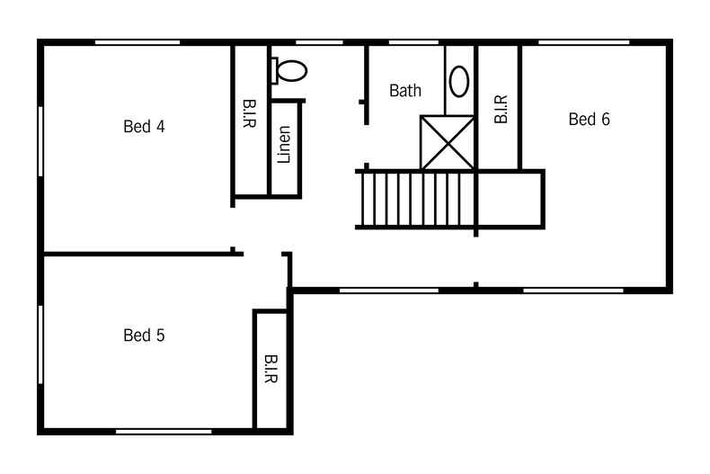
Nestled on a private leafy 857 m2(approx.) block and ideally located in a quiet loop street, the home has been thoughtfully maintained by the owners and offers fabulous indoor and outdoor entertaining areas. The kitchen is the central hub of the home and features quality appliances and panoramic windows bringing in natural light and providing character to the home. The large family room is adjacent to the large covered deck and private backyard with easy care established gardens. The formal living area is set to the front of the home and provides a lovely sunny aspect. The large main bedroom is segregated to the rear of the home contains an ensuite and built-in-robe. All secondary bedrooms contain built-in robes and are of a good size with three upstairs and three downstairs. Other features include a double garage plus carport for three vehicles and an abundance of storage. This home is full of character and charm and is ready to just move in and enjoy.
- Six spacious bedrooms all with built in robes and ensuite to the master
- Study
- Combined total of three bathrooms
- Centrally located kitchen with updated appliances and sunny panoramic windows
- Amazing upstairs views with sunny aspect
- Two large separate living areas
- Indoor and outdoor living
- Large covered entertaining deck overlooking low maintenance, secure and established gardens
- Great lifestyle offering close to many quality schools, shops, reserve and just a short drive to Woden shopping centre
- Surrounded by other quality homes
- Abundance of storage
- Double lock up garage plus carport for three vehicles
- 5kw solar system
- Instant gas hot water system
Read More- Six spacious bedrooms all with built in robes and ensuite to the master
- Study
- Combined total of three bathrooms
- Centrally located kitchen with updated appliances and sunny panoramic windows
- Amazing upstairs views with sunny aspect
- Two large separate living areas
- Indoor and outdoor living
- Large covered entertaining deck overlooking low maintenance, secure and established gardens
- Great lifestyle offering close to many quality schools, shops, reserve and just a short drive to Woden shopping centre
- Surrounded by other quality homes
- Abundance of storage
- Double lock up garage plus carport for three vehicles
- 5kw solar system
- Instant gas hot water system
Inspect
Contact agent
Listing agent
Prior to enquiry or inspection of this property you may wish to review our Information Collection Notice and Privacy Policy.
Privacy & Collection NoticeNestled on a private leafy 857 m2(approx.) block and ideally located in a quiet loop street, the home has been thoughtfully maintained by the owners and offers fabulous indoor and outdoor entertaining areas. The kitchen is the central hub of the home and features quality appliances and panoramic windows bringing in natural light and providing character to the home. The large family room is adjacent to the large covered deck and private backyard with easy care established gardens. The formal living area is set to the front of the home and provides a lovely sunny aspect. The large main bedroom is segregated to the rear of the home contains an ensuite and built-in-robe. All secondary bedrooms contain built-in robes and are of a good size with three upstairs and three downstairs. Other features include a double garage plus carport for three vehicles and an abundance of storage. This home is full of character and charm and is ready to just move in and enjoy.
- Six spacious bedrooms all with built in robes and ensuite to the master
- Study
- Combined total of three bathrooms
- Centrally located kitchen with updated appliances and sunny panoramic windows
- Amazing upstairs views with sunny aspect
- Two large separate living areas
- Indoor and outdoor living
- Large covered entertaining deck overlooking low maintenance, secure and established gardens
- Great lifestyle offering close to many quality schools, shops, reserve and just a short drive to Woden shopping centre
- Surrounded by other quality homes
- Abundance of storage
- Double lock up garage plus carport for three vehicles
- 5kw solar system
- Instant gas hot water system
Read More- Six spacious bedrooms all with built in robes and ensuite to the master
- Study
- Combined total of three bathrooms
- Centrally located kitchen with updated appliances and sunny panoramic windows
- Amazing upstairs views with sunny aspect
- Two large separate living areas
- Indoor and outdoor living
- Large covered entertaining deck overlooking low maintenance, secure and established gardens
- Great lifestyle offering close to many quality schools, shops, reserve and just a short drive to Woden shopping centre
- Surrounded by other quality homes
- Abundance of storage
- Double lock up garage plus carport for three vehicles
- 5kw solar system
- Instant gas hot water system

Location
Lot 5/9 Nullagine Street
Fisher ACT 2611
Details
6
3
5
House
Sold
Rates: | $2,278.00 annually |
Land area: | 857 sqm (approx) |
Nestled on a private leafy 857 m2(approx.) block and ideally located in a quiet loop street, the home has been thoughtfully maintained by the owners and offers fabulous indoor and outdoor entertaining areas. The kitchen is the central hub of the home and features quality appliances and panoramic windows bringing in natural light and providing character to the home. The large family room is adjacent to the large covered deck and private backyard with easy care established gardens. The formal living area is set to the front of the home and provides a lovely sunny aspect. The large main bedroom is segregated to the rear of the home contains an ensuite and built-in-robe. All secondary bedrooms contain built-in robes and are of a good size with three upstairs and three downstairs. Other features include a double garage plus carport for three vehicles and an abundance of storage. This home is full of character and charm and is ready to just move in and enjoy.
- Six spacious bedrooms all with built in robes and ensuite to the master
- Study
- Combined total of three bathrooms
- Centrally located kitchen with updated appliances and sunny panoramic windows
- Amazing upstairs views with sunny aspect
- Two large separate living areas
- Indoor and outdoor living
- Large covered entertaining deck overlooking low maintenance, secure and established gardens
- Great lifestyle offering close to many quality schools, shops, reserve and just a short drive to Woden shopping centre
- Surrounded by other quality homes
- Abundance of storage
- Double lock up garage plus carport for three vehicles
- 5kw solar system
- Instant gas hot water system
Read More- Six spacious bedrooms all with built in robes and ensuite to the master
- Study
- Combined total of three bathrooms
- Centrally located kitchen with updated appliances and sunny panoramic windows
- Amazing upstairs views with sunny aspect
- Two large separate living areas
- Indoor and outdoor living
- Large covered entertaining deck overlooking low maintenance, secure and established gardens
- Great lifestyle offering close to many quality schools, shops, reserve and just a short drive to Woden shopping centre
- Surrounded by other quality homes
- Abundance of storage
- Double lock up garage plus carport for three vehicles
- 5kw solar system
- Instant gas hot water system
Inspect
Contact agent
Listing agent
Prior to enquiry or inspection of this property you may wish to review our Information Collection Notice and Privacy Policy.
Privacy & Collection Notice




















































