Beautiful family home with gorgeous gardens
Sold
Location
Lot 8/47 Harbison Crescent
Wanniassa ACT 2903
Details
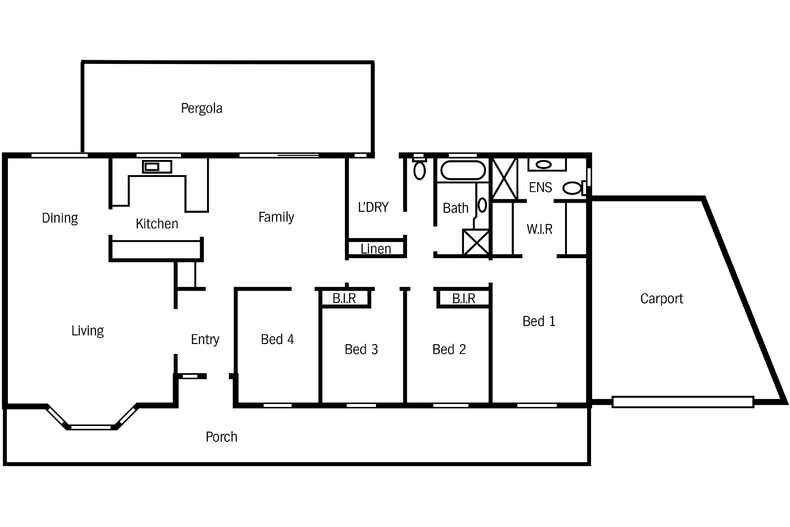
4
2
2
EER: 2.0
House
Auction Saturday, 29 Oct 11:00 AM On site
Rates: | $2,481.00 annually |
Land area: | 842 sqm (approx) |
Held by the current original owners for 37 years, now is the time to secure this stunning family home. Boasting four large bedrooms, including main with updated ensuite and extensive wardrobe space it sits proudly elevated with mountain views in a quiet position close to everything. The generous living areas are ideal for family living/entertaining and the outdoor entertaining area extends living space. Quality inclusions such as Fisher & Paykel dishwasher, oven and gas cooktop feature in the solid timber kitchen. Both bathrooms, separate toilet and laundry have also been tastefully updated with a fresh modern look. The home has been recently painted in neutral tones both internally and externally plus new carpets and feature flooring has been laid throughout. Ducted reverse cycle heating and cooling has been installed to maintain comfort levels through Canberra's extreme weather conditions and the home is also equipped with three phase power. Car accommodation is provided by a double carport with remote door and easy yard access. The surrounding landscaping is an intrinsic part of the overall design of the home as it introduces both formality and informality into different parts of the garden. This delightful oasis is a profusion of colourful flowers, lush green lawns and provides a visually appealing spot for relaxing. The front garden extends a warm welcome and a pleasant view from the full length verandah under the roofline of the home. If the best of everything is your way of life, you've just found your new home.
* Four large bedrooms, three with built-in-robes
* Huge covered outdoor entertaining area
* Serene gardens
* Private backyard with Colorbond fencing
* Rinnai HWS
* Double enclosed carport with remote door and easy yard access
* Ducted reverse cycle heating and cooling
* Brand new carpets and flooring throughout
* Fisher & Paykel dishwasher, oven and gas cooktop in the updated solid timber kitchen
* Bay window to the living area with mountain views
* Larger than average living areas
* Recently painted throughout both internally and externally
* Alucom security doors to all external doors
* Full length verandah under roofline
* Elevated and quiet position, close to everything
* Three phase power
* Bathrooms, separate toilet, laundry and kitchen all updated
* Surrounded by quality homes
* Sought after street
Read More* Four large bedrooms, three with built-in-robes
* Huge covered outdoor entertaining area
* Serene gardens
* Private backyard with Colorbond fencing
* Rinnai HWS
* Double enclosed carport with remote door and easy yard access
* Ducted reverse cycle heating and cooling
* Brand new carpets and flooring throughout
* Fisher & Paykel dishwasher, oven and gas cooktop in the updated solid timber kitchen
* Bay window to the living area with mountain views
* Larger than average living areas
* Recently painted throughout both internally and externally
* Alucom security doors to all external doors
* Full length verandah under roofline
* Elevated and quiet position, close to everything
* Three phase power
* Bathrooms, separate toilet, laundry and kitchen all updated
* Surrounded by quality homes
* Sought after street
Inspect
Contact agent
Listing agent
Prior to enquiry or inspection of this property you may wish to review our Information Collection Notice and Privacy Policy.
Privacy & Collection NoticeHeld by the current original owners for 37 years, now is the time to secure this stunning family home. Boasting four large bedrooms, including main with updated ensuite and extensive wardrobe space it sits proudly elevated with mountain views in a quiet position close to everything. The generous living areas are ideal for family living/entertaining and the outdoor entertaining area extends living space. Quality inclusions such as Fisher & Paykel dishwasher, oven and gas cooktop feature in the solid timber kitchen. Both bathrooms, separate toilet and laundry have also been tastefully updated with a fresh modern look. The home has been recently painted in neutral tones both internally and externally plus new carpets and feature flooring has been laid throughout. Ducted reverse cycle heating and cooling has been installed to maintain comfort levels through Canberra's extreme weather conditions and the home is also equipped with three phase power. Car accommodation is provided by a double carport with remote door and easy yard access. The surrounding landscaping is an intrinsic part of the overall design of the home as it introduces both formality and informality into different parts of the garden. This delightful oasis is a profusion of colourful flowers, lush green lawns and provides a visually appealing spot for relaxing. The front garden extends a warm welcome and a pleasant view from the full length verandah under the roofline of the home. If the best of everything is your way of life, you've just found your new home.
* Four large bedrooms, three with built-in-robes
* Huge covered outdoor entertaining area
* Serene gardens
* Private backyard with Colorbond fencing
* Rinnai HWS
* Double enclosed carport with remote door and easy yard access
* Ducted reverse cycle heating and cooling
* Brand new carpets and flooring throughout
* Fisher & Paykel dishwasher, oven and gas cooktop in the updated solid timber kitchen
* Bay window to the living area with mountain views
* Larger than average living areas
* Recently painted throughout both internally and externally
* Alucom security doors to all external doors
* Full length verandah under roofline
* Elevated and quiet position, close to everything
* Three phase power
* Bathrooms, separate toilet, laundry and kitchen all updated
* Surrounded by quality homes
* Sought after street
Read More* Four large bedrooms, three with built-in-robes
* Huge covered outdoor entertaining area
* Serene gardens
* Private backyard with Colorbond fencing
* Rinnai HWS
* Double enclosed carport with remote door and easy yard access
* Ducted reverse cycle heating and cooling
* Brand new carpets and flooring throughout
* Fisher & Paykel dishwasher, oven and gas cooktop in the updated solid timber kitchen
* Bay window to the living area with mountain views
* Larger than average living areas
* Recently painted throughout both internally and externally
* Alucom security doors to all external doors
* Full length verandah under roofline
* Elevated and quiet position, close to everything
* Three phase power
* Bathrooms, separate toilet, laundry and kitchen all updated
* Surrounded by quality homes
* Sought after street

Location
Lot 8/47 Harbison Crescent
Wanniassa ACT 2903
Details
4
2
2
EER: 2.0
House
Auction Saturday, 29 Oct 11:00 AM On site
Rates: | $2,481.00 annually |
Land area: | 842 sqm (approx) |
Held by the current original owners for 37 years, now is the time to secure this stunning family home. Boasting four large bedrooms, including main with updated ensuite and extensive wardrobe space it sits proudly elevated with mountain views in a quiet position close to everything. The generous living areas are ideal for family living/entertaining and the outdoor entertaining area extends living space. Quality inclusions such as Fisher & Paykel dishwasher, oven and gas cooktop feature in the solid timber kitchen. Both bathrooms, separate toilet and laundry have also been tastefully updated with a fresh modern look. The home has been recently painted in neutral tones both internally and externally plus new carpets and feature flooring has been laid throughout. Ducted reverse cycle heating and cooling has been installed to maintain comfort levels through Canberra's extreme weather conditions and the home is also equipped with three phase power. Car accommodation is provided by a double carport with remote door and easy yard access. The surrounding landscaping is an intrinsic part of the overall design of the home as it introduces both formality and informality into different parts of the garden. This delightful oasis is a profusion of colourful flowers, lush green lawns and provides a visually appealing spot for relaxing. The front garden extends a warm welcome and a pleasant view from the full length verandah under the roofline of the home. If the best of everything is your way of life, you've just found your new home.
* Four large bedrooms, three with built-in-robes
* Huge covered outdoor entertaining area
* Serene gardens
* Private backyard with Colorbond fencing
* Rinnai HWS
* Double enclosed carport with remote door and easy yard access
* Ducted reverse cycle heating and cooling
* Brand new carpets and flooring throughout
* Fisher & Paykel dishwasher, oven and gas cooktop in the updated solid timber kitchen
* Bay window to the living area with mountain views
* Larger than average living areas
* Recently painted throughout both internally and externally
* Alucom security doors to all external doors
* Full length verandah under roofline
* Elevated and quiet position, close to everything
* Three phase power
* Bathrooms, separate toilet, laundry and kitchen all updated
* Surrounded by quality homes
* Sought after street
Read More* Four large bedrooms, three with built-in-robes
* Huge covered outdoor entertaining area
* Serene gardens
* Private backyard with Colorbond fencing
* Rinnai HWS
* Double enclosed carport with remote door and easy yard access
* Ducted reverse cycle heating and cooling
* Brand new carpets and flooring throughout
* Fisher & Paykel dishwasher, oven and gas cooktop in the updated solid timber kitchen
* Bay window to the living area with mountain views
* Larger than average living areas
* Recently painted throughout both internally and externally
* Alucom security doors to all external doors
* Full length verandah under roofline
* Elevated and quiet position, close to everything
* Three phase power
* Bathrooms, separate toilet, laundry and kitchen all updated
* Surrounded by quality homes
* Sought after street
Inspect
Contact agent
Listing agent
Prior to enquiry or inspection of this property you may wish to review our Information Collection Notice and Privacy Policy.
Privacy & Collection Notice










































