Solar passive family home with stunning views.
Sold
Location
137 O'Connor Circuit
Calwell ACT 2905
Details
4
2
2
EER: 3.5
House
Auction Saturday, 13 Feb 12:00 PM On Site
Rates: | $2,917.00 annually |
Land area: | 739 sqm (approx) |
Building size: | 162 sqm (approx) |
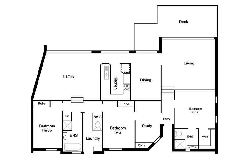
Stepping onto this property nestled away at the end of a quiet cul-de-sac in arguably Calwell's best location, you immediately know you want to see more. This loved family home in the heights of Calwell is now ready for a new family to move in and enjoy after decades of memories with the current owners. The home comes complete with four bedrooms all with built-ins, updated bathrooms, a large landholding and some of the best views in the Tuggeranong Valley. Conveniently located near amenities, including the Calwell Shopping Centre, quality schools and transport links.
Features:
- Split level design
- Open plan living spaces
- Four generous bedrooms with built-in wardrobes, master with en-suite
- Large covered deck
- Updated kitchen with stone bench tops and quality appliances
- Solid brick construction
- Flat grass areas
- Split system
- Double garage with electric doors
- Views over Tuggeranong Valley
- Located at the top of a quiet cul-de-sac
- Open fire place
- Fully landscaped throughout
- Plenty of off street parking
- Family size laundry
Statistics:
EER: 3.5
House Size: 162m2
Garage Size: 43m2
Construction: 1992
Land Size: 739m2
Land Value: $389,000 (2021)
Rates: $2,917 per annum
Land Tax: $4,135 per annum
Read MoreFeatures:
- Split level design
- Open plan living spaces
- Four generous bedrooms with built-in wardrobes, master with en-suite
- Large covered deck
- Updated kitchen with stone bench tops and quality appliances
- Solid brick construction
- Flat grass areas
- Split system
- Double garage with electric doors
- Views over Tuggeranong Valley
- Located at the top of a quiet cul-de-sac
- Open fire place
- Fully landscaped throughout
- Plenty of off street parking
- Family size laundry
Statistics:
EER: 3.5
House Size: 162m2
Garage Size: 43m2
Construction: 1992
Land Size: 739m2
Land Value: $389,000 (2021)
Rates: $2,917 per annum
Land Tax: $4,135 per annum
Inspect
Contact agent
Listing agent
Prior to enquiry or inspection of this property you may wish to review our Information Collection Notice and Privacy Policy.
Privacy & Collection NoticeStepping onto this property nestled away at the end of a quiet cul-de-sac in arguably Calwell's best location, you immediately know you want to see more. This loved family home in the heights of Calwell is now ready for a new family to move in and enjoy after decades of memories with the current owners. The home comes complete with four bedrooms all with built-ins, updated bathrooms, a large landholding and some of the best views in the Tuggeranong Valley. Conveniently located near amenities, including the Calwell Shopping Centre, quality schools and transport links.
Features:
- Split level design
- Open plan living spaces
- Four generous bedrooms with built-in wardrobes, master with en-suite
- Large covered deck
- Updated kitchen with stone bench tops and quality appliances
- Solid brick construction
- Flat grass areas
- Split system
- Double garage with electric doors
- Views over Tuggeranong Valley
- Located at the top of a quiet cul-de-sac
- Open fire place
- Fully landscaped throughout
- Plenty of off street parking
- Family size laundry
Statistics:
EER: 3.5
House Size: 162m2
Garage Size: 43m2
Construction: 1992
Land Size: 739m2
Land Value: $389,000 (2021)
Rates: $2,917 per annum
Land Tax: $4,135 per annum
Read MoreFeatures:
- Split level design
- Open plan living spaces
- Four generous bedrooms with built-in wardrobes, master with en-suite
- Large covered deck
- Updated kitchen with stone bench tops and quality appliances
- Solid brick construction
- Flat grass areas
- Split system
- Double garage with electric doors
- Views over Tuggeranong Valley
- Located at the top of a quiet cul-de-sac
- Open fire place
- Fully landscaped throughout
- Plenty of off street parking
- Family size laundry
Statistics:
EER: 3.5
House Size: 162m2
Garage Size: 43m2
Construction: 1992
Land Size: 739m2
Land Value: $389,000 (2021)
Rates: $2,917 per annum
Land Tax: $4,135 per annum

Location
137 O'Connor Circuit
Calwell ACT 2905
Details
4
2
2
EER: 3.5
House
Auction Saturday, 13 Feb 12:00 PM On Site
Rates: | $2,917.00 annually |
Land area: | 739 sqm (approx) |
Building size: | 162 sqm (approx) |
Stepping onto this property nestled away at the end of a quiet cul-de-sac in arguably Calwell's best location, you immediately know you want to see more. This loved family home in the heights of Calwell is now ready for a new family to move in and enjoy after decades of memories with the current owners. The home comes complete with four bedrooms all with built-ins, updated bathrooms, a large landholding and some of the best views in the Tuggeranong Valley. Conveniently located near amenities, including the Calwell Shopping Centre, quality schools and transport links.
Features:
- Split level design
- Open plan living spaces
- Four generous bedrooms with built-in wardrobes, master with en-suite
- Large covered deck
- Updated kitchen with stone bench tops and quality appliances
- Solid brick construction
- Flat grass areas
- Split system
- Double garage with electric doors
- Views over Tuggeranong Valley
- Located at the top of a quiet cul-de-sac
- Open fire place
- Fully landscaped throughout
- Plenty of off street parking
- Family size laundry
Statistics:
EER: 3.5
House Size: 162m2
Garage Size: 43m2
Construction: 1992
Land Size: 739m2
Land Value: $389,000 (2021)
Rates: $2,917 per annum
Land Tax: $4,135 per annum
Read MoreFeatures:
- Split level design
- Open plan living spaces
- Four generous bedrooms with built-in wardrobes, master with en-suite
- Large covered deck
- Updated kitchen with stone bench tops and quality appliances
- Solid brick construction
- Flat grass areas
- Split system
- Double garage with electric doors
- Views over Tuggeranong Valley
- Located at the top of a quiet cul-de-sac
- Open fire place
- Fully landscaped throughout
- Plenty of off street parking
- Family size laundry
Statistics:
EER: 3.5
House Size: 162m2
Garage Size: 43m2
Construction: 1992
Land Size: 739m2
Land Value: $389,000 (2021)
Rates: $2,917 per annum
Land Tax: $4,135 per annum
Inspect
Contact agent
Listing agent
Prior to enquiry or inspection of this property you may wish to review our Information Collection Notice and Privacy Policy.
Privacy & Collection Notice



















































