STUNNING BEAUTIFUL OASIS. TRULY ONE OF A KIND!
Sold
Location
4 Cardew Crescent
Holder ACT 2611
Details
3
1
2
EER: 2.5
House
Auction Saturday, 2 Nov 10:00 AM On Site
WOW! The unique elements of this home create so much interest that you need to inspect to fully appreciate the design, setting and functionality of the home.
Cleverly designed, and a collaboration between Anna Pender of Adhami Pender Architecture and Feng Shui consultant Tanya Melnychenko, the home breathes their virtues of beauty, spirit and environmentally responsible design.
The street appeal creates such intrigue that you are immediately drawn to the home by the large bespoke entry door. Once inside the elements of the home enrich all your senses.
The use of bespoke recycled products, light filled spaces, large timber picture windows, the design and link between spaces, double glazing and northerly aspect, all harmonise to create a lovely ambience in the home.
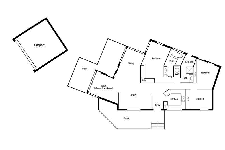
The open plan layout of the home includes the lounge, dining and light filled family room plus mezzanine with endless possibilities such as a study, yoga/meditation escape or play space for children.
The home cleverly integrates the use of indoor and outdoor spaces with decked areas providing entertaining or relaxation options. The sustainable landscaping adds yet another layer of complexity to the home with the use of rocks, paving, dry creek beds and a straw bale courtyard wall, all complementing the generous use of timber and the easy-care mature plantings. There is also a dedicated space for the green house, vegies and chooks/ducks.
Designed to embrace all seasons, the home is sunny and warm in winter and shaded by large deciduous trees in summer. Every window affords beautiful forest like views and a unique retreat like atmosphere.
Additional comfort is provided by ducted gas heating, evaporative cooling, a slow combustion fireplace and electric in slab heating in the main bedroom.
This beautiful home is situated on a 999 square metre block in a lovely street, desirable suburb and close to excellent schooling options, the Cooleman Court shopping precinct and major transport routes.
You must inspect this special home!
STANDOUTS:
• Architectural brilliance
• Feng Shui design elements
• Beautiful contemporary family home
• Desirable location
• Surrounded by established homes
• Expansive northerly aspect
• Open plan but with dedicated spaces
• Integration of indoor and outdoor living spaces
• Decked areas for entertaining or relaxation
• Clever use of large timber windows throughout
• Modern kitchen features generous benches and cupboard storage plus a corner pantry
• Gas cooktop, electric oven and dishwasher
• Lounge room with slow combustion wood fire
• Dining room on beautiful timber flooring
• Family room flooded with natural light
• Mezzanine level adds interest and clever use of space
• Main bedroom with electric in slab heating and built in robes
• Two other generous bedrooms with built in robes
• Luxurious double bath with picture window overlooking garden
• Shower and vanity
• Separate toilet
• Laundry with external access
• Double garage with storage
• Large private backyard with established gardens
• Clever use of native plants and design features including dry creek beds
• Established deciduous feature trees providing summer cooling and beautiful vistas
• Ducted gas heating
• Double glazing
• Evaporative cooling to living areas
• Garden sheds
• Close to popular primary schools - St Judes, Duffy & Chapman
• Also Orana School (in Weston) & Montessori School (in Holder)
• Less than 5-minute drive to the Cooleman Court shopping centre
STATISTICS:
EER: 2.5
Home size: 164m2
Garage size: 36m2
Construction: 1972 Renos: 2002
Land size: 999m2
Land value: $431,000
Rates: $741 per quarter
Land Tax: $1,091 per quarter (only applicable if rented)
* Please note, all figures are approximate
Read MoreCleverly designed, and a collaboration between Anna Pender of Adhami Pender Architecture and Feng Shui consultant Tanya Melnychenko, the home breathes their virtues of beauty, spirit and environmentally responsible design.
The street appeal creates such intrigue that you are immediately drawn to the home by the large bespoke entry door. Once inside the elements of the home enrich all your senses.
The use of bespoke recycled products, light filled spaces, large timber picture windows, the design and link between spaces, double glazing and northerly aspect, all harmonise to create a lovely ambience in the home.
The open plan layout of the home includes the lounge, dining and light filled family room plus mezzanine with endless possibilities such as a study, yoga/meditation escape or play space for children.
The home cleverly integrates the use of indoor and outdoor spaces with decked areas providing entertaining or relaxation options. The sustainable landscaping adds yet another layer of complexity to the home with the use of rocks, paving, dry creek beds and a straw bale courtyard wall, all complementing the generous use of timber and the easy-care mature plantings. There is also a dedicated space for the green house, vegies and chooks/ducks.
Designed to embrace all seasons, the home is sunny and warm in winter and shaded by large deciduous trees in summer. Every window affords beautiful forest like views and a unique retreat like atmosphere.
Additional comfort is provided by ducted gas heating, evaporative cooling, a slow combustion fireplace and electric in slab heating in the main bedroom.
This beautiful home is situated on a 999 square metre block in a lovely street, desirable suburb and close to excellent schooling options, the Cooleman Court shopping precinct and major transport routes.
You must inspect this special home!
STANDOUTS:
• Architectural brilliance
• Feng Shui design elements
• Beautiful contemporary family home
• Desirable location
• Surrounded by established homes
• Expansive northerly aspect
• Open plan but with dedicated spaces
• Integration of indoor and outdoor living spaces
• Decked areas for entertaining or relaxation
• Clever use of large timber windows throughout
• Modern kitchen features generous benches and cupboard storage plus a corner pantry
• Gas cooktop, electric oven and dishwasher
• Lounge room with slow combustion wood fire
• Dining room on beautiful timber flooring
• Family room flooded with natural light
• Mezzanine level adds interest and clever use of space
• Main bedroom with electric in slab heating and built in robes
• Two other generous bedrooms with built in robes
• Luxurious double bath with picture window overlooking garden
• Shower and vanity
• Separate toilet
• Laundry with external access
• Double garage with storage
• Large private backyard with established gardens
• Clever use of native plants and design features including dry creek beds
• Established deciduous feature trees providing summer cooling and beautiful vistas
• Ducted gas heating
• Double glazing
• Evaporative cooling to living areas
• Garden sheds
• Close to popular primary schools - St Judes, Duffy & Chapman
• Also Orana School (in Weston) & Montessori School (in Holder)
• Less than 5-minute drive to the Cooleman Court shopping centre
STATISTICS:
EER: 2.5
Home size: 164m2
Garage size: 36m2
Construction: 1972 Renos: 2002
Land size: 999m2
Land value: $431,000
Rates: $741 per quarter
Land Tax: $1,091 per quarter (only applicable if rented)
* Please note, all figures are approximate
Inspect
Contact agent
Listing agent
WOW! The unique elements of this home create so much interest that you need to inspect to fully appreciate the design, setting and functionality of the home.
Cleverly designed, and a collaboration between Anna Pender of Adhami Pender Architecture and Feng Shui consultant Tanya Melnychenko, the home breathes their virtues of beauty, spirit and environmentally responsible design.
The street appeal creates such intrigue that you are immediately drawn to the home by the large bespoke entry door. Once inside the elements of the home enrich all your senses.
The use of bespoke recycled products, light filled spaces, large timber picture windows, the design and link between spaces, double glazing and northerly aspect, all harmonise to create a lovely ambience in the home.
The open plan layout of the home includes the lounge, dining and light filled family room plus mezzanine with endless possibilities such as a study, yoga/meditation escape or play space for children.
The home cleverly integrates the use of indoor and outdoor spaces with decked areas providing entertaining or relaxation options. The sustainable landscaping adds yet another layer of complexity to the home with the use of rocks, paving, dry creek beds and a straw bale courtyard wall, all complementing the generous use of timber and the easy-care mature plantings. There is also a dedicated space for the green house, vegies and chooks/ducks.
Designed to embrace all seasons, the home is sunny and warm in winter and shaded by large deciduous trees in summer. Every window affords beautiful forest like views and a unique retreat like atmosphere.
Additional comfort is provided by ducted gas heating, evaporative cooling, a slow combustion fireplace and electric in slab heating in the main bedroom.
This beautiful home is situated on a 999 square metre block in a lovely street, desirable suburb and close to excellent schooling options, the Cooleman Court shopping precinct and major transport routes.
You must inspect this special home!
STANDOUTS:
• Architectural brilliance
• Feng Shui design elements
• Beautiful contemporary family home
• Desirable location
• Surrounded by established homes
• Expansive northerly aspect
• Open plan but with dedicated spaces
• Integration of indoor and outdoor living spaces
• Decked areas for entertaining or relaxation
• Clever use of large timber windows throughout
• Modern kitchen features generous benches and cupboard storage plus a corner pantry
• Gas cooktop, electric oven and dishwasher
• Lounge room with slow combustion wood fire
• Dining room on beautiful timber flooring
• Family room flooded with natural light
• Mezzanine level adds interest and clever use of space
• Main bedroom with electric in slab heating and built in robes
• Two other generous bedrooms with built in robes
• Luxurious double bath with picture window overlooking garden
• Shower and vanity
• Separate toilet
• Laundry with external access
• Double garage with storage
• Large private backyard with established gardens
• Clever use of native plants and design features including dry creek beds
• Established deciduous feature trees providing summer cooling and beautiful vistas
• Ducted gas heating
• Double glazing
• Evaporative cooling to living areas
• Garden sheds
• Close to popular primary schools - St Judes, Duffy & Chapman
• Also Orana School (in Weston) & Montessori School (in Holder)
• Less than 5-minute drive to the Cooleman Court shopping centre
STATISTICS:
EER: 2.5
Home size: 164m2
Garage size: 36m2
Construction: 1972 Renos: 2002
Land size: 999m2
Land value: $431,000
Rates: $741 per quarter
Land Tax: $1,091 per quarter (only applicable if rented)
* Please note, all figures are approximate
Read MoreCleverly designed, and a collaboration between Anna Pender of Adhami Pender Architecture and Feng Shui consultant Tanya Melnychenko, the home breathes their virtues of beauty, spirit and environmentally responsible design.
The street appeal creates such intrigue that you are immediately drawn to the home by the large bespoke entry door. Once inside the elements of the home enrich all your senses.
The use of bespoke recycled products, light filled spaces, large timber picture windows, the design and link between spaces, double glazing and northerly aspect, all harmonise to create a lovely ambience in the home.
The open plan layout of the home includes the lounge, dining and light filled family room plus mezzanine with endless possibilities such as a study, yoga/meditation escape or play space for children.
The home cleverly integrates the use of indoor and outdoor spaces with decked areas providing entertaining or relaxation options. The sustainable landscaping adds yet another layer of complexity to the home with the use of rocks, paving, dry creek beds and a straw bale courtyard wall, all complementing the generous use of timber and the easy-care mature plantings. There is also a dedicated space for the green house, vegies and chooks/ducks.
Designed to embrace all seasons, the home is sunny and warm in winter and shaded by large deciduous trees in summer. Every window affords beautiful forest like views and a unique retreat like atmosphere.
Additional comfort is provided by ducted gas heating, evaporative cooling, a slow combustion fireplace and electric in slab heating in the main bedroom.
This beautiful home is situated on a 999 square metre block in a lovely street, desirable suburb and close to excellent schooling options, the Cooleman Court shopping precinct and major transport routes.
You must inspect this special home!
STANDOUTS:
• Architectural brilliance
• Feng Shui design elements
• Beautiful contemporary family home
• Desirable location
• Surrounded by established homes
• Expansive northerly aspect
• Open plan but with dedicated spaces
• Integration of indoor and outdoor living spaces
• Decked areas for entertaining or relaxation
• Clever use of large timber windows throughout
• Modern kitchen features generous benches and cupboard storage plus a corner pantry
• Gas cooktop, electric oven and dishwasher
• Lounge room with slow combustion wood fire
• Dining room on beautiful timber flooring
• Family room flooded with natural light
• Mezzanine level adds interest and clever use of space
• Main bedroom with electric in slab heating and built in robes
• Two other generous bedrooms with built in robes
• Luxurious double bath with picture window overlooking garden
• Shower and vanity
• Separate toilet
• Laundry with external access
• Double garage with storage
• Large private backyard with established gardens
• Clever use of native plants and design features including dry creek beds
• Established deciduous feature trees providing summer cooling and beautiful vistas
• Ducted gas heating
• Double glazing
• Evaporative cooling to living areas
• Garden sheds
• Close to popular primary schools - St Judes, Duffy & Chapman
• Also Orana School (in Weston) & Montessori School (in Holder)
• Less than 5-minute drive to the Cooleman Court shopping centre
STATISTICS:
EER: 2.5
Home size: 164m2
Garage size: 36m2
Construction: 1972 Renos: 2002
Land size: 999m2
Land value: $431,000
Rates: $741 per quarter
Land Tax: $1,091 per quarter (only applicable if rented)
* Please note, all figures are approximate

Location
4 Cardew Crescent
Holder ACT 2611
Details
3
1
2
EER: 2.5
House
Auction Saturday, 2 Nov 10:00 AM On Site
WOW! The unique elements of this home create so much interest that you need to inspect to fully appreciate the design, setting and functionality of the home.
Cleverly designed, and a collaboration between Anna Pender of Adhami Pender Architecture and Feng Shui consultant Tanya Melnychenko, the home breathes their virtues of beauty, spirit and environmentally responsible design.
The street appeal creates such intrigue that you are immediately drawn to the home by the large bespoke entry door. Once inside the elements of the home enrich all your senses.
The use of bespoke recycled products, light filled spaces, large timber picture windows, the design and link between spaces, double glazing and northerly aspect, all harmonise to create a lovely ambience in the home.
The open plan layout of the home includes the lounge, dining and light filled family room plus mezzanine with endless possibilities such as a study, yoga/meditation escape or play space for children.
The home cleverly integrates the use of indoor and outdoor spaces with decked areas providing entertaining or relaxation options. The sustainable landscaping adds yet another layer of complexity to the home with the use of rocks, paving, dry creek beds and a straw bale courtyard wall, all complementing the generous use of timber and the easy-care mature plantings. There is also a dedicated space for the green house, vegies and chooks/ducks.
Designed to embrace all seasons, the home is sunny and warm in winter and shaded by large deciduous trees in summer. Every window affords beautiful forest like views and a unique retreat like atmosphere.
Additional comfort is provided by ducted gas heating, evaporative cooling, a slow combustion fireplace and electric in slab heating in the main bedroom.
This beautiful home is situated on a 999 square metre block in a lovely street, desirable suburb and close to excellent schooling options, the Cooleman Court shopping precinct and major transport routes.
You must inspect this special home!
STANDOUTS:
• Architectural brilliance
• Feng Shui design elements
• Beautiful contemporary family home
• Desirable location
• Surrounded by established homes
• Expansive northerly aspect
• Open plan but with dedicated spaces
• Integration of indoor and outdoor living spaces
• Decked areas for entertaining or relaxation
• Clever use of large timber windows throughout
• Modern kitchen features generous benches and cupboard storage plus a corner pantry
• Gas cooktop, electric oven and dishwasher
• Lounge room with slow combustion wood fire
• Dining room on beautiful timber flooring
• Family room flooded with natural light
• Mezzanine level adds interest and clever use of space
• Main bedroom with electric in slab heating and built in robes
• Two other generous bedrooms with built in robes
• Luxurious double bath with picture window overlooking garden
• Shower and vanity
• Separate toilet
• Laundry with external access
• Double garage with storage
• Large private backyard with established gardens
• Clever use of native plants and design features including dry creek beds
• Established deciduous feature trees providing summer cooling and beautiful vistas
• Ducted gas heating
• Double glazing
• Evaporative cooling to living areas
• Garden sheds
• Close to popular primary schools - St Judes, Duffy & Chapman
• Also Orana School (in Weston) & Montessori School (in Holder)
• Less than 5-minute drive to the Cooleman Court shopping centre
STATISTICS:
EER: 2.5
Home size: 164m2
Garage size: 36m2
Construction: 1972 Renos: 2002
Land size: 999m2
Land value: $431,000
Rates: $741 per quarter
Land Tax: $1,091 per quarter (only applicable if rented)
* Please note, all figures are approximate
Read MoreCleverly designed, and a collaboration between Anna Pender of Adhami Pender Architecture and Feng Shui consultant Tanya Melnychenko, the home breathes their virtues of beauty, spirit and environmentally responsible design.
The street appeal creates such intrigue that you are immediately drawn to the home by the large bespoke entry door. Once inside the elements of the home enrich all your senses.
The use of bespoke recycled products, light filled spaces, large timber picture windows, the design and link between spaces, double glazing and northerly aspect, all harmonise to create a lovely ambience in the home.
The open plan layout of the home includes the lounge, dining and light filled family room plus mezzanine with endless possibilities such as a study, yoga/meditation escape or play space for children.
The home cleverly integrates the use of indoor and outdoor spaces with decked areas providing entertaining or relaxation options. The sustainable landscaping adds yet another layer of complexity to the home with the use of rocks, paving, dry creek beds and a straw bale courtyard wall, all complementing the generous use of timber and the easy-care mature plantings. There is also a dedicated space for the green house, vegies and chooks/ducks.
Designed to embrace all seasons, the home is sunny and warm in winter and shaded by large deciduous trees in summer. Every window affords beautiful forest like views and a unique retreat like atmosphere.
Additional comfort is provided by ducted gas heating, evaporative cooling, a slow combustion fireplace and electric in slab heating in the main bedroom.
This beautiful home is situated on a 999 square metre block in a lovely street, desirable suburb and close to excellent schooling options, the Cooleman Court shopping precinct and major transport routes.
You must inspect this special home!
STANDOUTS:
• Architectural brilliance
• Feng Shui design elements
• Beautiful contemporary family home
• Desirable location
• Surrounded by established homes
• Expansive northerly aspect
• Open plan but with dedicated spaces
• Integration of indoor and outdoor living spaces
• Decked areas for entertaining or relaxation
• Clever use of large timber windows throughout
• Modern kitchen features generous benches and cupboard storage plus a corner pantry
• Gas cooktop, electric oven and dishwasher
• Lounge room with slow combustion wood fire
• Dining room on beautiful timber flooring
• Family room flooded with natural light
• Mezzanine level adds interest and clever use of space
• Main bedroom with electric in slab heating and built in robes
• Two other generous bedrooms with built in robes
• Luxurious double bath with picture window overlooking garden
• Shower and vanity
• Separate toilet
• Laundry with external access
• Double garage with storage
• Large private backyard with established gardens
• Clever use of native plants and design features including dry creek beds
• Established deciduous feature trees providing summer cooling and beautiful vistas
• Ducted gas heating
• Double glazing
• Evaporative cooling to living areas
• Garden sheds
• Close to popular primary schools - St Judes, Duffy & Chapman
• Also Orana School (in Weston) & Montessori School (in Holder)
• Less than 5-minute drive to the Cooleman Court shopping centre
STATISTICS:
EER: 2.5
Home size: 164m2
Garage size: 36m2
Construction: 1972 Renos: 2002
Land size: 999m2
Land value: $431,000
Rates: $741 per quarter
Land Tax: $1,091 per quarter (only applicable if rented)
* Please note, all figures are approximate
Inspect
Contact agent















































