SPACIOUS FAMILY HOME - RENOVATED. VIEWS. INCOME GENERATING.
Sold
Location
7 Alphard Place
Giralang ACT 2617
Details
6
3
4
EER: 1.5
House
Auction Saturday, 12 Jun 01:00 PM On Site
HIGHLIGHTS:
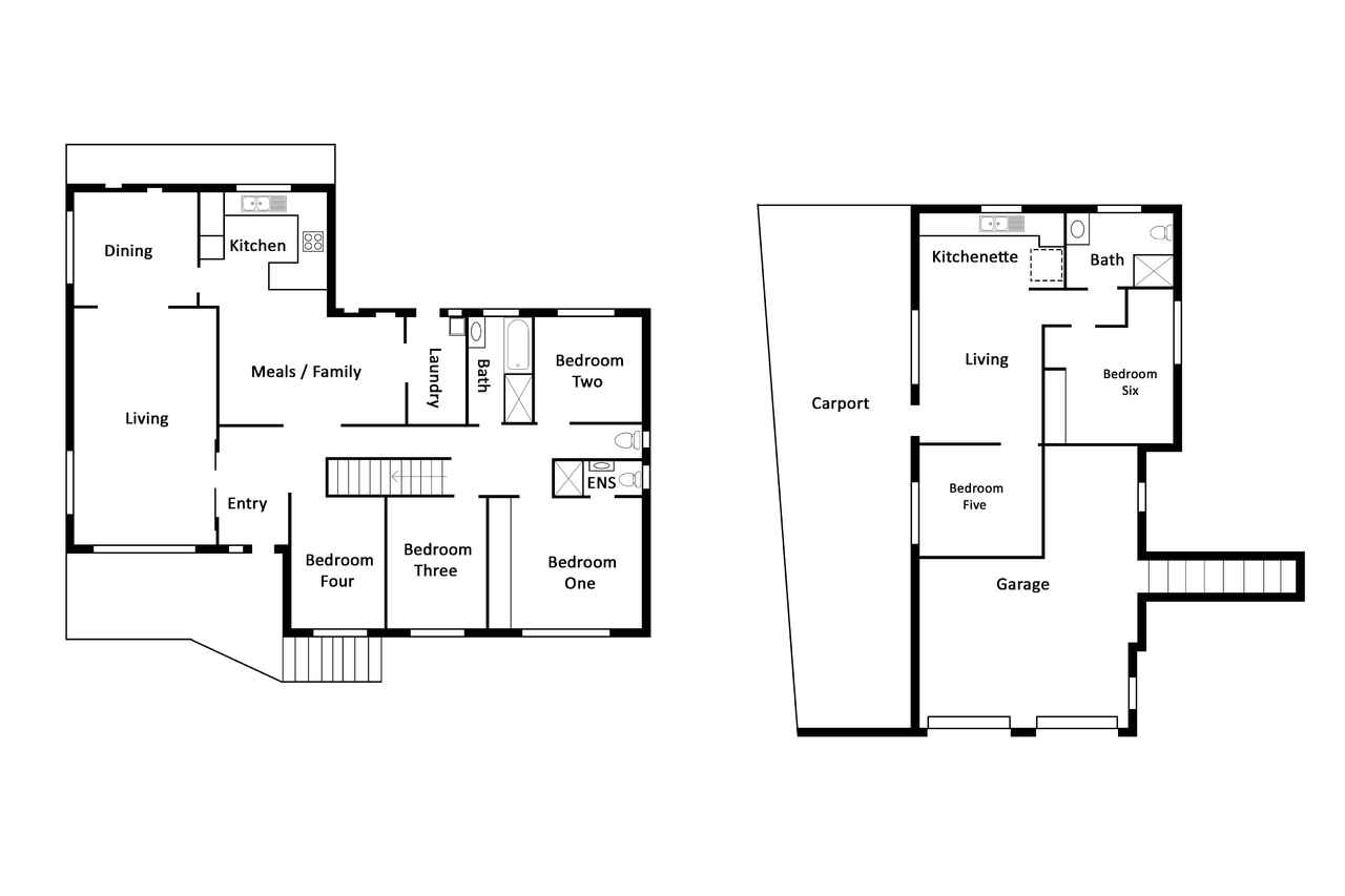
It is a pleasure to present this beautiful family home located at an elevated position in a peaceful cul-de-sac in Giralang. It is a spacious house with plenty of entertainment area and lots of storage space. With its stunning views over Belconnen to the Brindabella's from a range of different vantage points, both in and outside the house!
Essentially, this offering provides a 'two for one' opportunity. The beautifully renovated four-bedroom home is complimented by a separate two-bedroom unit which has also been tastefully renovated.
Therefore, what is presented is a four-bedroom, two-bathroom, two garage home plus an extra two-bedroom, one-bathroom, tandem carport apartment. How clever is that!
The main home, on the upper level, has been rejuvenated throughout with new paint, floor coverings and updated kitchen. The floorplan provides generous spaces with four good sized bedrooms, large lounge, formal dining with access to balcony, meals and family room off the kitchen. This home certainly caters for all members of the family.
At the 'heart of the home' is a large kitchen featuring new appliances, benches and generous storge.
The large main bedroom includes a built-in robe and ensuite. The additional three bedrooms are of generous proportions with two featuring built in robes.
The main bathroom includes a shower, vanity and bath. There is a separate toilet. The large laundry provides generous storage.
A massive covered outdoor entertaining space provides a multitude of options.
Car accommodation is a double garage with remote doors, with wide driveway.
The separately metered two-bedroom apartment, on the ground level, has its own access via a dedicated tandem carport with remote door. The apartment includes an open plan lounge, dining and kitchen space. There are two generous bedrooms and a modern bathroom with shower, vanity and toilet. There is a current lease in place for $450 per week.
Set over 941 square metres, the secure backyard offers plenty of space for the kids or pets to play.
This is a beautiful home in a fantastic location and is sure to impress with its features!
STANDOUTS:
• Renovated outstanding family home
• Separately metered two-bedroom apartment with instant electricity hot water system
• Amazing views
• Lovely street appeal
• Clever floorplan with many options
• Spacious open-plan, light-filled dining & lounge area
• Huge lounge room
• Dining room with lovely balcony for entertaining or relaxing
• Stylish kitchen with stone benches & generous storage
• Kitchen appliances include electric cooktop, oven & dishwasher
• Master bedroom with built-in robe & ensuite
• Three additional spacious bedrooms, two with built-in robes
• Main bathroom with bath, shower & vanity
• Separate toilet
• Generous laundry with great storage
• Impressive alfresco area
• Large double garage with remote doors
• Two storage rooms accessible from garage plus large storage areas under the house
• Tandem carport with remote roller door and two car space dedicated to apartment
• Secure backyard for young children or pets
• Ducted gas heating
• Ducted evaporative cooling
• Instant gas hot water
• New scratch and leak resistant hybrid SPC flooring throughout
• Freshly painted – interior & exterior and roof
• LED downlights
• Nearby cycle & walking paths
• Short walk to Giralang Primary School & ovals
• Easy access to public transport
• Short drive to Belconnen Town Centre, Calvary Hospital, Radford College and Australian Institute of Sports (AIS)
STATISTICS:
EER: 1.5
Home size (upper): 179m2
Home size (lower): 62m2
Garage size:: 39m2
Carport size: 44m2
Original construction: 1976
Land size: 940m2
Land value: $400,000
Rates: $626 per quarter
Land tax (if rented): $869 per quarter
Apartment currently rented at: $450 per week
House rent estimate: $650 to $700 per week
Read MoreIt is a pleasure to present this beautiful family home located at an elevated position in a peaceful cul-de-sac in Giralang. It is a spacious house with plenty of entertainment area and lots of storage space. With its stunning views over Belconnen to the Brindabella's from a range of different vantage points, both in and outside the house!
Essentially, this offering provides a 'two for one' opportunity. The beautifully renovated four-bedroom home is complimented by a separate two-bedroom unit which has also been tastefully renovated.
Therefore, what is presented is a four-bedroom, two-bathroom, two garage home plus an extra two-bedroom, one-bathroom, tandem carport apartment. How clever is that!
The main home, on the upper level, has been rejuvenated throughout with new paint, floor coverings and updated kitchen. The floorplan provides generous spaces with four good sized bedrooms, large lounge, formal dining with access to balcony, meals and family room off the kitchen. This home certainly caters for all members of the family.
At the 'heart of the home' is a large kitchen featuring new appliances, benches and generous storge.
The large main bedroom includes a built-in robe and ensuite. The additional three bedrooms are of generous proportions with two featuring built in robes.
The main bathroom includes a shower, vanity and bath. There is a separate toilet. The large laundry provides generous storage.
A massive covered outdoor entertaining space provides a multitude of options.
Car accommodation is a double garage with remote doors, with wide driveway.
The separately metered two-bedroom apartment, on the ground level, has its own access via a dedicated tandem carport with remote door. The apartment includes an open plan lounge, dining and kitchen space. There are two generous bedrooms and a modern bathroom with shower, vanity and toilet. There is a current lease in place for $450 per week.
Set over 941 square metres, the secure backyard offers plenty of space for the kids or pets to play.
This is a beautiful home in a fantastic location and is sure to impress with its features!
STANDOUTS:
• Renovated outstanding family home
• Separately metered two-bedroom apartment with instant electricity hot water system
• Amazing views
• Lovely street appeal
• Clever floorplan with many options
• Spacious open-plan, light-filled dining & lounge area
• Huge lounge room
• Dining room with lovely balcony for entertaining or relaxing
• Stylish kitchen with stone benches & generous storage
• Kitchen appliances include electric cooktop, oven & dishwasher
• Master bedroom with built-in robe & ensuite
• Three additional spacious bedrooms, two with built-in robes
• Main bathroom with bath, shower & vanity
• Separate toilet
• Generous laundry with great storage
• Impressive alfresco area
• Large double garage with remote doors
• Two storage rooms accessible from garage plus large storage areas under the house
• Tandem carport with remote roller door and two car space dedicated to apartment
• Secure backyard for young children or pets
• Ducted gas heating
• Ducted evaporative cooling
• Instant gas hot water
• New scratch and leak resistant hybrid SPC flooring throughout
• Freshly painted – interior & exterior and roof
• LED downlights
• Nearby cycle & walking paths
• Short walk to Giralang Primary School & ovals
• Easy access to public transport
• Short drive to Belconnen Town Centre, Calvary Hospital, Radford College and Australian Institute of Sports (AIS)
STATISTICS:
EER: 1.5
Home size (upper): 179m2
Home size (lower): 62m2
Garage size:: 39m2
Carport size: 44m2
Original construction: 1976
Land size: 940m2
Land value: $400,000
Rates: $626 per quarter
Land tax (if rented): $869 per quarter
Apartment currently rented at: $450 per week
House rent estimate: $650 to $700 per week
Inspect
Contact agent
Listing agent
Prior to enquiry or inspection of this property you may wish to review our Information Collection Notice and Privacy Policy.
Privacy & Collection NoticeHIGHLIGHTS:
It is a pleasure to present this beautiful family home located at an elevated position in a peaceful cul-de-sac in Giralang. It is a spacious house with plenty of entertainment area and lots of storage space. With its stunning views over Belconnen to the Brindabella's from a range of different vantage points, both in and outside the house!
Essentially, this offering provides a 'two for one' opportunity. The beautifully renovated four-bedroom home is complimented by a separate two-bedroom unit which has also been tastefully renovated.
Therefore, what is presented is a four-bedroom, two-bathroom, two garage home plus an extra two-bedroom, one-bathroom, tandem carport apartment. How clever is that!
The main home, on the upper level, has been rejuvenated throughout with new paint, floor coverings and updated kitchen. The floorplan provides generous spaces with four good sized bedrooms, large lounge, formal dining with access to balcony, meals and family room off the kitchen. This home certainly caters for all members of the family.
At the 'heart of the home' is a large kitchen featuring new appliances, benches and generous storge.
The large main bedroom includes a built-in robe and ensuite. The additional three bedrooms are of generous proportions with two featuring built in robes.
The main bathroom includes a shower, vanity and bath. There is a separate toilet. The large laundry provides generous storage.
A massive covered outdoor entertaining space provides a multitude of options.
Car accommodation is a double garage with remote doors, with wide driveway.
The separately metered two-bedroom apartment, on the ground level, has its own access via a dedicated tandem carport with remote door. The apartment includes an open plan lounge, dining and kitchen space. There are two generous bedrooms and a modern bathroom with shower, vanity and toilet. There is a current lease in place for $450 per week.
Set over 941 square metres, the secure backyard offers plenty of space for the kids or pets to play.
This is a beautiful home in a fantastic location and is sure to impress with its features!
STANDOUTS:
• Renovated outstanding family home
• Separately metered two-bedroom apartment with instant electricity hot water system
• Amazing views
• Lovely street appeal
• Clever floorplan with many options
• Spacious open-plan, light-filled dining & lounge area
• Huge lounge room
• Dining room with lovely balcony for entertaining or relaxing
• Stylish kitchen with stone benches & generous storage
• Kitchen appliances include electric cooktop, oven & dishwasher
• Master bedroom with built-in robe & ensuite
• Three additional spacious bedrooms, two with built-in robes
• Main bathroom with bath, shower & vanity
• Separate toilet
• Generous laundry with great storage
• Impressive alfresco area
• Large double garage with remote doors
• Two storage rooms accessible from garage plus large storage areas under the house
• Tandem carport with remote roller door and two car space dedicated to apartment
• Secure backyard for young children or pets
• Ducted gas heating
• Ducted evaporative cooling
• Instant gas hot water
• New scratch and leak resistant hybrid SPC flooring throughout
• Freshly painted – interior & exterior and roof
• LED downlights
• Nearby cycle & walking paths
• Short walk to Giralang Primary School & ovals
• Easy access to public transport
• Short drive to Belconnen Town Centre, Calvary Hospital, Radford College and Australian Institute of Sports (AIS)
STATISTICS:
EER: 1.5
Home size (upper): 179m2
Home size (lower): 62m2
Garage size:: 39m2
Carport size: 44m2
Original construction: 1976
Land size: 940m2
Land value: $400,000
Rates: $626 per quarter
Land tax (if rented): $869 per quarter
Apartment currently rented at: $450 per week
House rent estimate: $650 to $700 per week
Read MoreIt is a pleasure to present this beautiful family home located at an elevated position in a peaceful cul-de-sac in Giralang. It is a spacious house with plenty of entertainment area and lots of storage space. With its stunning views over Belconnen to the Brindabella's from a range of different vantage points, both in and outside the house!
Essentially, this offering provides a 'two for one' opportunity. The beautifully renovated four-bedroom home is complimented by a separate two-bedroom unit which has also been tastefully renovated.
Therefore, what is presented is a four-bedroom, two-bathroom, two garage home plus an extra two-bedroom, one-bathroom, tandem carport apartment. How clever is that!
The main home, on the upper level, has been rejuvenated throughout with new paint, floor coverings and updated kitchen. The floorplan provides generous spaces with four good sized bedrooms, large lounge, formal dining with access to balcony, meals and family room off the kitchen. This home certainly caters for all members of the family.
At the 'heart of the home' is a large kitchen featuring new appliances, benches and generous storge.
The large main bedroom includes a built-in robe and ensuite. The additional three bedrooms are of generous proportions with two featuring built in robes.
The main bathroom includes a shower, vanity and bath. There is a separate toilet. The large laundry provides generous storage.
A massive covered outdoor entertaining space provides a multitude of options.
Car accommodation is a double garage with remote doors, with wide driveway.
The separately metered two-bedroom apartment, on the ground level, has its own access via a dedicated tandem carport with remote door. The apartment includes an open plan lounge, dining and kitchen space. There are two generous bedrooms and a modern bathroom with shower, vanity and toilet. There is a current lease in place for $450 per week.
Set over 941 square metres, the secure backyard offers plenty of space for the kids or pets to play.
This is a beautiful home in a fantastic location and is sure to impress with its features!
STANDOUTS:
• Renovated outstanding family home
• Separately metered two-bedroom apartment with instant electricity hot water system
• Amazing views
• Lovely street appeal
• Clever floorplan with many options
• Spacious open-plan, light-filled dining & lounge area
• Huge lounge room
• Dining room with lovely balcony for entertaining or relaxing
• Stylish kitchen with stone benches & generous storage
• Kitchen appliances include electric cooktop, oven & dishwasher
• Master bedroom with built-in robe & ensuite
• Three additional spacious bedrooms, two with built-in robes
• Main bathroom with bath, shower & vanity
• Separate toilet
• Generous laundry with great storage
• Impressive alfresco area
• Large double garage with remote doors
• Two storage rooms accessible from garage plus large storage areas under the house
• Tandem carport with remote roller door and two car space dedicated to apartment
• Secure backyard for young children or pets
• Ducted gas heating
• Ducted evaporative cooling
• Instant gas hot water
• New scratch and leak resistant hybrid SPC flooring throughout
• Freshly painted – interior & exterior and roof
• LED downlights
• Nearby cycle & walking paths
• Short walk to Giralang Primary School & ovals
• Easy access to public transport
• Short drive to Belconnen Town Centre, Calvary Hospital, Radford College and Australian Institute of Sports (AIS)
STATISTICS:
EER: 1.5
Home size (upper): 179m2
Home size (lower): 62m2
Garage size:: 39m2
Carport size: 44m2
Original construction: 1976
Land size: 940m2
Land value: $400,000
Rates: $626 per quarter
Land tax (if rented): $869 per quarter
Apartment currently rented at: $450 per week
House rent estimate: $650 to $700 per week

Location
7 Alphard Place
Giralang ACT 2617
Details
6
3
4
EER: 1.5
House
Auction Saturday, 12 Jun 01:00 PM On Site
HIGHLIGHTS:
It is a pleasure to present this beautiful family home located at an elevated position in a peaceful cul-de-sac in Giralang. It is a spacious house with plenty of entertainment area and lots of storage space. With its stunning views over Belconnen to the Brindabella's from a range of different vantage points, both in and outside the house!
Essentially, this offering provides a 'two for one' opportunity. The beautifully renovated four-bedroom home is complimented by a separate two-bedroom unit which has also been tastefully renovated.
Therefore, what is presented is a four-bedroom, two-bathroom, two garage home plus an extra two-bedroom, one-bathroom, tandem carport apartment. How clever is that!
The main home, on the upper level, has been rejuvenated throughout with new paint, floor coverings and updated kitchen. The floorplan provides generous spaces with four good sized bedrooms, large lounge, formal dining with access to balcony, meals and family room off the kitchen. This home certainly caters for all members of the family.
At the 'heart of the home' is a large kitchen featuring new appliances, benches and generous storge.
The large main bedroom includes a built-in robe and ensuite. The additional three bedrooms are of generous proportions with two featuring built in robes.
The main bathroom includes a shower, vanity and bath. There is a separate toilet. The large laundry provides generous storage.
A massive covered outdoor entertaining space provides a multitude of options.
Car accommodation is a double garage with remote doors, with wide driveway.
The separately metered two-bedroom apartment, on the ground level, has its own access via a dedicated tandem carport with remote door. The apartment includes an open plan lounge, dining and kitchen space. There are two generous bedrooms and a modern bathroom with shower, vanity and toilet. There is a current lease in place for $450 per week.
Set over 941 square metres, the secure backyard offers plenty of space for the kids or pets to play.
This is a beautiful home in a fantastic location and is sure to impress with its features!
STANDOUTS:
• Renovated outstanding family home
• Separately metered two-bedroom apartment with instant electricity hot water system
• Amazing views
• Lovely street appeal
• Clever floorplan with many options
• Spacious open-plan, light-filled dining & lounge area
• Huge lounge room
• Dining room with lovely balcony for entertaining or relaxing
• Stylish kitchen with stone benches & generous storage
• Kitchen appliances include electric cooktop, oven & dishwasher
• Master bedroom with built-in robe & ensuite
• Three additional spacious bedrooms, two with built-in robes
• Main bathroom with bath, shower & vanity
• Separate toilet
• Generous laundry with great storage
• Impressive alfresco area
• Large double garage with remote doors
• Two storage rooms accessible from garage plus large storage areas under the house
• Tandem carport with remote roller door and two car space dedicated to apartment
• Secure backyard for young children or pets
• Ducted gas heating
• Ducted evaporative cooling
• Instant gas hot water
• New scratch and leak resistant hybrid SPC flooring throughout
• Freshly painted – interior & exterior and roof
• LED downlights
• Nearby cycle & walking paths
• Short walk to Giralang Primary School & ovals
• Easy access to public transport
• Short drive to Belconnen Town Centre, Calvary Hospital, Radford College and Australian Institute of Sports (AIS)
STATISTICS:
EER: 1.5
Home size (upper): 179m2
Home size (lower): 62m2
Garage size:: 39m2
Carport size: 44m2
Original construction: 1976
Land size: 940m2
Land value: $400,000
Rates: $626 per quarter
Land tax (if rented): $869 per quarter
Apartment currently rented at: $450 per week
House rent estimate: $650 to $700 per week
Read MoreIt is a pleasure to present this beautiful family home located at an elevated position in a peaceful cul-de-sac in Giralang. It is a spacious house with plenty of entertainment area and lots of storage space. With its stunning views over Belconnen to the Brindabella's from a range of different vantage points, both in and outside the house!
Essentially, this offering provides a 'two for one' opportunity. The beautifully renovated four-bedroom home is complimented by a separate two-bedroom unit which has also been tastefully renovated.
Therefore, what is presented is a four-bedroom, two-bathroom, two garage home plus an extra two-bedroom, one-bathroom, tandem carport apartment. How clever is that!
The main home, on the upper level, has been rejuvenated throughout with new paint, floor coverings and updated kitchen. The floorplan provides generous spaces with four good sized bedrooms, large lounge, formal dining with access to balcony, meals and family room off the kitchen. This home certainly caters for all members of the family.
At the 'heart of the home' is a large kitchen featuring new appliances, benches and generous storge.
The large main bedroom includes a built-in robe and ensuite. The additional three bedrooms are of generous proportions with two featuring built in robes.
The main bathroom includes a shower, vanity and bath. There is a separate toilet. The large laundry provides generous storage.
A massive covered outdoor entertaining space provides a multitude of options.
Car accommodation is a double garage with remote doors, with wide driveway.
The separately metered two-bedroom apartment, on the ground level, has its own access via a dedicated tandem carport with remote door. The apartment includes an open plan lounge, dining and kitchen space. There are two generous bedrooms and a modern bathroom with shower, vanity and toilet. There is a current lease in place for $450 per week.
Set over 941 square metres, the secure backyard offers plenty of space for the kids or pets to play.
This is a beautiful home in a fantastic location and is sure to impress with its features!
STANDOUTS:
• Renovated outstanding family home
• Separately metered two-bedroom apartment with instant electricity hot water system
• Amazing views
• Lovely street appeal
• Clever floorplan with many options
• Spacious open-plan, light-filled dining & lounge area
• Huge lounge room
• Dining room with lovely balcony for entertaining or relaxing
• Stylish kitchen with stone benches & generous storage
• Kitchen appliances include electric cooktop, oven & dishwasher
• Master bedroom with built-in robe & ensuite
• Three additional spacious bedrooms, two with built-in robes
• Main bathroom with bath, shower & vanity
• Separate toilet
• Generous laundry with great storage
• Impressive alfresco area
• Large double garage with remote doors
• Two storage rooms accessible from garage plus large storage areas under the house
• Tandem carport with remote roller door and two car space dedicated to apartment
• Secure backyard for young children or pets
• Ducted gas heating
• Ducted evaporative cooling
• Instant gas hot water
• New scratch and leak resistant hybrid SPC flooring throughout
• Freshly painted – interior & exterior and roof
• LED downlights
• Nearby cycle & walking paths
• Short walk to Giralang Primary School & ovals
• Easy access to public transport
• Short drive to Belconnen Town Centre, Calvary Hospital, Radford College and Australian Institute of Sports (AIS)
STATISTICS:
EER: 1.5
Home size (upper): 179m2
Home size (lower): 62m2
Garage size:: 39m2
Carport size: 44m2
Original construction: 1976
Land size: 940m2
Land value: $400,000
Rates: $626 per quarter
Land tax (if rented): $869 per quarter
Apartment currently rented at: $450 per week
House rent estimate: $650 to $700 per week
Inspect
Contact agent
Listing agent
Prior to enquiry or inspection of this property you may wish to review our Information Collection Notice and Privacy Policy.
Privacy & Collection Notice





























































