Bush Retreat – 99 Acres
Sold
Location
2118 Jerangle Road
Jerangle NSW 2630
Details
3
2
5
Lifestyle
$700,000
Land area: | 99 acres (approx) |
Note: due to wet conditions Access for inspections and open homes will require a 4x4 or AWD.
Limekiln Cottage, fronting lovely Limekiln Creek, is on 99 bush acres (40.03 hectares) located approximately 21 kms (23 mins) from Bredbo . This home is in a picture-perfect spot with beautiful rural views & delivers a peaceful rural experience.
Situated on a private bush block with the Jerangle road approximately 1 kilometre away, the home is accessed via a right of carriageway through the neighbouring property. A large percentage of the block is mountainous timbered country with an abundance of wildlife, you can enjoy bush walking, horse riding, mountain or motor bike riding and hunting or just enjoy the peace & quiet.
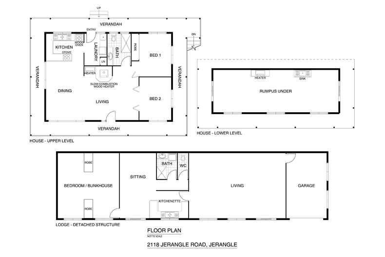
It's not just the location that makes this property appealing; it's what the home offers. There are 2 bedrooms in the main house with a spacious 12 x 3.5 rumpus room under, plus a substantial detached separate building lovingly referred to as "Mariners Lodge".
The house is simple but very comfortable, including modern-day conveniences like gas heating, instant gas hot water, slow combustion wood fire, gas stove plus old wood stove/oven, mains power and numerous tanks for ample water storage.
Underneath the home is a large 12m x 3.5m rumpus room that can easily be used for additional bedrooms, a children's play space or a place for the adults to get away from the hustle and bustle of upstairs. The home is fully wrapped around by the covered veranda taking full advantage of the surrounding scenery.
The 126 sqm (21m x 6 m) Lodge is very spacious perfect for the extended family or has the potential to become a B&B, offering ample living area, a huge single bedroom/bunkhouse, a kitchenette & bathroom.
The property also offers a single garage or workshop and a 4-car garage.
Several vehicle and walking tracks for exploring provides access to the highest point on the property with breath-taking views.
The home has all the infrastructure needed to move straight in and start living the rural lifestyle. The land is fenced along one boundary only and offers a combination of creeks, open pasture and of course the natural bushland.
Home inclusions:
- 2 bedrooms,
- Combined lounge/dining
- Kitchen with gas oven and wood stove
- Bathroom
- Instant gas hot water
- Laundry room
- Gas heater connection
- Slow-combustion wood fire
- Wraparound veranda
- Rumpus room under (12 x 3.5 meters)
Infrastructure:
- Additional 126sqm accommodation building including living room, bedroom, kitchenette and bathroom
- 4 car garage
- Single garage/workshop
- 3 x dams
- Numerous tanks
- Chicken coop
- Separate workshop/storage shed
- Multi-purpose animal shed/shelter
- Note: the shipping container shown in some photos is NOT included in the sale
Lot 2 DP 735701
House Living: 116 sqm
Verandah: 78 sqm
Lodge living space: 126 sqm
Rates: $1,004.00 PA
Zoned: RU1 Primary Production
For more information, call Chris Churchill on -0417 080 460
Read MoreLimekiln Cottage, fronting lovely Limekiln Creek, is on 99 bush acres (40.03 hectares) located approximately 21 kms (23 mins) from Bredbo . This home is in a picture-perfect spot with beautiful rural views & delivers a peaceful rural experience.
Situated on a private bush block with the Jerangle road approximately 1 kilometre away, the home is accessed via a right of carriageway through the neighbouring property. A large percentage of the block is mountainous timbered country with an abundance of wildlife, you can enjoy bush walking, horse riding, mountain or motor bike riding and hunting or just enjoy the peace & quiet.
It's not just the location that makes this property appealing; it's what the home offers. There are 2 bedrooms in the main house with a spacious 12 x 3.5 rumpus room under, plus a substantial detached separate building lovingly referred to as "Mariners Lodge".
The house is simple but very comfortable, including modern-day conveniences like gas heating, instant gas hot water, slow combustion wood fire, gas stove plus old wood stove/oven, mains power and numerous tanks for ample water storage.
Underneath the home is a large 12m x 3.5m rumpus room that can easily be used for additional bedrooms, a children's play space or a place for the adults to get away from the hustle and bustle of upstairs. The home is fully wrapped around by the covered veranda taking full advantage of the surrounding scenery.
The 126 sqm (21m x 6 m) Lodge is very spacious perfect for the extended family or has the potential to become a B&B, offering ample living area, a huge single bedroom/bunkhouse, a kitchenette & bathroom.
The property also offers a single garage or workshop and a 4-car garage.
Several vehicle and walking tracks for exploring provides access to the highest point on the property with breath-taking views.
The home has all the infrastructure needed to move straight in and start living the rural lifestyle. The land is fenced along one boundary only and offers a combination of creeks, open pasture and of course the natural bushland.
Home inclusions:
- 2 bedrooms,
- Combined lounge/dining
- Kitchen with gas oven and wood stove
- Bathroom
- Instant gas hot water
- Laundry room
- Gas heater connection
- Slow-combustion wood fire
- Wraparound veranda
- Rumpus room under (12 x 3.5 meters)
Infrastructure:
- Additional 126sqm accommodation building including living room, bedroom, kitchenette and bathroom
- 4 car garage
- Single garage/workshop
- 3 x dams
- Numerous tanks
- Chicken coop
- Separate workshop/storage shed
- Multi-purpose animal shed/shelter
- Note: the shipping container shown in some photos is NOT included in the sale
Lot 2 DP 735701
House Living: 116 sqm
Verandah: 78 sqm
Lodge living space: 126 sqm
Rates: $1,004.00 PA
Zoned: RU1 Primary Production
For more information, call Chris Churchill on -0417 080 460
Inspect
Contact agent
Listing agent
Prior to enquiry or inspection of this property you may wish to review our Information Collection Notice and Privacy Policy.
Privacy & Collection NoticeNote: due to wet conditions Access for inspections and open homes will require a 4x4 or AWD.
Limekiln Cottage, fronting lovely Limekiln Creek, is on 99 bush acres (40.03 hectares) located approximately 21 kms (23 mins) from Bredbo . This home is in a picture-perfect spot with beautiful rural views & delivers a peaceful rural experience.
Situated on a private bush block with the Jerangle road approximately 1 kilometre away, the home is accessed via a right of carriageway through the neighbouring property. A large percentage of the block is mountainous timbered country with an abundance of wildlife, you can enjoy bush walking, horse riding, mountain or motor bike riding and hunting or just enjoy the peace & quiet.
It's not just the location that makes this property appealing; it's what the home offers. There are 2 bedrooms in the main house with a spacious 12 x 3.5 rumpus room under, plus a substantial detached separate building lovingly referred to as "Mariners Lodge".
The house is simple but very comfortable, including modern-day conveniences like gas heating, instant gas hot water, slow combustion wood fire, gas stove plus old wood stove/oven, mains power and numerous tanks for ample water storage.
Underneath the home is a large 12m x 3.5m rumpus room that can easily be used for additional bedrooms, a children's play space or a place for the adults to get away from the hustle and bustle of upstairs. The home is fully wrapped around by the covered veranda taking full advantage of the surrounding scenery.
The 126 sqm (21m x 6 m) Lodge is very spacious perfect for the extended family or has the potential to become a B&B, offering ample living area, a huge single bedroom/bunkhouse, a kitchenette & bathroom.
The property also offers a single garage or workshop and a 4-car garage.
Several vehicle and walking tracks for exploring provides access to the highest point on the property with breath-taking views.
The home has all the infrastructure needed to move straight in and start living the rural lifestyle. The land is fenced along one boundary only and offers a combination of creeks, open pasture and of course the natural bushland.
Home inclusions:
- 2 bedrooms,
- Combined lounge/dining
- Kitchen with gas oven and wood stove
- Bathroom
- Instant gas hot water
- Laundry room
- Gas heater connection
- Slow-combustion wood fire
- Wraparound veranda
- Rumpus room under (12 x 3.5 meters)
Infrastructure:
- Additional 126sqm accommodation building including living room, bedroom, kitchenette and bathroom
- 4 car garage
- Single garage/workshop
- 3 x dams
- Numerous tanks
- Chicken coop
- Separate workshop/storage shed
- Multi-purpose animal shed/shelter
- Note: the shipping container shown in some photos is NOT included in the sale
Lot 2 DP 735701
House Living: 116 sqm
Verandah: 78 sqm
Lodge living space: 126 sqm
Rates: $1,004.00 PA
Zoned: RU1 Primary Production
For more information, call Chris Churchill on -0417 080 460
Read MoreLimekiln Cottage, fronting lovely Limekiln Creek, is on 99 bush acres (40.03 hectares) located approximately 21 kms (23 mins) from Bredbo . This home is in a picture-perfect spot with beautiful rural views & delivers a peaceful rural experience.
Situated on a private bush block with the Jerangle road approximately 1 kilometre away, the home is accessed via a right of carriageway through the neighbouring property. A large percentage of the block is mountainous timbered country with an abundance of wildlife, you can enjoy bush walking, horse riding, mountain or motor bike riding and hunting or just enjoy the peace & quiet.
It's not just the location that makes this property appealing; it's what the home offers. There are 2 bedrooms in the main house with a spacious 12 x 3.5 rumpus room under, plus a substantial detached separate building lovingly referred to as "Mariners Lodge".
The house is simple but very comfortable, including modern-day conveniences like gas heating, instant gas hot water, slow combustion wood fire, gas stove plus old wood stove/oven, mains power and numerous tanks for ample water storage.
Underneath the home is a large 12m x 3.5m rumpus room that can easily be used for additional bedrooms, a children's play space or a place for the adults to get away from the hustle and bustle of upstairs. The home is fully wrapped around by the covered veranda taking full advantage of the surrounding scenery.
The 126 sqm (21m x 6 m) Lodge is very spacious perfect for the extended family or has the potential to become a B&B, offering ample living area, a huge single bedroom/bunkhouse, a kitchenette & bathroom.
The property also offers a single garage or workshop and a 4-car garage.
Several vehicle and walking tracks for exploring provides access to the highest point on the property with breath-taking views.
The home has all the infrastructure needed to move straight in and start living the rural lifestyle. The land is fenced along one boundary only and offers a combination of creeks, open pasture and of course the natural bushland.
Home inclusions:
- 2 bedrooms,
- Combined lounge/dining
- Kitchen with gas oven and wood stove
- Bathroom
- Instant gas hot water
- Laundry room
- Gas heater connection
- Slow-combustion wood fire
- Wraparound veranda
- Rumpus room under (12 x 3.5 meters)
Infrastructure:
- Additional 126sqm accommodation building including living room, bedroom, kitchenette and bathroom
- 4 car garage
- Single garage/workshop
- 3 x dams
- Numerous tanks
- Chicken coop
- Separate workshop/storage shed
- Multi-purpose animal shed/shelter
- Note: the shipping container shown in some photos is NOT included in the sale
Lot 2 DP 735701
House Living: 116 sqm
Verandah: 78 sqm
Lodge living space: 126 sqm
Rates: $1,004.00 PA
Zoned: RU1 Primary Production
For more information, call Chris Churchill on -0417 080 460

Location
2118 Jerangle Road
Jerangle NSW 2630
Details
3
2
5
Lifestyle
$700,000
Land area: | 99 acres (approx) |
Note: due to wet conditions Access for inspections and open homes will require a 4x4 or AWD.
Limekiln Cottage, fronting lovely Limekiln Creek, is on 99 bush acres (40.03 hectares) located approximately 21 kms (23 mins) from Bredbo . This home is in a picture-perfect spot with beautiful rural views & delivers a peaceful rural experience.
Situated on a private bush block with the Jerangle road approximately 1 kilometre away, the home is accessed via a right of carriageway through the neighbouring property. A large percentage of the block is mountainous timbered country with an abundance of wildlife, you can enjoy bush walking, horse riding, mountain or motor bike riding and hunting or just enjoy the peace & quiet.
It's not just the location that makes this property appealing; it's what the home offers. There are 2 bedrooms in the main house with a spacious 12 x 3.5 rumpus room under, plus a substantial detached separate building lovingly referred to as "Mariners Lodge".
The house is simple but very comfortable, including modern-day conveniences like gas heating, instant gas hot water, slow combustion wood fire, gas stove plus old wood stove/oven, mains power and numerous tanks for ample water storage.
Underneath the home is a large 12m x 3.5m rumpus room that can easily be used for additional bedrooms, a children's play space or a place for the adults to get away from the hustle and bustle of upstairs. The home is fully wrapped around by the covered veranda taking full advantage of the surrounding scenery.
The 126 sqm (21m x 6 m) Lodge is very spacious perfect for the extended family or has the potential to become a B&B, offering ample living area, a huge single bedroom/bunkhouse, a kitchenette & bathroom.
The property also offers a single garage or workshop and a 4-car garage.
Several vehicle and walking tracks for exploring provides access to the highest point on the property with breath-taking views.
The home has all the infrastructure needed to move straight in and start living the rural lifestyle. The land is fenced along one boundary only and offers a combination of creeks, open pasture and of course the natural bushland.
Home inclusions:
- 2 bedrooms,
- Combined lounge/dining
- Kitchen with gas oven and wood stove
- Bathroom
- Instant gas hot water
- Laundry room
- Gas heater connection
- Slow-combustion wood fire
- Wraparound veranda
- Rumpus room under (12 x 3.5 meters)
Infrastructure:
- Additional 126sqm accommodation building including living room, bedroom, kitchenette and bathroom
- 4 car garage
- Single garage/workshop
- 3 x dams
- Numerous tanks
- Chicken coop
- Separate workshop/storage shed
- Multi-purpose animal shed/shelter
- Note: the shipping container shown in some photos is NOT included in the sale
Lot 2 DP 735701
House Living: 116 sqm
Verandah: 78 sqm
Lodge living space: 126 sqm
Rates: $1,004.00 PA
Zoned: RU1 Primary Production
For more information, call Chris Churchill on -0417 080 460
Read MoreLimekiln Cottage, fronting lovely Limekiln Creek, is on 99 bush acres (40.03 hectares) located approximately 21 kms (23 mins) from Bredbo . This home is in a picture-perfect spot with beautiful rural views & delivers a peaceful rural experience.
Situated on a private bush block with the Jerangle road approximately 1 kilometre away, the home is accessed via a right of carriageway through the neighbouring property. A large percentage of the block is mountainous timbered country with an abundance of wildlife, you can enjoy bush walking, horse riding, mountain or motor bike riding and hunting or just enjoy the peace & quiet.
It's not just the location that makes this property appealing; it's what the home offers. There are 2 bedrooms in the main house with a spacious 12 x 3.5 rumpus room under, plus a substantial detached separate building lovingly referred to as "Mariners Lodge".
The house is simple but very comfortable, including modern-day conveniences like gas heating, instant gas hot water, slow combustion wood fire, gas stove plus old wood stove/oven, mains power and numerous tanks for ample water storage.
Underneath the home is a large 12m x 3.5m rumpus room that can easily be used for additional bedrooms, a children's play space or a place for the adults to get away from the hustle and bustle of upstairs. The home is fully wrapped around by the covered veranda taking full advantage of the surrounding scenery.
The 126 sqm (21m x 6 m) Lodge is very spacious perfect for the extended family or has the potential to become a B&B, offering ample living area, a huge single bedroom/bunkhouse, a kitchenette & bathroom.
The property also offers a single garage or workshop and a 4-car garage.
Several vehicle and walking tracks for exploring provides access to the highest point on the property with breath-taking views.
The home has all the infrastructure needed to move straight in and start living the rural lifestyle. The land is fenced along one boundary only and offers a combination of creeks, open pasture and of course the natural bushland.
Home inclusions:
- 2 bedrooms,
- Combined lounge/dining
- Kitchen with gas oven and wood stove
- Bathroom
- Instant gas hot water
- Laundry room
- Gas heater connection
- Slow-combustion wood fire
- Wraparound veranda
- Rumpus room under (12 x 3.5 meters)
Infrastructure:
- Additional 126sqm accommodation building including living room, bedroom, kitchenette and bathroom
- 4 car garage
- Single garage/workshop
- 3 x dams
- Numerous tanks
- Chicken coop
- Separate workshop/storage shed
- Multi-purpose animal shed/shelter
- Note: the shipping container shown in some photos is NOT included in the sale
Lot 2 DP 735701
House Living: 116 sqm
Verandah: 78 sqm
Lodge living space: 126 sqm
Rates: $1,004.00 PA
Zoned: RU1 Primary Production
For more information, call Chris Churchill on -0417 080 460
Inspect
Contact agent
Listing agent
Prior to enquiry or inspection of this property you may wish to review our Information Collection Notice and Privacy Policy.
Privacy & Collection Notice






























































