Rural Views
Sold
Location
6 (LotB) Fergus Street
Bredbo NSW 2626
Details
Other
Sold
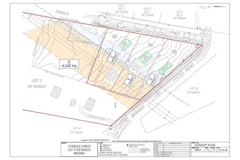
Land area: | 3148 sqm (approx) |
Situated in the picturesque rural village of Bredbo this large 3148 sqm village block (Lot B) represents great value and is the perfect location to build your dream home within an easy 45-minute commute to south Canberra.
Flat and easy to build on the block offers views to the surrounding hills, is ideally located on the outskirts of the lovely Bredbo village and provides plenty of scope to build a home to suit your budget.
The block includes:
- Town water connection to front gate
- Mains power to front gate
- Fully fenced boundaries
Note: Sewerage, there is no town sewerage available, new sewerage/septic tank installation is at the buyers cost and not included as part of the block sale.
The block is significantly larger than those found in Canberra meaning plenty of grassy area for the kids, lots of room for pets or animals and loads of extra space for a massive shed, pool, caravan, cars, boats or toys.
Lot & DP - TBA
Block: 3,148 sqm
Zoning: RU5 Village
Call Chris Churchill on 0417 080 460 for more information.
Read MoreFlat and easy to build on the block offers views to the surrounding hills, is ideally located on the outskirts of the lovely Bredbo village and provides plenty of scope to build a home to suit your budget.
The block includes:
- Town water connection to front gate
- Mains power to front gate
- Fully fenced boundaries
Note: Sewerage, there is no town sewerage available, new sewerage/septic tank installation is at the buyers cost and not included as part of the block sale.
The block is significantly larger than those found in Canberra meaning plenty of grassy area for the kids, lots of room for pets or animals and loads of extra space for a massive shed, pool, caravan, cars, boats or toys.
Lot & DP - TBA
Block: 3,148 sqm
Zoning: RU5 Village
Call Chris Churchill on 0417 080 460 for more information.
Inspect
Contact agent
Listing agent
Prior to enquiry or inspection of this property you may wish to review our Information Collection Notice and Privacy Policy.
Privacy & Collection NoticeSituated in the picturesque rural village of Bredbo this large 3148 sqm village block (Lot B) represents great value and is the perfect location to build your dream home within an easy 45-minute commute to south Canberra.
Flat and easy to build on the block offers views to the surrounding hills, is ideally located on the outskirts of the lovely Bredbo village and provides plenty of scope to build a home to suit your budget.
The block includes:
- Town water connection to front gate
- Mains power to front gate
- Fully fenced boundaries
Note: Sewerage, there is no town sewerage available, new sewerage/septic tank installation is at the buyers cost and not included as part of the block sale.
The block is significantly larger than those found in Canberra meaning plenty of grassy area for the kids, lots of room for pets or animals and loads of extra space for a massive shed, pool, caravan, cars, boats or toys.
Lot & DP - TBA
Block: 3,148 sqm
Zoning: RU5 Village
Call Chris Churchill on 0417 080 460 for more information.
Read MoreFlat and easy to build on the block offers views to the surrounding hills, is ideally located on the outskirts of the lovely Bredbo village and provides plenty of scope to build a home to suit your budget.
The block includes:
- Town water connection to front gate
- Mains power to front gate
- Fully fenced boundaries
Note: Sewerage, there is no town sewerage available, new sewerage/septic tank installation is at the buyers cost and not included as part of the block sale.
The block is significantly larger than those found in Canberra meaning plenty of grassy area for the kids, lots of room for pets or animals and loads of extra space for a massive shed, pool, caravan, cars, boats or toys.
Lot & DP - TBA
Block: 3,148 sqm
Zoning: RU5 Village
Call Chris Churchill on 0417 080 460 for more information.
Location
6 (LotB) Fergus Street
Bredbo NSW 2626
Details
Other
Sold
Land area: | 3148 sqm (approx) |
Situated in the picturesque rural village of Bredbo this large 3148 sqm village block (Lot B) represents great value and is the perfect location to build your dream home within an easy 45-minute commute to south Canberra.
Flat and easy to build on the block offers views to the surrounding hills, is ideally located on the outskirts of the lovely Bredbo village and provides plenty of scope to build a home to suit your budget.
The block includes:
- Town water connection to front gate
- Mains power to front gate
- Fully fenced boundaries
Note: Sewerage, there is no town sewerage available, new sewerage/septic tank installation is at the buyers cost and not included as part of the block sale.
The block is significantly larger than those found in Canberra meaning plenty of grassy area for the kids, lots of room for pets or animals and loads of extra space for a massive shed, pool, caravan, cars, boats or toys.
Lot & DP - TBA
Block: 3,148 sqm
Zoning: RU5 Village
Call Chris Churchill on 0417 080 460 for more information.
Read MoreFlat and easy to build on the block offers views to the surrounding hills, is ideally located on the outskirts of the lovely Bredbo village and provides plenty of scope to build a home to suit your budget.
The block includes:
- Town water connection to front gate
- Mains power to front gate
- Fully fenced boundaries
Note: Sewerage, there is no town sewerage available, new sewerage/septic tank installation is at the buyers cost and not included as part of the block sale.
The block is significantly larger than those found in Canberra meaning plenty of grassy area for the kids, lots of room for pets or animals and loads of extra space for a massive shed, pool, caravan, cars, boats or toys.
Lot & DP - TBA
Block: 3,148 sqm
Zoning: RU5 Village
Call Chris Churchill on 0417 080 460 for more information.
Inspect
Contact agent
Listing agent
Prior to enquiry or inspection of this property you may wish to review our Information Collection Notice and Privacy Policy.
Privacy & Collection Notice




















