Long term family home with stunning panoramic views
Sold
Location
2 Chapple Close
Isaacs ACT 2607
Details
5
3
3
EER: 2.5
House
Auction Saturday, 19 Oct 11:00 AM On site
Rates: | $3,769.00 annually |
Land area: | 952.3 sqm (approx) |
Uniquely nestled beneath a row of glorious pines and formal private hedging, No. 2 Chapple Close sits on a fantastic elevated block designed perfectly to capture sun and natural light as well as maximise exquisite views right across to Mount Taylor and the Brindabella's.
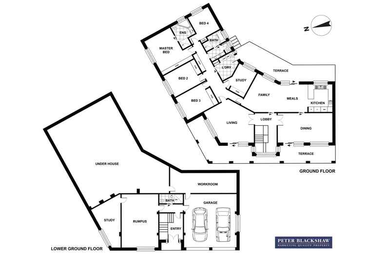
Over many years the current residents have taken great pleasure in creating a lovely family home with long term appeal. Considerable thought was given to the layout of the home which provides different regions and spaces for privacy and comfort to suit the needs of individual family members. At the same time the home is warm and inviting and is configured well to ensure family connection. This fabulous entertainer's home has an open plan kitchen, meals and living area which flows out to a rear terrace and overlooks a sparkling swimming pool. The rear garden provides a most welcoming environment and offers various entertaining spaces for family and guests. There are two very pleasant light and bright living rooms at the front of the home with an expansive wraparound front terrace that also takes in stunning panoramic views of the mountains. The generous bedroom wing offers an extra spacious master suite and recently renovated ensuite with corner bath. Four additional bedrooms are comfortably sized with built in robes and also share a refurbished bathroom with separate toilet and sink.
On the lower level, there is a roomy and practical rumpus area and home office; perfect as a teenager's retreat or workspace for the home business owner. There is internal access to the double garage plus separate workshop with ample under house storage. In addition, there is also a single carport. The home has the advantage of direct access to the Isaacs Ridge Pine Forest walking trails, as well as easy distance to nearby playgrounds and bike paths. It also has handy conveniences including short walking distance to local transport and cafes and close proximity to the Canberra Hospital, Woden shopping precinct and well-regarded schools, childcare and pre-schools. Overall a beautiful quality family home with so many attractive features which provide a peaceful and comfortable lifestyle.
Features:
• Positioned close to majestic pines with stunning panoramic views to Mount Taylor and the Brindabella's
• Lovely spacious living areas including rumpus
• Generous sized master bedroom retreat with ensuite and corner bath
• Recently renovated bathrooms and laundry
• Quality Curtains
• Miele/Bosch appliances in spacious timber kitchen
• Versatile living options, including a Home office
• Solar heated sparkling pool (50,000L)
• Formal but easy-care landscaped gardens
• Huge amount of storage including under house
• Ducted Gas Central Heating (zoned downstairs)
• Ducted evaporative air conditioning
• Double garage plus single carport with automatic roller doors
• Ample storage space
• Computer controlled Irrigation system
• Instantaneous Rinnai hot water
• NBN Access
• Security grills on all windows and doors
• Ducted Vacuum system
• Security Alarm System
Read MoreOver many years the current residents have taken great pleasure in creating a lovely family home with long term appeal. Considerable thought was given to the layout of the home which provides different regions and spaces for privacy and comfort to suit the needs of individual family members. At the same time the home is warm and inviting and is configured well to ensure family connection. This fabulous entertainer's home has an open plan kitchen, meals and living area which flows out to a rear terrace and overlooks a sparkling swimming pool. The rear garden provides a most welcoming environment and offers various entertaining spaces for family and guests. There are two very pleasant light and bright living rooms at the front of the home with an expansive wraparound front terrace that also takes in stunning panoramic views of the mountains. The generous bedroom wing offers an extra spacious master suite and recently renovated ensuite with corner bath. Four additional bedrooms are comfortably sized with built in robes and also share a refurbished bathroom with separate toilet and sink.
On the lower level, there is a roomy and practical rumpus area and home office; perfect as a teenager's retreat or workspace for the home business owner. There is internal access to the double garage plus separate workshop with ample under house storage. In addition, there is also a single carport. The home has the advantage of direct access to the Isaacs Ridge Pine Forest walking trails, as well as easy distance to nearby playgrounds and bike paths. It also has handy conveniences including short walking distance to local transport and cafes and close proximity to the Canberra Hospital, Woden shopping precinct and well-regarded schools, childcare and pre-schools. Overall a beautiful quality family home with so many attractive features which provide a peaceful and comfortable lifestyle.
Features:
• Positioned close to majestic pines with stunning panoramic views to Mount Taylor and the Brindabella's
• Lovely spacious living areas including rumpus
• Generous sized master bedroom retreat with ensuite and corner bath
• Recently renovated bathrooms and laundry
• Quality Curtains
• Miele/Bosch appliances in spacious timber kitchen
• Versatile living options, including a Home office
• Solar heated sparkling pool (50,000L)
• Formal but easy-care landscaped gardens
• Huge amount of storage including under house
• Ducted Gas Central Heating (zoned downstairs)
• Ducted evaporative air conditioning
• Double garage plus single carport with automatic roller doors
• Ample storage space
• Computer controlled Irrigation system
• Instantaneous Rinnai hot water
• NBN Access
• Security grills on all windows and doors
• Ducted Vacuum system
• Security Alarm System
Inspect
Contact agent
Listing agent
Prior to enquiry or inspection of this property you may wish to review our Information Collection Notice and Privacy Policy.
Privacy & Collection NoticeUniquely nestled beneath a row of glorious pines and formal private hedging, No. 2 Chapple Close sits on a fantastic elevated block designed perfectly to capture sun and natural light as well as maximise exquisite views right across to Mount Taylor and the Brindabella's.
Over many years the current residents have taken great pleasure in creating a lovely family home with long term appeal. Considerable thought was given to the layout of the home which provides different regions and spaces for privacy and comfort to suit the needs of individual family members. At the same time the home is warm and inviting and is configured well to ensure family connection. This fabulous entertainer's home has an open plan kitchen, meals and living area which flows out to a rear terrace and overlooks a sparkling swimming pool. The rear garden provides a most welcoming environment and offers various entertaining spaces for family and guests. There are two very pleasant light and bright living rooms at the front of the home with an expansive wraparound front terrace that also takes in stunning panoramic views of the mountains. The generous bedroom wing offers an extra spacious master suite and recently renovated ensuite with corner bath. Four additional bedrooms are comfortably sized with built in robes and also share a refurbished bathroom with separate toilet and sink.
On the lower level, there is a roomy and practical rumpus area and home office; perfect as a teenager's retreat or workspace for the home business owner. There is internal access to the double garage plus separate workshop with ample under house storage. In addition, there is also a single carport. The home has the advantage of direct access to the Isaacs Ridge Pine Forest walking trails, as well as easy distance to nearby playgrounds and bike paths. It also has handy conveniences including short walking distance to local transport and cafes and close proximity to the Canberra Hospital, Woden shopping precinct and well-regarded schools, childcare and pre-schools. Overall a beautiful quality family home with so many attractive features which provide a peaceful and comfortable lifestyle.
Features:
• Positioned close to majestic pines with stunning panoramic views to Mount Taylor and the Brindabella's
• Lovely spacious living areas including rumpus
• Generous sized master bedroom retreat with ensuite and corner bath
• Recently renovated bathrooms and laundry
• Quality Curtains
• Miele/Bosch appliances in spacious timber kitchen
• Versatile living options, including a Home office
• Solar heated sparkling pool (50,000L)
• Formal but easy-care landscaped gardens
• Huge amount of storage including under house
• Ducted Gas Central Heating (zoned downstairs)
• Ducted evaporative air conditioning
• Double garage plus single carport with automatic roller doors
• Ample storage space
• Computer controlled Irrigation system
• Instantaneous Rinnai hot water
• NBN Access
• Security grills on all windows and doors
• Ducted Vacuum system
• Security Alarm System
Read MoreOver many years the current residents have taken great pleasure in creating a lovely family home with long term appeal. Considerable thought was given to the layout of the home which provides different regions and spaces for privacy and comfort to suit the needs of individual family members. At the same time the home is warm and inviting and is configured well to ensure family connection. This fabulous entertainer's home has an open plan kitchen, meals and living area which flows out to a rear terrace and overlooks a sparkling swimming pool. The rear garden provides a most welcoming environment and offers various entertaining spaces for family and guests. There are two very pleasant light and bright living rooms at the front of the home with an expansive wraparound front terrace that also takes in stunning panoramic views of the mountains. The generous bedroom wing offers an extra spacious master suite and recently renovated ensuite with corner bath. Four additional bedrooms are comfortably sized with built in robes and also share a refurbished bathroom with separate toilet and sink.
On the lower level, there is a roomy and practical rumpus area and home office; perfect as a teenager's retreat or workspace for the home business owner. There is internal access to the double garage plus separate workshop with ample under house storage. In addition, there is also a single carport. The home has the advantage of direct access to the Isaacs Ridge Pine Forest walking trails, as well as easy distance to nearby playgrounds and bike paths. It also has handy conveniences including short walking distance to local transport and cafes and close proximity to the Canberra Hospital, Woden shopping precinct and well-regarded schools, childcare and pre-schools. Overall a beautiful quality family home with so many attractive features which provide a peaceful and comfortable lifestyle.
Features:
• Positioned close to majestic pines with stunning panoramic views to Mount Taylor and the Brindabella's
• Lovely spacious living areas including rumpus
• Generous sized master bedroom retreat with ensuite and corner bath
• Recently renovated bathrooms and laundry
• Quality Curtains
• Miele/Bosch appliances in spacious timber kitchen
• Versatile living options, including a Home office
• Solar heated sparkling pool (50,000L)
• Formal but easy-care landscaped gardens
• Huge amount of storage including under house
• Ducted Gas Central Heating (zoned downstairs)
• Ducted evaporative air conditioning
• Double garage plus single carport with automatic roller doors
• Ample storage space
• Computer controlled Irrigation system
• Instantaneous Rinnai hot water
• NBN Access
• Security grills on all windows and doors
• Ducted Vacuum system
• Security Alarm System

Location
2 Chapple Close
Isaacs ACT 2607
Details
5
3
3
EER: 2.5
House
Auction Saturday, 19 Oct 11:00 AM On site
Rates: | $3,769.00 annually |
Land area: | 952.3 sqm (approx) |
Uniquely nestled beneath a row of glorious pines and formal private hedging, No. 2 Chapple Close sits on a fantastic elevated block designed perfectly to capture sun and natural light as well as maximise exquisite views right across to Mount Taylor and the Brindabella's.
Over many years the current residents have taken great pleasure in creating a lovely family home with long term appeal. Considerable thought was given to the layout of the home which provides different regions and spaces for privacy and comfort to suit the needs of individual family members. At the same time the home is warm and inviting and is configured well to ensure family connection. This fabulous entertainer's home has an open plan kitchen, meals and living area which flows out to a rear terrace and overlooks a sparkling swimming pool. The rear garden provides a most welcoming environment and offers various entertaining spaces for family and guests. There are two very pleasant light and bright living rooms at the front of the home with an expansive wraparound front terrace that also takes in stunning panoramic views of the mountains. The generous bedroom wing offers an extra spacious master suite and recently renovated ensuite with corner bath. Four additional bedrooms are comfortably sized with built in robes and also share a refurbished bathroom with separate toilet and sink.
On the lower level, there is a roomy and practical rumpus area and home office; perfect as a teenager's retreat or workspace for the home business owner. There is internal access to the double garage plus separate workshop with ample under house storage. In addition, there is also a single carport. The home has the advantage of direct access to the Isaacs Ridge Pine Forest walking trails, as well as easy distance to nearby playgrounds and bike paths. It also has handy conveniences including short walking distance to local transport and cafes and close proximity to the Canberra Hospital, Woden shopping precinct and well-regarded schools, childcare and pre-schools. Overall a beautiful quality family home with so many attractive features which provide a peaceful and comfortable lifestyle.
Features:
• Positioned close to majestic pines with stunning panoramic views to Mount Taylor and the Brindabella's
• Lovely spacious living areas including rumpus
• Generous sized master bedroom retreat with ensuite and corner bath
• Recently renovated bathrooms and laundry
• Quality Curtains
• Miele/Bosch appliances in spacious timber kitchen
• Versatile living options, including a Home office
• Solar heated sparkling pool (50,000L)
• Formal but easy-care landscaped gardens
• Huge amount of storage including under house
• Ducted Gas Central Heating (zoned downstairs)
• Ducted evaporative air conditioning
• Double garage plus single carport with automatic roller doors
• Ample storage space
• Computer controlled Irrigation system
• Instantaneous Rinnai hot water
• NBN Access
• Security grills on all windows and doors
• Ducted Vacuum system
• Security Alarm System
Read MoreOver many years the current residents have taken great pleasure in creating a lovely family home with long term appeal. Considerable thought was given to the layout of the home which provides different regions and spaces for privacy and comfort to suit the needs of individual family members. At the same time the home is warm and inviting and is configured well to ensure family connection. This fabulous entertainer's home has an open plan kitchen, meals and living area which flows out to a rear terrace and overlooks a sparkling swimming pool. The rear garden provides a most welcoming environment and offers various entertaining spaces for family and guests. There are two very pleasant light and bright living rooms at the front of the home with an expansive wraparound front terrace that also takes in stunning panoramic views of the mountains. The generous bedroom wing offers an extra spacious master suite and recently renovated ensuite with corner bath. Four additional bedrooms are comfortably sized with built in robes and also share a refurbished bathroom with separate toilet and sink.
On the lower level, there is a roomy and practical rumpus area and home office; perfect as a teenager's retreat or workspace for the home business owner. There is internal access to the double garage plus separate workshop with ample under house storage. In addition, there is also a single carport. The home has the advantage of direct access to the Isaacs Ridge Pine Forest walking trails, as well as easy distance to nearby playgrounds and bike paths. It also has handy conveniences including short walking distance to local transport and cafes and close proximity to the Canberra Hospital, Woden shopping precinct and well-regarded schools, childcare and pre-schools. Overall a beautiful quality family home with so many attractive features which provide a peaceful and comfortable lifestyle.
Features:
• Positioned close to majestic pines with stunning panoramic views to Mount Taylor and the Brindabella's
• Lovely spacious living areas including rumpus
• Generous sized master bedroom retreat with ensuite and corner bath
• Recently renovated bathrooms and laundry
• Quality Curtains
• Miele/Bosch appliances in spacious timber kitchen
• Versatile living options, including a Home office
• Solar heated sparkling pool (50,000L)
• Formal but easy-care landscaped gardens
• Huge amount of storage including under house
• Ducted Gas Central Heating (zoned downstairs)
• Ducted evaporative air conditioning
• Double garage plus single carport with automatic roller doors
• Ample storage space
• Computer controlled Irrigation system
• Instantaneous Rinnai hot water
• NBN Access
• Security grills on all windows and doors
• Ducted Vacuum system
• Security Alarm System
Inspect
Contact agent
Listing agent
Prior to enquiry or inspection of this property you may wish to review our Information Collection Notice and Privacy Policy.
Privacy & Collection Notice








































